Portafolio 2022

Page 1

PORTAFOLIO

CATALINA MORALES PLAZAS

2022

PERFIL: Arquitecta apasionada por la transformación de hábitos a través del diseño de espacios, enfocada en generar un impacto positivo en el medio ambiente y los usuarios, por medio de soluciones óptimas, creativas y funcionales a largo plazo. Busco adquirir nuevas experiencias, al integrar mi profesión con mi pasión.

EXPERIENCIA PROFESIONAL:

Febrero 2022 - Actualmente

Marzo - Junio 2022

Septiembre 2021 - Febrero 2022

Arquitecta del Tecnológico de Monterrey

DATOS: catamoralesp@hotmail.com

Diciembre 2020 - Febrero 2022

Anasol Martínez Interior Design & Home Styling ~ Querétaro Despacho de diseño de interiores, especialidad en color

Diplomado de Diseño de Interiores ~ Tecnológico de Monterrey

Veyric Design ~ Querétaro Estudio de interiorismo sustentable

Oliveros Grajeda Arquitectura ~ Querétaro Desarrollo de proyectos ejecutivos casa habitación

Enero 2020 - Enero 2021

Santiago de Querétaro, Qro

SOFTWARE:

Archicad ~ Avanzado

Autocad ~ Intermedio

Junio - Agosto 2020

Tecnológico de Monterrey ~ Campus Querétaro Diseño y edición del libro de la Bienal de arquitectura en Ecuador

Tailored Interiors & Architecture ~ Inglaterra Restauración y remodelación de casa habitación

IDIOMAS:

Illustrator ~ Avanzado

~ Avanzado Photoshop ~ Avanzado Lumion ~ Intermedio Español nativo

Inglés B1

(+52) 4424636854
Indesign

DEPARTAMENTO MORROCAN

PROYECTOS

CASA HABITACIÓN

DEPARTAMENTO Y.E

CASA MAPLE

CONSULTORIO OFTALMOLÓGICO

ESCUELA DE ARTES Y OFICIOS

5-8 9-12 13-14 15-18 19-22
23-26

DEPARTAMENTO MORROCAN

INFORMACIÓN:

Proyecto: Departamento de lujo tipo Airbnb

Ubicación: San Miguel de Allende, Guanajuato

Año: 2021 - En proceso Colaboración: Anasol Martínez

Workflow: Sketchup, Archicad, Photoshop y Lumion

SOBRE EL PROYECTO:

Departamento de lujo con diseño y estilo inspirado en Marruecos, ubicado en Capilla de Piedra en San Miguel de Allende. Uno de los proyectos más detallados.

Render por Miguel H.

5
6 l Departamento Morrocan

A

Fondo para campana 45cm

Fondo para puertas de alado campana 30cm

Fondo para barra estufa 60cm o 65 depende del refri A

Este proyecto ha sido bastante extenso, ya que se decidió modificar muchos acabados y muebles fijos del departamento. Por lo cual fue necesario pedir permisos para hacer modificaciones.

El nivel de detalle del proyecto ha sido impresionante, se han diseñado todos los muebles fijos, mandado a hacer cocina, camas, burós, vigas del techo, lavandería, comedor, sillas, entre otros. Por lo cual es un proyecto retador, donde cada objeto y detalle tiene un transfondo y por ello se logra armonizar todo el espacio.

Además es un estilo diferente al usualmente trabajado, por lo cual nos ha retado a salir de la zona de confort, encontrar nuevos proveedores, indagar sobre nuevas soluciones y sobre todo optimizar tiempo y presupuesto para generar un resultado fascinante.

Se espera que el proyecto se termine en diciembre 2022, sin incluir la parte del roof que sigue a la espera de su licencia de construcción.

7
8 l Departamento Morrocan

CASA HABITACIÓNDIPLOMADO

INFORMACIÓN:

Proyecto: Propuesta para renovación casa habitación Ubicación: Bogotá, Colombia

Año: 2022 Workflow: Archicad, Lumion y photoshop

SOBRE EL PROYECTO:

Para el proyecto final del diplomado de diseño de interiores se debía desarrollar un proyecto de un espacio interior y otro exterior. En este caso se aprovecho la mayoría de mobiliario existente pero renovando el espacio y generando un ambiente diferente.

9

Los requerimientos son particulares, buscamos que este espacio sea más confortable. Al ser un espacio a doble altura y todo blanco, se siente muy frio, no se aprovecha lo suficiente la luz natural. Se desea que proyecte buena energía, aprovechar las vistas y sobre todo, que sea práctico para el diario vivir, donde se puedan realizar diversas actividades.

Es así como al reconfigurar y regenerar podemos crear un espacio vibrante, donde el uso de materiales naturales y cálidos nos permite crear un ambiente acogedor y cómodo. Al mismo tiempo, se propone un programa variado que funciona en conjunto al ser una extensión de cada uno de los espacios.

10 l

Se busca reconfigurar el espacio, haciéndolo más amigable, esto se puede lograr con el uso de muebles hechos de materiales naturales y mantener un patrón claro entre ambos espacios, con el fin de que invite a pasar un tiempo extenso.

Mediante los elementos se busca crear un espacio articulador entre el interior y el exterior, donde hay una fluidez espacial y un ritmo entre cada uno de los elementos. Es importante tener en cuenta que los accesorios deben ser limitados, ya que de lo contrario el espacio puede verse saturado.

11
12 l

DEPARTAMENTO Y.E

INFORMACIÓN:

Proyecto: Proyecto casa habitación

Ubicación: Ciudad de México

Año: 2022 Colaboración: Anasol Martínez Workflow: Archicad, lumion y photoshop

SOBRE EL PROYECTO:

Departamento en renta donde se debía diseñar y amueblar todos los espacios con un presupuesto límitado para una joven recién egresada.

13

Se entienden las necesidades del usuario con el fin de aprovechar los espacios del departamento, al proponer muebles que generen un ambiente acogedor y a su vez, que sean funcionales y prácticos.

14 l Departamento Y.E

CASA MAPLE

INFORMACIÓN:

Proyecto: Casa habitación

Ubicación: Pénjamo, Guanajuato

Año: 2021

Colaboración: Oliveros Grajeda Arquitectura

Workflow: Archicad e Illustrator

SOBRE EL PROYECTO:

Tras la realización del proyecto ejecutivo, se entra a detalle en carpintería y acabados, generando guías de baño y un detalle constructivo de la baranda de madera, siendo un elemento trascendental de su función.

15

Proyecto arquitectónico

Se desarrollo el proyecto basado en una casa tipo (diseñada anteriormente) satisfaciendo las necesidades del usuario.

Ilustración planta baja

Ilustración planta alta

Fachada principal

Fachada posterior (norte)

Fachada

Fachada

16 l Casa Maple GSEducationalVersion NOMBRE DE PLANO ESCALA PROYECTOCLAVE DIBUJÓ -0.140 3.200 4.200 8.140 -0.140 0.180 3.000 3.250 4.200 4.600 5.600 6.000 0.270 2.820 0.250 0.950 0.400 1.000 0.400 8.600 0.320 2.820 1.200 1.800 6.200 2.850 N P N B N N B P T N B V N N B L N P N V N V N V N 13 12 11 10 9 8 7 5 4 3 1462 1 14.925 1.575 2.200 0.650 1.150 2.500 0.600 1.250 1.650 0.500 0.750 0.900 1.200 3.075 -0.340 3.000 3.250 4.200 6.700 7.700 7.800 8.400 -0.140 0.180 3.000 3.200 4.200 6.000 7.450 8.000 3.340 0.250 0.950 2.500 1.000 0.100 0.600 8.600 6.200 0.320 2.820 0.200 1.000 1.800 0.200 1.250 0.550 8.000 N N B N P T N N N P N P N P N N P N B N P N N P N P N P N 14 8 6 3 3.775 0.650 1.150 2.500 0.600 1.250 1.650 0.500 1.650 1.200 3.075 2.850 0.500 2.500 0.200 1.600 0.600 -0.140 3.000 3.250 6.000 6.200 7.600 8.000 2.820 0.250 2.750 0.200 1.400 0.400 0.180 18.000 8.140 0.320 N N B L N N B L N N P N P RECÁMARA PRINCIPAL SALABAÑO TV BAÑO COCINA TERRAZA JARDÍN BAÑO CELOSÍA LÍMITE N P T BODEGA 12 11 10 9 7 2 2 3 5 6 7 8 9 10 414 11 3.075 1.200 0.900 0.750 0.500 1.650 1.250 0.600 2.500 1.150 0.650 2.200 1.575 2.820 0.250 0.900 1.850 2.000 18.000 -0.090 0.180 3.000 3.250 5.200 6.000 6.200 8.000 0.200 0.230 2.910 0.250 0.900 0.650 1.200 0.200 1.200 0.300 -0.140 0.090 3.000 3.250 4.150 4.800 6.000 6.200 7.400 7.700 8.000 7.840 0.270 N B V N N B L P T N N N B L N N V N N N N N N N P N LÍMITE 12 13 ARQ Fachada Norte 75 AQ Fachada Este 75 S 01 S 02 Corte Longitudinal 75 ARQ Fachada Oeste 1 75
Casa Maple Cortes
y
Fachadas
Catalina
Morales Según
dibujo ARQ PROYECTONOMBRE H G E C B JA F D 2.000 0.500 -0.140 3.200 4.200 8.000 8.140 16.000 -0.140 0.180 3.000 3.250 4.200 4.600 5.600 6.000 8.000 8.400 0.270 2.820 0.250 0.950 0.400 1.000 0.400 2.000 0.400 8.600 0.320 2.820 1.200 1.800 1.575 4.150 1.400 1.900 0.800 0.750 1.550 2.300 1.575 6.200 2.850 N P N N B N N B V N P N N V N P T N B N T N B V N A V N A V N N A B C D F G H I EJ 1.575 2.300 1.550 0.750 0.800 1.900 1.400 4.150 1.575 8.500 7.450 6.500 6.200 6.000 3.250 3.000 -0.090 3.090 0.250 2.750 0.200 0.500 0.950 1.050 -0.140 -0.090 3.000 3.250 3.500 7.650 8.400 0.050 3.090 0.250 0.250 4.150 0.750 16.000 -0.140 N N P N P T N N N N N P N P N P T N B L N N N N N B LÍMITE -0.340 -0.090 0.180 0.250-0.140 3.090 0.320 2.820 CUARTO LAVADO ALACENA COMEDOR LÍMITE N P N N P T N P T BODEGA ARQ Fachada Norte 75 ARQ Fachada Sur 75 S 01 Corte Transversal 75
Casa Maple
GSEducationalVersion NOMBRE DE PLANO ESCALA PROYECTOCLAVE DIBUJÓ -0.140 3.200 4.200 8.140 -0.140 0.180 3.000 3.250 4.200 4.600 5.600 6.000 0.270 2.820 0.250 0.950 0.400 1.000 0.400 8.600 0.320 2.820 1.200 1.800 6.200 2.850 N N N P T N V N N V P T N N N B A A LÍMITE P T 13 12 11 10 9 8 7 5 4 3 1462 1 14.925 1.575 2.200 0.650 1.150 2.500 0.600 1.250 1.650 0.500 0.750 0.900 1.200 3.075 -0.340 3.000 3.250 4.200 6.700 7.700 7.800 8.400 -0.140 0.180 3.000 3.200 4.200 6.000 7.450 8.000 3.340 0.250 0.950 2.500 1.000 0.100 0.600 8.600 6.200 0.320 2.820 0.200 1.000 1.800 0.200 1.250 0.550 8.000 N P N N N B N N N N N N N N N N N N N -0.340 -0.090 3.000 3.250 6.000 6.200 8.400 7.800 4.150 N N B P T N B N A N N P T P T 14 8 6 3 3.775 0.650 1.150 2.500 0.600 1.250 1.650 0.500 1.650 1.200 3.075 2.850 0.500 2.500 0.200 1.600 0.600 -0.140 3.000 3.250 6.000 6.200 7.600 8.000 2.820 0.250 2.750 0.200 1.400 0.400 0.180 18.000 8.140 0.320 N B L N B L N N P N P RECÁMARA PRINCIPAL SALABAÑO TV BAÑO COCINA TERRAZA JARDÍN BAÑO LÍMITE N P T BODEGA TERRENO NATURAL 12 11 10 9 7 2 2 3 5 6 7 8 9 10 414 11 3.075 1.200 0.900 0.750 0.500 1.650 1.250 0.600 2.500 1.150 0.650 2.200 1.575 2.820 0.250 0.900 1.850 2.000 18.000 -0.090 0.180 3.000 3.250 5.200 6.000 6.200 8.000 0.200 0.230 2.910 0.250 0.900 0.650 1.200 0.200 1.200 0.300 -0.140 0.090 3.000 3.250 4.150 4.800 6.000 6.200 7.400 7.700 8.000 7.840 0.270 N V N P N N N P N P N N P N V N N B N N N N B N P N LÍMITE 12 13 ARQ Fachada Norte 75 AQ Fachada Este 75 S 02 Corte Longitudinal 75 ARQ Fachada Oeste 1 75 Casa Maple Cortes y Fachadas Catalina Morales Según dibujo ARQ - 02 PROYECTONOMBRE H G E C B JA F D 2.000 0.500 -0.140 3.200 4.200 8.000 8.140 16.000 -0.140 0.180 3.000 3.250 4.200 4.600 5.600 6.000 8.000 8.400 0.270 2.820 0.250 0.950 0.400 1.000 0.400 2.000 0.400 8.600 0.320 2.820 1.200 1.800 1.575 4.150 1.400 1.900 0.800 0.750 1.550 2.300 1.575 6.200 2.850 N P N P N B N N B V N P N N V T N B N N B V N A V N A V N N I A B C D F G H EJ 1.575 2.300 1.550 0.750 0.800 1.900 1.400 4.150 1.575 8.500 7.450 6.500 6.200 6.000 3.250 3.000 -0.090 3.090 0.250 2.750 0.200 0.500 0.950 1.050 -0.140 -0.090 3.000 3.250 3.500 7.650 8.400 0.050 3.090 0.250 0.250 4.150 0.750 16.000 -0.140 N P N P N P T N B N N P N P N P N P N T N L N B N P N P N P N B LÍMITE -0.340 -0.090 0.180 3.000 3.000 0.250-0.140 3.090 0.250 0.320 2.820 0.200 CUARTO LAVADO ALACENA COMEDOR LÍMITE N B L N P T N B N T N T BODEGA ARQ Fachada Norte 75 ARQ Fachada Sur 75 S 01 Corte Transversal 1 75
Casa Maple
(sur)
oeste
este

de

detalle, diseñando

17 Se proponen acabados de acuerdo al estilo de la casa y se realizan los alzados interiores a
carpintería. Guías
baño GSPublisherVersion 834.28.30.100 GSEducationalVersion NOMBRE DE PLANO ESCALA PROYECTOCLAVE DIBUJÓ 900 800 C C D E 6 7 7 11 Fachada Sur Fachada Oeste Fachada Norte S 02 S 02 2,300 2,300 2,700 1,400 4,150 2,300 1,550 1,550 1,900 1,400 4,150 1,800 2,500 1,850 1,650 3,350 0,650 1,150 2,500 1,850 2,900 2,100 2,200 12,850 11,150 12,850 13,350 Fachada EsteC A A BAJA DOMO DOMO RECÁMARA TERRAZA RECÁMARA PRINCIPAL BAÑO BAÑO CLÓSET VACÍO Pend Pend B B G G 9 9 10 10 12 12 13 F H H 2 2 4 S 01 S 01 7 2 2 3 5 4 6 7 2 8 9 Cajón Cajón Cajón B C 6 10 2 7 2 8 11 5 C B 5 Cajón12 0 900 x 1 800 B C D A DOMO BAÑO GB Planta Alta 1:150 2 Alzado A 1:50 2 Alzado B 1:50 2 Alzado C 1:50 2 Alzado D 1:50 GB Baño Principal 1:50 13 14 Casa Maple Guías de Baño Catalina Morales Según dibujo GB - 02 1 Sunny Lingt Moderno Luces pendientes del punto de luz 3W 2 Vermont Ivory 25x50 Marca Interceramic 3 Espejo flotante rectangular 4 Oslo monomando alta acero inoxidable Marca Interceramic 5 Mueble M11 6 Dublín conjunto de regadera cromo pulido Marca Interceramic 7 Ventana V 08 8.Vidrio templado de 6mm 9.Logan una pieza descarga doble 10 Manitoba Brown 20x60 Marca Interceramic 11 Puerta P 04 12 Cubierta de Sileston/Cuarzo Et Statuario Marca Mármol &Granitos 13 Acadia Thunder Gray 60x60 Marca Interceramic 14 Córdoba Sobrecubierta cuadrado blanco Marca Interceramic BAÑO BAÑO PPAL

Desarrollo baranda

Se encuentra una oportunidad de diseño en la baranda, se propone un elemento tipo celosía y que cumpla su función.

Asimismo se aprovecha el espacio residual debajo de la escalera, proponiendo una bodega.

Planta

Morales

Detalles construcción baranda

18 l Casa Maple GSPublisherVersion 834.28.31.100 GSEducationalVersion NOMBRE DE PROYECTOPLANO DIBUJÓ D 01 B D 02 B D 04 B D 03 B D 05 B Celosía / Barandal de barrote de madera de pino B 02 B 01 B 03 B 04 Balustradas de barrote de madera de pino 1" x 1 Riel superior de barrote de madera de pino 1 1/2" x 3 1/2" Tornillo para madera Balustradas de barrote de madera de pino 1" x 1" Riel inferior de barrote de madera de pino 1 1/2" x 3 1/2" Tornillo para madera Balustradas de barrote de madera de pino 1" x 1 Riel superior de barrote de madera pino 1 1/2" x 3 1 Tornillo para madera Balustradas de barrote de madera de pino 1" x 1" Riel inferior de barrote de madera de pino 1 1/2" x 3 1/2" Escalón de firme de concreto recubierto con madera de pino Pernos de anclaje de madera a concreto BAJA 910111213141516 17 BARANDAL BARANDAL B B01 01 B 0 2 B 03 B 03 B 0 4 CARP Isométrico Escaleras :20 Corte B 01 1:30 CARP D 01 1:20 CARP D 04 1 20 CARP D 02 CARP D 04 1:20 Corte B 02 1:30 Corte B 03 1 Escalera30 Cortes Barandal 1 20 Casa Maple Detalle Barandal Catalina
NOMBRE DE PLANO ESCALA PROYECTOCLAVE DIBUJÓ D 01 B D 02 B D 04 B D 03 B D 05 B Celosía / Barandal de barrote de madera de pino B 02 B 01 B 03 B 04 Balustradas de barrote de madera de pino 1 x Riel superior de barrote de madera de pino 1 2 x 3 2 Tornillo para madera Riel inferior de barrote de madera de pino 1 2 x 3 2 Balustradas de barrote de madera de pino " x Riel superior de barrote de madera de pino 2" x 3 /2 5 cm Balustradas de barrote de madera de pino " x 1 Riel inferior de barrote de madera de pino / " x 3 1 2 Tornillo para madera Balustradas de barrote de madera de pino " x Riel superior de barrote de madera de pino 1 2 x 3 2 Tornillo para madera Balustradas de barrote de madera de pino 1 x Riel inferior de barrote de madera de pino 1 2 x 3 2 Escalón de firme de concreto recubierto con madera de pino Pernos de anclaje de madera a concreto Balustradas de barrote de madera de pino x Muro de tabique aplanado y pintado Resistol No más Clavos adhesivo de montaje fuerte y fácil BAJA 910111213141516 17 BARANDAL BARANDAL BARANDAL B B01 01 B 0 2 B 0 2 B 03 B 03 B 0 4 B 0 4 Tapa de madera Vista desde bodega Tapa de madera Vista desde escalera CARP Isométrico Escaleras 20 Corte B 01 30 Corte 04 30 CARP D 01 20 CARP Partes del Barandal 20 CARP D 04 20 CARP D 02 1 20 CARP D 04 20 CARP D 03 20 Corte B 02 30 Corte B 03 Escalera30 Cortes Barandal 20 CARP D 05 20 Casa Maple Detalle Barandal Catalina Morales Según dibujo CARP - 03 PROYECTO D 01 B D 02 B Celosía / Barandal de barrote de madera de pino B 01 B 03 B 04 BAJA 910111213141516 17 BARANDAL BARANDAL BARANDAL B B01 01 B 0 2 B 0 2 B 03 B 03 B 0 4 B 0 4 CARP Isométrico Escaleras Escalera Cortes Barandal 1 20
8 l Casa Maple

CONSULTORIO MÉDICO

INFORMACIÓN:

Proyecto: Consultorio cardiología y oftalmología

Ubicación: Hospital San José Moscati, Querétaro

Año: 2021

Colaboración: Oliveros Grajeda Arquitectura

Workflow: Archicad, illustrator y 3ds max

SOBRE EL PROYECTO:

Se busca dividir el espacio en dos consultorios con un área de recepción compartida. Se tienen en cuenta las condiciones de cada especialidad, donde el mobiliario toma un papel fundamental para el diseño, distribución y optimización de espacio.

19

Espacio existente del consultorio

Este consultorio es entregado en agosto

2021, donde se busca primero rentar los consultorios y luego darle uso propio para la consulta médica de los 4 doctores propietarios.

Etapa 0: Espacio existente

Etapa 1: División de espacio para 2 consultorios y recepción

20 l Consultorio

DISTRIBUCIÓN PLANTA

Etapa 2: Adaptar el área de recepción por medio de mobiliario diseñado

Distribución final visto en planta

1,0001,000 0,950 1,000 1,400 2,900 2,500 2,000 2,150 0,950 1,000 0,650 0,600 0,450 0,600 1,090 0.985 0,500 0,550 0,5000,600 1,200 1.900 1.600 0,650 1,095 1,300 CONSULTORIO OFTALMOLÓGICO CONSULTORIO CARDIOLOGÍA PRUEBA DE ESFUERZO RECEPCIÓN RECEPCIÓN 14.00 m2 1.70 m2 6.81 m2 6.91 m2 13.75 m2 BAÑO CONSULTORIO CARDIOLOGÍA PRUEBA DE ESFUERZO CARDIOLOGÍA OFTALMOLOGÍA ACCESO ÓPTICA BAÑO SALA DE ESPERA
Etapa 3: Disponer del mobiliario para los consultorios de cardiología y oftalmología
21
Render planta distribución final Render hecho por: Andrea Oliveros Se comprenden los distintos comportamientos en cada uno de los espacios para generar el diseño interior FUNCIONAMIENTO DIAGRAMA GENERAL 1 2 3 3 1 2 O C 2 3 1 RECEPCIÓN1 2 3 1 2 RECEPCIÓN CARDIO / TRAUMAFUNCIONAMIENTO DIAGRAMA GENERAL 1 2 3 3 1 2 RECEPCIÓN OFTALMOLOGÍA CARDIO / TRAUMA 22 l Consultorio

ESCUELA DE ARTES Y OFICIOS

Foto tomada por Fundación Hogares

INFORMACIÓN:

Proyecto: Taller de arquitectura ciudadana Ubicación: Jojutla, Morelos

Año: 2019

Colaboración: Fundación Hogares y Tecnológico de Monterrey Workflow: Archicad y photoshop

SOBRE EL PROYECTO:

Tras el sismo del 2019 la alianza de varios actores dio la oportunidad de desarrollar el proyecto ejecutivo mediante la metodología BIM de una escuela de artes y oficios (incluyendo su construcción) para impulsar la economía de la ciudad. Trabajando de la mano con la comunidad.

23

Mapa

Vecinos

24 l Escuela
[#imagen]Mapa mental de percepción del contexto urbano.Jojutla de Juárez, Mor. 31/01/2019
realizando mapa mental (26 de enero, 2019)
mental de percepción del contexto urbano (31 de enero, 2019)

Se realizó diseño participativo, donde fue posible detectar las necesidades de la comunidad. Se propuso un espacio flexible y adaptable para darle un uso distinto según horario y necesidad.

Perspectiva proyecto

Planta de conjunto con edificios preexistentes
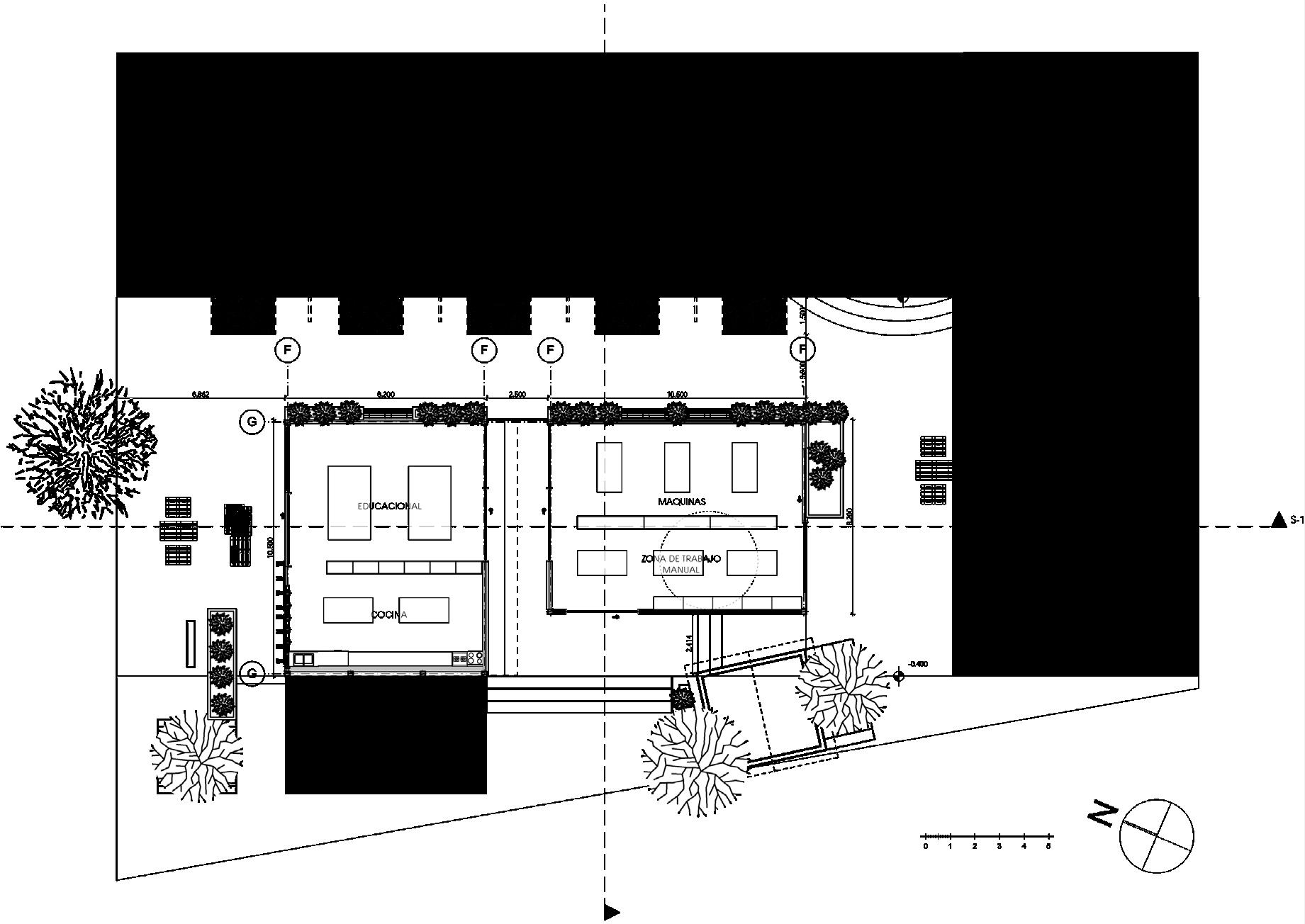
Planta baja Escuela de artes y oficios
25

proyecto duró alrededor de

meses y fue realizado por

participativo

de 4 proyectos

Renders por José Manuel Alonso

Al dialogar con las estructuras ya existentes y emplear el espacio residual que había, este sería una extensión de los espacios para que comunidad pudiera apropiarse del proyecto.

de proyecto

de proyecto

El
8
etapas: 1. Diseño
2.Propuesta
distintos 3. Selección
4.Desarrollo
ejecutivo 5.Prefabricación 6.Ensamblaje 26 l Escuela
Catalina Morales Plazas catamoralesp@hotmail.com +52 4424636854

Turn static files into dynamic content formats.

Create a flipbook
Issuu converts static files into: digital portfolios, online yearbooks, online catalogs, digital photo albums and more. Sign up and create your flipbook.
Portafolio 2022 by Catalina Morales - Issuu