Casey Westerman Portfolio

Page 1

Casey Westerman

A New England native, I’ve been interested in design since I was a little kid touring construction sites with my dad. Constantly finding myself curious what the interior would look like, I found my niche in interior design early on.

My relentless enthusiasm has extended into my professional career where I find myself most passionate about creating purpose-driven spaces. Within my projects, I take pride in my strength of crafting compelling graphics that help illustrate our design concepts to our clients. Whether it’s in-studio or digitally, I thrive on opportunities to think creatively & collaborate with teammates.

What inspires me most isn’t the end-result but the collaborative design process where ideas transform into solutions. It’s the feeling that my voice can have the power to make a difference simply by asking a new question, that makes me love what I do for a living.

Get in touch! Connect

casey.westerman14@gmail.com

860.519.8659

on LinkedIn

Casey Westerman

IIDA, NCIDQ, LEED AP ID+C

Awards & Achievements

Interior Design Magazine’s 30 Under 30:

Boston Interior Designers

Class of 2023

Education

Master of Arts, Interior Architecture, 2019 Endicott College

Bachelor of Fine Arts, Interior Architecture, 2018 Endicott College

Work Experience

Perkins&Will, 2019-Present Interior Designer

Washington, D,C. I Boston, MA

Fusion Design Consultants, 2018-2019

Intern & Project Designer Boston, MA

The Architectural Team, 2017-2018

Intern

Chelsea, MA

Tecton Architects, 2016 - 2017

Intern

Hartford, CT

Accreditations

National Council for Interior Design

Qualification

NCIDQ Certification No. 35840

LEED AP ® ID+C

U.S. Green Building Council®

Project Experience

Corporate Interiors

American Institute of Architects

Headquarters

Workplace Strategy, COVID-19 RTW Planning Washington, DC

Confidential Client Government Affairs Office

Workplace Strategy, Tenant Fit-Out Washington, DC

Brownstein Hyatt Farber Schrek Office Expansion Washington, DC

Nixon Peabody

Workplace Strategy, Tenant Fit-Out Chicago, IL

Northpond Ventures

Redesign Services, Furniture Package

Bethesda, MD I San Francisco, CA I Cambridge, MA

Perkins&Will

Washington Studio, Tenant Fit-Out

Washington, DC

U.S. Green Building Council

Headquarters

Workplace Strategy, Tenant Fit-Out

Washington, DC

Corporate and Commercial

120 Middlesex

Lab Science Building, Lobby & Amenities

Somerville, MA

17 Farnsworth

Lab Science Building, Lobby & Amenities Boston, MA

Health

Lilavati Hospital

Hospital Project, Lobby & Amenities Gujarat, India

Government

FDIC Chief Innovation Office

Headquarters

Tenant Fit-Out Arlington, VA

Federal Energy Regulatory Commission

Headquarters

Construction Administration

Washington, DC

U.S. Office of Personnel Management

Workplace Strategy

Washington, DC

Professional Affiliations

International Interior Design Association (IIDA)

New England Chapter I Sponsorship Committee

Mid-Atlantic Chapter I Propelling Leadership

+ Advocacy in Interior Design (PLAID) Program Committee

U.S. Green Building Council (USGBC) Member

Expertise

Technical Design

Graphics & Illustration

Client Engagement

Programming & Space Planning Analysis

Conceptualization & Client Visioning

Living Design / LEED, WELL, LBC

Application Skills Revit

Enscape Adobe Suite
Microsoft Office AutoCAD Interests Reading
Sports & Fitness Foodie Travel

Corporate Interiors

Workplace Strategy & Tenant Fit-Outs

U.S. Green Building Council

Washington, D.C.

Client: U.S. Green Building Council

Firm: Perkins&Will

Size: 13,535 sqft

Location: Washington, D.C.

Year: 2022

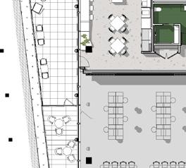
Creating Stories You Can Touch

Drawing from the iconic USGBC brand, the new space highlights innovative strategies and immerses employees & visitors a one-of-a-kind experience.

The fluid geometry articulates the main circulation path, steering users to their destination. Emphasizing sustainability, and the Living Standard - curated educational content celebrates all of the USGBC brands.

Project Awards

Jurors’ Citation, Design for Resources

AIA Washington, D.C. Chapter Design Awards, 2023

Living Design

ENERGY EFFICIENCY

Optimize energy performance by 24% beyond baseline target.

SUSTAINABILITY

Working towards LEED Platinum Certification

WELLNESS

Working towards WELL Gold Certification

WASTE DIVERSION

Working towards TRUE Gold Certification.

Knowledge Library

CLEAN MATERIALS

55 Interior Products included ingredient health documents

ACCESS TO DAYLIGHT

Prioritization of social spaces for all occupants near daylight & views.

BIOPHILIA

Materials Palette

Design with Purpose, Finalist

IIDA Mid-Atlantic Chapter Premiere Design Awards, 2023

FOCUS Wellness Award

ASID National Awards, 2023

Live plants throughout the space and a nature inspired materials palette.

FURNITURE REUSE

60% of the total furniture cost was reused, including reconfigured offices & workstations.

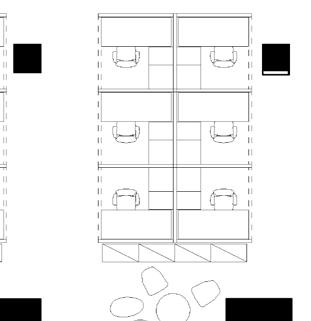
A key component to the design of USGBC’s HQ space was researching & specifying healthy building materials. The Knowledge Library is a public-facing resource that features 112 innovative materials and products selected and installed on the project that demonstrate human health + environmental benefits. The cards display a variety of finish materials, furniture pieces, lighting fixtures, appliances, and plumbing equipment. Material specifications like transparency disclosures, recycled content percentages, and manufacturing locations are listed on the backside to understand the impact of design materials on buildings and its occupants.

WDF-1 SSM-1 PL-1 CPT-3 PL-2 SSM-2 CPT-4 AWU-1 UWS-1 P-1 T-1 RF-1 Task Chair Furniture Herman Miller Aeron Chair Designed by Bill Stumpf and Don Chadwick, 1994 Carpet Tile Finishes Inspired by the Japanese aesthetics of minimalism, restoration, and the organic beauty of the natural world. Interface Embodied Beauty Refrigerator Appliances Bosch 800 Series Refrigerator

Confidential Client

Washington, D.C.

Client: Confidential Client

Firm: Perkins&Will





  

Size: 12,739 sqft

Year:

Location: Washington, D.C.

Journey Mapping 

 

REMAINING TENANT SUITE: 6,135 USF BUILDING AMENITY SUITE (NIC) FIRST STREET M STREET CUSHING STREET L STREET ROOM TOWN HALL RESTROOM HUB PARENTS' FOCUS ROOM WELLBEING/ STG WORK FOCUS BOOTH MEETING FOCUS ROOM MEETING BOARDROOM FOCUS PODFOCUS POD FOCUS PODFOCUS POD FOCUS POD WORKSPACE TERRACE CORRIDOR STG WORK TERRACE

Project Site

  



   

BP -Washington DC MAKE A STATEMENT IN THE FIRST MASS TIMBER PROJECT IN WASHINGTON, DC artist rendering

    
The project site, 80M St is the first mass timber new construction in the city. Occupying the penthouse floor, the tenant suite boasts 15ft ceilings and two outdoor terraces. Full-height glazing offers views over the Anacostia Riverfront and the Washingto n Monument.
FLOOR FINISH PLAN

Design Vision

The project aims to be a showpiece & pilot for the client’s transformation initiatives, highlighting sustainable design, and a commitment to net-zero. The space will host VIPs so it needs to be welcoming while also impressive and functional for day-to-day operations.

Taking inspiration from the juxtaposition of traditional & modern elements throughout Washington, DC, the finish palette brings in natural materials to contrast man-made elements like glass, concrete & steel. The structure of the building sets the stage with striking mass-timber framing set against full-height glass that offers expansive views over Navy Yard.

Project Goals

Globally Consistent & Regionally Flexible Functional Balance & Variety Personal Choice

Celebrate the global brand while reflecting an understanding of D.C.’s regional identity.

Deliver a thoughtful, and inspiring workplace that is fit for purpose & built for the future.

Adaptability of Space

Create a welcoming space that balances the need for privacy with public spaces to receive and host guests.

Provide quality spaces that give employees agency in work environments.

MEET BOARD GATHER

Nixon Peabody

Chicago, IL

← Design Concept

Client: Nixon Peabody

Firm: Perkins&Will

Size: 54,080 sqft

Location: Chicago, IL

Year: 2020

Critical to Nixon Peabody’s identity is their welcoming Mid-Western culture. The main reception floor is organized on the principles of Frank Lloyd Wright’s prairie style. Cantilevered details and horizontal gestures help to make the reception and conferencing spaces feel warm & inviting. The entry experience transports visitors from the foyer towards the back porch where 1” downlights scattered across the ceiling mimic a starry night above Chicago’s skyline.

Methodology

Activities that informed the design strategy included: visioning & goal setting focus group, imaging session, and employee web survey.

Areas of Focus

Level 52

Perkins&Will DC Studio

Project Description

Perkins&Will’s new DC studio was designed to serve as a “showroom” where the process of design could be on display. The materials library, café, model shop, and collaboration spaces are within view of the reception lounge, giving visitors a glimpse into our work.

The design team sought to create a welcoming & highly flexible space, while demonstrating leadership in Living Design (Pursuing LEED / WELL / Living Building Challenge & Fitwell). A central large conference room with an operable glass partition helps maximize access to daylight, and fosters a transparent and engaging atmosphere for collaboration.

Client: Perkins&Will

Firm: Perkins&Will

Size: 11,046 sqft

Location: Washington, D.C.

Year: 2021

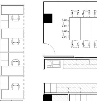
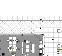
D.C. FOCUS COATS TEAM FOCUS FOCUS COPY PRINT SERVER FURN STG RECEPTION LOCKERS LOCKERS MED CONF MED CONF LIBRARY TEAM TEAM STG LRG CONF CAFE STG PH OPEN OFFICE QUIET WELL MODEL SHOP
Washington,

Living Building Challenge

We researched and identified Red List Free alternatives to materials and finishes commonly used (i.e. metal studs, plastic laminate) that contain Red List ingredients.

FDIC Chief Innovation Office

Arlington, VA

Planning Approach

The FDIC Chief Innovation Office Suite is located within the context of the B Building of FDIC’s Virginia Square Campus. Ribbon glass windows flank the right side of the plan and top / bottom corners plan left. The best views of the courtyard are planned as public space for the pantry and collaboration areas while the corner spaces are given to multi-flex meeting spaces.

Client: FDIC

Firm: Perkins&Will

Size: 16,015 sqft

Location: Arlington, VA

Year: 2022

UP Scale: 1/8" = 1'-0" VaSq 7th Floor Plan 04/12/21 LEVEL 07 461 SF CONF. MULTI-FLEX 297 PANTRY SOFT DISC. 222 MULTI-FLEX 244 EXEC. OFFICE MULTI-FLEX PRESENT 207 MULTI-FLEX COLLAB PRESENT EXEC. OFFICE OFFICE OFFICE OFFICE OFFICE 127 OFFICE OFFICE 128 OFFICE EXEC. OFFICE MULTI-FLEX 182 MULTI-FLEX FURN. STOR COPY WORK ROOM COATS STOR PH W/S 138 OFFICE OFFICE 138 OFFICE 138 OFFICE 138 OFFICE 138 OFFICE OFFICE 138 OFFICE 287 W/S FOCUS PH FOCUS FOCUS 262 SF SOFT DISC. 266 SOFT DISC. 203 EXEC. OFFICE EXEC. OFFICE SOFT DISC. SOFT DISC. Scale: 1/8" = 1'-0" VaSq 7th Floor Plan 04/12/21 Noon Sunset Sunrise Views Views Courtyard
Key Plan Living Design The design of the CINO suite includes a number of health and wellbeing enhancements. * * * * * Active Design Variety of Spaces Daylight Harvesting Healthy Materials Connection to Nature

Materials Palette

Active Collaboration Tiered Content-Centered Casual Living Room
Furniture Package: Multi-Flex Space Types
Casey Westerman casey.westerman14@gmail.com 860.519.8659 Thank you!

Turn static files into dynamic content formats.

Create a flipbook
Issuu converts static files into: digital portfolios, online yearbooks, online catalogs, digital photo albums and more. Sign up and create your flipbook.