Plot 6 APV

Page 1


Lote para Construção de Moradia Geminada T4 | Ferragudo

Arade Premium Village, Lote 6

Lote para Construção | 250m² | 436 m² | Ar condicionado | Piscina Privada | Preço Pedido :€ 260.000

Descubra esta deslumbrante moradia geminada em Arade Premium Village, um empreendimento de luxo localizado em Bela Vista, perto da pitoresca aldeia de Ferragudo Esta residência conta com 4 quartos espaçosos e 4 casas de banho modernas, garantindo espaço e privacidade suficientes para toda a família. Além disso, dispõe de um escritório no rés-do-chão

Construction Plot for 4-bedroom Semi-Detachted Villa l

Ferragudo Arade Premium Village, Plot 6

Plot for Construction | 250m² | 436 m² | Air Conditioning| Private Pool | Asking Price:€ 260.000

Discover this stunning semi-detached villa in Arade Premium Village, an upscale development nestled in Bela Vista, near the picturesque village of Ferragudo This residence features 4 spacious bedrooms and 4 modern bathrooms, ensuring enough space and privacy for the entire family Additionally, there is a dedicated office on the ground floor

Arade Premium Village

Localizado em Belavista-Ferragudo, na prestigiada região do Algarve, encontra-se uma oportunidade única apresentada pela Carvoeiro Branco: o Arade Premium Village Este projeto exclusivo oferece uma ampla variedade de opções habitacionais, incluindo lotes para moradias isoladas e geminadas, moradias chave-na-mão, moradias em banda e apartamentos, garantindo que todas as preferências dos compradores sejam atendidas

Ver localização exata: aqui

Arade Premium Village

Located in Belavista-Ferragudo, within the highly sought-after Algarve region, lies a unique opportunity by Carvoeiro Branco: AradePremium Village. This unique project offers a diverse array of housing options, including building plots for detached and semi-detached villas, turnkey villas, townhouses, and apartments, ensuringthat all buyer preferences are catered for.

See exact location: here

Com uns impressionantes 250 m² de área interior, a moradia oferece um layout generoso e bem planeado, garantindo uma transição harmoniosa entre as divisões. A propriedade encontra-se inserida num lote de 436 m², que inclui uma piscina privada e um jardim.

Construída de acordo com os mais altos padrões da arquitetura moderna, esta residência equilibra perfeitamente espaço e conforto. Cada divisão é generosamente dimensionada, com casas de banho privativas, oferecendo todos os luxos e comodidades que se esperam de uma moradia geminada de alta gama.

With an impressive 250 m² of interior space, the villa offers a generous and welldesigned layout, providing a seamless flow between rooms The property is set on a 436 m² plot, which includes a private pool and a garden.

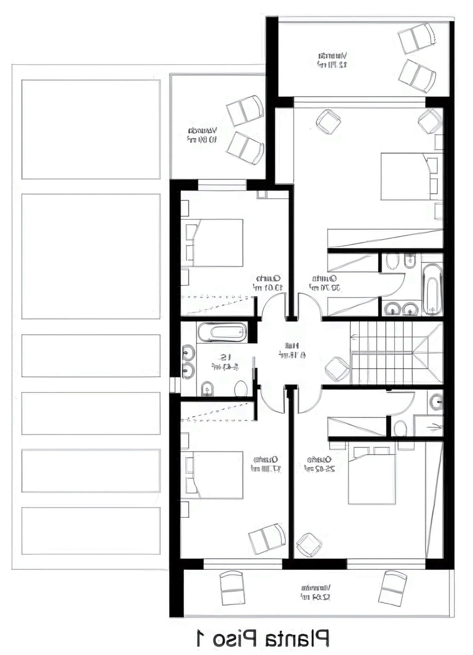
Plantas 2D and 3D

2D and 3D plans of the semi-detached villa

2D Plan Ground Floor

Turn static files into dynamic content formats.

Create a flipbook
Issuu converts static files into: digital portfolios, online yearbooks, online catalogs, digital photo albums and more. Sign up and create your flipbook.
Plot 6 APV by Carvoeiro Branco - Issuu