Senior Capstone

Page 1

A MULTI - MODAL TRANSPORTATION

HUB FOR OKLAHOMA

Page 1 ARCH 4216 INTEGRATIVE DESIGN 2023_04-12 CARSON VOELKER

Downtown Edmond boasts a array of dining, shopping, and entertainment venues within its historic blocks. Along its streets and sidewalks locals and tourists alike come together for festivals, live music, and monthly food truck events. Each architectural piece along Broadway boasts rich Oklahoma roots, with luminous red brick, ornate details, and a human scale experience.

Contrasting from the stout brick buildings along Broadway and scattered throughout Edmond, industrial forms rise on the other side of the tracks. These metallic gables and angular entities also withhold the rich past and history of Edmond, but rather its industry and railway riches. The Edmond Rail yard acts as a precedent for our group, demonstrating the development of a local idea for industrial architecture reuse.

CONCEPT TEXT AND TYPOLOGY

ARCH 4216 INTEGRATIVE DESIGN Page 2 2023_04-12 CARSON VOELKER

INDUSTRY

HISTORY

CONCEPT COLLAGE

LINE RAILROAD

SPLIT PROGRAM

ROTATE FOR CIRCULATION

RAISE THE ROOF!

VOID FOR HIERARCHY

PIERCE FOR LIGHT

ARCH 4216 INTEGRATIVE DESIGN Page 4 2023_04-12 CARSON VOELKER

MASTER PLAN AXONOMETRIC

MIXED USE

PARKING

TRAIN LINE

TRAIN STOP

BUS STOP TERMINAL

MIXED USE

RETAIL PEDESTRIAN BRIDGE

MIXED USE

CARSON VOELKER ARCH 4216 INTEGRATIVE DESIGN Page 5 2023_04-12
ARCH 4216 INTEGRATIVE DESIGN Page 6 2023_04-12 CARSON VOELKER SITE PLAN | 1” = 50’ - 0”
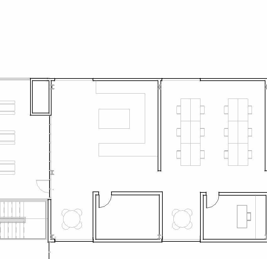
LEVEL 01 PLAN | 1” = 16’ - 0”
MECHANICAL 1 DELIVERY ROOM WOMENS SUITE MENS SUITE
MECH 2 COFFEE
LOBBY HALLWAY RETAIL ONE RETAIL TWO
TICKET OFFICE TERMINAL LOBBY SHOP
ARCH 4216 INTEGRATIVE DESIGN 2023_04-12 A112 CARSON EMMTH 1" = 20'-0" LEVEL 2 - Final LEVEL 02 PLAN | 1” = 16’ - 0” OUTDOOR TERRACE WORKROOM DISPATCH OFFICE OPEN OFFICE SECURITY OFFICE OPEN TO BELOW CLOSED OFFICE FILE ROOM RECEPTION
CARSON VOELKER ARCH 4216 INTEGRATIVE DESIGN Page 9 2023_04-12
PRIMARY SCHOOL ZP - DMVA ARCHITECTEN NURSERY - FOLES ARCHITECTS 612 NW 6TH ST - COMMON WORKS NORWICH COLLEGE - COFFEY ARCHITECTS O78! WAREHOUSE RENOVATION - TANGRAM ARQUITECTURA + DISEÑO THE WELL - AHMM MANOR WORKS - ARCHITECTURE 00 BOARD AND BATTEN WOOD INTERIOR STACK BOND RED BRICK WHITE CORRUGATED METAL PANEL PERFORATED METAL PANEL
MATERIALITY
ARCH 4216 INTEGRATIVE DESIGN Page 10 2023_04-12 CARSON VOELKER
ONE | 1” = 16’ - 0”
| 1”
- 0”
ELEVATION | 1” = 16’ - 0”
SECTION
EASTERN ELEVATION
=16’
SOUTHERN

SOUTHERN LAWN APPROACH

CARSON VOELKER ARCH 4216 INTEGRATIVE DESIGN Page 11 2023_04-12
ARCH 4216 INTEGRATIVE DESIGN Page 12 2023_04-12 CARSON VOELKER FRONT ENTRY

TERMINAL WAITING HALL

Page 13 2023_04-12 CARSON VOELKER ARCH 4216 INTEGRATIVE DESIGN
Page 14 ARCH 4216 INTEGRATIVE DESIGN 2023_04-12 CARSON VOELKER INTERIOR LOBBY
CARSON VOELKER ARCH 4216 INTEGRATIVE DESIGN Page 15 2023_04-12 TRACK VIEW
CARSON VOELKER ARCH 4216 INTEGRATIVE DESIGN Page 16 2023_04-12 NIGHT ENTRY
CARSON VOELKER ARCH 4216 INTEGRATIVE DESIGN Page 17 2023_04-12 BAY MODEL AND WALL SECTION

STRUCTURAL AXONOMETRIC

ARCH 4216 INTEGRATIVE DESIGN Page 18 2023_04-12 CARSON VOELKER
W8 X 31 W33 X 118 W8 X 31 W12 X 14 W12 X 14 W12 X 40 W12 X 14 W12 X 19

EXPLODED SYSTEMS AXONOMETRIC

CORRUGATED METAL ROOF

STEEL AND TIMBER STRUCTURE

LEVEL 02

MECHANICAL SYSTEM

EXTERIROR SKIN - EXPLODED GROUND LEVEL

CARSON VOELKER ARCH 4216 INTEGRATIVE DESIGN Page 19 2023_04-12

Turn static files into dynamic content formats.

Create a flipbook
Issuu converts static files into: digital portfolios, online yearbooks, online catalogs, digital photo albums and more. Sign up and create your flipbook.