Portafolio Carlos Quiroz Ortiz

Page 1


PORTAFOLIO

CARLOS ANTONIO QUIROZ ORTIZ - 2024

PROYECTOS

El presente documento es un compendio de trabajos y archivos unicamente desarrollados por el propietario. Se utilizara como herramienta expositiva para los fines adecuados y solicitados por parte de un proceso de convocatoria, mostrando las habilidades en distintos programas y la capacidad de conocimientos relacionados a la arquitectura.

RESIDENCIA

CONJUNTO RESIDENCIAL BARRIOS ALTOS

Tema:

Conjunto Residencial con zócalo comercial en el distrito de Barrios Altos

Concepto:

El objetivo principal del diseño fue crear un edificio que se mezcle armoniosamente con su entorno. Se destacó la esquina del edificio con una entrada imponente para recibir a las personas que llegan desde el Centro de Lima a través del Jr. Atahualpa. La fachada se compone de dos elementos principales: uno consiste en zócalo comercial de forma regualar, mientras que el otro utiliza bloques planos con ventanas rectangulares desfasadas, lo que crea un patrón interesante en los pisos superiores del edificio.

Concepto

El edificio de apartamentos tiene una estructura en forma de ‘‘X’’, con cuatro partes que se entrelazan entre sí mediante dos puentes ubicados estrategicamente en los niveles tercero y quinto. Esta disposición arquitectónica no solo crea una estética visualmente interesante, sino que también cumple una función práctica al generar dos áreas centrales de reunión , las cuales se conectan con los espacios laterales que se forman debido a que los cuatro brazos del edificio no están alineados paralelamente entre sí, sino que están rotados ligeramenten de acuerdo a la forma del terreno.

COMPOSICIÓN

Circulación 5to nivel

Circulación 4to nivel

Circulación 3er nivel

Circulación 2do nivel

Departamentos

Puentes conectores

ESQUEMA

Circulación vertical

Areas comunes

Terreno

Puentes conectores

Linea Amarilla

Descripción

Los departamentos cuentan internamente con una sala comedor, cocina tipo americana, baño, ademas de la cantidad de dormitorios de acuerdo al tipo de departamento, uno de los dormitorios es el principal que tambien cuenta con baño privado. Los corredores internos cuentan con un descanso o terraza que sirve para la iluminación y ventilación de los mismos. Los puentes son abiertos lo cual permite aún ingreso de luz mayor.

Linea 1

Techos verdes

Puentes

Circulaciones

Iluminacion y ventilación en corredores

Descripción:

El edificio de apartamentos ha sido concebido con una estructura única en forma de “X”, donde cuatro secciones se entrelazan entre sí mediante dos puentes estratégicamente ubicados en los niveles tercero y quinto. Esta disposición arquitectónica no solo crea una estética visualmente interesante, sino que también cumple una función práctica al generar dos áreas centrales de reunión. Estas áreas no solo sirven como espacios de encuentro, sino que también actúan como puntos de conexión con los espacios laterales del edificio. La singularidad de esta disposición se debe a que los cuatro brazos del edificio no están alineados paralelamente entre sí, sino que han sido ligeramente rotados para adaptarse a la forma del terreno donde se encuentra construido el edificio. Esta rotación no solo agrega un elemento distintivo al diseño, sino que también permite aprovechar al máximo las vistas y la luz natural disponible, creando así un ambiente interior más agradable y dinámico para los residentes.

COMERCIO

MERCADO DE FLORES DE ACHO

Tema:

Recuperación y remocelación del Mercado de flores de Acho

Concepto:

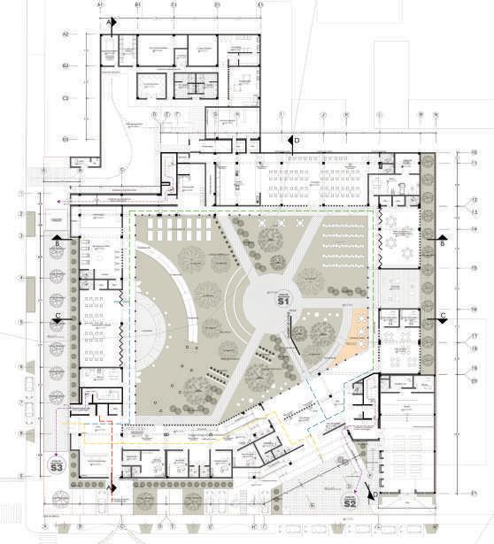
El diseño del Mercado de Flores de Acho tiene como objetivo proporcionar un alivio a la congestión que ha experimentado el Cerro San Cristóbal y abordar la falta de permeabilidad en la zona. El mercado consta de 665 puestos de venta, tanto permanentes como temporales. El proyecto se enfoca en ser respetuoso con el medio ambiente, utilizando materiales de manera eficiente y promoviendo la reutilización del agua y los residuos orgánicos generados en el mercado. Con estas medidas, se busca revitalizar el distrito y fomentar el empleo formal y de calidad en la zona.

El Potao

EVITAMIENTO

Se tiene la idea incial de recuperar el espacio público y liberar lo congestionado y denso del Mercado de Flores de Acho, para ello se considerara la permeablidad como concepto gestor del proyecto, logrando asi conectar el Rimac con el Cercado de Lima. Esta permeabilidad ademas de estar presente en las areas libres entre cada bloque, se percibe en la primera planta , facilitando asi la conección entre lo puentes de la Av 9 de Ocutubre y el Puente Setame. Por último la misma tipologia permite enfatizar en la sostenibilidad y favorecer al medio ambiente, por lo que se destina una gran área para la vegetación natural, asi como terrazas verdes que son un respiro entre cada módulo.

Centro de Esparcimiento
Centro de Salud Piedra Liza
Puente SETAME
Puente 9 de Octubre Pág 5

MERCADO DE FLORES DE ACHO

MERCADO DE FLORES DE ACHO

MERCADO DE FLORES DE ACHO

MERCADO DE ACHO CÁTEDRA : + CARLOS ORTIZ

TALLER : ARQUITECTURA Y CIUDAD

TALLER : ARQUITECTURA Y CIUDAD

TALLER : ARQUITECTURA Y

TALLER : ARQUITECTURA Y CIUDAD

CICLO : 2022-01

CICLO : 2022-01

CÁTEDRA : CHIANG + ZUSSNER

CICLO : 2022-01 CÁTEDRA : CHIANG + ZUSSNER

ALUMNO : CARLOS QUIROZ ORTIZ

ALUMNO : CARLOS QUIROZ ORTIZ

NIVEL

CÁTEDRA : CHIANG + ZUSSNER

: CARLOS QUIROZ ORTIZ

Primera planta
Segunda planta Tercera planta

EDUCACIÓN

Estrategias:

Iluminación y ventilación

Cliente:

AVANCE (Internacional)

Tema:

Desarrollo de AVANCE, un instituto de eduacion juvenil en Texas

Concepto:

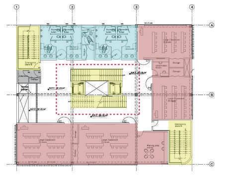
El Instituto AVANCE se ha diseñado con la idea de mantener una apariencia simple desde el exterior. La disposición interior se ha resuelto de forma sencilla, con un diseño de circulación tipo atrio, donde los ascensores se encuentran en la parte central y se conectan con las escaleras de emergencia ubicadas en los extremos del edificio.Además, el proyecto está pensado para adaptarse a las condiciones climáticas de Texas. Para lograrlo, se utilizarán cerramientos como celosías y persianas plegables (folding shutters), los cuales ayudarán a controlar la entrada de luz y la ventilación, manteniendo así un ambiente interior confortable y eficiente energéticamente.

Ubicación: Texas- San Antonio - EEUU

Circulación y vistas

Educación

Administración

Baños

Circulación

Servicios

Primera planta
Segunda planta
Tercera planta
Cuarta planta

A B C

57'-8.91''

Dataroom

Dataroom

11.81''

Sistema de ventilación
Sistema estructural

PROYECTO PÚBLICO

Trabajo: Título

Tema:

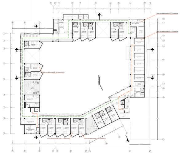
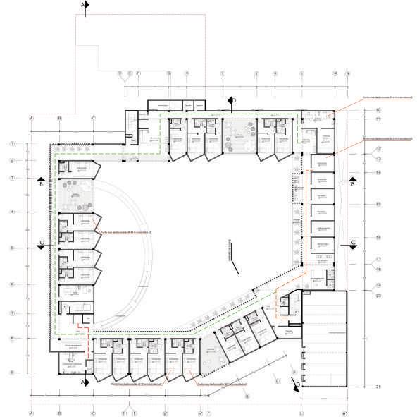
RESIDENCIA ADULTO MAYOR SAN MIGUEL

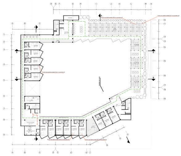
Centro Residencial Para el Adulto Mayor San Miguel

Concepto:

Respondiendo a la demanda de protección residencial para el Adulto Mayor y al incremento de la misma durante la etapa de pandemia, ademas de la falta de infraestructura de este equipamiento en el distrito de San Miguel - Lima, este proyecto busca ser la solución para dichas deficiencias, ademas de brindar un diseño de calidad para que el Adulto mayor pueda disfrutar durante su estadia de un espacio adaptado a todas sus necesidades y limitaciones, cumpliendo con las reglementaciones y el diseño de accesibilidad universal.

Descripción

El diseño del proyecto aprovecha la forma cuadrangular del terreno para crear un espacio de planta tipo atrio con una sola crujía y un amplio espacio central, cumpliendo con los parámetros urbanos requeridos. En el primer nivel se encuentran las áreas comunes obligatorias según las especificaciones del MIMP, con un patio trasero para los servicios, mientras que a partir del segundo nivel se distribuyen las habitaciones destinadas a adultos mayores, diseñadas para satisfacer sus necesidades particulares. Se prioriza el cumplimiento de las reglamentaciones nacionales, garantizando el confort del usuario y considerando el carácter público del proyecto, que busca no solo atender las necesidades individuales de los residentes, sino también contribuir positivamente al entorno comunitario.

DESARROLLO

En una escala mayor se ha desarrollado un sector del proyecto de manera más detallada , para ver materiales, acabados, medidas y vanos, con la finalidad de entender mejor el proyecto. Se observa el criterio estructural con el que se ha dispuesto que la capilla de doble altura trabaje de manera independiente, separado por juntas sismicas reglamentarias. Arquitectonicamente a esta capilla se la ha diseño un teño tipo diente de sierra con la finalidad de genera un ingreso de luz controlado y dirigido, caracteristico de este tipo de espacios

PLANTA SECTOR

Corte A-A

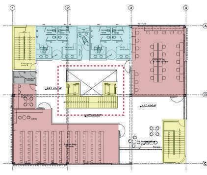
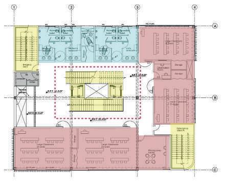
OFICINA 3 PISOS

DESCRIPCIÓN

Trabajo realizado en Revit 2024. Tres niveles de oficina. Se realizó diseño, zonificación, calculo de áreas, metrados de acabados de ambientes, puertas , ventanas , equipos sanitarios. Cortes isometricos, detalles, renders interiores y exteriores.

LEYENDA

ALMACÉN

ARCHIVO

HALL DE INGRESO

SS.HH Hombres

SS.HH. Mujeres

ÁREA ADMINISTRATIVA

ÁREA CONTABLE

RENDERS LIBRES

Mueble-Sala

LUMION Y VRAY

Mueble-Sala

Ident-Group

Ident-Group

Dormitorio

Dormitorio

Turn static files into dynamic content formats.

Create a flipbook
Issuu converts static files into: digital portfolios, online yearbooks, online catalogs, digital photo albums and more. Sign up and create your flipbook.