Carly O'Brien Interior Design Portfolio

Page 1

CARLY O’BRIEN PORTFOLIO

moira | hospitality studio wallace st rowhomes |architecture studio pisces footwear | commercial studio 1706 rittenhouse | residential studio aristocat cafe | hospitality project narrative visions | hand rendering 1 2 3 4 5 6

MOIRA HOSPITALITY STUDIO

1666 Callowhill Street, Philadelphia, PA

This restaurant design seeks to blur the boundary between food and art, between experience and immersion. This design transforms classic Philadelphia architecture into a sleek and alluring interior. Combining old Hollywood flair with technology of today, Moira is a unique dining experience from the first step in the door.

Revit, Photoshop BAR
PERSPECTIVE

MAIN DINING

LEVEL 1 PLAN (NOT TO SCALE)

HOST STAND

STAIR

MEZZANINE SEATING

ELEVATOR KITCHEN

BAR SEATING

MEZZANINE PLAN (NOT TO SCALE)

PRIVATE DINING

RESTROOMS

HOSPITALITY STUDIO B-B A-A B-B A-A C-C STORAGE FREEZER OFFICE KITCHEN
MOIRA
ENTRY RESTROOMS
FRONT SEATING BAR

MOIRA HOSPITALITY STUDIO

BACK BAR SECTION (NOT TO SCALE)

DIAGONAL SECTION (NOT TO SCALE)

MOIRA HOSPITALITY STUDIO VESTIBULE PERSPECTIVE
ENTRY PERSPECTIVE MEZZANINE PERSPECTIVE

NORTH SECTION (NOT TO SCALE)

SITE PLAN (NOT TO SCALE)

WALLACE ST ROWHOMES

ARCHITECTURE STUDIO

CLOSET

BEDROOM 3

FULL BATH

STAIR

THIRD FLOOR PLAN (NOT TO SCALE)

BEDROOM 1

BEDROOM 2

LIVING ROOM

FULL BATH STAIR

SECOND FLOOR PLAN (NOT TO SCALE)

PRIVATE YARD POWDER ROOM

STOOP/ENTRY

FOYER

STAIR

FIRST FLOOR PLAN (NOT TO SCALE)

DINING ROOM

KITCHEN

WALLACE ST ROWHOMES ARCHITECTURE STUDIO

SECTION PERSPECTIVE

SECTION PERSPECTIVE CUSTOM WINDOW TREATMENT

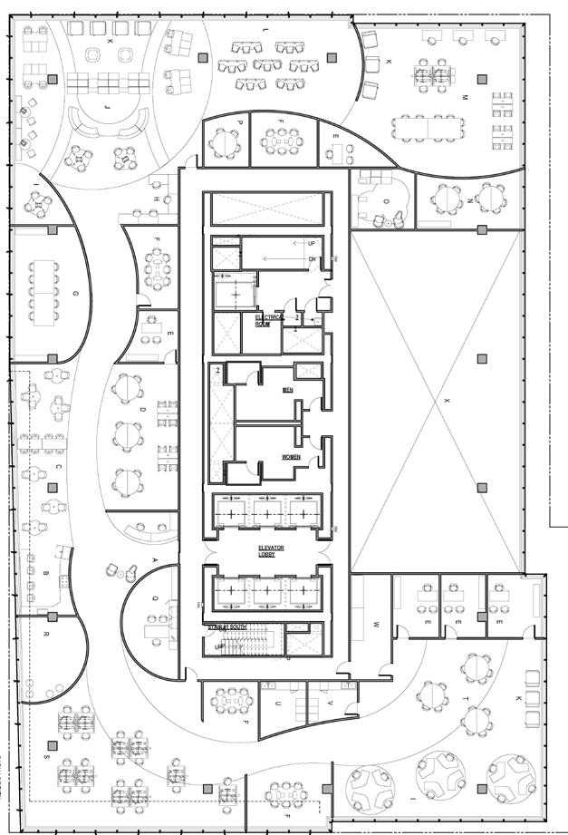
PISCES FOOTWEAR COMMERCIAL

STUDIO

3675 Market Street, Philadelphia, PA

This athletic footwear company aims to achieve a technologically innovative footwear product for its clients. It incorporates an office environment of inclusive collaboration and is passionate about employee wellness. With these goals in mind, this company will help you put your best foot forward in a comfortable, positive, and ambitious product through a custom experience.

ENTRY PERSPECTIVE

PISCES FOOTWEAR COMMERCIAL STUDIO

FLOOR PLAN (NOT TO SCALE)

REFLECTED CEILING PLAN (NOT TO SCALE)

PISCES FOOTWEAR COMMERCIAL STUDIO

SOUTH SECTION (NOT TO SCALE)

WEST SECTION (NOT TO SCALE)

NORTH SECTION (NOT TO SCALE)

PISCES FOOTWEAR COMMERCIAL STUDIO
CAFE PERSPECTIVE
LOUNGE PERSPECTIVE
SPORTS SIMULATOR PERSPECTIVE WORKSPACE PERSPECTIVE

1706 RITTENHOUSE RESIDENTIAL

STUDIO

1706 Rittenhouse, Philadelphia, PA

1706 Rittenhouse was transformed to feel like a luxury cottage for the clients, whose roots sparked their interest in nature and the beauty the earth has to offer. Influence from designers Victoria Hagan and Backem & Gillem were the driving force to create the perfect residence for the clients. Elements derived from natural materials maintain a consistent design language to make the residence an extension of the landscape.

AutoCad, Photoshop

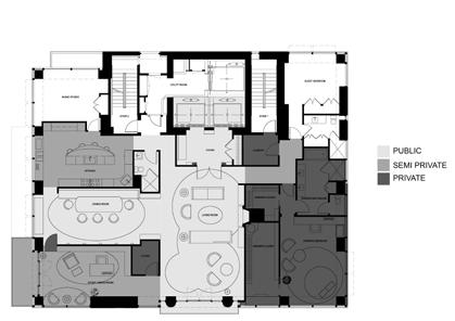
PLAN (NOT TO SCALE)
STUDY
STUDY
FLOOR
PRIVACY
LIGHTING

KITCHEN ELEVATIONS (NOT TO SCALE)

LIVING ROOM ELEVATION (NOT TO SCALE)

DINING ROOM ELEVATION (NOT TO SCALE)

RESIDENTIAL STUDIO
1706 RITTENHOUSE
KEY FURNITURE SELECTIONS

OWNER’S SUITE ELEVATION (NOT TO SCALE)

STUDY ELEVATION (NOT TO SCALE)

KEY FURNITURE SELECTIONS

1706 RITTENHOUSE RESIDENTIAL STUDIO

ARISTOCAT CAFE

HOSPITALITY PROJECT

Eames House, Los Angeles, CA

The AristoCat Café and Lounge is a cat café designed for those looking for a fun dining experience and close interaction with animals. The design is colorful and bright, communicating an exciting, positive, and comfortable experience within the iconic Eames house.

Sketchup, Photoshop FLOOR PLAN (NOT TO SCALE) REFLECTED CEILING PLAN (NOT TO SCALE) FRONT ELEVATION (NOT TO SCALE)

NARRATIVE VISIONS HAND

RENDERING

Using a monochrome palette, this series of marker drawings seeks to make a journey through images of the New York Public Library. Utilizing the richness of the deep purples and the romance of the lightest pinks, this palette communicates the quiet gradeur of this historic building.

Hand drawing, Prisma markers, Photoshop

Turn static files into dynamic content formats.

Create a flipbook
Issuu converts static files into: digital portfolios, online yearbooks, online catalogs, digital photo albums and more. Sign up and create your flipbook.
Carly O'Brien Interior Design Portfolio by Carly O'Brien - Issuu