

CARLOS RODRÍGUEZ
ARQUITECTO
cdj.rodriguez52@gmail.com
+52 56 3614 0214
CDMX, México
EDUCACIÓN
2011 - Licenciatura en Arquitectura, Universidad de Guanajuato
2025 - Diplomado en Intervenciones Urbanas Integrales (en curso), Universidad Nacional Autónoma de México
EXPERIENCIA LABORAL
Arquitecto Sr. - Área Común: Taller de Arquitectura y Ciudad / CDMX 2019 actualidad
Liderazgo y gestión de proyectos de equipamiento urbano, cultural, educativo y espacio público en todas sus fases. Coordinación de ingenierías, dirección arquitectónica en obra y elaboración de especificaciones técnicas y detalles constructivos. Desarrollo de material gráfico, croquis y renders para conceptualización y presentación a clientes.
Colaboracion con GDU (Arq. Mario Schjetnan) + Área Común
SOFTWARE
AutoCAD Photoshop Illustrator InDesign Sketchup
3DSMax
V-Ray Enscape D5 Render Office Suite Procore Revit
IDIOMAS
Español (Nativo)
Inglés (C1)
HABILIDADES
Liderazgo y gestión integral de proyectos arquitectónicos, urbanos y paisajísticos en todas sus fases, asegurando calidad y cumplimiento de plazos.
Diseño conceptual arquitectónico, desarrollo ejecutivo de planos, detalles constructivos y especificaciones.
Diseño, representación gráfica y visualización arquitectónica mediante croquis, modelado 3D y renders.
Coordinación interdisciplinaria, supervisión en obra y gestión con ingenierías y
Diseño y desarrollo de proyectos de equipamiento urbano y espacio público en todas las fases, con experiencia en especificaciones técnicas, detalles constructivos y creación de material gráfico (croquis, renders) para conceptualización y presentación a clientes.
Freelance - CDMX / Guanajuato
2018
Desarrollo de planos ejecutivos y especificaciones técnicas para renovación de vivienda y restaurante. Levantamientos arquitectónicos, reportes fotográficos, fotomontajes y visualizaciones 3D. Supervisión de obra en construcción de edificio habitacional.
Arquitecto Jr. - Estudio 1546 Guanajuato 2014, 2017 - 2018
Desarrollo de planos ejecutivos y especificaciones técnicas para diversas especialidades, así como levantamientos arquitectónicos, reportes fotográficos, fotomontajes y visualizaciones 3D.
Residente de Obra - Desarrolladora Sierra Madre | Guanajuato
2017
Supervisión de obra en torre de oficinas, control de avances, elaboración de generadores de obra y coordinación de insumos con proveedores.
Arquitecto Jr. - RS Estudio Guanajuato
2016
Levantamientos arquitectónicos y elaboración de reportes fotográficos y de obra para proyectos de vivienda.
RECONOCIMIENTOS EN PROYECTOS
Nominación 2025 WLA Awards - Design Excellence and Innovation por “Rehabilitation of the Historic Center of San Pedro Garza García” | gdu + área común
Publicación en Contemporary Landscape Architecture - Masterpieces around the world - BRAUN
PUBLISHING 2025 por “Parque El Capitán” | gdu + área común
Mención Honorífica XVIII Bienal Nacional de Arquitectura Mexicana 2024 por “Rehabilitación Integral del Casco Histórico de San Pedro Garza García” | gdu + área común
Arquitecto con más de 8 años de experiencia en proyectos arquitectónicos, urbanos y paisajísticos, especializado en todas las fases de desarrollo incluyendo desarrollo ejecutivo, coordinación interdisciplinaria y visualización arquitectónica. He liderado proyectos destacando por calidad, creatividad y cumplimiento de plazos. Reconocimiento en equipo en premios nacionales e internacionales y en formación continua en Intervenciones Urbanas Integrales (UNAM).
PROYECTOS
2025
• Alameda Zaragoza - Saltillo, Coahuila – área común Gran Parque San Pedro Garza García S.P.G.G., Nuevo León – área común + Grupo de Diseño Urbano
• Ampliación de Gimnasio - Centro Deportivo TRUPER - Jilotepec, Edo. Mex. – área común + Grupo de Diseño Urbano
• Escuela Preparatoria NEVADI Tenancingo - Tenancingo, Edo. Mex.área común
2024
• Edificio de Usos Múltiples - Centro Deportivo TRUPER - Jilotepec, Edo. Mex. – área común + Grupo de Diseño Urbano
• Museo Interactivo MIBIMBO Cuauhtémoc, CDMX - área común + Sietecolores + Arditti Arquitectos
• Escuela Preparatoria NEVADI Metepec - Metepec, Edo. Mex. - área común
• Templo San Lucas Patoni - Tlalnepantla de Baz, CDMX
• Nuevo Plantel CDMX Colegio Christel House - Tlalpan, CDMX - área común
2023
• Escuela Secundaria y Preparatoria NEVADI Ixtapan - Ixtapan de la Sal, Edo. Mex. área común
• Desarrollo Espacio Metrópoli Zapopan, Jalisco - área común + Grupo de Diseño Urbano + Grupo Arquitech + Dalton Corporación
• Parque Madero - Hermosillo, Sonora - área común
• Edificio de Departamentos - Milpa Alta, CDMX- área común
2021
• PMU SEDATU 2021: Renovación Integral del Centro Histórico de Juchitán - Juchitán de Zaragoza, Oaxaca - área común
• Conjunto de Vivienda (Urbanización) - Pénjamo, Tabasco (2021) - área comúncon + Vinculación y proyectos especiales UNAM
2020
• PMU SEDATU 2021: Plan de Acciones Urbanas (Cartera de Proyectos), Istmo de Tehuantepec en el Estado de Oaxaca y Guerrero- área común + PLUG Architecture + PEW Studio + DMP
• PMU SEDATU 2020: Módulo Deportivo Gabilondo Soler - Ecatepec, Edo. Mex. área común
• PMU SEDATU 2020: Parque Lineal Av. Recursos Hidráulicos - Ecatepec, Edo. Mex. - área común
• Medidas de Integración Urbana en Calle Gustavo E. Campa - Benito Juárez, CDMX
• Centros Tláloc - Metepec, Edo. Mex. - área común + Taller Capital 2019
• PMU SEDATU 2019: Deportivo La Capilla - Ayala, Morelos - área común
• PMU SEDATU 2019: Integración de Plazas de Chinameca - Ayala, Morelos - área común
• Parque El Capitán - S.P.G.G., Nuevo León - área común + Grupo de Diseño Urbano
• Centro de Entretenimiento “Wokivia” - Guadalajara, Jalisco - área común + Sietecolores
• Máster Plan Costa Serena - Acapulco, Guerrero – área común + XOOK Estudio
• Casa Salinas - Edo. Mex. - área común
2022
Casco Urbano San Pedro Garza García - S.P.G.G., Nuevo León – área común + Grupo de Diseño Urbano
• Master Plan Parque de la Biodiversidad Norestense - Monterrey, Nuevo León área común + Grupo de Diseño Urbano
• Museo Interactivo JAPI - Guadalajara, Jalisco - área común + Sietecolores
• Módulos de Regaderas, Lavaderos y Sanitarios - Lunsar, Sierra Leona - área común
• PMU SEDATU 2022. Plan de Acciones Urbanas (Cartera de Proyectos) Temacapulín, Acasico y Palmarejo - Temacapulín, Jalisco- área común
• PMU SEDATU 2022: Casa del Adulto Mayor - Temacapulín, Jalisco - área común
• PMU SEDATU 2022: Renovación de Aulas, Biblioteca y Centro Cultural del Agua - Temacapulín, Jalisco - área común
PMU SEDATU 2022: Patio de la Cultura - Temacapulín, Jalisco - área común
2018
Renovación de acabados para Casa Habitación - Gustavo A. Madero, Edo. Mex.
• Renovación de acabados para Restaurante- San Francisco del Rincón, Guanajuato
2017
• Plaza Deportiva Militar - Guanajuato, Guanajuato - Estudio 1546 S.A. de C.V.
• Torre de Oficinas en Centro de Negocios “Plaza Galereña” - Guanajuato, Guanajuato Desarrolladora Sierra Madre, S.A. de C.V. 2016
• Fraccionamiento Guanajuato Nuevo - Guanajuato, Guanajuato - Estudio 1546
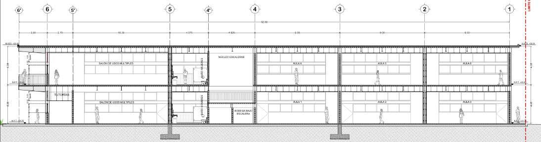
año: 2024-2025 ubicación: Jilotepec, Edo. de México |
área: 5,000m2 / 689m2 Edificación
oficina: área común + grupo de diseñ urbano
Edificio de Usos Múltiples
El Salón de Usos Múltiples está insertado en el actual Centro Deportivo Truper, en el municipio de Jilotepec del Estado de México. El espacio es versátil y funcional, diseñado para adaptarse a diversas actividades deportivas, culturales y recreativas para el personal de Truper. Cuenta con un área principal que puede subdividirse en tres secciones mediante paneles móviles acústicos, garantizando flexibilidad y privacidad. Incluye una cocina equipada para catering, sanitarios accesibles y una bodega segura para almacenamiento. El diseño prioriza la accesibilidad universal, la sostenibilidad y la eficiencia operativa, ofreciendo un entorno moderno, cómodo y adaptable para todo tipo de eventos.

Participación: Diseño Conceptual y Arquitectónico, Desarrollo de Proyecto Ejecutivo y Coordinación con Ingenierías













año: 2021-2022 ubicación: Juchitán, Oaxaca |
área: 31Ha / 334m2 Edificación
oficina: área común
Renovación Integral del Centro de Juchitán
El Centro Histórico de Juchitán representa una parte importante de la cultura de la región del Istmo de Tehuantepec, por lo que la Renovación Integral del conjunto, así como en el caso del Parque Revolución, la complejidad del contexto inmediato representó una oportunidad única de atender las necesidades específicas del espacio en materia de oferta recreativa, movilidad y seguridad, y al mismo tiempo de ligar directamente la multiplicidad de actividades culturales y sociales que se generan entre el mismo parque y el Centro Escolar, el Templo de San Vicente y la Casa de Cultura.

Fotografía propiedad de SEDATU
https://www.gob.mx/sedatu
Participación: Lider de proyecto, Análisis en campo, Diseño Conceptual y Arquitectónico, Desarrollo de Proyecto Ejecutivo, Coordinación con Ingenierías y Dirección Arquitectónica






El Centro Histórico de Juchitán representa una parte importante de la cultura de la región del Istmo de Tehuantepec, por lo que la Renovación Integral del conjunto, así como en el caso del Parque Revolución, la complejidad del contexto inmediato representó una oportunidad única de atender las necesidades específicas del espacio en materia de oferta recreativa, movilidad y seguridad, y al mismo tiempo de ligar directamente la multiplicidad de actividades culturales y sociales que se generan entre el mismo parque y el Centro Escolar, el Templo de San Vicente y la Casa de Cultura.







año: 2024 ubicación: Ixtapan, Edo. de Mex |
área: 7,200m2 / 5,200m2 Edificación oficina: área común
Parque Madero
El Parque Madero es, por excelencia, el pulmón histórico y social de Hermosillo: un espacio emblemático donde convergen la recreación, el descanso y la memoria colectiva. Su valor radica tanto en su riqueza ambiental como en su papel como punto de encuentro para generaciones enteras.
Sin embargo, el paso del tiempo y las nuevas dinámicas urbanas hicieron evidente la necesidad de una intervención integral. La renovación planteada responde a esta urgencia con obras de infraestructura, rehabilitación y diseño contemporáneo que consolidan al parque como un espacio público vibrante, seguro y accesible para todas las personas, reafirmando su lugar como ícono de la vida urbana en Hermosillo.

La propuesta de diseño se concibió a partir de una composición orgánica, tomando al círculo como el generador formal y conceptual del proyecto. Este elemento geométrico se convirtió en el eje rector para articular plazas, senderos y áreas de estancia, creando un lenguaje fluido que evoca la naturaleza y el movimiento. A partir de esta premisa, cada espaciose diseñó para integrarse armónicamente en un recorrido dinámico y continuo, promoviendo la interacción social y la conexión con el paisaje.

































El Parque Madero se rediseña como un escenario vivo que trasciende el día para cobrar fuerza en la noche. Inspirado en la pureza del círculo, la propuesta organiza plazas, andadores y áreas lúdicas en un trazado orgánico que invita al recorrido fluido y la permanencia.
La intervención busca preservar la memoria histórica del parque —fundado en 1878— mientras incorpora una visión contemporánea que lo proyecta como un espacio activo las 24 horas. La iluminación arquitectónica se convierte en protagonista nocturna: senderos iluminados con luz cálida, plazas bañadas por acentos sutiles y mobiliario retroiluminado generan atmósferas seguras y acogedoras. Así, el parque no solo es un punto de encuentro diurno, sino también un espacio vibrante y habitable en la noche, donde la comunidad encuentra cultura, recreación y descanso en un entorno renovado y armónico.



año: 2024
ubicación: Ixtapan, Edo. de Mex |
área: 7,200m2 / 5,200m2 Edificación oficina: área común
Escuelas NEVADI
El Proyecto Escuela Secundaria y Preparatoria NEVADI
Ixtapan de la Sal es un conjunto educativo de aulas destinadas a educación media y media superior. El posicionamiento de los edificios requeridos (secundaria y preparatoria), surge como primera instancia de la correlación con la primaria NEVADI plantel Ixtapan. El primer objetivo consitió en generar una continuidad del eje existente en la primaria, con el generado para Preparatoria (lado surponiente). Posterior a ello, siguiendo el perímetro del terreno, (en el lado nororiente), y considerando una separación promedio de 5m a 6m para permitir ventilación cruzada e iluminación natural directa e indirecta, y con el fin de liberar la visual entre el complejo nuevo y el existente.

Participación: Análisis en campo, Diseño Conceptual y Arquitectónico, Desarrollo de Proyecto Ejecutivo, Coordinación con Ingenierías y Dirección Arquitectónica





PREPARATORIA
ADMINISTRACIÓN








Shower and Restroom Modules in Sierra
Leona
Overall, the proposal for showers, restrooms, and laundry facilities aims to provide a dignified and comfortable space for personal hygiene, addressing the needs of the Misioneras Clarisas within the Our Lady of Guadalupe School in Lunsar, Sierra Leone. This project has been designed to address the programmatic challenge of providing a space with suitable conditions for personal hygiene, and conceived as open spaces that allow ventilation and visual permeability from the outside, seamlessly integrating the interior and exterior while providing the necessary security and privacy in these areas, aiming a design wich creates a sense of openness while ensuring a safe and private environment.








The buildings for 380 girls are equipped with laundry sinks, showers and bathrooms (both including one specifically designed for people with disabilities), and incorporates on the inside public y privates corridors that provides access to each of this spaces.
Both constructions consists of solid brick walls with steel frames and corrugated steel roofing, wich allows rainwater to be collected through it and directed by a concrete water channel with stone river, ensuring the water flows and avoids any ponding issues. In order to enhance the overall experience, the design incorporates natural elements and landscaping features, such as open green spaces and pathways, to create a pleasant and inviting atmosphere, and the use of local materials and construction techniques not only ensures sustainability but also helps the buildings blend with the environment.


año: 2022-2023 ubicación: San Pedro Garza García, N.L. |
área: 2Ha de Parques / 2Km de Calles oficina: grupo de diseño urbano + área común
Casco Urbano San Pedro Garza García
La renovación del Casco Urbano de San Pedro Garza Garcìa fue realizada mediante una propuesta urbana de intervenir el espacio pùblico de la zona, a través de la mejora de sus espacios y características en cuanto a accesibilidad universal y oferta de actividades, aprovechando la gran densidad de árboles prexistentes, y destinando espacios para el juego, descanso, contemplación y para diversos usuarios, además de mejorar la relación entre el sitio y la naturaleza gracias a la forestación y la incorporación de vegetación idónea para la región.








Participación: Análisis de sitio, Diseño Conceptual y Arquitectónico, Desarrollo de Proyecto Ejecutivo, Coordinación con Ingenierías y Dirección Arquitectónica
Mención Honorífica XVIII Bienal Nacional de Arquitectura Mexicana 2024 Nominación 2025 WLA Awards - Design Excellence and Innovation









El proceso para rehabilitar el Casco Histórico de San Pedro fue altamente complejo y requirió de un firme liderazgo de la municipalidad y una continua comunicación con todos y cada uno de los vecinos y negocios de las zonas de intervención. Surgen vecinos por oposición al cambio; las naturales molestias y afectaciones a la población residente durante la obra; y afectaciones a negocios pequeños.
Esta coordinación empieza con continuas presentaciones y juntas vecinales y con el involucramiento de las distintas áreas del municipio; con los diseñadores; con las autoridades como el INAH y la CFE, así como las áreas de agua, drenaje, gas y una multitud de empresas privadas de telecomunicaciones.
En síntesis, la regeneración integral del Casco de San Pedro ha mutado a un sitio patrimonial; bello; caminable; fresco y verde; digno; atractivo para visitarlo y para vivirlo. Con unanime aceptación de la comunidad residente así como la apertura de nuevos negocios pequeños, restaurantes y solicitudes de nuevos residentes.




año: 2019-2021 | ubicación: San Pedro Garza G., N.L.
área: 13Ha / 334m2 Edificación
oficina: grupo de diseñ urbano + área común
Parque El Capitán
El polígono de 12 Hectáreas, inscrito en varias colonias residenciales del Municipio de San Pedro Garza García, tales como Fuentes del Valle, Balcones del Valle y otras, tuvo como hilo conductor la serie de espacios verdes que la comunidad quería convertir en un parque de escala distrital de calidad mundial, el cual al día de hoy, se ha convertido en un importante centro de convivencia comunitaria; lugar de ejercicio, recreación y descanso para todas edades.

https://gdu.com.mx/
Participación: Concurso, Plan Maestro, Diseño Conceptual y Arquitectónico, Desarrollo de Proyecto Ejecutivo, Coordinación con Ingenierías, Dirección Arquitectónica
Propuesta ganadora “Concurso de Diseño del Parque Central de San Pedro Garza García 2019”
Publicación en Contemporary Landscape Architecture - Masterpieces around the world - BRAUN PUBLISHING









Este gran conjunto de espacios verdes, forma parte de la trama de conectividad peatonal, recreativa y forestal de la ciudad a través de la estructura verde de las
Calzadas San Pedro y Del Valle; por lo tanto, la potencialidad que presentaba esta trama, podía en el corto plazo configurar una red verde de 8.3 Km.








En conjunto con el Arq. Mario Schjetnan, Director General de la oficina de diseño interdisciplinario Grupo de Diseño Urbano, se trabajó en el diseño de la renovación del Parque “El Capitán” (antes Parque Central) en todas las fases del proyecto, desde la conceptualización inicial del concurso (misma que fue ganadora) hasta el desarrollo del proyecto ejecutivo arquitectónico-paisajísitico, y la dirección arquitectónica en obra.

https://gdu.com.mx/
año: 2022 ubicación: Temacapulín, Jalisco |
área: 360m2 Edificación / 150m2 Conjunto colaboración con área común
Patio de la Cultura
A través de la SEDATU y su Plan de Acciones Urbanas, como resultado del trabajo realizado en la comunidad de Temacapulín se determinó la vitalidad de la promoción de la educación y la cultura del medio ambiente, así como la concientización por la importancia y el cuidado del agua. Por este motivo resultó importante recuperar y dotar a la población un lugar adecuado que permita realizar actividades como talleres, eventos artísticos y curos para la formación de artistas locales, en un espacio adecuado que respondiera a las caracterísiticas de la zona alta de Jalisco.

Participación: Lìder de proyecto, Análisis de sitio, Diseño Conceptual y Arquitectónico y Proyecto Arquitectónico

9.
8.
7.
6.
5.




año: 2022 ubicación: Temacapulín, Jalisco |
área: 290m2 Edificación / 1,260 m2 Conjunto colaboración con área común
Casa del Adulto Mayor
Otro de los proyectos determinantes para la comunidad de Temacapulín, con quien se se trabajó en conjunto en comites organizados, se concluyó en la realización de una Casa del Adulto Mayor ya que existe un gran número de adultos mayores en la comunidad de Temacapulín, siendo necesario dotar a la población de un espacio destinado a la convivencia, el cuidado y la realización de actividades recreativas en un entorno tranquilo, seguro y accesible para este sector.

Participación: Lìder de proyecto, Análisis de sitio, Diseño Conceptual y Arquitectónico y Proyecto Arquitectónico





año: 2020
ubicación: Istmo de Tehuantepec, Oax | oficina: área común + UPEDU (SEDATU)
Plan de Acciones Urbanas Istmo de Tehuantepec
Se entiende por Plan de Acciones Urbanas (PAU) al documento técnico justificativo que tiene por objetivo presentar la cartera de proyectos que se pueden llevar a cabo a través del PMU en la vertiente de Mejoramiento Integral de Barrios Emergente, es decir, equipamiento urbano y espacio público generando integralidad en suma y favorecimiento primordialmente a consolidar el desarrollo local, reactivación económica y mejoramiento en la calidad de vida de los habitantes.
































A partir de un diagnóstico de gabinete, visitas de campo para valorar los proyectos, realizar encuestas a la población y un análisis por parte de un grupo multi e interdisciplinario, fue posible construir y presentar un Plan de Acciones Urbanas (PAU) con una cartera de proyectos de equipamientos y espacios públicos en beneficio de la población.
Dichos trabajos se realizaron en los siguientes 12 municipios del Estado de Oaxaca: Juchitán de Zaragoza, El Espinal, Santo Domingo Tehuantepec, Santa María Mixtequilla, Ixtepec, Ixtaltepec, El Barrio de la Soledad, San Juan Guichicovi, Matías Romero y San Pedro Comitancillo, Santa María Petapa.

























año: 2020 ubicación: Ecatepec, Edo de México |
área: 10,185m2
oficina: área común
Módulo Deportivo “Gabilondo Soler”
La intervención en el Parque Gabilondo Soler es una obra que se buscó en beneficio directo de un sector de la población que vive en una zona de alto grado de marginación, aprovechando el potencial de un paisaje natural inserto en un ámbito urbano inhóspito y agresivo para convertirlo en un lugar de encuentro, convivencia y juego para las personas que lo visitan. El diseño surge de la topografía del lugar y se integra generando plataformas a través de la contención con muros gavión que al mismo tiempo le permite a los vecinos transitar el parque de manera más segura.

Participación: Lìder de proyecto, Análisis en campo, Diseño Conceptual y Arquitectónico, Desarrollo de Proyecto Ejecutivo y Coordinación de Ingenierías
Mención Obra del año 2021 Grupo Expansión



El diseño surge de la topografía del lugar y se integra generando plataformas a través de la contención con muros gavión que al mismo tiempo le permite a los vecinos transitar el parque de manera más segura. A través de lo anterior, se eliminaron obstáculos y rejas, y se implemento una infraestructura peatonal clara, alumbrado público y equipamiento urbano para el disfrute de los visitantes, además de un manejo de agua pluvial promoviendo la infiltración de agua al subsuelo, la construcción de muros de contención con roca de minas vecinas y el respeto del arbolado existente.
año: 2015 ubicación: Londres, Inglaterra | proyecto académico / concurso
Biblioteca “London Public Library”
Ubicado en los jardines “Potter Fields” el solar de 6.000m2 se encuentra a orillas del Támesis y a escasos metros del “Tower Bridge”. Bien conectado con el transporte público, desde el solar se pueden tener vistas a The Shard, Swiss Re y el paisaje del ferrocarril de Southwark.
La pieza edificada se ha de insertar como una continuidad del masterplan, así como una pieza que se inserte naturalmente dentro del tejido de Londres.






