Carlos Eduardo Velho

Page 1

CARLOS EDUARDO VELHO

23 anos

Arquitetura e Urbanismo

9° Semestre PUCRS

Celular:

(51) 98943-0002

E-mail:

carloseduardovshh@gmail.com

Endereço:

Rua Ângelo Barcelos, 29 - 402

Bairro Partenon - Porto Alegre RS

C U R S OS

Modelagem

Desenho arquitetônico no AutoCAD

- Isabel Martínez

SketchUp

- Alejandro Soriano

Sketchup para Interiores

- Projetou

ArchiCAD 25 - Básico

- Eixo

Renderização

Lumion Avançado: Exterior e Interior

- Projetou

V-ray Básico

- Projetou

Interiores

Design de interiores do início ao fim

- Nook Architects

Design de Interiores e Decoração Residencial

-Projetou

Reforma de Interiores

- Projetou

A R L O S
D U A R D O
E L H O
C
E
V

P E S Q U I S A S

Iniciação Científica

21° Salão de Iniciação Científica e 22° Salão de Iniciação Científica

- PUCRS

Grupo de Pesquisa Desconstrução e Criação

- Beatriz Regina Dorfman

E X P E R I Ê N C I A

P R O F I S S I O N A L

Poema Arquitetura 2021-2022

Cargo: Auxiliar de projetos por meio de AutoCad e Sketchup.

Criação de imagens pela renderização no Lumion e finalização no Adobe Lightroom.

Kali Arquitetura 2022-2023

Cargo: Auxiliar de projetos por meio de Archicad e Sketchup.

Moove Arquitetos 2023

Cargo: Auxiliar de projetos e visualização por meio de Sketchup, Lumion e Photoshop.

1 CASA AL

2 IMS

3 PARQUE INFANTIL

4 CENTRO ESPORTIVO

5 INTERIORES

REFORMA SPG

PARA KALI ARQUITETURA

6
PARA MOOVE ARQUITETOS PUCRS PUCRS PUCRS

"A Casa Altos do Lago foi projetada em um terreno de esquina com grande aclive na zona sul de Porto Alegre O pavimento térreo está localizado no ponto mais alto do lote, abrigando um escritório, a área social e um pátio com piscina com vista para uma área verde vizinha. No segundo pavimento está a área íntima com 3 suítes com vista para o pôr do sol."

1
C A S A A L

SEGUNDO PAVIMENTO

Garagem
Lavanderia
Jantar
Escritório
Estar
1 2 3 3 1 2 3 4 5 6 7 8 9 TÉRREO
1
2 Pátio de serviço 3 Terraço 4
5 Cozinha 6
7 Lavabo 8
9
1 Suíte Master 2 Closet 3 Suíte

Fachada Norte

Fachada Sul

Fachada Oeste

PROGRAMAS USADOS: ARCHICAD LUMION

PHOTOSHOP SKETCHUP

Nesse semestre, tivemos como objetivo desenvolver um projeto de uma arquitetura contemporânea relacionada com uma pré-existência, analisando a obra arquitetônica e demonstrando conceitos concernentes em sua restauração Assim, foi necessário analisar a obra de intervenção nos seus aspectos históricos, tipológicos, morfológicos e técnico-construtivos, diagnosticando seu valor como bem cultural e suas condições físicas de conservação. Com o propósito de difundir a cultura, em vários modelos e formas, o tema "Instituto Moreira Salles" propõe uma edificação com acervos únicos, relacionando com a pré-existência da obra de Cesar Dorfman e Edenor Buchloz

2
Quintino Bocaiúva, 580Floresta, Porto Alegre - RS
I M S

No desenvolvimento compositivo da edificação, surgiu a busca de formas que foram perdidas do projeto original, na intenção de reinterpretar traços arquitetônicos da primeira proposta, de Cesar Dorfman e Edenor Buchloz destacando-se na fachada da rua 24 de Outubro, a escada vermelha, cria um movimento "de dentro para fora", volumetria decisiva para a organização edificação, fazendo referência ao desenho do muro diagonal retirado na fachada da rua Quintino Bocaiúva Além disso, a relação entre a escada vermelha e a edificação nova lembra o do movimento da grande árvore que participa das duas fachadas da pré-existência , elemento importante que parece pertencer à obra A proposta traz três volumes novos, sendo eles: : O volume mais alto servindo como prédio de apoio, incluindo sanitários, equipamentos e depósito; O volume de maior área, incluindo auditório, café, biblioteca, , áreas de lazer, exposições e salas-multiuso; E a passarela, ligando os volumes que circundam a pré-existência. Na relação de alturas buscou-se atenuar a relação entre as edificações vizinhas No volume maior, a altura da escada vermelha inicia-se onde a Caixa termina, já no prédio mais alto, a altura é a mesma do edifício ao lado. com a materialidade, o concreto e o vidro continuam primando a ideia da obra original, sendo a passarela/ escada metálica vermelha um elemento que se destaca, "flutuando" entre as unidades em sua volta

TERCEIRO PAVIMENTO QUARTO PAVIMENTO
TÉRREO SEGUNDO PAVIMENTO
1-DEPÓSITO 2-ÁREA DE CARGA E DESCARGA 3-ADMINISTRAÇÃO E ÁREA DE FUNCIONÁRIOS 4-PÁTIO 5- AUDITÓRIO 6- HALL 1-SANITÁRIOS 2-ELEVADORES 3-EXPOSIÇÃO 4-HALL 5- AUDITÓRIO 1-SANITÁRIOS 2-ELEVADORES 3-CAFÉ 4-BIBLIOTECA 5- LOJA 1-SANITÁRIOS 2-ELEVADORES 3-EXPOSIÇÃO
3 2 1 4 5 6 3 1 1 2 2 5 4 4 4 3 1 1 2 2 5 3 2 2 1 1 3 2 3 4 4
1-SANITÁRIOS 2-ELEVADORES 3-SALAS MULTIUSO 4-ESPAÇOS DE LAZER

PROGRAMAS USADOS: LUMION SKETCHUP AUTOCAD

DETALHAMENTO 3 1 DETALHAMENTO 2 DETALHAMENTO 3 2 DETALHAMENTO 5 DETALHAMENTO 6 DETALHAMENTO 4 2 3 1 4 5 DETALHAMENTO 1 1 2 1 4 6 3 2 3 1 3 2 5 6

PERFIL "I"DE CHAMA METÁLICA SOLDADA COM PINTURA ELETROSTÁTICA COR VERMELHA

PERFIL DE LED BRANCO FRIO EMBUTIDO

CANTONEIRA DE AÇO PARA FIXAÇÃO DA CHAPA METÁLICA COM PINTURA ELETROSTÁTICA COR VERMELHA

LAJE DE CONCRETO

PORCA SEXTAVADA E ARRUELA EM AÇO INOX

PARAFUSO SEXTAVADO EM AÇO

PILAR PERFIL METÁLICO “I” COM PINTURA ELETROSTÁTICA COR VERMELHA

GUARDA CORPO METÁLICO COM PINTURA ELETROSTÁTICA COR VERMELHA H= 110CM

CABOS DE AÇO

ARRUELAS DE AÇO INÓX PARA TENSIONAR OS CABOS DE AÇO

VIGA PERFIL METÁLICO I COM PINTURA ELETROSTÁTICA COR VERMELHA

CANTONEIRA METÁLICA COM PINTURA ELETROSTÁTICA COR VERMELHA

PORCA SEXTAVADA E ARRUELA EM AÇO INOX

CORTE CORTE 3D 3D

ANCORAGEM TIPO L AÇO GALVANIZADO 3 MM

PARAFUSO AUTOBROCANTE

PERFIL METÁLICO

PARAFUSO SEXTAVADO AUTOBROCANTE

GUIA DE SUPORTE PAINEL METÁLICO PERFURADO

PLANTA
BAIXA
3D
PLANTA BAIXA

PISO CIMENTO QUEIMADO LISO CONTÍNUO 2CM DE ESPESSURA

ARGAMASSA DE ASSENTAMENTO 3CM DE ESPESSURA

LAJE DE CONCRETO

CHAPA EM AÇO COM PINTURA ELETROSTÁTICA COR VERMELHA

VIGA PERFIL METÁLICO I” COM PINTURA ELEETROSTÁTICA COR VERMELHA

CANTONEIRA METÁLICA COM PINTURA ELETROSTÁTICA COR VERMELHA

PORCA SEXTAVADA E ARRUELA EM AÇO INOX

PAREDE EM CONCRETO

GUARDA CORPO DE VIDRO INCOLOR 10MM

TORRE EM INOX H= 40CM

ACABAMENTO PEÇA EM "L" METÁLICA

PISO CIMENTO QUEIMADO LISO CONTÍNUO 2CM DE ESPESSURA

ARGAMASSA DE ASSENTAMENTO 3CM DE ESPESSURA

LAJE DE CONCRETO

PILAR PERFIL METÁLICO “I” COM PINTURA ELETROSTÁTICA COR VERMELHA

3D 3D CORTE
CORTE
VIDRO TEMPERADO
10MM BASE EM ALUMÍN O S STEMA DE FIXAÇÃO EM ALUM NIO BORRACHA AJUSTÁVEL ARGAMASSA DE ASSENTAMENTO 3CM DE ESPESSURA LA E DE CONCRETO PISO CIMENTO QUEIMADO L SO CONTÍNUO 2CM DE ESPESSURA 3D MOLDURA OBRA V DRO ANTIRREFLEXO POLICARBONATO PARA
PORCA TRAVESSA EM DUPLO C FURAÇÃO PADRON ZADA BUCHA EM AÇO INOX COM CAPA EM NYLON PARAFUSO ALLEN M6 V DRO TEMPERADO NCOLOR 10MM 1 2 3 4 6 7 8 9 10 11 2 3 1 4 CONTRA MOLDURA 5 5 6 7 8 9 10 11 3D 2D 3D CORTE
INCOLOR
PROTEÇÃO

PARQUEINFANTIL PÃODOSPOBRES

O parque infantil é um espaço projetado para o lazer e aprendizado das crianças, pois neste local é possível conciliar diversão e conhecimento num mesmo ambiente Assim, o ambiente apropriado para seu desenvolvimento é onde elas consigam aprender novas habilidades, conhecer seus limites, saber conviver com o próximo e a respeitar as diferenças Por meio de uma brincadeira pode ocorrer o aprendizado de novas habilidades Por isso, é importante um ambiente apropriado para que as crianças possam brincar, além da possibilidade de realizar várias atividades num mesmo espaço Assim, buscamos trazer peças e estruturas soltas no espaço, sendo elementos que incentivam a criatividade e proporcionarem às crianças a liberdade de inventar suas próprias brincadeiras

3

P A R Q U E I N F A N T I L

5

4

RAMPA

ESCADAS

PONTE

PAREDE DE ESCALADA

1
2 3
2
3
4
5
1
ESCORREGADOR PERCURSOS

BRINQUEDOS PROGRAMAS USADOS: LUMION SKETCHUP

1 CORTINA SENSORIAL 2 PAREDE DE ESCALADA 3 ESCORREGADOR 4 PLATAFORMA MAIOR 5 PLATAFORMA MENOR
4
C E N
O
T R O E S P O R T I V

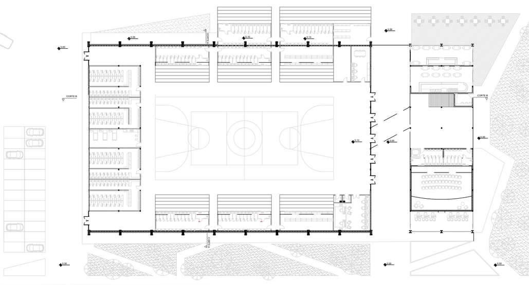
Em Ateliê 5, o programa de base foi voltado para a instalação de equipamentos visando a prática de esportes e atividades físicas, o que possibilita a utilização de um modelo metodológico pensando no pleno desenvolvimento de crianças e jovens, para o esporte e acima de tudo para o exercício da cidadania A concepção inicial da volumetria se deu através de dois volumes que se atravessam, de alturas diferentes, que traduzem de forma tênue as alturas que circundam o local Dessa forma, a fachada brinca com as formas propostas por perfis metálicos e atuam como elementos de ligação entre os prédios próximos, mas ao mesmo tempo, demonstram força com uma geometria moderna. Os croquis realizados durante o processo me ajudaram a perceber como as formas que usamos na hora de projetar podem interpretar seus arredores mas também serem únicas. Com os dois volumes na fachada principal, observamos a hierarquia dada entre os espaços e seus respectivos usos internamente junto com a relação entre eles

PROGRAMAS USADOS: LUMION SKETCHUP AUTOCAD

5
Estudo para Moove Arquitetos

I N T E R I O R E S

Estudo para Moove Arquitetos

Anteprojeto para Kali Arquitetura

Anteprojeto para Poema Arquitetura

6

R E F O R M A S P G

PROGRAMAS USADOS: ARCHICAD

Turn static files into dynamic content formats.

Create a flipbook
Issuu converts static files into: digital portfolios, online yearbooks, online catalogs, digital photo albums and more. Sign up and create your flipbook.
Carlos Eduardo Velho by Carlos Velho - Issuu