Architectural Portfolio & CV

Page 1

&portfolio curriculum 2 0 2 2 2022 fall
2ARCHITECTURE C//S
3 PORTFOLIO B//C
CURRICULUM VITAE GRADIENT Construction Documents EL NUEVO METABOLISMO: REVISIÓN INFRAESTRUCTURAL EN LA ARQUITECTURA CONTEMPORÁNEA URBAN LANDSCAPES OBSOLETE ARCHITECTURES WIND COMMUNE BIOCLIMATIC ARCHITECTURE CarlosBarrancoCarreras CAP I. CAP II. 01. CAP III. CAP IV. CAP V. CAP VI. CAP VII. INDEX pág. 04 08 18 22 24 30 34 38
SELECTED WORKS

where? when?

Madrid, 2021-2022

Madrid, 2015-2021

Madrid, 2000-2015

Madrid, 2022-202x

CarlosBarrancoCarreras Architect

Madrid, 2019

Madrid, 2017

Madrid, 2017

School of Architecture, Polytechnic University of Madrid (ETSAM). Master in Architecture

School of Architecture, Polytechnic University of Madrid (ETSAM). Graduated in Architecture

Colegio Estudio

Higher Baccalaureate, Technological Scientific Branch

Abalos+Sentkiewicz

Architect

“Competition and design stage drafting and drawing, producing construction phase documents”.

- International competitions: JRC Seville (with Office KGDVS)

- National competitions: UPV Valencia, Repsol Towers Malaga.

Gon Architects S.L

Architectural Intern

Norman Foster Foundation

Intern at the Projects and Research Unit (Future is Now grant)

Artyco S.L (Arte, Restauración y Conservación)

Architectural Intern

Urban Initiative ‘Barrio de la Estación’

Design and assembly of the set for a non-profit play ‘El derecho de Soñar’

4ARCHITECTURE C//S C / / S PERSONALINFO
Madrid,Mayof1997
EDUCATION WORKEXPERIENCE LANGUAGES
(+34)648523976 cbarranco97@gmail.com
CURRICULUM. Spanish English Native Advanced Level (Certified Cambridge & LAL schools) 4

Madrid, 2019

Madrid, 2018

AWARDS

WithHonors in Architectural Design 6 / Unit Tuñon

Profs: Emilio Tuñón, Maria Langarita, Luis Rojo & Jose María Sánchez García

WithHonors in Architectural Design 5 / Unit Ábalos

Profs: Iñaki Ábalos, Renata Sentkiewicz, Gonzalo Pardo, Javier García-Germán

EXHIBITED&PUBLISHEDWORKS

Madrid, 2020

Madrid, 2019

Madrid, 2019

Madrid, 2018

Madrid, 2018 Advanced

Gon Architects - Drawings for several projects gon-architects.com

Artyco - Proposal for the restoration of ‘Torre Hurtado de Mendoza’ Martioda, Vitoria-Gasteiz

WithHonors Public ExhibitionPolytechnic University of Madrid (ETSAM)

Anuario ETSAM - Project for Architectural Design 5 (2017-18)

Edited by: Belén Moneo, Íñigo Cobeta & Marta Muñoz

Fundación General de la Universidad Politécnica de Madrid

ISBN 978-89-98143-67-1

WithHonors Public ExhibitionPolytechnic University of Madrid (ETSAM)

* some works from Master in Architecture have been published as Header Image of articles such as withHonors 2022 of the Master’s program *

COMPUTERSKILLS

Rhinoceros 3D, AutoCAD 2D, Adobe Photoshop, Adobe Illustrator, Adobe InDesign, V-Ray for Rhinoceros, Microsoft Office

Autodesk Revit, ArcGis, Adobe Premiere, Sketch-Up

Driving License

5 PORTFOLIO B//C B / / C .
OTHERS
Medium User Tipo B -VITAE
6ARCHITECTURE C//S

Madrid, July 21st 2022

To whom it may concern:

It is with the highest pleasure that I offer this letter of recommendation for Carlos Barranco Carreras. I met him four years ago when he was student in our Design Studio CoLaboratorio at Escuela Técnica Superior de Arquitectura ETSAM, Universidad Politécnica de Madrid UPM. During this course he showed outstanding capacity for working and decision making, learning how to reuse postindustrial constructions and activating them with complex and hybrid programs including residential ones.

Later on, we met again to develop his Final Degree Work TFG together, that proudly evolved from the concepts previously acquired in the CoLab Design Studio. He proposed a comparative analysis of Japanese metabolism and contemporary architecture, crumbling the intricacies of an open and social architecture of infrastructures and lightweight architecture and how its heritage remains latent today. With a positive attitude of hard work and an attractive approach to architecture, respecting and knowing the constructive processes of the time and the impositions of the post-war world, it produced a critical, contemporary and open mindedness in him that differentiated from others on our highly demanding School.

Studying new languages, working with local and international teams and networks, and designing with an open-minded way of thinking are great qualities that make Carlos a very good candidate, and I foresee him having a fulfilling career. I am sure that his involvement will be as prolific as it has been in our School in every environment, from conceptual to technical development that very well define the architect he has become.

For these reasons I am absolutely convinced that I can recommend Carlos both academically and personally.

If you wished more information , please do not hesitate to contact me.

Yours truly,

* PhD Arhitect and Associate Professor UD Ribot/CoLab ETSAM UPM

* Contemporary Projects Procedures Researcher (CoLab / ProLab) (www.colaboratorio.eu)

* Fab Lab ETSAM CoLaboratorio Coordinador

NUÑEZ RIBOT ARQUITECTOS (www.nuniezribot.com)

EDUARDO VELA 8C 28023 MADRID

+34 606308922

7 PORTFOLIO B//C

GRADIENT

TFM - u.d. Lleó

ETSAMadrid//2022

Under the slogan of the climatic emergency appears the coherent reflection on the concept of the Shopping Mall, assumed as the main Climatic Island of the 20th century and developed throughout the suburbs of Madrid, and whose analysis takes us to the west, to a “linear tour of that entropic paradise of beauty and ugliness of the generic city”.

The reflection involves learning the Future of Commerce, validating the upward trends of E-commerce where the physical store is reduced to the minimum space for testing and touching objects, in an electronic process where shopping is reduced to any place.

8ARCHITECTURE C//S
9 PORTFOLIO B//C
10ARCHITECTURE C//S
11 PORTFOLIO B//C
have been published as Header Image of withHonors 2022
the Master’s program *
* thisdrawings
of
https://www.dpaetsam.com/ post/10015
12ARCHITECTURE C//S
13 PORTFOLIO B//C
14ARCHITECTURE

The executed prototype aims to demonstrate how these systems adapt and directly affect the architecture that surrounds us, forcing us to rethink not only the construction, but also the understanding of the social and temporal relationships of buildings, colonizing these Mall infrastructures as modelical supports still far from their final obsolescence.

15 PORTFOLIO B//C
16ARCHITECTURE C//S
17 PORTFOLIO B//C

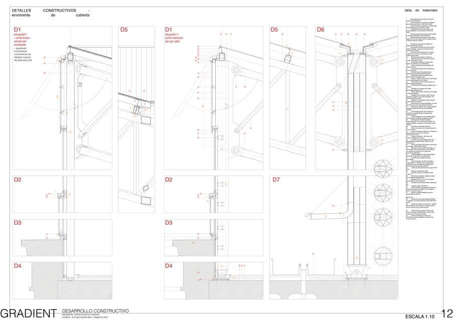
GRADIENT.pt2 construction//documents.

TFM - ud. Lleó

The proposal is composed of a large piece of roof that acts as a solar and thermal filter, and a series of programs built by means of exempt and interchangeable volumes inside the building and the roof. in this way, the technological development proposed here seeks to solve both worlds, the roof and the programs, by means of a model-type band solution applicable to the rest of the building situation. By means of light materials and recyclable and low-cost proposals, the entire space is solved while taking advantage of natural resources in a passive and bioclimatic way.

18ARCHITECTURE C//S
19 PORTFOLIO B//C
20ARCHITECTURE C//S
21 PORTFOLIO B//C

ELNUEVO METABOLISMO

Revisión infraestructural en la arquitectura contemporánea

prof: Almudena Ribot Manzano ETSAMadrid//2020

The research is based on the book Project Japan - Metabolsim talks by Rem Koolhaas to analyze and review in detail the main concepts of the metabolist movement and apply them in a comparative way to contemporary examples and the modern post CIAM world in order to affirm the apparently existing relationship and influence between both time periods. The work is divided into two main lines of research, the introduction being the section that understands the motivations of the architects of metabolism, and a second comparative episode between the metabolist world and later examples. The objective of the work is achieved by means of the graphic comparison of similar examples, grouped according to infrastructural theories that confirm the influence that both worlds have in eachother and in the future of architecture

22ARCHITECTURE C//S
23 PORTFOLIO B//C

URBAN LANDSCAPES

Undergraduated P8 - u.d. Snacho prof: G. Pardo, A. Ozaeta, G. Sevillano ETSAMadrid//2020

La Manga requires a special treatment at the coastal level as it is a tongue of land that develops between two different seas but dependent on each other. By means of the perforation of the built front, the natural environment that saw its resources interrupted between both coasts opens a new path between the buildings colonizing its massive interiors. The perforations will occupy and connect by means of sandy dunes the summer dwellings and the public space, abstracting the existing separation between public and private in favor of a continuous space that allows the development of a continuous space that will allow the development of the public space. in favor of a continuous space that allows the natural and built environment to develop freely. A new sea, a new Mar Menor, a new life between the natural and the artificial.

24ARCHITECTURE C//S
LA // MANGA
25 PORTFOLIO B//C // DEL // MAR // MENOR
26ARCHITECTURE C//S

(...) the dune path through the building is complemented by the restructuring of the interior of the dwellings, which is built around it with bands of services, freeing the public space of the dwellings to the continuum of the whole building, thus allowing to reduce the private dimension in favor of a natural growth of the building and its environment.

27 PORTFOLIO B//C

the dune articulates the public space of connection between levels and with the outside public, growing in height respecting the friction of the sand itself that sedately (...)

28ARCHITECTURE C//S
29 PORTFOLIO B//C
(...) enters the building.

OBSOLETE ARCHITECTURES

Undergraduated P7 - u.d. Snacho prof: G. Pardo, A. Ozaeta, G. Sevillano ETSAMadrid//2019

The concept of a focus building, a seed of urban development that provides facilities to neighborhoods under construction, will take the interest of saving certain emblematic buildings of the city of San Sebastian that, for certain reasons, have become obsolete. Transplanting something from one place to another, if dead, will die again. It was therefore decided to cut up the building into pieces that would travel the streets of the city, serving as propaganda and differentiating the construction of 5 pieces of different conditions, whose morphology will generate multiple spatialities when arriving at their new home, emphasizing the metabolist idea of flexibility and variability of spaces through movement, in this case, of massive pieces of a forgotten theater whose additions in light materials reconfigure the idea of a modern, flexible and open theater. Flexible and open to the city.

30ARCHITECTURE C//S
PORTFOLIO B//C FLEXIBILIDAD F L E X I B I L I D A D
32ARCHITECTURE C//S
33 PORTFOLIO B//C

WIND COMMUNE

Undergraduated P5 - u.d. Ábalos prof: I. Ábalos, G. Pardo, J. Gª. Germán ETSAMadrid//2020

We start with the analysis of the climate of Madrid to learn about its characteristics and use them in favor of architecture. In addition, the aim is to understand the functioning of a commune throughout history, to extrapolate it to a house “40 years later”. The location is closely related to the climate, located on an island in the middle of the Jarama river, serving as a bioclimatic buffer for the proposal, in addition to placing two rows of trees in the direction of the prevailing winter winds which would flood with cold the overheated interior of the of Madrid’s climate. The thermodynamic variable to develop the project will be the wind, creating a cordoned plant with its predominant directions directions, and developing in height through wind towers through wind towers of different materiality.

34ARCHITECTURE C//S
35 PORTFOLIO B//C WINDFLOW
36ARCHITECTURE C//S
37 PORTFOLIO B//C

BIOCLIMATIC ARCHITECTURE

BioclimaticWorkshop

prof: J. Neila, C. Acha, L. Olivieri ETSAMadrid//2019

The project arose from the search for a system to attach to an existing building to improve its thermodynamic performance while at the same the housing after the change in the understanding between day and night zone.

The design focuses on thermodynamics of materials and solutions to accommodate the existing to the new New Bauhaus objectives by means of a greenhouse piece on the façade that can be fully folded and hanging from the new photovoltaic roof.

38ARCHITECTURE C//S
39 PORTFOLIO B//C

Turn static files into dynamic content formats.

Create a flipbook
Issuu converts static files into: digital portfolios, online yearbooks, online catalogs, digital photo albums and more. Sign up and create your flipbook.