PORTFOLI D'ARQUITECTURA - CARLA VILÀ vol. II

Page 1

PORTFOLI D'ARQUITECTURA

W O R K S H O P b y A n n a B a c h A l a i m a t g e R e c u l l d e p r o j e c t e s 2 0 2 22 0 2 3 C a r l a V I l à M u ñ o z V o l I I
CONTACTE @carlavila + 34 633 26 17 74

contingut

EL MUR TROMBE

Projecte de disseny i confecció d’un prototip de façana, a partir de tecnologies bioclimàtica. El projecte comprenia des de la recerca fins a la compleció d’uns requisits sostenibles per a la realització del prototip.

FOTOGRAMA A L’OMBRA

Workshop experimental on es diferenciaven els elements d’estructura, envolupant, obertures i atretzo com a categories amb les que diferenciem les parts de qualsevol construcció desvinculant morfo - lògica

EL MÓN DELS SOMNIS

Workshop on es crea un escenari efímer per ser exposat al festival Lluèrnia 2023 Consisteix en una experiència sensorial que et transporta a la dimensió dels somnis on es connecten els subconscients de la ciutat

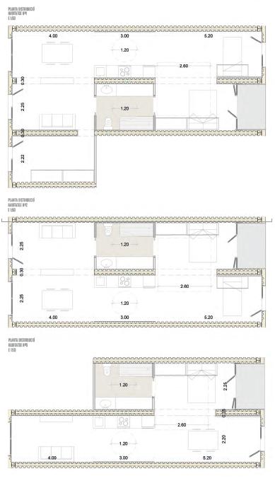
LÍMITS OBERTS A SALT

Projecte amb ubicació en els límits de la ciutat de Salt. Es dona resposta amb una proposta d’habitatge social a partir de contenidors marítims pensats com a solució per a construir de forma ràpida i sostenible.

REFUGIS BIOCLIMÀTICS

Projecte experimental que dona resposta a nivell de ciutat a les emergències climàtiques produïdes per l’escalfament global, mitjançant la col laboració amb Intel ligències Artificials, a partir del disseny de refugis col locats estratègicament.

3 5 7 9 11

elmur trombe

ProjectedesenvolupatalaUniversitatde Gironaal'assignaturadeARQUITECTURA SOSTENIBLE l'any2023

fotograma al’ombra

WorkshoprealitzatalaUniversitatdeGirona acàrrecdel'estudiAnna&EugeniBachde Barcelona,any2022

el món dels somnis

Projecte escollit pel festival Lluernia de 2023.

Confecció del projecte a l’assignatura de TEORIA DE LA IMATGE a la Universitat de Girona dirigida per Xavier Bayona

límitsoberts asalt

ProjectedesenvolupatalaUniversitatde Gironaal'assignaturadePROJECTESVIII

l'any2022

REFUGIS BIOCLIMÀTICS

ProjecterealitzatalaUniversitatdeGironaal’assignatura dePROJECTESIX l’any2023treballantambeines d’InteligènciaArtificial

PORTFOLI D'ARQUITECTURA CARLA VILÀ +34 633261774 @carlavila

Turn static files into dynamic content formats.

Create a flipbook
Issuu converts static files into: digital portfolios, online yearbooks, online catalogs, digital photo albums and more. Sign up and create your flipbook.
PORTFOLI D'ARQUITECTURA - CARLA VILÀ vol. II by Carla Vilà i Muñoz - Issuu