Book Capucine Corlet

Page 1

BOOK Capucine Corlet

Capucine corlet

Designer d’espace Expertise CMF

25 ans 06.33.94.96.92

capucine.corlet.design@gmail.com

Région Toulousaine

Permis B

Compétences

Suite Adobe

Sketch Up

AutoCad

Microsoft 365

Plans 2D & 3D

Conduite de projets

Chartes chromatiques

Conception lumière

Travail en équipe

Capacité d’adaptation

Sens de l’organisation Anglais

Centres d’intérêts

Promenades, randonnées, VTT

Cuisiner, voyager

Photographie, musique, expositions, théâtre, concerts

Bénévolat associations événementiel & restauration

Derniers projets

Château Laurens : Scénographie salle matériauthèque - Agde

Diptyque Audio : Gamme chromatique pour enceintes audio - Montauban Quartiers Lumières : Illustrations projections lumières pour la ReynerieToulouse

2021

Formations - Diplômes

2019 Design Espace Couleur Lumière

Master DECLE Création de méthodologies de projets, diagnostics, maîtrise & création d’outils (contretypage, nuanciers, cartographies ...), mise en valeur d’espaces, création d’ambiances chromatiques & lumineuses, CMF design : Couleur, Matériaux, Finition

- Montauban -

2019

2018

Licence ADST Méthodologies de conception de projets d’espaces

Arts Design Sciences et Techniques

- Montauban -

2018

2016 Design de Communication Espace et Volume

2016

2014

2023

2020

2020

2019

2017

Maîtrise couleurs & lumières

Pratique plastique et picturale de la couleur

- MontpellierBTS DCEV Conception d’espaces communicants

BAC STD2A

Mise en valeur d’espaces scéniques

Communication et médiation de projets

Création de cahiers des charges

Sciences et Technologies du Design et des Arts Appliqués - Aix-en-Provence

Expériences professionnelles

Freelance, Designer d’espace, expertise CMF (1 an)

Designer d’espace, mise en valeur d’espaces, plans 2D & 3D, création d’ambiances, planches tendances

Designer coloriste, conseils et expertises CMF design

Stage Agence Quartiers Lumières - Toulouse (3 mois)

Mise en lumière, éclairage urbain & architectural, promenades lumineuses, événements sons et lumières, propositions techniques & poétiques

Stage Vivre l’Aménagement de Son Intérieur - Venelles (4 mois)

Conception de projets en neuf & rénovation et pose des agencements

Suivi de projet, planches d’ambiances, plans 2D & 3D

Stage Agence Nacarat - Toulouse (2 mois)

Designer coloriste, conseils et créations dans le design global axé sur la couleur. Création de chartes chromatiques, cartographies, plans 2D & 3D

Stage Agence Arscenes - Montpellier (2 mois)

Muséographie pour le musée de la Châtaigneraie Création de graphismes pour les médiations

Gamme couleurs/Matières 03 8 Domaines de compétences Architecture d’intérieur 01 Conception lumière 02 Scénographie urbaine 04 Muséographie 05 Conception objet 06 Paysagisme 07 Photographie 08

Architecture d’intérieur

Ateliers d’artistes et lieu culturel

Projet réalisé en Master 1 DECLE

Reconversion du marché couvert de Montauban en ateliers d’artistes en résidence.

Dentelles de pavé de verre sur le plafond déjà existant

4
01
Coupe AA’

Nous avons voulu faire des touches de rappel dans la conception des espaces. En effet, le bâtiment avait déjà de grandes ouvertures qui apportent de la lumière naturelle. Il nous a semblé important d’utiliser des matériaux qui gardent l’essence du lieu tout en le réactualisant. Pour ce faire, nous nous sommes inspirés de l’esthétique des fenêtres en mettant le verre au cœur du projet. Il se décline en plusieurs finitions et plusieurs opacités.

Espaces ouverts sur l’extérieur

Les espaces sont modulables, adaptables aux différents besoins. Pour cela, des parois coulissantes permettent de découper l’espace.

5
Matérialités de verres

01

Architecture d’intérieur

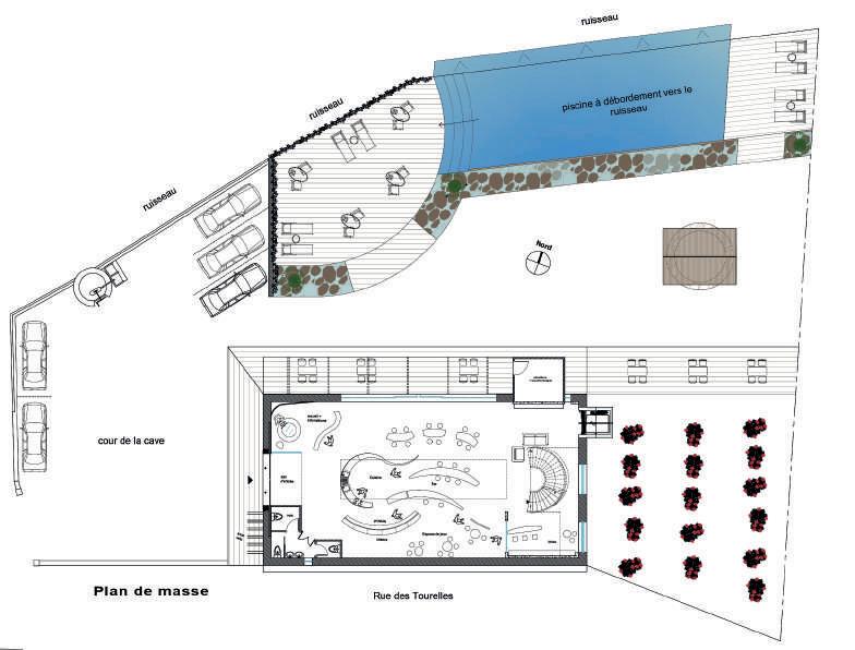
Auberge de Jeunesse

Projet réalisé en Licence 3 ADST

Reconversion d’une cave à vin à Fouzilhon en auberge de jeunesse. Le concept du projet était de garder le patrimoine culturel du domaine pour accueillir les clients. Les formes présentes dans l’ancienne utilisation du bâtiment sont restituées dans l’aménagement des différents espaces.

6
Plan du 1° étage Plan de masse Espace de jeux, vue vers l’escalier Espace à aire ouverte 1° étage - répartition des chambres

Façades vue de la rue et vue du jardin

Maquette à échelle 1/100°

Vue du jardin, rez-de-chaussée

7
1 8 PMR ASC vente de produits casiers Espacedejeux biblio accueil + informations sas d'entrée velolocal paroi bar 22 chaufferie + local technique
Plan du rez-de-chaussée
Vues aériennes

Architecture d’intérieur

Conseils couleur/matériaux et conception d’aménagements

Projet réalisé en stage dans l’agence « Vivre l’aménagement de son intérieur » en juillet 2020.

Création de lits superposés sur mesure, production de rendus 3D pour aider à la visualisation pour les clients. Plans de l’aménagement et élévations des différentes faces du lit pour la production.

8
01

Accompagnement des clients à la définition des ambiances par la création de planches tendances par pièce : choix des matériaux et couleurs

Suivi effectué avec les différents fournisseurs, peintres et poseurs lors du chantier.

9

Conception Lumière

Graphisme, projections d’images

Projet réalisé au sein de l’agence « Quartiers Lumières » , lors d’un stage en Master 2 DECLE.

Création et scénographie lumière d’images fixes projetées sur des pignons de bâtiments ainsi qu’au sol de la Reynerie (quartier de Toulouse). Cinq thématiques sur la biodiversité : Faune, Végétaux, Insectes, Éléments et Ciel.

Infographies

La faune, empreintes de pas

La faune, chauves-souris

Les végétaux, bourgeons

Le ciel, la lune et les nuages

10
02

Installation des images projetées en Janvier 2022

11

Conception Lumière 02

Lanternes d’éclairages publics

Projet réalisé au sein de l’agence « Quartiers Lumières » , lors d’un stage en Master 2 DECLE.

Infographie

Graphisme d’images fixes qui seront projetées dans les villages, appelées gobo.

Masque de lanterne de La Mothe Saint-Héray

Gobo

Gobo et masque de lanterne de Celles-sur-Belles

Gobo

Projection d’images à Celle-sur-Belle

Projection d’images fixes sur le parvis de l’église et mise en lumière de celle-ci. Valorisation du patrimoine par la lumière, les images projetées rappellent des éléments présents dans la ville, que ce soit des éléments architecturaux ou végétaux.

Gobo et masque de lanterne de Melle

Gobo

12

Créations des masques pour le remplacement des lanternes de plusieurs villes dans les Deux-Sèvres.

13
Masque Masque Masque Lanterne Lanterne Lanterne

Gamme Couleur/Matière 03

Motif de papier peint / Création gamme Terre

Projet réalisé en Licence 3 ADST

Éphémère Fort

Rouge caprice S1580-R

Rouge immortel S4550-Y90R

Gris vieilli S6502-Y

Bleu chic S7020-R80B

Imprévisible

Bleu strict S7020-B

Rouge fusion S2570-Y80R

Brun givré S3020-Y40R

Jaune exotique S0585-Y20R

Jaune fluide S0540-Y

Gris tièdes S2000-N

Vert duvet S2040-G80Y

Bleu vie S1050-B10G

14

Création d’un motif de papier peint, sur le thème de la terre, déclinable dans une gamme de couleur créée via le nuancier NCS.

Fragile

Bleu banquise S1005-B20G

Gris naissant S1000-N

Rose tendre S0510-R10B

Blanc élégant S0804-R10B

Inébranlable

Vert traditionnel S7020-G30Y

Gris urbain S3502-Y

Violet infini S7020-R60B

Noir mystérieux S8505-B20G

Papier peint de la collection Terre, gamme Éphémère.

Gamme Couleur/Matière 03

Reproduction d’enduit pour Montauban

Projet réalisé en Licence 3 ADST

Repérage des différentes typologies de façades, des matériaux et des techniques employées pour la construction de celles-ci. Relevé de couleur in-situ avec nuancier.

Expérimentations des matérialités

Repérage à Montauban

Enduit avec différents grains et des applications différentes selon l’outil tel que le stuc lissé et craquelé. Multiples textures et matérialités pouvant être obtenues avec un enduit ou un stuc.

16
Pression et lever à la cuillère + ou moins Empreinte de tissage Stuc lissé Argile + sable blanc Enduit argile blanche Stuc sec non lissé, craquelé

Les couleurs : la gamme

À partir des codes NCS

S 1005-Y20R

Expérimentation

et reproduction des

enduits

Reproduction des couleurs et des matières en atelier pour constituer la gamme couleur représentant la ville de Montauban.

Obtention des couleurs avec code nuancier NCS.

17
2° passe teintée dans la masse Pigment étiré en surface Ocre oxy apt jaune + rouge Ercolano S 3040-R Argile rouge 60% + enduit chaux 40% écrasé S 2020-Y40R Argile rouge 60% + enduit chaux 40% Enduit écrasé Oxyde de fer naturel rouge S 2030-Y70R Argile blanche Terre ombre chypre naturel + ocre oxy jaune

Gamme Couleur/Matière

Création de nuancier sur la teinture végétale

Projet réalisé en Licence 3 ADST

18 03

Création d’un cahier de tendance et d’un nuancier après des expérimentations autour de la couleur végétale appliquée sur le tissu. Restitution des recettes utilisées pour la teinture.

19 Nuancier des couleurs obtenues sur le tissu

Diptyque audio, gamme Élégance

Projet réalisé en Master 1 DECLE

Création de la gamme élégance, pour l’entreprise d’enceinte diptyque audio. Ces enceintes plates sont réalisées avec un savoir faire unique et à la main dans leur atelier à Montauban. Suite à l’élaboration de la gamme, celle-ci est commercialisée depuis janvier 2020.

Gamme Élégance

Champs ÉlysÉes

Création d’une gamme chromatique originale et séduisante destinée au modèle dp160 réservée à la clientèle privée de DIPTYQUE AUDIO. Ces collections s’inspirent des grandes traditions ornementales symbolisant le luxe et le raffinement à travers le monde s’exprimant ici au travers de compositions harmonieuses de couleurs, matières et textures modernes et innovantes.

Tendances / Inspirations DP

20
Gamme Couleur/Matière 03
- Gamme élégance - Champs-Élysées
160
Bel Air Opéra Montmartre Vendôme

Création d’un univers lumineux

Projet réalisé en Master 1

La lumière nous permet d’inventer des ambiances ainsi que des univers propres à chaque situation. Nous avons recréé notre Galaxie avec de simples jeux de lumières et un décor réfléchissant. Restitution du travail par des prises photographiques.

DECLE Gamme Couleur/Matière 03

Gamme Couleur/Matière 03

Imitation de matières et de textures

Projet réalisé en Master 1 DECLE

Workshop imitation de matière et textures pour décors.

Imitation pierre d’onyx

Imitation craquelures

Imitation granite

24
25 Imitation cuir Imitation rouille

Gamme Couleur/Matière

Promenade chromatique et texturée

Projet réalisé en Master 2 DECLE

Représentation chromatique et texturée d’une promenade. Expérimentation plastique pour traduire les ressentis perçus lors de la promenade.

26
03
27

Scénographie

Urbaine 04

Promenade Urbaine

Projet de fin d’étude en Master 2 DECLE

Création d’une promenade urbaine sur l’axe central d’Aix-en-Provence. Le but étant de relier le territoire paysager autour de la ville avec celle-ci. Pour cela, création de gamme couleur et texture lors de relevé in-situ. Cette gamme est employée pour la création de modules implantés le long de la promenade.

Matérialités de la Sainte-Victoire appliquées aux modules

L’Antre Deux

Écho

29

Scénographie Urbaine 04

Ode à l’amour et à la création

Projet réalisé au sein de l’agence « Nacarat » lors du stage de Licence 3 ADST

L’agence a été lauréate à l’appel d’offre d’Embelir Paris sur deux sites.

Le 1° projet concernant le porche sur la rue Bernard de Ventadour, « Ode à l’amour et à la création » Création des motifs géométriques et des gammes couleurs avec l’entreprise de mosaïque Ezarri.

Ce projet lauréat a été réalisé en août 2019.

Esquisse du dispositif envisagé

Géniedu lieu

PARIS 07 - 02 2019 >

Porche sur la rue Bernard de Ventadour, Paris 14e

Génie du lieu : Ode à l’amour et à la création

Simulation de principe : côté rue Bernard de Ventadour (entrée nord depuis la rue Pernety)

> Les motifs ici indiqués sont des détails approximatifs de l’aspect final du mural. Les deux parois vont comporter le même motif.

30
Motif 1
> Motif 2 > Motif 3 : il sera utilisé pour démarquer le fronton du porche côté rue Desprez. Le fronton n’est pas visible dans cette perspective. > Motif 4 > Motif 5 > Motif 6 > Motif 7 > Motif 9 > Motif 8 <

Scénographie Urbaine 04

Screens of colors

Projet réalisé au sein de l’agence « Nacarat » lors du stage de Licence 3 ADST

L’agence a été lauréate à l’appel d’offre d’Embelir Paris sur deux sites.

Le 2° projet de la promenade urbaine BarbèsRochechouart, « Screens of Colors », permet de déambuler au grès du rythme des couleurs des voiles. Création des harmonies chromatiques et de l’agencement des voiles.

Harmonie 6

Esquisse du dispositif envisagé

Station Barbès-Rochechouart

Harmonie 1 Harmonie 2 Harmonie 3 Harmonie 4 Harmonie 5 Harmonie 6

Esquisse de l’agencement des voiles de couleurs disposées sur le marché de Barbès.

32

Harmonie 6

Esquisse du dispositif envisagé

Les voiles de couleurs / Screens of colors

Harmonie 6

Passage du métro

2 m

2.5 m

138 toiles suspendues polychromes avec un hauteur variable (3.5 m max à 1.4 m min) largeur approximative 8 m

La promenade urbaine offre un terrain de jeu pouvant nous transporter à travers des univers colorés. Ces Screens of colors nous amènent à rêver, et nous immergent dans un imaginaire propre à tout à chacun.

Ces couleurs chaudes font vivre ce lieu et permettent d’accueillir les riverains dans une promenade composée de plusieurs séquences de couleurs. Celles-ci sont reparties dans 12 séquences, composées de 6 harmonies différentes. Les couleurs sont travaillées de manière à arriver à une polarité de la couleur qui petit à petit diminue et se décline.

Harmonie 5

Harmonie 4

Harmonie 3

Harmonie 2

Harmonie 1

Zone pouvant être investie par la structure

33

Toulouse du bout des doigts

Projet réalisé au sein de l’agence « Nacarat » lors du stage de Licence 3 ADST

Création de la muséographie pour l’exposition Toulouse du bout des doigts, commande de la mairie de Toulouse dans le cadre de devenir ville Patrimoine mondial de l’UNESCO. Exposition temporaire du 26 mars 2019 au 28 juin 2019 à L’Atelier du Patrimoine et du Renouvellement urbain.

Toulouse DU BOUT DES DOIGTS

Toucher, voir et comprendre les matériaux de construction

La matière première est à portée de main, de rêves. Artisans et

transforment la terre, la pierre, le bois et la chaux en édifices tantôt sobres, tantôt somptueux, mais toujours durables. Ils accompagnent rues et places et participent au paysage urbain.

Toulouse se dessine par ses matériaux. Le poli du galet, le grain de la brique, la chaleur du bois vous racontent la ville...

Sept thématiques à explorer

1. Terre cuite

2. Terre crue

3. Pierre

4. Enduit badigeon et peinture

5. Mortier, terre, chaux et ciment

6. Bois

7. Métal et ferronneries

Plan de la muséographie

Muséographie 05
Exposition 26.03.2019 28.06.2019 Remerciements à nos contributeurs : Association Régionale d’Éco-construction du Sud-Ouest I www.areso.asso.fr Centre de Terre et d’énergie renouvelable I www.centredeterre.fr Nelly Desseaux & Alain They Entreprise Flandé www.entreprise-flande.com Le musée du Vieux Toulouse www.toulousainsdetoulouse.fr Julien Salette www.platre.com vieujot.wordpress.com Terres Cuites du Savès www.terrescuitesdusaves.com Conception et réalisation : NACARAT Color Design www.nacarat-design.com en collaboration avec L’Atelier du Patrimoine et du Renouvellement Urbain Partez à la découverte de cette matériauthèque toulousaine qui réunit, à l’Atelier du Patrimoine, les éléments les plus caractéristiques de notre bâti traditionnel. Elle vous révèle, dans toutes leurs dimensions, les matériaux qui font l’identité, l’originalité et l’homogénéité de la ville.
créativité
propres
Ils expriment à eux seuls une
et des savoir-faire singuliers,
à notre territoire.
bâtisseurs
asc Sanitaires Vers bureaux < Locaux techniques Escaliers Escaliers Terre cuite Intr r, chaux, plâtre Pi Bois Méta Terre crue Crépis, enduits et badigeons Accueil Place Saint-Sernin Entrée
Rue duTaur

Panneaux de présentation des techniques

Dès

Cette couche de

assure ainsi la pérennité et l’homogénéité des façades.

Ces savoir-faire, développés dès l’Antiquité, ont perduré. Les couleurs et épaisseurs ont varié au fil du temps, tantôt pour gommer les irrégularités, tantôt pour laisser deviner l’appareillage de la façade.

Le centre-ville de Toulouse présente une

Les

La détrempe ou eau-forte  :

La patine : la plus

Le

Présentation des typologies de façade avec les différents modes de construction qui ont permis et permettent de bâtir la ville de Toulouse.

Uniformisants

Économiques

Caissons de présentation des matériaux

Échantillons des différents matériaux employés dans la constrution. Possibilité de toucher les matériaux et de les manipuler.

L’avantage p rincipal d u paillebard était son prix : t rente fois m oins cher que la maçonnerie de brique. La comparaison est spectaculaire : le bousillage v alait, e n 1844, 0 ,78 franc/m3 ( 0,80 franc e n 1854) ; l a maçonnerie de b riques f oraines entières 26,40 f ranc. Le p isé était évalué e n 1841 à 0 ,80 ou 0 ,90 franc/m3 .

35 D-2_pt-immeuble-rapport Enduit Badigeon Peinture Avec l’augmentation du coût du bois de chauffe entre le XVI et le XVIII siècle, l’emploi de la brique de second choix se répand. L’enduit Sable de Dourgne Composition Usages À ces bases sont ajoutés des pigments colorés, allant de l’ocre-rouge au brunrouge, le blanc de plomb (céruse), le noir d’ivoire… Le badigeon Composition Usages Solutions techniques et esthétiques, les badigeons protègent les façades fragilisées et permettent de les colorer. Le gros œuvre, ainsi assaini, nécessite moins d’entretien. Deux types de badigeons sont utilisés : - Le lait de chaux (eau, chaux aérienne) -Le « Blanc d’Espagne » (eau, craie blanche) Le badigeon est appliqué en deux couches sur l’enduit ou sur la maçonnerie de brique. Influencées par une mode venue d’Ile-de-France, les briques sont recouvertes par un badigeon imitation pierre, sur lequel sont dessinés de faux joints. Il permet de protéger le parement, notamment de l’humidité. La mode changeant, l’enduit va permettre de cacher les briques ou les pans de bois, conférant une harmonie aux façades. Chaux aérienne Chaux hydraulique Mélange sable dourgne et thedirac rue Larrey - 17 place de la Daurade XVIII siècle enduit chaux aérienne grain moyen
chaux
chaux est issue de la calcination* du calcaire. Elle est utilisée pour la plupart des enduits ou badigeons. Il existe deux types de chaux : - La chaux aérienne, d’une très grande souplesse, pour les enduits de plâtres, les enduits minces et pour les badigeons hors soubassement*. - La chaux hydraulique pour les rénovations et l’entretien des maçonneries traditionnelles. Appliquée en épaisseur, elle est utilisée pour les soubassements et les fondations. Enduit de Thedirac et Dourgne Enduit de Thedirac Enduit sable de Dourgne Toulouse Cahors Quelques carrières de sable en Occitanie Protecteurs
Enduit sable de Soreze L’enduit se généralise pour protéger ces matériaux plus fragiles. Les enduits sont réalisés à partir de chaux aérienne et/ou de plâtre. Volume de chaux : 1 Volume de sable : 4 à 5 Focus Le patrimoine architectural en plâtre, encore mal connu, fait actuellement l’objet d’un pré-inventaire. Sable de Soreze Sable de Thedirac 22 rue des tourneurs XVIIIe siècle Ancien badigeon de céruse. Volume d’eau : 0,5 + pigments + pigments ... Volume de chaux : 1 Volume d’eau 2
La
La
Respirants
enduits
badigeons.
l’origine, la brique est le plus souvent utilisée avec des
et des
protection
diversité
coloris. Ci-contre 41 rue des Changes Première moitié du XIX siècle Enduit de plâtre, additionné de chaux, en imitation d’un appareillage de pierre. °C, acquiert la résistance nécessaire pour une application extérieure. Du sable est ajouté afin de créer du stuc-pierre, plus esthétique. Souvent blanc à Toulouse, peut être coloré à l’ocre. des corniches, des décors modelés ou sculptés, des moulages... Années 1770 Cette décennie introduit la mode des enduits et badigeons blancs, gris ou ocres, imitant la pierre. XVII siècle et XVIII siècle Apogée de la brique et des parements* apparents, badigeonnés ou peints à l’huile de lin ou de noix. Ordonnance des capitouls rendant le badigeon blanc obligatoire, afin d’améliorer l’éclairage des rues. 15 juin 1783 L’usage des peintures et badigeons traditionnels décline peu à peu après la Seconde Guerre mondiale. XX siècle Quelques repères temporels 4 Chaffre vieux Chaffre saves Les propriétés Inconvénients Avantages Quelques exemples Façades de la cour intérieure enduites et badigeonnées. Hôtel de Lafage 1747 Rez-de-chaussée habillé de tables de brique en bossage continu, unifiées par une détrempe.Étages enduits. 1 rue Romiguières 1862 11 rue Pargaminières XIX siècle : badigeons imitant les nuances de pierres. • Protègent le gros œuvre et la structure du bâtiment. • Rattrapent les défauts en uniformisant les façades. • Entretien régulier (tous les 10 ans) Chaffre badigeon
grande
de traitements et de
chaffre, une spécificité toulousaine 10 rue Saint-Pantaléon deuxième moitié du XIX siècle. Détail d’un appareillage de briques beiges rosées « chaffré Chaffre eau-forte
peintures et les revêtements fins Composition Composition Usages Usages À ces mélanges sont ajoutés des pigments naturels  : ocres et terres, charbons, composants métalliques (plomb, fer…) en fonction de la couleur désirée. À but décoratif pour frise et rehaut de parement. Uniformise les façades défraîchies ou masque les reprises d’enduits.
colorée.
transparente et
Préparation de badigeon à partir de poudre de brique beige, inspirée de la technique du chaffre.
transparente.
Poudre de brique foraine terre cuite Poudre de brique foraine Tls rouge Poudre de brique foraine Tls paille 28 rue des lois exemple de chaffre Détail de corniche, pilastre et encadrements. XIX siècle. Deux colorations de badigeons sur terre cuite l’un pour désigner la brique, l’autre pour qualifier les ornements et imiter la pierre. Richesse chromatique
Il s’agit d’une technique de frottage du parement finement badigeonné, permettant d’obtenir une finition murale très lisse, presque translucide, proche d’un glacis. Aujourd’hui, certains artisans s’inspirent de cette technique et créent leurs revêtements « traditionnels » à partir de poudres de brique ancienne. Épais, ce revêtement permet de restaurer les briques cassées. Dilué, il est proche de la détrempe. Terre de sienne naturelle Ombre naturelle Terre de sienne calcinée Volume de chaux : 1 Volume d’eau : 4/5 + pigments ... Volume de chaux : 1 Volume d’eau : 20 + pigments ...
Torchis

Musée de la Châtaigneraie

Projet réalisé au sein de l’agence « Arscenes » lors du stage de BTS 1 DCEV

Création de graphismes pour les médiations de la muséographie du Musée de la Châtaigneraie. La muséographie séquencée par thématiques, création d’univers chromatique pour les différencier.

Médiation sur la transformation de la châtaigne et ses différentes formes.

36
Muséographie 05
37

Muséographie

Musée Henri Pradès

Projet réalisé en BTS 2 DCEV

Création de la muséographie pour l’exposition permanente archéologique du Musée Henri Pradès à Lattes (34). Projet présenté à l’équipe du musée le 22 mars 2018.

Proposition de Capucine Corlet et Clémence Moreau.

Assembler les époques

Montrer l’évolution et la richesse des techniques, des matériaux et des formes qu’ont subit les objets depuis l’époque gallo-romaine.

Miroir sans tain, pour avoir une vision du présent vers le passé pour s’en inspirer.

La forme du support de médiation crée un zoom sur l’objet phare de la vitrine et permet de rapprocher le visiteur des objets exposés.

Possibilité de toucher les différents matériaux, anciens et nouveaux.

38
05

Jeu de reconstitution d’objets

À la manière de l’archéologue, jouer entre la forme et le matériau.

Découpe au jet d’eau

Création de copies pour les objets d’époque.

Plan avec les médiations des vitrines et mises en situations sur maquette à échelle 1/100°.

39

mobilier éphémère

Projet réalisé en Master 1

Détendez-vous avec KIT le mobilier urbain qui s’assemble grâce à VOUS.

Vous cherchez où vous détendre lors de vos moments d’attente?

Kit vous propose d’aménager et de vous approprier ces lieux.

Dans votre KIT , trois possibilités s’offrent à vous.

Dans votre vous allez concevoir une table, un banc ou un dossier. Vous pouvez vous installer où vous le souhaitez, tout en profitant du mobilier qui est adapté à vos besoins. Facile de réalisation , il sera aussi ludique pour les enfants que pour les grands! Grâce à vous allez animer vos lieux d’attente ou de détente en créant des espaces conviviaux!

Scénario d’usage

40
DECLE Conception Objet 06 KIT, le
Marco Levy
Salma Bouhnek, Capucine Corlet,
TICE
Modèle d’assemblage table et banc

est un mobilier éphémère urbain modulaire. Ce mobilier est basé sur le principe de location au près de bornes dans les villes

du

Repères d’angles

1 3

2

2

Assemblage des pièces d’articulation par code couleur et numérotation

Guide de montage

Et voici votre banc grâce à

Emboîtement des tasseaux avec les pièces d’angle pour créer la structure

Vue éclatée du montage

41
Contenu
Angles Sangles Tasseaux Cartons
3
3 3 2 2 1 1 2 3 1 2 1 2 3

Conception Objet 06

Marcorelles, entreprise de PMMA

Projet réalisé en BTS 2 DCEV

Création de lampes pour une entreprise de PMMA (Polyméthacrylate de méthyle) appelé aussi ©Plexiglass. Objectif : Commercialisation pour des particuliers.

42

Échantillons de textures, corrosion avec de l’acétone.

Effets de lumière

Conception Objet 06

Moby Dick, livre de poche

Projet réalisé en BTS 2 DCEV

Création de la première, de la quatrième et du dos de couverture pour le livre de poche Moby Dick, d’Herman Melville, ainsi que son support de mise en vente.

44
'’ Des cercles concentriques saisirent le canot solitaire et tout son équipage '’

Extrait de Moby Dick, H.Melville

Image inspirée de la scène finale entre le cachalot et l’équipage. Sur la première de couverture, on y voit un œil, une doline (trou marin), une vague emportant le bateau.

45

Un paradis «presque» artificiel

Projet réalisé en Licence 3 ADST

Création d’un jardin sur la thématique du jardin du paradis pour le festival des Jardins de Chaumont, printemps - été - automne 2019.

Ambiance et composition des végétaux. Les plantes sont placées aléatoirement, comme dans la nature.

Un paradis «presque» artificiel

Le jardin que vous allez découvrir va changer votre regard sur le paysage qui vous entoure. Le paradis est un monde où l’Homme et la nature sont en parfaite harmonie. L’expérience que vous allez vivre vous fera dialoguer au plus près de la végétation. Se perdre à travers les chemins de plantes sauvages et le relief pour finir par s’élever et prendre du recul sur son expérience…

Cartel d’introduction à la visite du jardin « Un paradis «presque» artificiel ».

46
Paysagisme 07

Plan de masse selon les saisons

Plan de masse en été

Plan de masse en automne

Carte topographique

Notre jardin aura plusieurs niveaux. Le visiteur pourra alors le parcourir et le découvrir sous différents angles de vue.

Mises en situations

La coupe AA’

Mouvement (Capturé)

Projet réalisé en Licence 3 ADST

Réflexion

Embryonnaire

Participation à la 4° Biennale Nationale de Photographie de Danse, en collaboration avec le chorégraphe Pedro Pauwels et sa troupe de danseurs.

48
Evolution Fragment Incertain
Photographie 08
Introspection
Soulevement Soi
Exploration
Fluctuation

Turn static files into dynamic content formats.

Create a flipbook
Issuu converts static files into: digital portfolios, online yearbooks, online catalogs, digital photo albums and more. Sign up and create your flipbook.