Architectural Portfolio 2025 by Candie

Page 1


Candie Li

About Candie

Prior to Master study of Architecture in Hong Kong, Candie has been working for more than 4 years as an Architectural Assistant across few practices, varied from local projects to mainalnd China and overseas ones. Apart from her design ability, she was recognised as a good teammate and a person to rely on for project management. She had handled minor works in co-operation with district council, LCSD and FEHD in Hong Kong, several renovation projects (school, gallery, private mansion) involving liasion with the Buildings Deaprtment, and an oversea partnership in delivering a laboratory-research office.

In her Bachelor and M.Arch projects, she focuses on sustainablity in living through education, cultural influence, and experimental way. She attended one Semester-exchange in Austria where she also had connection with different experts who promote sustainablity in building industry.

Other time, Candie enjoys handcrafting, travelling, reading and going outdoor activities in which all of these can spark inspiration and become the library of knowledge. Recently she is also leading guided tours in Lantau Island on a village regenerative programme.

House Retrofit to Gallery Phase 1

Sik On Street, Wan Chai

Statutory consultation, Government submission, Site inspection

Year: 2022

Kowloon Tong

Statutory consultation, Facade renovation, Repair of roof, stair, carpark

Facade Design Material Distribution (SW)

Chemical Laboratory and Office for Reckitt in Dongguan, China Year: 2021-2023

Shopping mall renovation project design

北京朝陽區

Chaoyang District, Beijing

Year: 2020

Est. GFA: 54,720 sq.m

擬建二層平面圖 Proposed 2nd Floor Plan

擬建一層平面圖 Proposed Gound Floor Plan

擬建三層平面圖 Proposed 3rd Floor Plan

屋頂平台原佈局 Original Roof Layout Plan

擬建屋頂平台規劃 Proposed Roof Zoning Plan

擬建屋頂平台佈局

Proposed Roof Layout Plan

Master Layout Planning design

Chaoyang District, Beijing

Year: 2020

Est. Site Area: 79,240 sq.m

Est GFA: 24,3090 sq.m

Competition—— Lanju GBA Museum design

Zhongshan

Year: 2020

Est. Area: 50,300 sq.m

Plot Raio: ~40%

室內效果圖

Interior view

戶外效果圖

Exterior view

剖面圖B-B’

Section Plan B-B’ (see the next page)

1. 建築體量最大化後,文化精髓匯集於此,掀起時 空漣漪。

Maximazing the built program, museum culture is anchored by a time-space chain effect.

2. 建築體量分成三個展館(歷史文化展館、 互動交流 館、文藝孵化館),在道路相交點互相連繫。

The mass is divided into 3 volumns (History&culture exhibition hall, Interactive hall, Art incubation hub) while central focus point is created.

3. 形態模仿花瓣,蓮花散落,人文向中心凝聚 。

Intimated the building form into petal-like, symbolizing the impression of lotus flower, as to drive humantity culture towards the center part.

4.

蓮花形態因應人和環境改變,形成文化川流。 The form is further modified to respond human behaviors and surrounding environment, creating art and cultural stream.

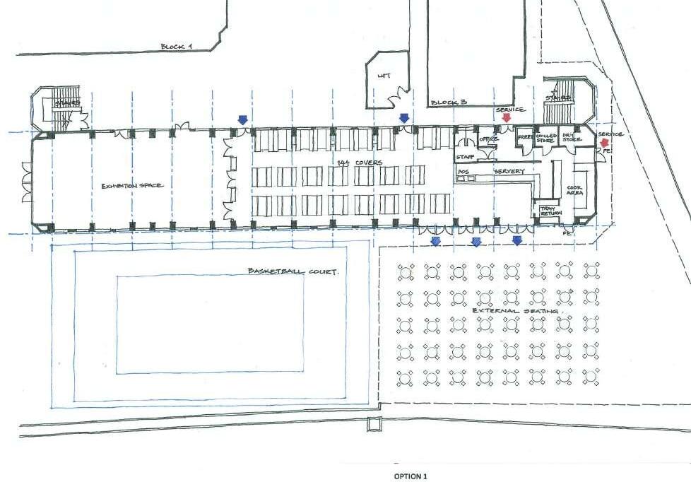
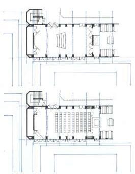
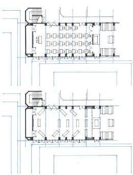
Competition—— School of Thought by UNI

Sha Tin College Renovation Project Phase 1, 2

DT Rooms, Library, Canteen, Kitchen, Multi-purpose room, Toilets, Staff room Year: 2021-2023

Research

Thank you for your time.

Li Man Yee, Candie

Hong Kong +(852) 6342 1983 limanyee18@gmail.com https://www.linkedin.com/in/candieyee/

Turn static files into dynamic content formats.

Create a flipbook
Issuu converts static files into: digital portfolios, online yearbooks, online catalogs, digital photo albums and more. Sign up and create your flipbook.