Junior Year- Portfolio

Page 1

C G

Hello,

My name is Camryn Ross and I am currently a junior in the Interior Design Program at The University of Southern Mississippi. I chose to pursue a degree in interior design because I have always had an interest in design and space planning. I find immense satisfaction in taking an empty room and turning it into a place that not only looks aesthetically pleasing but also caters to a client’s unique needs and desires. Interior design, for me, is a constantly evolving field that allows me to continually explore new ideas, materials, and styles while making a positive impact on people's lives. One of my goals is to create functional, safe, and aesthetically pleasingspaces.Thisinspiresmetoworkonresidentialprojects.

CONTACT camrynxross@gmail.com (614)-620-6043 in:CamrynRoss instagram:ross.designs20

EDUCATION

Northeast Mississippi Community College

2020-2022

AAInteriorDesign/FineArts

Art/DesignDepartment

The University of Southern Mississippi

2022-2025

BSInteriorDesign

InteriorDesignDepartment

CIDAAccreditedProgram INVOLVEMENT

InteriorDesignProgram-USM

ASIDMember-USM

EXPERIENCE

Retail/SocialMediaManager

RoseDrugCompany,WestPoint,MS

January2019-January2023

Createdisplaysofproducts

Learnedaboutthesalesandbuyingprocess

Workedone-on-onewithreps

ManagedInstagram,Facebook,Website,and Tiktok

Retail/Teammate

BuckleInc,Hattiesburg,MS

January2023-Current

Createdisplayofproduct

Createrelationshipswithguests

Provideexceptionalcustomerservice

TECHNICALSKILLS

Revit

Enscape

AutoCAD

AdobeInDesign

AdobePhotoshop

FF&E

QUALITIES

HighlyOrganized

AttentiontoDetail

SustainableDesigns

LightingPlans

SpacePlanning

HandDrafting

ModelMaking

ConstructionDrawings

ExcellentCommunicationSkills

TimeManagement

ProblemSolver

Fast&VisualLearner

SMOKY MOUNTAIN 2 Materiality Project Gatlinburg,TN FOREST VIEW 1 ForestView KitchenRenovation Hattiesburg,MS 3 DISPENSARY ALLSWELL ALLSWELL DISPENSARY Laurel,MS 4 RENDERINGS/ HANDDRAFTING

1

Forest View

Hattiesburg, MS

TheUniversityofSouthernMississippi

Year:2023

Professor:ClaireHamilton/KaraLucas

Software:Revit,Enscape,Photoshop

KraftMaid has received several certifications, including the Forest Stewardship Council (FSC) and the Kitchen Cabinet Manufacturers Association (KCMA), which certify that their products meet strict environmental and sustainability standards Cambria Quartz countertops are manufactured using a low-impact process that minimizes water and energy use. They also use 100% reclaimed water in their manufacturing process and recycle all of their wastewater

KRAFTMAIDCABNIETRY CHERRYWOOD W/HUSKSTAIN LLFLOORING HERRINGBONEACACIA HARDWOOD TILE-BARCOLORPLAY EMERALDGREEN CERAMICBACKSPLASH CAMBRIA MAMMOTHCAVE QUARTZCOUNTERTOP SENSA GREY MARBLETILE BENJAMINMOORE WHITEDIAMOND WALLPAINT&PRIMER

The Forest View kitchen renovation aims to seamlessly blend the natural beauty of the surrounding woodlands with the functional and aesthetic requirements of a modern kitchen. The design concept focuses on creating an open and airy space that maximizes natural light and highlights the panoramic views of the forest while providing ample storage and workspace. Sustainable and eco-friendly materials will be used throughout the renovation to reduce the impact on the environment and

Morning View Evening View

When you enter the space, it brings you immediately into nature. This kitchen's goal is to enhance the panoramic view of the forest. Cherry wood cabinetry and black quartz countertops are used to bring in a biophilic and organic design to help mimic the forest around. By using KraftMaid modern cabinetry and quartz countertops, it complements the natural surroundings and creates a cohesive design aesthetic, with a focus on functionality and storage. The use of large floor-to-ceiling windows draws in natural light in the kitchen and dining space showcasing the forest view. This kitchen is renovated using sustainable features including KraftMaid cabinetry, Cambria quartz countertops, and JennAir innovative appliances. The kitchen and island include all of the cooking and baking essentials within each cabinet. The wet bar includes a mixology station with plenty of storage and open shelving. Also included in the wet bar is a JennAir coffee maker and a warming drawer built-in for convince as well. This is perfect for entertaining guests.

East Elevation

Gatlinburg, TN

2Materiality Project

TheUniversityofSouthernMississippi

Year:2023

P f AlLawson tures,&EquipmentProject

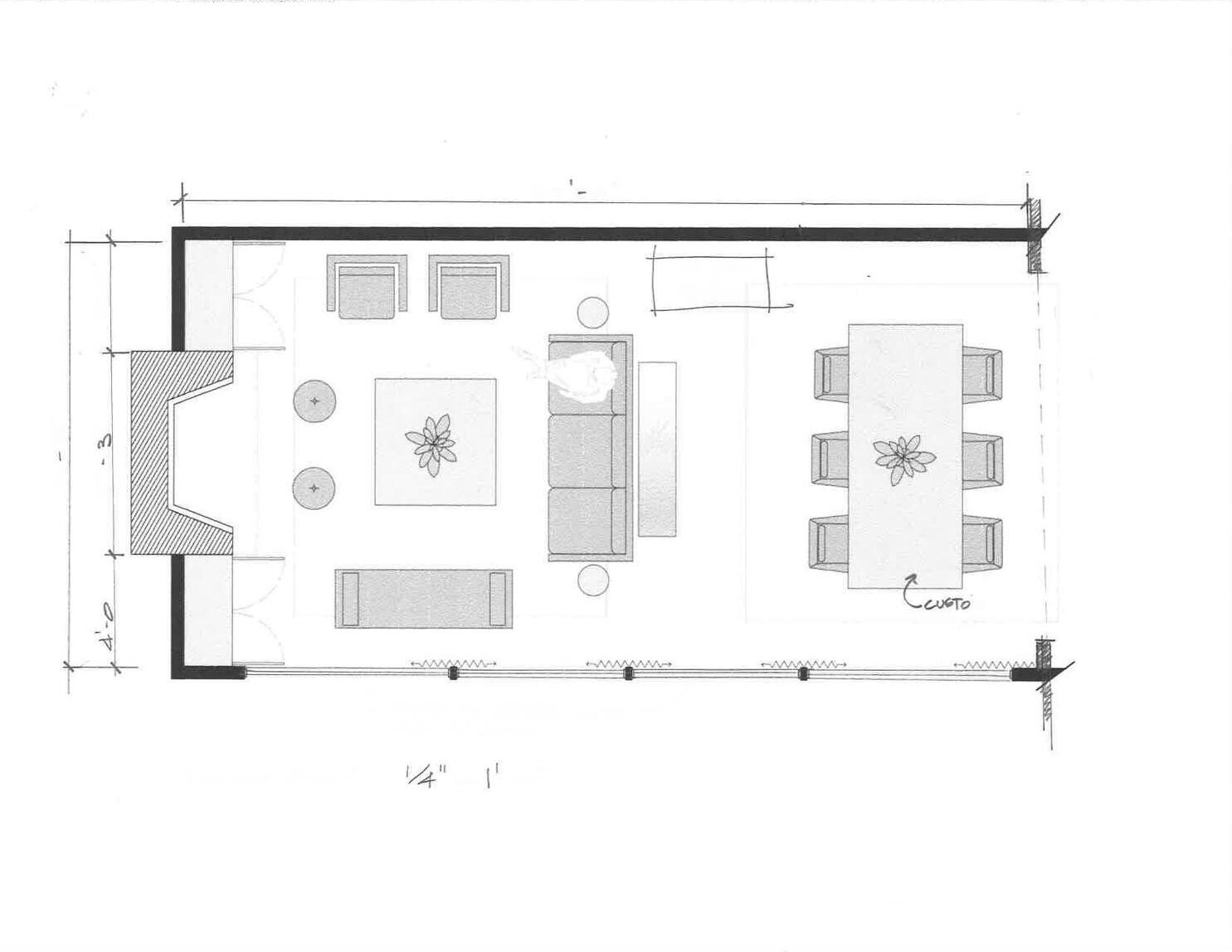
This Residential Floor Plan is for a Family of four. Two adults, and two children: one three-year-old son, and a one-year-old daughter. They own two pets, one dog and a cat. They live in Tennessee and have a beautiful private view of the smoky mountains They want easy to maintain materials and timeless furniture and decor. When possible, they prefer purchasing USA made products that are sustainable.

DESIGNTEX#6745101 TOVABIRCH WALLCOVERING NYDREE WHITEOAKPINEAPPLE WOODFLOORING COVERINGSETC MISTYGREYSTONE FIREPLACETILE BENJAMINMOORE LACEYPEARL WALLPAINT WESTELM WOODLANDSHINE JACUARDCURTAIN WESTELM FROSTGRAY AREARUG

The clients preferred that all furniture is made in the USA. West Elm offers furniture, rugs, bedding products, lighting, windows curtains, mirrors, kitchen and dining, storage, and baby and kids products. It is based in San Francisco, California.

Turn static files into dynamic content formats.

Create a flipbook
Issuu converts static files into: digital portfolios, online yearbooks, online catalogs, digital photo albums and more. Sign up and create your flipbook.