Cam Jones Portfolio August 2024

Page 1


Cam Jones
Architecture // Urban Design

Cam Jones

(806) 445-4765

camjones1@gmail.com

EDUCATION

EXPERIENCE

SUMMARY: Recent M.Arch graduate from UCLA with a previous career in the technical side of filmmaking, rich hands-on experience, and a deep interest in issues of urban design, infrastructure, housing, and transportation. A people person with the ability to work steadily in a variety of environments.

UCLA Department of Architecture and Urban Design

M.Arch, 2024

GPA: 3.90

Faculty Executive Committee for School of the Arts and Architecture

University of Texas at Austin

B.A. Government, B.S. Radio-TV-Film, 2012

GPA: 3.86, High Honors, Phi Beta Kappa

UCLA Department of Architecture and Urban Design

2021-2024

TeenArch Studio Instructor

Taught in a UCLA summer ‘24 program which introduced high school students to a university architecture studio environment for course credit

Teaching Assistant

Spring 2023 Structures III, Winter 2024 Undergraduate Studio

Research Assistant, UCLA CityLAB

Ongoing work on a grant-funded research project analyzing every affordable housing development in LA built between 2010-2022 to determine relationships between formal elements, cost, and production timelines

Shop Tech, UCLA AUD Model Shop

Independently managed CNC milling projects and assisted students with 3D printing, laser cutting, carpentry, and general shop management

Architecture Internships

Casey Hughes Architecture (June - September 2023)

Housing and commercial projects in various phases of development

Wolcott Architecture (June - September 2022)

Office and commercial projects in various phases of development

Lucky Wheels Garage

2015 - 2017

Founded and operated a community motorcycle garage in DTLA

Upstart small business adapted to changing cities and transportation

Hand-built custom choppers, hot rods, and vans

Film/TV: Grip Department

2012 - 2022

Worked on major Hollywood motion pictures, TV, and commercials

Experienced in lighting design, camera control, rigging, basic carpentry

Expert Skills

Rhino 3D

Adobe Creative Suite

Model Building

Software Proficiency

AutoCAD

Revit

Sketchup

V-Ray

RhinoCAM

MidJourney

Stable Diffusion - A1111

Microsoft Office Suite

Slack / Zoom / Teams

Hands-On Skills

Digital Fabrication

3-axis CNC Operation

Powder 3D Printing

PLA 3D Printing

Laser Cutters

General Shop Tools

Carpentry

MIG Welding

Structural Rigging

General Fabrication

PV solar charging systems

Lighting Design

Photography

Cinematography

Automotive

Graduate School Projects

DTLA Super-Battery

Commons

Previous / Personal Work

DTLA Super-Battery

Research Studio Instructor: Neil Denari

In 2023, the Los Angeles City Council rezoned the downtown area to allow for 250,000 new residents. This represents 20% of the additional allowed housing in city limits, but it occurs on only 1% of the city’s landmass.

This will result in extraordinary densification of downtown Los Angeles.

The DTLA Super-Battery proposes a way to accommodate this population growth by replacing the 110 freeway with a regenerative urban district that bundles energy, water, and housing into a single thermodynamic system which supports the radical densification of downtown LA and expands the concept of infrastructure.

Decommissioning the freeway produces 88 acres in downtown LA for:

Housing (3000 units)

Large Hydropower Storage (165 MWh)

Solar Energy Production (2200 MWh/year)

District Cooling

Public park space

Shade Circulation

Stormwater Management

This infrastructure bundle achieves:

- Power grid resiliance

- A culture of density unique to Los Angeles

- Improved proximity to energy storage

- The survival of a hot climate

By drawing the systems that support urban life right into the middle of the densest part of the city, we bridge the metabolic rift that currently exists between cities and their surrounding ecologies.

Hedging the Commons

UCLA

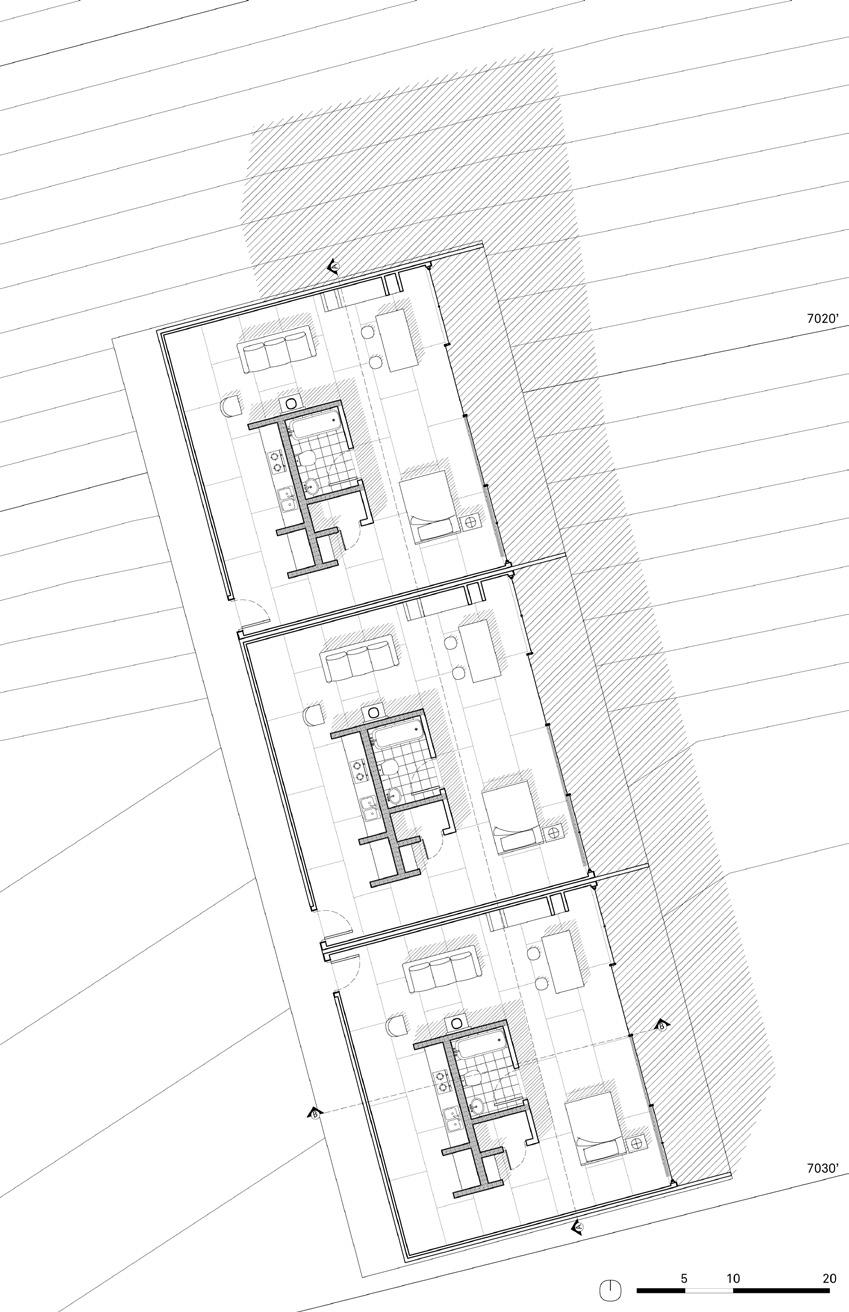
To explore strategies for densification in LA, this project refutes the dominant historical narrative of boosterism and suburban fantasy of Los Angeles. To this end, I envision this community as a prototypical design for a mixed-use development appropriate for new modes of ownership including TIC’s, Co-Ops, or community land trusts. The basic form is a rectangular array of multifamily modules which range in square footage to accommodate varying household sizes and needs, but I also focused on a ubiquitous feature of LA’s suburban landscape: the hedge. Historically hedges in LA have been used to enclose and delineate private space; Here I employ them to blur the distinction between public and private, as well as residential and commercial. Circulation through the site is managed by the hedge, and the hedge continues to weave throughout the development, which obscures not only the privacy of each area, but also the boundaries of the units and floors. Unit module rotation allows for a Venn-diagram effect, in which neighbors might share a staircase with one neighbor but a porch with a different neighbor. My overall ambition for this project is that by creating a blurred spectrum from public to private and by utilizing a tool of private enclosure to create shared areas, we can explore new typologies for a dense and resilient Los Angeles.

Comprehensive Studio Collaborator: Sam Merecicky Instructor: Georgina Huljich Site.Bound

This retrofit project proposes a university-affiliated material research lab built on the site of an existing concrete plant. Bearing in mind that no site is a blank slate, my partner and I considered the site as the fundamental driver for this project by designing the project around aesthetics of earthen materials like ceramics, concrete, and rammed earth. In construction these materials are often comprised of aggregate and binder, so we imagined the facility as an array of monolithic aggregated volumes unified by a lightweight canopy above, the binder of the project. These two contrasted elements are linked by the angle of the existing warehouse roof, which is carried through the project on all sides, and the sense of compliment between the lightness of the roof and the heaviness of the volumes emerges as the motif of the project.

We continued to draw the site into the project by designing a facade system based on a ceramic tile module which we suggest slip-casting on the soil of the site itself. This tile system also underscored our dialectic of lightness/heaviness: since the tile is perforated, it contributes to a heavy earthen look for the building volumes in daytime lighting, but at night it appears as a light rainscreen, with interior light spilling out.

Goals for this project included a high degree of technical resolution and significant verisimilitude between drawings and models. We consulted with structural and facade engineers to contribute to project precision.

Extreme Environments I

Advanced Topics Studio Collaborator: Katie Angen Instructor: Kevin Daly

In this project we used a straightforward tectonic mechanism to address complications introduced by the extreme desert climate of Joshua Tree, California. In this case we used individual volumes of housing and artist workshops to support huge stressed skin roofs which shade the entire site, producing a series of castellated beams. Thermal massing is achieved through partial underground stories, gabion walls, and rammed earth, which contrast the stressed skin roof in both aesthetics and tectonics.

The gateway to the site is a small art gallery - the partial subterranean story of the building not only improves thermal massing, it also provides integration with the landscape. Upon approach, the stressed-skin roof beyond is just visible hovering above the berm that makes up the planted roof of the gallery.

The rest of the site is organized around an artificial arroyo across which the program morphs from public to private and urban to residential. The roof system has a crossgrained panelized system, producing a basket-weaving style lighting effect. The water drainage from this system reinforces the arroyo, transforming the site into a process landscape which settles into the larger ecology of Joshua Tree.

Environments II

Advanced Topics Studio Collaborator: Katie Angen Instructor: Kevin Daly

For this second iteration of the same program, we adapted our tectonic approach for the extremely cold cliamte of Mammoth Lakes, California. Rather than using rammed earth volumes, 3 CLT mechanical cores act as the structural supports for this efficient triplex, turning the whole mass into a castellated beam. This structural system supports a snow load and allows for an open floorplan and a cantilever of about 25 feet off the edge of a sloped plateau, creating a dramatic site strategy.

In addition to the siting strategy, the triplex embodies the dual nature of summer/ winter in Mammoth Lakes by presenting as a mute black bar wrapped in black paneling upon approach, with a warm wooden interior evident from the opposite side.

Water / Power

UCLA AUD Studio Project

Collaborator: Jane Wu

Instructor: Jason Payne

This studio project is a LADWP electrical substation situated in a synthetic landscape which introduces a shallow flooding technique borrowed from Owens Lake into a Los Angeles golf course. Our intention with this approach is to examine the political economy of the relation between LA and the Owens Valley by flattening any hierarchy between people, land, water and power, and converting an exclusive golf course fairway into a synthetic floodplain by excavating an extant channelized and buried creek and reusing the water to demonstrate the behavior of a floodplain under varying saturation conditions. This dynamic hydroscape mirrors the ephemeral and unpredictable drought/flood cycles of Los Angeles and California as a whole.

Advanced Topics Studio

Collaborator: Riley Hammond

Instructor: Simon Kim Symbiotic Biomass

This project began with a reverse process: We examined the physical qualities of substances not typically seen as construction materials, including sourdough bread, balloons, and ceramic follies. Then we used the tectonic logics of these materials to inform the design of a future public commons in an unusual site: the La Brea Tar Pits. This exercise in world-building led us to develop a commons which obscures the distinction between humans and non-humans, and instead expresses itself as a node in a larger system of heat and nutrient exchange, projecting a world where the tar pits are positioned not as a site of death, fossilization, and carbon emissions, but as a domain of compost, fermentation, and fecundity.

Previous / Personal Work

Lucky Wheels Garage

In 2015 I co-founded, designed, and opened a community motorcycle shop in a former manufacturing facility. We offered tools and space at an affordable price to motorcyclists who were lacking a shop to work on their machines. Lucky Wheels presented an accessible, inclusive, and affordable co-working space for people in the community to gather, work and learn, and became a social node within the motorcycling community in central LA.

Photo courtesy of Ruben Riermeier
Photo courtesy of Alicia Elfving

These custom shelves fit together with housed lap joints, so they don’t require any tools or hardware for assembly. No-Hardware Shelf

Custom Autos

Hand built chopper made from vintage parts locally begged and borrowed

Camper van designed and built in the smallest available van, a Ford Transit Connect

Thank you for your interest.

Turn static files into dynamic content formats.

Create a flipbook
Issuu converts static files into: digital portfolios, online yearbooks, online catalogs, digital photo albums and more. Sign up and create your flipbook.
Cam Jones Portfolio August 2024 by Cam Jones - Issuu