CAMILO ARTURO ROMERO BASTO
Arquitecto Proyectos seleccionados Colombia
Estudios Realizados / Education
2022 - Arquitectura, Universidad Santo Tomás
2019 – Intercambio, Universidad Nacional Autónoma de México
Arquitecto con experiencia en diseños arquitectónicos, interiorismo, vivienda multifamiliar, comercio, equipamientos, planimetrías, modelados tridimensionales, maquetas y renders adquirida en diferentes estudios de arquitectura. Participación en concursos públicos nacionales e internacionales, además de trabajo en entidades públicas y privadas como diseñador arquitectónico. Busco en los proyectos la coherencia entre las necesidades de los usuarios y el terreno propuesto, con ideas que vayan más allá del cumplimiento adecuado de la función y la forma proponiendo soluciones creativas que permitan a la obra trascender en el tiempo.

Arquitecto Bogotá, Colombia (1997)
Habilidades / Skills
Experiencia Laboral / Work Experience
2023 - 2025 – Independiente, Despacho Arquitectura Neo-experimental / Despacho propio de diseño con experiencia en remodelaciones, interiorismo y diseño de vivienda.
2025 – HG Constructora / Diseño de vivienda multifamiliar a gran escala, concursos privados y diseño de centros comerciales en Bucaramanga, Barranquilla y Socorro.
2025 – Jairo Grimaldos Despacho de Arquitectura / Diseño de vivienda, interiorismo y arquitectura comercial.
2024 – Praico Arquitectura y Ingeniería / Diseño vivienda en Bucaramanga.
2022 – Taller de Arquitectura de la Alcaldía de Bucaramanga, Colombia. / Centro cultural Portal de los Ángeles.
2022 – Concurso privado Cajasan / Diseño arquitectónico y urbano Parque turístico Topocoro, Colombia.
2022 – Milimétrica Taller de Arquitectura / Diseño proyectos de vivienda privada en Bucaramanga. Colombia.
2021 - Kutimo Taller de Arquitectura / Diseño proyectos de vivienda en Tunja y Barichara, Colombia.
2020 – Concurso público Quechua Architecture Competition / Glamping en el pico Aconcagua. Argentina.
2019 - Contrapunto Taller de Arquitectura / Concursos públicos Sociedad Colombiana de Arquitectos (SCA) - Centro de interpretación nuevo monumento a los héroes (Bogotá) y Alcaldía menor localidad de San Cristóbal (Bogotá).
Concurso público Municipalidad de Talca – Espacio cívico y ciudadano a partir de la carcel de Talca, Chile.
Concurso público Archstorming - Mozambique Preschool: Flor da Manhã, Xai-Xai, Mozambique
2019 – Concurso público 12x12 / Concurso ídeas reimaginación puerto de Helsinki, Finlandia.
2017 - Edwin Rios Arquitectos / Modelado edifício residencial en Cúcuta y maqueta conjunto multifamiliar en Santa Marta.
2017 – Taller Solido laboratorio de Diseño / Concursos públicos Sociedad Colombiana de Arquitectos (SCA) - Parque Juan Amarillo (Bogotá) y parque Tercer Milenio (Bogotá).
Proyecto remodelación del parque de Yondó, Colombia.
Planimetrías proyecto Universidad Industrial de Santander sede Floridablanca, Colombia.





Centro Cultural Portal de los Ángeles
Diseñó: Camilo Romero
Colaboradores: Taller Arq. de Bucaramanga
Ubicación: Bucaramanga, Colombia
Área: 565 m2
Estado: En construcción

En conversación con la comunidad se desarrolla un espacio para actividades públicas y sociales con la capacidad de ser polivalente y convertirse en el punto de encuentro social del barrio. El proyecto se adapta a la topografía, al entorno ambiental, usa materiales perdurables en el tiempo y conecta la función con la forma dando protagonismo a la estructura que cobija las actividades que allí se desarrollan.

Casa de Carolina y Andrés
Diseñó: Camilo Romero
Colaboradores: Arq. Juan Carlos Pinilla
Ubicación: Bucaramanga, Colombia
Área: 320 m2
Estado: En construcción
Casa de carolina y Andrés es un proyecto que a través de las técnicas constructivas tradicionales usadas en Colombia busca crear una vivienda contemporánea conectada con el entorno y la naturaleza, a través del manejo del terreno, los materiales y las texturas
El proyecto a través del manejo de niveles busca dar independencia a los espacios además de crear nichos en la casa que enmarquen el paisaje natural El proyecto está desarrollado en tapia pisada y piedra





Remodelación Apartamento en Cabecera
Diseñó: Jairo Grimaldos Despacho de Arquitectura
Colaboradores: Arq. Camilo Romero, Arq.
Jairo Grimaldos, Arq. Félix Carvajal, Arq.
Dam Bernal
Ubicación: Bucaramanga, Colombia
Área: 220 m2
La remodelación de este apartamento busca sobriedad y elegancia con el uso de iluminación sutil, una paleta de colores monocromáticos y la ubicación de muebles que resalten los lugares a utilizar.



Centro de Interpretación nuevo monumento a los héroes



Centro de Interpretación nuevo
Monumento a los Héroes
Diseñó: Contrapunto Taller Arquitectura
Colaboradores: Arq. Camilo Romero, Arq. Gustavo Bautista, Arq. Angélica Noriega.
Ubicación: Bogotá, Colombia
Área: 1.815 m2


La propuesta de este concurso público determina espacios de exposición adecuados en iluminación y funcionalidad, además de un pequeño auditorio para charlas o actividades públicas A través del material y las circulaciones abiertas en la parte interna del proyecto se buscan resaltar los detalles y la simplicidad de los volúmenes arquitectónicos





Propuesta de diseño de la plaza central del municipio de Cerrito, Santander. Tesis de Grado.
Diseñó: Camilo Romero
Ubicación: Cerrito, Colombia
Área: 5.645 m2

El diseño de la plaza contempla las actividades públicas y privadas de los habitantes, teniendo en cuenta la movilidad, las costumbres, los materiales de la zona y la revitalización de los elementos históricos
El proyecto conecta el andén con la plaza, crea plazoletas para actividades sociales y zonas de estancia cubiertas de vegetación variada para actividades estacionarias

planta urbana







sección anden / plaza


sección tarima

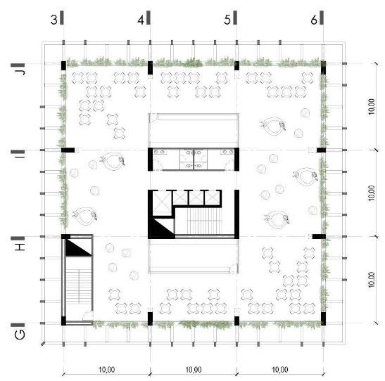
Restaurante en el prado
Diseñó: Jairo Grimaldos Despacho de Arquitectura
Colaboradores: Arq. Camilo Romero, Arq.
Jairo Grimaldos, Arq. Félix Carvajal, Arq.
Dam Bernal
Ubicación: Bucaramanga, Colombia
Área: 300 m2
El diseño de este espacio está relacionado con la serenidad y la conexión con la naturaleza, planteado como un espacio para pasar la tarde y convertirse en un nicho social para el barrio, sus materiales piedra y madera dan calidez además de personalidad






















