CUADERNILLO PASE COMUNIDAD_CAMILO ARÉVALO RIOS

Page 1

NÚCLEO INTERCOMUNAL QUILICURA

(CENTRO URBANO INTERMODAL QUILICURA)

Municipalidad de Quilicura / SECPLAN

Camilo Arevalo Rios | Taller Comunidad A+S | Carlos Muñoz - Catalina Saavedra | Eusach | 2023

DE CUADERNILLO / PRESENTACIÓN

I. INTRODUCCIÓN AL PROYECTO

-METODOLOGIA DE TRABAJO A+S.................................................... PAG 3

-METODOLOGIA DE TRABAJO SOCIO COMUNTITARIO.................................................... PAG 4

-METODOLOGIA DE TRABAJO ENCARGO/VINCULÑACION/ENFOQUE.................................................... PAG 5

II. ANÁLISIS Y CONTEXTO GENERAL DE LA COMUNA

-ANTECEDENTES GENERALES DE LA COMUNA.................................................... PAG 6

-LIMITE COMUNAL/CARATERISTICAS GENERALES ENTORNO.................................................... PAG 7

-INSTRUMENTOS DE PLANIFICACION COMUNAL.................................................... PAG 8

-RED VIAL INTERCOMUNAL+ PROYECTOS VIALES A FUTURO.................................................... PAG 9

-ANTECEDENTES DE POBLACION Y VIVIENDA.................................................... PAG 10

-ANTECEDENTES DE GENERO Y RANGOS ETARIOS.................................................... PAG 11

-ANTECEDENTES EMPLEO COMUNAL Y BASE ECONOMICA.................................................... PAG 12

-ZONAS HOMOGENEAS MACROSECTORES DE LA COMUNA.................................................... PAG 13

-ZONAS MACROSECTOR 1 QUILICURA CENTRO.................................................... PAG 14

-MAPEO DE EQUIPAMIENTOS AREA URBANA CONSOLIDADA COMUNAL.................................................... PAG 15

-MAPEO DE EQUIPAMIENTOS SECTOR PUEBLO ANTIGUO DE QUILICURA.................................................... PAG 16

-MAPEO DE EQUIPAMIENTOS SUBCENTROS DE LA COMUNA/ ENTRADAS PRINCIPALES DE LA COMUNA.................................................... PAG 17

II. PROBLEMÁTICA

-CONTEXTUALIZACION/CONCLUSIÓN/ÁRBOL CAUSA Y EFECTO.................................................... PAG 18

-INFRAESTRUCTURA DE TRANSPORTE RELACIONADA.................................................... PAG 19

III. CONTEXTO INTERMODALES EN LA REGION METROPOLITANA

-INTERMODALES EN EL GRAN SANTIAGO LINEA DE TIEMPO.................................................... PAG 20

-REFERENTE INTERMODAL NACIONAL - INTERMODAL LA CISTERNA.................................................... PAG 21

IV. PROYECTO

-ESCALA COMUNAL /PLANO DE EMPLAZAMIENTO/ TERRENO.................................................... PAG 22

-PERFILES DE CALLE ÁREA DE TERRENO.................................................... PAG 23

-NORMATIVAS/PLAN REGULADOR.................................................... PAG 24

-EQUIPAMIENTOS/ RECORRIDOS.................................................... PAG 25

-USUARIOS/PROGRAMAS/POBLACION................................................... PAG 26

V. REFERENTES: INFRAESTRUCTURA Y ASPECTOS DE INTERÉS

-ESTACION DE METRO SAO PAULO.................................................... PAG 27

-PARKING Y ESTACION INTERMODAL.................................................... PAG 28

-CONCLUSIÓN DE REFERENTES.................................................... PAG 29

VI. PROPUESTAS DE DISEÑO PROYECTO

-PROPUESTA 1 DIGITAL ESTRATEGIAS DE PROYECTO.................................................... PAG 30- 33

-PROPUESTA 2 ANÁLISIS DE FLUJOS/ÁREAS PROGRAMÁTICAS.................................................... PAG 34

-PROPUESTA 2 ESTRATEGIAS DE PROYECTO .................................................... PAG 35-36

-PROPUESTA 2 MODELO EXPERIMENTAL MATRIZ MODULAR .................................................... PAG 37

-PROPUESTA 3 ANÁLISIS DE FLUJOS/ ÁREAS PROGRAMÁTICAS .................................................... PAG 38

-PROPUESTA 3 ESTRATEGIAS DE PROYECTO .................................................... PAG 39-40

- ESTRATEGIA DE RELACIÓN DIMENSIONES DE UN BUS PÚBLICO RED/ MOVILIDAD DENTRO DE MATRIZ..................................................... PAG 41

- ESTRATEGIA DE MITIGACIÓN AL TREN/ ÁREAS DE CORTES Y PLANTAS..................................................... PAG 42

- TABLA DE SUPERFICIES/ CANTIDAD DE USUARIOS/ CARGA DE OCUPACIÓN..................................................... PAG 43

-PLANTAS .................................................... PAG 44

- CORTES..................................................... PAG 45

- AXONOMÉTRICA DE CONTEXTO CON PROYECTO..................................................... PAG 46

- VISTAS CERCANAS A ÁREAS DE INTERCAMBIO MODAL..................................................... PAG 47

- APROXIMACION DE MATERIALIDAD..................................................... PAG 48

- PROCESO DE MODELO PROPUESTA FINAL..................................................... PAG 49

2
- BIBLIOGRAFÍAS..................................................... PAG 50 INDICE

METODOLOGÍA A+S

Metodología pedagógica que promueve la adquisición de conocimientos y la formación en valores a través de actividades docentes de servicio a la comunidad.

• Permitir un desarrollar de un proyecto de arquitectura basado en un encargo real, con mandante específico y comunidades particulares que harán uso de la edificación proyectada.

• Permitir que el proceso creativo se arraigue a las identidades de los territorios destinatarios del encargo.

La metodología de Aprendizaje y Servicio permite a la Universidad alejarse de su imagen de máquina de la ciencia y de la técnica a la cual la ha llevado el modelo fordista de producción que se instaló en ella y la mueve a dar respuesta a un conjunto de indicadores, que detrás de ellos sólo esconde la ilusión de alcanzar los sitiales de honor en un universo de entidades de educación que olvidaron su carácter de entidad moral de la sociedad.

A+S
METODOLOGÍA DE TRABAJO
A+S ESTUDIANTES
COMUNIDAD
3
PROFESORES
MUNICIPALIDAD

SOCIO COMUNITARIO

SOCIO COMUNITARIO

FRANCISCO OJEDA RETAMALES

ARQUITECTO/REPRESENTANTE

DIEGO IGLESIAS

DIRECTOR SECPLAN

Departamento de Planificación y Proyectos

Tiene como objetivo impulsar el desarrollo de la comuna, ocupándose de la planificación y formulación de políticas, planes y programas, además de realizar análisis y evaluaciones permanentes de estos instrumentos, con foco en el desarrollo y dando énfasis a los aspectos sociales y territoriales de la comuna.

Departamento de Presupuesto e Inversiones

Es el encargado de coordinar las acciones financieras tendientes a materializar los planes, programas y proyectos estipulados en la planificación comunal. Dentro de sus funciones principales están las de elaborar de manera conjunta con la Dirección de Administración y Finanzas el Presupuesto Municipal, elaborar las modificaciones presupuestarias, el Plan de Inversión Anual y Colaborar con la elaboración de la Cuenta Pública.

Asesoría Urbana

Cumple la función de asesorar a la Alcaldesa y al Concejo Municipal en la promoción del desarrollo urbano y territorial de la comuna, desarrollando directamente las acciones que informen, gestionen y coordinen técnica y oportunamente al Municipio para permitir estudiar y actualizar el Plan Regulador Comunal y desarrollar los instrumentos de menos escala como planos de detalle y planes seccionales, así como desarrollar el Plan de Inversiones en Infraestructura de Movilidad y Espacio

Público

FRANCISCO OJEDA RETAMALES

SOCIO COMUNITARIO SECPLAN
METODOLOGÍA DE TRABAJO
4

ENCARGO

Mediante una reunión con el socio comunitario es que se analizo y comento sobre lugares de la comuna y las situaciones que existían en estos. Uno de eso lugares que llamo mas atención por las características que tendría a futuro y el cambio que podría generar en el sector y a nivel comunal fue en una de las entradas principales de la comuna, en donde me expreso el socio que a futuro este lugar tendría dos nuevos proyectos viales, los cuales necesitarían de una infraestructura que pudiera unirlos y a su vez ser un proyecto que sea una apertura de la comuna de quilicura.

VINCULACIONES

Este lugar de estudio para el proyecto a futuro estaría fuertemente vinculado con las siguientes áreas las cuales rodean el sector y los proyectos viales que llegarían al lugar:

-Extensión linea 3 metro.(2023)

-Tren Santiago-Batuco.(2028)

-Área industrial y de producción.

-Área urbana periférica de la comuna.

ENFOQUE

Si bien los proyectos que llegarían al lugar de estudio son de un enfoque vial y de transporte, por parte del socio expreso que el proyecto podría tener un enfoque hacia la comunidad en donde se pueda armonizar los flujos de los proyectos de transporte nuevo junto con la población existente tanto residencial como la del parque industrial.

Programas tentativos:

-Anfiteatro

-Locales Comerciales.

-Talleres comunitarios

-Espacios de Co-work.

-Espacios educativos

-Áreas de Esparcimiento.

- Hotelería.(Cercanía con comercio internacional y aeropuerto)

INTRODUCCIÓN ENCARGO/ VINCULACIÓN/ENFOQUE
LUGAR DE PROYECTO TREN SANTIAGO-BATUCO EXTENSIÓN LINEA 3 METRO PARQUE INDUSTRIAL ÁREA URBANA PERIFÉRICA 5

ANTECEDENTES GENERALES

•ANTECEDENTES GENERALES

• Quilicura es una comuna perteneciente a la Región Metropolitana de Santiago, ubicada en el sector norte de Santiago. Junto con las comunas de Colina, Lampa, Pudahuel, Tiltil, Cerrillos, Estación Central y Maipú integra el Distrito Electoral №8 y pertenece a la Circunscripción Senatorial 7.ª correspondiente a la Región Metropolitana.

• La comuna de Quilicura, se encuentra ubicada en el sector periférico norte de la capital, al año posee una superficie de 58 km2 y una población de 271.385 aprox.

• Se accede a ella por dos importantes vías de carácter metropolitano y nacional (Américo Vespucio y Ruta 5) y además, gran parte de su territorio esta ocupado por un consolidado Parque industrial, el cual posee una importante fuerza laboral a nivel metropolitano.

• A la actualidad el único medio de transporte público para salir o entrar a la comuna es el terrestre (RED), pero para mediados-fines de este año la comuna espera recibir la red metro y en un futuro (2028) una estación de trenes Intercomunales.

CONTEXTO GENERAL DE QUILICURA
6

CONTEXTO GENERAL DE QUILICURA

LIMITE COMUNAL/CARACTERÍSTICAS GENERALES

CAMINOLO ETCHEVERS

7

CAMINOLOBOZA

PUDAHUEL

QUILICURA

LINEAS Cerro Las Perdices

RUTA57(LOS LIBERTADORES)

HUECHURABA

LINEAS

AMERICOVESPUCIO

Cerro San Ignacio LAMPA Cerrillos Lo Castro
COLINA
RENCA
CONCHALÍ
internacional Cerro Renca Cerro Colorado Cerro La Cruz
Aeropuerto
FFCC
FFCC
EsteroLasCruces Puntilla Lo Ruiz
RUTA5 NORTE (AUTOPISTA CENTRAL)
NORTE
RUTA5
(AUTOPISTA CENTRAL)
AMERICO VESPUCIO

CONTEXTO GENERAL DE QUILICURA INSTRUMENTOS DE PLANIFICACIÓN COMUNAL

PLAN REGULADOR COMUNAL 1985

Abarca el área mas antigua y céntrica de la comuna cuenta con 356.40 Hectáreas, 6,25% de la superficie comunal.

Área Urbanizable PRMS (Densidad bruta max 10 hab/ha)

PLAN REGULADOR METROPOLITANO 1994-2013

Área de Preservacion Ecológica

Zonas Urbanizables Condicionadas PRMS (ZUC) (16 hab/ha.)

Mayor densidad solo en proyectos de al menos 60 ha, que deben destinar 8% de la superficie a vivienda social.

Zona Industrial exclusiva PRMS (Área de futura reconversion controlada)

Abarca el resto del espacio comunal siendo el mas grande con 5.110,72 Hectáreas, 89.56% de la superficie comunal.

ZONAS DE EXTENSIÓN URBANA

Área Urbanizable Normas Transitorias (Subsectores, Art. 3° Transitorio)

Área Urbanizable PRMS (Densidad bruta 150 a 600 hab/ha)

Zona Industrial exclusiva PRMS (Área de futura reconversion controlada)

Área Urbana PRC 1985

Área Urbanizable PRMS (150 a 600 hab/ha)

Parque Metropolitano PRMS

ÁREA URBANIZABLE NORMAS TRANSITORIAS

Áreas Urbanizables condicionadas ZUC (Art. 4.3 N° 3,6 ; Art. 4.9; Art. 11° Transitorio)

ZONAS URBANIZABLES CONDICIONADAS ZUC

Actividades Productivas y de Carácter Industrial (Zonificacion Art. 6.1.3.)

ZONAS INDUSTRIALES EXCLUSIVAS EXISTENTES CON ACT. MOLESTAS (ART. 6.1.3.4)

Principales áreas verdes PRMS

PARQUE METROPOLITANO (ART. 5.2.2)

ÁREA RURAL

CERRO SAN IGNACIO ÁREA DE PRESERVACIÓN (239.98 HECTÁREAS, 4.19% SUPERFICIE COMUNAL)

8
COLINA LAMPA PUDAHUEL RENCA CONCHALÍ HUECHURABA Aeropuerto internacional LINEAS FFCC AMÉRICOVESPUCIO RUTA5 NORTE (AUTOPISTA CENTRAL) CAMINOLOBOZA AMERICO VESPUCIO CAMINOLO ECHEVERS RUTA 57 (LOS LIBERTADORES) VALLE GRANDE VALLE LO CAMPINO LINEAS FFCC LO MARCOLETA LO MARCOLETA EL MOLINO AV. MANUEL ANTONIO MATTA AV. MANUEL ANTONIO MATTA RUTA5 NORTE (AUTOPISTA CENTRAL) AV.LASTORRES LAS TORRES SANTA LUISA AV. SAN MARTIN AV. O’HIGGINS SANIGNACIO SANIGNACIO SANTA LAURA SAN LUIS SAN LUIS VILLA DE LINEA JAIME GUZMÁN AV. LO CRUZAT F.GARÁTE VALLE LO CAMPINO COLO-COLO COLO-COLO P.RIVEROS ALC.J. LARENAS I.BRICEÑO LAS ESTERAS SUR GALVARINO CAUPOLICÁN ELJUNCAL CAÑAVERAL LAMONTAÑA LAUTARO LO CAMPINO A.GUZMÁN A.GUZMÁN J.F.VERGARA ARTUROPRAT SAN ENRIQUE VALLE LO CAMPINO SUR CAMINO DEL CERRO METRO PLAZA QUILICURA METRO LO CRUZAT METRO FERROCARRIL METRO LOS LIBERTADORES METRO CARDENAL CARO METRO VIVACETA METRO CONCHALÍ ESTACIÓN VALLE GRANDE ESTACIÓN LAS INDUSTRIAS ESTACIÓN QUILICURA BUSES VULE CONTEXTO GENERAL DE QUILICURA RED VIAL INTERCOMUNAL + PROYECTOS A FUTURO SIMBOLOGÍA VÍAS EXPRESAS -AMÉRICO VESPUCIO -RUTA 5 NORTE (AUTOPISTA CENTRAL) -RUTA LOS LIBERTADORES -GENERAL VELÁZQUEZ -MANUEL ANTONIO MATTA -LO MARCOLETA -AV.OHIGGINS -AV.SAN MARTIN -SANTA LUISA VÍAS PRINCIPALES INTERCOMUNALES VÍAS SECUNDARIAS LIMITE COMUNAL METRO LINEA 3 ESTACIONES TREN SANTIAGO-BATUCO ZONA DE PROYECTO CENTRO DE COMUNA 9

CONTEXTO GENERAL DE QUILICURA ANTECEDENTES DE LA POBLACIÓN Y LA VIVIENDA

En la relación a la vivienda los datos entregados por el censo población y vivienda junto al INE, señalan que esta a experimentado un crecimiento exponencial en los primeros años de evolución llegando a un 571% el aumento de estas en los años 1992 a 2017, según las proyección estas seguirían en crecimiento con porcentajes mas bajos, disminuyendo también a su vez la ocupación de habitante por vivienda.

En la relación a la población los datos entregados por el censo población y vivienda junto al INE, señalan que esta a experimentado un crecimiento de un 411% en los años 1992 a 2017. Actualmente la población esta en aproximadamente 271.385 habitantes muy cercano a lo que se espera para el 2025, esto quiere decir que la tasa si seguiría su tendencia del 0,92% de población para el año 2035.

POBLACIÓN VIVIENDA
0 20.000 40.000 60.000 80.000 100.000 120.000 9.301 35.242 62.461 78.577 89.008 98.355 106.370 1992 2002 2017 202520302035 2020 0 0.5 1 1.5 2 2.5 3 3.5 4 4.5 5 278.9% 77.2% 25.8% 13.3% 10.5% 8.1% Viviendas Incremento Ocupantes por Vivienda 0 20.000 100.000 150.000 200.000 250.000 300.000 350.000 2002 20172023 2025 2035 126.518 210.410 271.385 279.737 311.288 Crecimiento Anual de la Población Año 1992 278,9% 77,2% 25,8% 13,3% 10,5% 8,1% 14,25% 3,89% 7,95% 2,52% 2,02% 1,58% 9.301 35.242 62.461 78.577 89.008 98.355 106.370 2002 2017 2020 2025 2030 2035 Viviendas Variación Porcentual Tasa Interanual Año 1992 207,7% 66,3% 21,0% 9,8% 6,3% 4,7% 11,89% 3,45% 6,57% 1,89% 1,23% 0,92% 41.121 126.518 210.410 254.694 279.737 297.418 311.288 2002 2017 2020 2025 2030 2035 Viviendas Variación Porcentual Tasa Interanual 10

ANTECEDENTES DE GENERO Y RANGOS ETARIOS

POBLACIÓN DE QUILICURA 2023

271.385 PERSONAS

Según los datos en entregados por el INE y el CENSO se puede observar que en la comuna de Quilicura se ve un porcentaje levemente mayor de población femenina que masculina con una diferencia del de 0,2%.

Según los datos entregados por el INE y el CENSO en los rangos etarios se puede observar que en la comuna de Quilicura se ve un porcentaje mayor de población entre 30 a 44 años y un porcentaje menor en la población de 65 o más años.

CONTEXTO GENERAL DE QUILICURA
11 0 20.000 40.000 60.000 80.000 100.000 120.000 135.075 136.310 HOMBRES MUJERES 0 20.000 40.000 60.000 80.000 100.000 120.000 59.113 62.028 70.272 62.806 17.126 0 a 1415 a 29 30 a 44 65 o mas 45 a 64 21.8%22.9% 25.9% 23.1% 6.3% 49.8% 50.2%

CONTEXTO GENERAL DE QUILICURA ANTECEDENTES DE EMPLEO COMUNAL Y BASE ECONÓMICA

BASE ECONÓMICA EMPLEO COMUNAL

La actividad económica mas relevante en generación de empleo dentro de la comuna corresponde a la actividad Industrial, la cual concentra cerca del 40% de los empleos existentes en la comuna con un periodo del 2014 al 2016. Esta seguida de la actividad del sector comercial y del sector de la construcción, esto con una cantidad total de 235.763 empleos en la comuna.

Esto al compararse con la estructura de empleo regional pasa a ser distinto, ya que esta coloca el sector de la industria en un segundo escalón de actividades principales a diferencia de la comuna de Quilicura.

El sistema comunal de actividades económicas esta muy influenciado por la localización con su conectividad metropolitana y su cercanía con las otras comunas con similares características. La base económica de la comuna de quilicura corresponde a la cantidad de empresas que han ido en aumento a lo largo de los años, de estas existen cuatro actividades que concentran 74.9%, las cuales son la rama de comercio,transporte y almacenamientos,industrias y la inmobiliaria. Al separar la rama de comercio se obtiene que las ultimas 3 actividades concentran un 39.4%, esto ligando a la comuna a tener un aspecto productivo comunal enfocado en la industria,almacenaje y logística de un total de 8.820 empresas.

INDUSTRIA COMERCIO INMOBILIARIO CONSTRUCCIÓN ESCALA COMUNAL 2016 ESCALA REGIONAL 2016 40.2%14.3% 32.9%18.0% 11.8%17.0% 3.1%16.5% INDUSTRIA COMERCIO INMOBILIARIO 35.5% 12.8% 15.1% 11.5% TRANSPORTE Y LOGÍSTICA 12
SECTOR MANUEL ANTONIO MATTA SECTOR SECTOR LO CRUZAT SECTOR LO OVALLE SECTOR SECTOR LO MARCOLETA SECTOR SECTOR SAN LUIS SECTOR LOS LIBERTADORES SECTOR ESTACIÓN SECTOR LAS ESTERAS SECTOR PORTEZUELO SECTOR BUENAVENTURA SECTOR SAN IGNACIO 1 SECTOR INDUSTRIAL SECTOR SAN IGNACIO 2 3 1 1 4 2 2 5 CONTEXTO GENERAL DE QUILICURA ZONAS HOMOGÉNEAS MACRO SECTORES DE LA COMUNA MACRO SECTOR 1 QUILICURA CENTRO MACRO SECTOR 2 VESPUCIO LO CAMPINO 3 MACRO SECTOR 3 VESPUCIO ESTE 4 MACRO SECTOR 4 VESPUCIO OESTE 5 MACRO SECTOR 5 RUTA 5 LOS LIBERTADORES 13 SIMBOLOGÍA ZONA DE PROYECTO

CONTEXTO GENERAL DE QUILICURA

ZONAS MACROSECTOR 1 QUILICURA CENTRO

MIXTOS ACTIVIDADES PRODUCTIVAS Y EQUIPAMIENTOS

3 5 1 2 6 7 4 2 2 SECTOR SECTOR LO CRUZAT SECTOR LO OVALLE SECTOR SECTOR LO MARCOLETA SECTOR SECTOR SAN LUIS SECTOR LOS LIBERTADORES SECTOR ESTACIÓN AMÉRICO VESPUCIO RUTA 5 NORTE GENERAL SAN MARTIN LO MARCOLETA LO CRUZAT B. OHIGGINS MANUEL A. MATTA SECTOR MANUEL ANTONIO MATTA SANTA LUISA 8 AV. MANUEL ANTONIO MATTA AV. MANUEL ANTONIO MATTA AV. LO MARCOLETA AV. LO MARCOLETA AV. LO MARCOLETA
14
2. URBANIZACIONES RESIDENCIALES DENTRO DEL ÁREA URBANA PRC 1985 MIXTO Y RESIDENCIAL 1.PUEBLO DE QUILICURA 3. URBANIZACIONES RESIDENCIALES FUERA DEL ÁREA URBANA PRC 1985 4. URBANIZACIONES RESIDENCIALES HACIA EL NORTE DEL MACROSECTOR 1 6. VESPUCIO 2 ORIENTE DE LO CAMPINO 7. VESPUCIO 3 SECTOR ESTACIÓN 8. VESPUCIO 4 SECTOR LOS LIBERTADORES-ESTACIÓN
LIMITES PRC 1985 LIMITE MACROSECTOR 1 ZONA DE PROYECTO
5. VESPUCIO 1 SUR DE FILOMENA GÁRATE

CONTEXTO GENERAL DE QUILICURA

MAPEO

DE EQUIPAMIENTOS ÁREA URBANA CONSOLIDADA COMUNAL

MIXTO Y RESIDENCIAL ÁREAS DE EQUIPAMIENTOS

MIXTA CENTRO DE QUILICURA (RESIDENCIAL Y EQUIPAMIENTO)

RESIDENCIALES Y

EQUIPAMIENTOS

VIVIENDAS COLECTIVAS

MIXTAS RESIDENCIALES Y EQUIPAMIENTOS

CONCENTRACIÓN DE EQUIPAMIENTOS DE GRAN TAMAÑO (COMERCIO,SERVICIO,EDUCACIÓN,SALUD Y SEGURIDAD)

CENTROS Y SUBCENTROS

MIXTAS ACT. PRODUCTIVAS Y EQUIPAMIENTOS ÁREAS VERDES

EQUIPAMIENTOS DEPORTIVOS

MIXTA ACTIVIDADES PRODUCTIVAS (RUTA 5,LOS LIBERTADORES, VESPUCIO)

MIXTA ACTIVIDADES PRODUCTIVAS (VESPUCIO) - POTENCIAL ÁREA DE RECONVERSIÓN

ZONA DE PROYECTO PRINCIPALES ÁREAS VERDES

COLINA LAMPA PUDAHUEL RENCA CONCHALÍ HUECHURABA Aeropuerto internacional
FFCC AMERICO VESPUCIO RUTA5 NORTE (AUTOPISTA CENTRAL) CAMINOLOBOZA AMERICO VESPUCIO CAMINOLO ECHEVERS RUTA 57 (LOS LIBERTADORES) VALLE GRANDE VALLE LO CAMPINO LINEAS FFCC LO MARCOLETA LO MARCOLETA EL MOLINO AV. MANUEL ANTONIO MATTA AV. MANUEL ANTONIO MATTA RUTA5 NORTE (AUTOPISTA CENTRAL) AV.LASTORRES LAS TORRES SANTA LUISA AV. SAN MARTIN AV. O’HIGGINS AV. O’HIGGINS SANIGNACIO SANIGNACIO SANTA LAURA SAN LUIS SAN LUIS VILLA DE LINEA AV. LO CRUZAT S.JAIME GUZMÁN AV. LO CRUZAT F.GARÁTE VALLE LO CAMPINO COLO-COLO COLO-COLO P.RIVEROS ALC.J. LARENAS I.BRICEÑO LAS ESTERAS SUR GALVARINO CAUPOLICÁN ELJUNCAL CAÑAVERAL LAMONTAÑA LAUTARO LO CAMPINO A.GUZMÁN A.GUZMÁN J.F.VERGARA ARTUROPRAT SAN ENRIQUE
LINEAS
15
MIXTAS
Av.ManuelAntonioMatta AV. O’HIGGINS AV. O’HIGGINS ARTUROPRAT J.FVERGARA AV. SAN MARTIN Av. Manuel Antonio Matta S. JAIME GUZMÁN Av. Manuel Antonio Matta CONTEXTO GENERAL DE QUILICURA MAPEO DE EQUIPAMIENTOS SECTOR PUEBLO ANTIGUO DE QUILICURA 16 ÁREAS VERDES EQUIPAMIENTO COMERCIAL EQUIPAMIENTO DE CULTOCULTURA EQUIPAMIENTO EDUCACIONAL EQUIPAMIENTO DE SERVICIO EQUIPAMIENTO PRODUCTIVO INDUSTRIA EQUIPAMIENTO RESIDENCIAL SITIO ERIAZO EQUIPAMIENTO DE SALUD AVENIDAS CERCANAS A LOS EQUIPAMIENTOS ÁREA CENTRO DE QUILICURA ZONA DE PROYECTO SIMBOLOGÍA LIMITE ÁREA DE ESTUDIO SERVICIO: PETROBAS AV. MATTA CON AV. O’HIGGINS COMERCIO Y SERVICIO: SODIMAC S.A AV. MATTA CON ARTURO PRATT AREA VERDE: PLAZA PRINCIPAL AV. O’HIGGINS CON CALLE VERGARA SERVICIO: MUNICIPALIDAD DE QUILICURA AV. O’HIGGINS CON CALLE VERGARA SALUD: CESFAM AV. O’HIGGINS COMERCIO MIXTO: CALLE J.F VERGARA. SERVICIO; BANCO ESTADO AVENIDA MATTA CON O’HIGGINS CULTURA: BIBLIOTECA Y CENTRO CULTURAL MUNICIPAL. AV.O’HIGGINS SERVICIO: REGISTRO CIVIL AV. O’HIGGINS COMERCIO: MALL ARAUCO QUILICURA AV. O’HIGGINS CON ARTURO PRATT FUTURAS EXTENSIONES DE METRO EQUIPAMIENTO DEPORTIVO 1 1 7 7 3 3 4 4 5 5 2 2 6 6 8 8 10 10 9 9

1-SUBCENTRO LO MARCOLETA NORPONIENTE INTERSECCIÓN SANTA LAURA

2- SUBCENTRO LO MARCOLETA NORTE INTERSECCIÓN CON SANTA LUISA

3-SUBCENTRO LO MARCOLETA NOROESTE INTERSECCIÓN CON LAS TORRES Y AV.O’HIGGINS

PRINCIPALES A COMUNA AMÉRICOVESPUCIO RUTA5 NORTE (AUTOPISTA CENTRAL) LO MARCOLETA EL MOLINO RUTA5 NORTE (AUTOPISTA CENTRAL) AV. SAN MARTIN VILLA 17 ÁREAS VERDES EQUIPAMIENTO COMERCIAL EQUIPAMIENTO DE CULTOCULTURA EQUIPAMIENTO EDUCACIONAL EQUIPAMIENTO DE SERVICIO EQUIPAMIENTO PRODUCTIVO INDUSTRIA EQUIPAMIENTO DE SALUD SIMBOLOGÍA EQUIPAMIENTO DEPORTIVO
CONTEXTO GENERAL DE QUILICURA MAPEO DE EQUIPAMIENTOS EN SUBCENTROS/ENTRADAS
4-ENTRADA/SALIDA AV. SAN MARTÍN INTERSECCIÓN CON AV. AMÉRICO VESPUCIO 5-ENTRADA/SALIDA LO MARCOLETA NORORIENTE
LINEAS FERROCARRIL PARADA DE BUSES MIXTAS RESIDENCIALES Y EQUIPAMIENTOS VIVIENDAS COLECTIVAS 1 2 4 3 5 LO MARCOLETA LO MARCOLETA LO MARCOLETA LO MARCOLETA LO MARCOLETA LASTORRES LASTORRES LO MARCOLETA LO MARCOLETA SANTA LAURA SANTA LUISA SANTA LUISA RIGOBERTO JARA SAN ENRIQUE SANTA LAURA C. TRES MONTES LO MARCOLETA AV. BERNARDO O’HIGGINS AV. SAN MARTÍN VERGARA SAN LUIS AV. SAN MARTÍN AV. BERNARDO O’HIGGINS

PROBLEMÁTICA

CONTEXTUALIZACION GENERAL

El socio comunitario plantea que en el terreno a trabajar llegaran a futuro dos proyectos de infraestructura vial, lo cual provocara un aumento de flujo de la población en un sector que actualmente es periférico del centro de la comuna y este se encuentra inserto en un área industrial exclusiva dada por la herramienta de planificación vigente.

El terreno actualmente no presenta las características y equipamientos necesarios para poder albergar los flujos de la población emergente de estos nuevos proyectos ya que es un terreno eriazo, y a su vez estando cercano a una de las entradas principales de la comuna que es la Avenida Manuel Antonio Matta no genera algún volumen o infraestructura característica que de inicio o una salida de la comuna.

CONCLUSIÓN

Luego del análisis general de la comuna de Quilicura se puede observar que es una comuna en expansión urbana, la cual seguirá creciendo en ámbitos de residencias, comercio y la industria. Con este crecimiento la comuna ah generado nuevos centros urbanos, los cuales permiten mejorar la calidad de vida de la comunidad cercana a estos, pero a su vez la comuna también deja sectores periféricos alejados del centro de esta y sus nuevos subcentros, esto generando una falta de equipamientos necesarios para la comunidad, si bien los nuevos proyectos viales ayudaran a una parte de la población de la comuna a movilizarse mejor y llegar a estos nuevos subcentros de la comuna mas rápido, estos no responderán a la falta de equipamientos, y a su vez el lugar de proyecto en donde estos se unirán no presenta una infraestructura que pueda armonizar la unión de estos nuevos proyectos con la población existente, la cual pueda generar un núcleo de descentralización y de desarrollo para estos.

ÁRBOL DE CAUSAS Y EFECTOS

EFECTOS

Bajo nivel de desarrollo en la población existente

Trayectos de movilidad de difícil acceso y mas largos

Distanciamiento de la comunidad

BAJO NIVEL DE EQUIPAMIENTOS EN ÁREAS PERIFÉRICAS DE LA COMUNA

CAUSAS SOLUCIONES

Centros y subcentros con potencial desarrollo

Comuna solo con buses como movilidad pública

Falta de relación entre la comunidad y la municipalidad

Equipamientos de comercio solo en zonas permitidas

Falta de espacios para infraestructura vial

Baja participación ciudadana

Herramientas de planificación en proceso de actualización

Falta de Infraestructura de Transportes

NUEVAS INFRAESTRUCTURAS TRANSPORTE (METRO-EFE)

OPORTUNIDAD

NÚCLEO INTERCOMUNAL QUILICURA

Falta de espacios aptos para programas a la comunidad

ESPACIOS CULTURALES PARA LA COMUNIDAD

CONTEXTUALIZACION/CONCLUSIÓN/ÁRBOL
18
DE CAUSA Y EFECTO
Menor calidad de vida

PROBLEMÁTICA INFRAESTRUCTURA DE TRANSPORTE RELACIONADA

Las estaciones intermodales corresponden a infraestructuras que permiten facilitar la transferencia entre diversos modos de transporte, tales como metro, buses urbanos, buses rurales, buses interurbanos,automóviles y bicicletas. Normalmente se ubican en puntos de la ciudad cercanos a estaciones de metro, y dado el gran movimiento de pasajeros que generan, suelen agrupar servicios y comercio en su entorno.

Metro y buses urbanos Ciclovías Reducción del tiempo

Foco de desarrollo para la comunidad

Estación Intermodal Comercio Servicios Esparcimiento
Privado Aéreo 19
Ferrocarril ESTACIONES INTERMODALES INTERCAMBIO MODAL

INTERMODALES EN EL GRAN SANTIAGO

Bellavista La Florida

Se encuentra ubicada entre Av. Vicuña Mackenna y Serafín Zamora en la comuna de La Florida.

2003

Lo Ovalle Primera Intermodal Administrada por Metro S.A., Ubicada entre las calles Carvajal y Paulina en la comuna de La Cisterna.

2007

La Cisterna La estación, localizada en la esquina suroriente de la Avenida Circunvalación Américo Vespucio y la Gran Avenida José Miguel Carrera.

2008

Pajaritos

Se encuentra a nivel de suelo, entre las estaciones Neptuno y Las Rejas de la línea 1, en la comuna de Lo Prado.

2011

Del sol Está ubicada en la Avenida Pajaritos (cercana a la Autopista del Sol), comuna de Maipú.

2017

Vespucio Norte Ubicada entre las calles Américo Vespucio y Principal Capitán Ignacio Carrera Pinto, en la comuna de Recoleta.

2020

Franklin Ubicada en la calle Nataniel Cox, entre las calles Placer y Centenario, en la comuna de Santiago.

2020

Lo Valledor Primera estación intermodal con combinación entre tren, metro y buses del sistema de transporte Transantiago. Ubicada en Av. Carlos Valdovinos con Av. Maipú

Los Libertadores Ubicada en la esquina de la avenida Américo Vespucio junto con la Autopista Los Libertadores, en el limite comunal de Quilicura, huechuraba y conchali.

CONTEXTO INTERMODALES EN LA REGIÓN METROPOLITANA 9 9 6 6 7 7 3 3 1 1 8 8 4 5 5 2 2
1990 1998
1 2 3 5 6 8 9 7 4 20

CONTEXTO INTERMODALES EN LA REGIÓN METROPOLITANA REFERENTE NACIONAL

INTERMODAL LA CISTERNA

Arquitectos: MONTEALEGRE BEACH ARQUITECTOS.

Ubicación: se ubica entre las calles Gran Avenida José Miguel Carrera, Avenida Américo Vespucio y calle Ossa.

Área:Tiene una superficie total de 60.000 m² construidos, distribuidos en 5 pisos, con 5.203 m² aprox de superficie destinada a comercio.

Año: 2007

PROGRAMA

2 1

Estacionamientos Colectivos

Supermercado Patio de comidas

Recorridos/Linea 4A Locales comerciales

Recorridos Locales comerciales

COMERCIO CIRCULACIÓN VERTICAL ÁREA ADMINISTRATIVA ÁREA PÚBLICA ANDENES CIRCULACIÓN DE BUSES SIMBOLOGÍA
-2 -3
-1
Linea Metro 2 Punto carga Bip
21
Av. americo vespucio Calle Ossa Gran Avenida

PROYECTO

ESCALA COMUNAL TERRENO

El terreno se encuentra ubicado en un inicio de la Av. Manuel Antonio Matta junto con la Costanera Férrea en su extremo norte.

El Área cuenta con una superficie de 21.000 m2 aprox. El terreno es una zona eriaza que contiene los restos de la sub estación quilicura, la cual se encuentra en abandono sin ninguna ocupación, por otra parte el terreno se encuentra colindante al mismo nivel de suelo que las lineas del ferrocarril hacia su lado poniente. La estación al estar deteriorada y en abandono se opta por no considerarla dentro del proyecto de diseño. Se encuentra en una zona industrial, por lo que a sus alrededores en su mayoría se encuentran empresas y una población residencial en su sector norte .

PLANO DE EMPLAZAMIENTO

ESCALA COMUNAL/PLANO DE EMPLAZAMIENTO/TERRENO
Vista desde entrada sur de terreno Vista hacia entrada por Av.matta Estado actual de la Sub estación eléctrica Vista desde lineas del tren sector oriente Limite de futura estación de metro 22
COSTANERA FERREA SENADOR JAIME GUZMAN
AV.AMÉRICOVESPUCIO) AV. MANUEL ANTONIO MATTA AV. MANUELANTONIO MATTA
RUTA5 NORTE (AUTOPISTA CENTRAL)

PROYECTO PERFILES DE CALLE ÁREA TERRENO

PERFIL DE CALLE AVENIDA MANUEL ANTONIO MATTA VÍA

PERFIL DE CALLE PASAJE 4-LINEAS FERROCARRIL VÍA LOCAL

23
TRONCAL
ANTEJARDÍN ANTEJARDÍN EJE DE ESPACIO PÚBLICO EJE DE CALZADA LINEA OFICIAL PREDIO LINEA OFICIAL PREDIO LÍMITE PREDRIAL ACERA ACERA PREDIO METRO CALZADA PASO DE NIVEL FF.CC PREDIO PRT PREDIO TERRENO PREDIO TERRENO PREDIO FERROCARRIL PASO PEATONAL CALZADA LÍMITE PREDRIAL LÍMITE PREDRIAL LIMITE LINEAS FF.CC 5.0 MTS 5.0 MTS 3.5 MTS 4.0 MTS 4.0 MTS 24.0 MTS 1.5MTS4.0 MTS 3.5 MTS PREDIO BODEGAS PREDIO METRO LINEA OFICIAL PREDIO LINEA ESPACIO PÚBLICO LINEA ESPACIO PÚBLICO LINEA ESPACIO PÚBLICO LINEA ESPACIO PÚBLICO LINEA OFICIAL PREDIO ANTEJARDÍN ANTEJARDÍN EJE DE ESPACIO PÚBLICO EJE DE CALZADA LINEA OFICIAL PREDIO ACERA ACERA CALZADA 3.5 MTS 11.0 mts 12.0 mts 2.0 MTS 2.0 MTS 3.0 MTS 3.0 MTS 3.5 MTS

PLAN REGULADOR COMUNAL / PRMS NORMATIVAS

La ubicación del proyecto según el plan regulador de Quilicura y el plan regulador metropolitano de santiago se encuentra en la zona I1(PRC 1985) y la zona industrial exclusiva (PRMS), estas dos zonas comparten las mismas normativas de suelo y edificación, estas son :

-Industria,almacenamiento y actividades de servicio de impacto similar al Industrial,calificadas como molestas o inofensivas

-Equipamientos de escala Metropolitana, Intercomunal y Comunal, excepto Salud,Educacion,Cultura,Esparcimiento y Turismo.

-Se permitirá Servicio de Salud Ambulatorio, Establecimientos de Formación Técnico Profesional y Jardines infantiles.

-Actividades complementarias a la vialidad y el transporte, calificadas Como molestas o inofensivas.

-Talleres calificados como molestos o inofensivos.

-Vivienda del cuidador

Usos de suelo prohibidos

-Todos los no mencionados como Permitidos.

-No se permite vivienda.

CONDICIONES DE URBANIZACIÓN Y EDIFICACIÓN

-Industria,almacenamiento y Actividades de servicio de impacto Similar al Industrial y talleres.

-Equipamientos de escala

Metropolitana, Intercomunal y Comunal, excepto Salud, Educacion,Cultura,Esparcimiento y Turismo.

Servicio de Salud Ambulatorio, Establecimientos de Formación Técnico Profesional y Jardines infantiles.

NORMAS COMPLEMENTARIAS

SIMBOLOGÍA

UBICACIÓN DEL TERRENO

ZONA H1 PRC

-VIVIENDA

-COMERCIO

-OFICINAS

-EQUIPAMIENTO

-TALLERES

LINEAS FERROCARRIL

ZONA I1 PRC 1985

ZONA INDUSTRIAL EXCLUSIVA PRMS

ÁREA URBANIZABLE PRMS 36-36A

-VIVIENDAS MIXTAS

-ESPARCIMIENTO

-EQUIPAMIENTO COMUNAL Y VECINAL

-SERVICIOS ARTESANALES

SISTEMA VIAL -AUTOPISTAS

-AVENIDAS

-CALLES LOCALES

• Actualmente el terreno no permite la construcción de algunos programas tentativos por normativa del PRMS y PRC, es por esto que mediante reuniones y conversaciones con el socio comunitario sobre las actualizaciones que podría generar el PRC de la comuna, se comento que el terreno al estar en una zona potente de reconversión y al presentar estas nuevas infraestructuras de transporte su zonificación se modifique en la actualización del plan regulador de la comuna.

•Por esta razón se mantiene el terreno de proyecto con la autorización del socio comunitario.

PROYECTO NORMATIVAS/PLAN REGULADOR
24
USOS DE SUELO
de suelo permitidos Normas Complementarias Usos Permitidos Calificación Dist. Mínima a Medianero (m) Sup. Mínima de Arborización (%) Industria, Almacenamiento Y actividad de Carácter similar Equipamientos Permitidos Actividades Complementarias a la Vialidad y el Transporte Talleres Ancho Mínimo vía que enfrenta (m) Bidireccional Unidireccional Superficie predial mínima Frente pedrial mínimo Coeficiente de Ocupacion de suelo Actividades complementarias al transporte. Vivienda del cuidador. Coeficiente de Constructibilidad Sistema de Agrupamiento Distancia mínima de medianeros Antejardín Aislado Molesta Molesta Inofensiva Inofensiva- - - --1.500 m2 500 m2 500 m2 1.500 m2 30 m 20 m 30 m 20 m 0.7 5 10 20 15 5 10 20 15 5 10 20 15 20 15 0.7 0.7 0.7 2.0 1.0 1.0 2.0 5 m 5 m 50% 5 m 5 m 50% 5 m 5 m 50% 5 m 5 m 50% Aislado Aislado Aislado Transparencia de Cierros
de suelo permitidos
Usos
Usos

MAPEO EQUIPAMIENTOS Y RECORRIDOS

PROYECTO EQUIPAMIENTOS/RECORRIDOS 25
4.-SUPERMERCADO
EDUCACIONAL 1.-ESCUELA LUIS CRUZ MARTINEZ 2.-LICEO MUNICIPAL ALCALDE JORGE INDO 3.-JARDNIN INFANTIL EQUIPAMIENTO
SERVICIO -SEDES VECINALES 5.-PRT QUILICURA 6.-INSPECCIÓN COMUNAL DEL TRABAJO
-CANCHAS
FÚTBOL
VERDES -PLAZAS -PARQUE METRO FERROCARRIL LINEA 3 ACCESO A TERRENO PARADEROS RECORRIDOS -AV. MATTA (1KM/13MIN) -LO CAMPINO (1.1KM/14MIN) -LOS MAITENES (1.2KM/15MIN) -LOS EUROPEOS (1.4KM/17MIN) -RUTA 5 NORTE (800M/10 MIN) ESTACIÓN
EQUIPAMIENTO
7.-MUTUAL
VIALIDAD -AUTOPISTAS -AVENIDAS -CALLES LOCALES LUGAR DE PROYECTO EQUIPAMIENTOS INDUSTRIALES
LOGÍSTICA
EQUIPAMIENTO COMERCIAL
ACUENTA EQUIPAMIENTO
DE
EQUIPAMIENTO DEPORTIVO -CANCHAS DE TENIS
DE
ÁREAS
QUILICURA TREN SANTIAGOBATUCO
DE SALUD
DE SEGURIDAD
DE PRODUCCIÓN Y
SIMBOLOGÍA
AV. MANUELANTONIO MATTA LO CAMPINO AV. MANUEL ANTONIO MATTA CARAMPANGUE LOS EUROPEOS LOS MAITENES EL PARQUE LO ZAÑARTU SENADOR JAIME GUZMAN AV.MANUELANTONIOMATTA AV. MANUEL ANTONIO MATTA RUTA 5 NORTE AV.PRESIDENTE EDUARDO FREI MONTALVA RUTA 5 NORTE 1 4 6 7 3 5 2

PROYECTO

USUARIOS/PROGRAMA/POBLACIÓN

NIVEL DE POBLACIÓN POR MANZANA

La población de habitantes separada en rangos etarios demuestra que en el sector existen mayoría de habitantes en un rango entre 15 a 64 años de edad.

Esto demuestra que en el sector existen mas habitantes de población joven-adulta a comparación de la población adulto mayor.

El Estudio de población fue desarrollado con la cantidad de 4.849 habitantes dentro de 18 manzanas de mayor población del sector de la área del proyecto.

201 A MÁS HABITANTES

UBICACIÓN DE TERRENO

101 A 200 HABITANTES

51 A 100 HABITANTES

20 A 50 HABITANTES

SIN INFORMACIÓN

-ÁREA RESIDENCIAL -EQUIPAMIENTOS EDUCATIVOS -FLUJOS DE METRO -FLUJOS DE TREN -ÁREA EMPRESARIAL/INDUSTRIAL -ÁREA COMERCIAL -ÁREA INDUSTRIAL/COMERCIAL 26 0 1.000 500 2.000 3.000 4.000 5.000 1.124 3.308 417 0 a 1415 a 64 65 a mas 23.1% 68.2% 8.7% SIMBOLOGÍA
DEL SECTOR -RANGO ETARIO
POBLACION EDUCACIONAL TRABAJADORES VENDEDORES PROFESIONALES POBLACIÓN COMUNAL POBLACIÓN INTERCOMUNAL
USUARIOS
USUARIOS DIRECTOS

REFERENTES

INFRAESTRUCTURA/ASPECTOS RELEVANTES

Estación de Metro São Paulo-Morumbi

Arquitectos: 23 Sul

Ubicación: São Paulo, Brasil

Área:16789 m²

Año: 2018

CUBIERTA

La cubierta en la estación de metro en un nivel de calle unifica el edificio administrativo de buses interurbanos con la entrada principal del metro Sao Paulo, debajo de esta es en donde circulan los buses y en donde se crea el intercambio modal del metro a los buses, con zonas de espera y una circulación rápida interior para descongestionar las avenidas próximas al proyecto.

SIMBOLOGÍA

27 METROS CUBIERTA ÁREA ADMINISTRATIVA

REFERENTES

INFRAESTRUCTURA/ASPECTOS RELEVANTES

Arquitectos: IDOM

Ubicación: Bouguenais, Francia

Área: 25000 m²

Año: 2020

Parking y Estación Intermodal SEGURIDAD

El conjunto lo componen un aparcamiento disuasorio y una estación intermodal de autobús y tranvía conectadas entre sí mediante una marquesina continua. El programa que contiene permite separar a solo a nivel de calle dos tipos de transporte y así poder agilizar la movilidad de los usuarios.

28
CIRCULACIÓN VERTICAL
ÁREA DE TRANVÍAS ÁREA DE BUSES ÁREA DE ESTACIONAMIENTOS
SIMBOLOGÍA

CONCLUSIÓN DE REFERENTES

1 2

Dividir el proyecto en núcleos programáticos, los cuales se puedan diferenciar y puedan dar un orden al proyecto.

Generar espacios intermedios entre cada núcleo, los cuales puedan conectar a su vez mediante recorridos en su totalidad el proyecto.

CIRCULACIÓN VERTICAL ÁREA PEATONAL ÁREA COMERCIAL ÁREA VEHICULAR

Cubrir las áreas de esparcimiento y espacios intermedios mediante cubiertas, las cuales entreguen confort y a su vez unifique los núcleos junto con un programa debajo de esta.

4

RECORRIDO PEATONAL ÁREAS COMERCIALES

RECORRIDO VERTICAL ÁREA VEHICULAR

2 3 3 4 29

Separar los programas viales mediante una barrera indirecta, la cual pueda dar seguridad al proyecto al momento de unificar sus núcleos programáticos.

CUBIERTA NÚCLEO METRO NÚCLEO ADMINISTRATIVO PROGRAMA INFERIOR

ÁREA DE BUSES ÁREA DE TRANVÍA VÍA VEHICULAR NÚCLEO PROGRAMÁTICO

REFERENTES CONCLUSIÓN DE REFERENTES
1

1.- DIMENSIONAR 2.- EXTENDER-CONECTAR

Se dimensiona el terreno a ocupar dentro de una matriz de 8x8.

Se extiende una red vial dentro del proyecto para conectar la población norte con la avenida principal de la comuna.

DIGITAL ESTRATEGIAS
30
PROPUESTA I
DEL PROYECTO

3.- GENERAR SUBNIVEL VIAL

Se genera un desnivel vial para el flujo del transporte en donde se pueda unir tanto el flujo de metro,bus y tren en un mismo lugar.

4.- SEPARAR Y CREAR ABERTURAS

Al estar en un desnivel se generan aberturas de recorrido en un nivel superior para que estas puedan ayudar ambientalmente el sector de transportes.

CIRCULACIÓN VEHICULAR

ÁREA PASAJEROS

ÁREA ADMINISTRATIVA

PROPUESTA I ESTRATEGIAS DEL PROYECTO 31

5.- VOLÚMENES PROGRAMÁTICOS

Se generan volúmenes en la zona superior de transportes, esto para albergar los flujos de población provenientes de metro y el tren de pasajeros.

6.- RECORRIDO ELEVADO

Los volúmenes se unen a través de un recorrido Elevado que permita liberar el flujo del primer nivel.

PROPUESTA I ESTRATEGIAS DEL PROYECTO 32

7.- CUBIERTA SOBRE PATIOS INTERMEDIOS

Los espacios intermedios generados por los núcleos programáticos se cubren para tener un mejor confort ambiental y espacial.

8.- BARRERAS PROGRAMÁTICAS ÁREA RESIDENCIAL

Se generan barreras programáticas para la Seguridad de la población directa del proyecto Separando el flujo del tren y del transporte publico.

PROPUESTA I ESTRATEGIAS DEL PROYECTO 33
ÁREA INDUSTRIAL

FÉRREACOSTANERA

FÉRREACOSTANERA

-Se analizan los flujos posibles de transporte y de personas provenientes de las infraestructuras de transporte, todo esto dentro del proyecto para poder encontrar los espacios mas aptos para generar volúmenes programáticos y la extensión vial.

-Luego del análisis se genera un layout de áreas programáticas posibles a la proximidad de cada flujo analizado.

SIMBOLOGÍA

ÁREA TRANSPORTE VIAL

RECORRIDO PEATONAL

ÁREA MODAL BUSES

ÁREA HOTELERA

ÁREA CULTURAL - AUDITORIO

ÁREA MODAL FF.CC

ÁREA PLAZA INTERMEDIA

ÁREA METRO

FLUJO DE POBLACIÓN METRO-TREN

ÁREA INDUSTRIAL

FLUJO TRANSPORTE -PÚBLICO -PRIVADO -CICLOVÍA PASAJE 4

PROPUESTA II ANÁLISIS DE FLUJOS/ÁREAS PROGRAMÁTICAS 34 PASAJE 4 AV. MANUEL ANTONIO MATTA FLUJOS Y ÁREAS POSIBLES ÁREAS PROGAMÁTICAS
ÁREA INTERCAMBIO MODAL BUSES ÁREA INTERMEDIA -MERCADO -PLAZA -COMERCIO ÁREA SUBNIVEL CONEXIÓN METRO-TREN ÁREA SALIDA DE METRO SALIDA A TREN DE PASAJEROS
AV. MANUEL ANTONIO MATTA
LIMITE LINEAS DE FF.CC
ÁREA RESIDENCIAL

1- CONECTAR

Como primera estrategia se extiende la red vial para poder conectar la población en el sector norte que actualmente se encuentra sin acceso al terreno y también generar una conexión directa con la avenida principal de la comuna.

Mediante el diagrama de flujos tanto de transporte como de personas y las áreas posibles de programas se elige un área programática para diseñar el proyecto.

2- DIVIDIR

Mediante volúmenes se busca levantar el área de programas, los cuales se dividan por direcciones de flujos que generen un recorrido entre núcleos programáticos.

PROPUESTA II MATRIZ ORIENTACIÓN METRO ESTRATEGIAS DEL PROYECTO 35

3- ESTRUCTURAR

El área de los núcleos programáticos se estructura a partir de una matriz,a su vez se generan aberturas en estos para conectarlos con un área central y se generen flujos de población.

4- ENVOLVER

Se genera una cubierta que pueda unificar los distintos programas existentes y a su vez generar flujos y actividades bajo esta.

PROPUESTA II ESTRATEGIAS DEL PROYECTO 36

PROPUESTA II

MODELO EXPERIMENTAL MATRIZ MODULAR

37

ANÁLISIS DE FLUJOS/ÁREAS PROGRAMÁTICAS

COSTANERA

MAPEO DE FLUJOS CON EXTENSIÓN VIAL ÁREA DE PROYECTO

PLANTA SUBDIVISIÓN PROGRAMÁTICA PROPUESTA SIMBOLOGÍA SIMBOLOGÍA

FLUJO PEATONAL

FLUJO VEHICULAR-TRANSPORTE PÚBLICO

FLUJO DEL TREN

FLUJO CICLOVÍA EXISTENTE

A partir del análisis del mapa de flujos del área del proyecto, es que se plantea un layout con áreas programáticas las cuales puedan responder a la característica que tenga el área a la cual estén mas próximas.

Barreras Programáticas: Se genera esta área como media de seguridad como un espacio intermediario entre un programa de circulación y un flujo peatonal.

Área de esparcimiento:

Estas áreas están destinadas a ser extensiones de esparcimiento público en las zonas sur del proyecto colindante con el metro y en la zona norte mas orientado al área residencial.

Área de mitigación:

Se crea un área frente a la proximidad del paso del tren al terreno del proyecto, la cual genere mayor distanciamiento de este hacia el área norte del sector y sea mas cercana en las áreas de intercambio modal.

Área de programas tentativos: Se genera un área destinada a los programas tentativos del proyecto,los cuales se distribuirán según la proximidad de cada característica del área de estudio, considerando sector norte una zona residencial y el sector sur-oriente una zona empresarial-industrial junto a las infraestructuras de transporte.

Área de circulación de transportes: Esta área al estar colindante con la expansión vial de la propuesta se deja como circulación tanto del transporte público como privado, generando dentro de esta un intercambio modal entre el flujo de personas del metro y el tren.

Flujos de circulación directa: Se generan posibles flujos peatonales, los cuales funcionen como directrices para el diseño del proyecto.

ÁREA VIALIDAD

EXTENSIÓN DE ÁREA DE ESPARCIMIENTO

ÁREA DEL PASO DEL TREN

ÁREA BARRERA PROGRAMÁTICA FRENTE A LA CIRCULACIÓN DE TRANSPORTE.

ÁREA DE PROGRAMAS TENTATIVOS.

ÁREA DE MITIGACIÓN CON LA PROXIMIDAD DEL TREN

FLUJOS DE CIRCULACION DIRECTA DENTRO DEL ÁREA DEL PROYECTO.

ÁREA DE CIRCULACIÓN DE TRANSPORTES. DIVISIÓN

PROPUESTA III
38
SENADOR JAIME GUZMAN EXTENSIÓN VIAL DE PROPUESTA EXTENSIÓN VIAL DE PROPUESTA RUTA 5 NORTE (AUTOPISTA CENTRAL)
ENTRE ÁREA DE TRANSPORTE Y PROGRAMAS TENTATIVOS. AV.MANUEL ANTONIO MATTA
ÁREA DE BODEGAJE PRT EMPRESA DE CEMENTOS TERRENO CCU PASO DE NIVEL FF.CC METRO LINEA 3
AV. MANUEL ANTONIO MATTA AV. MANUEL ANTONIO MATTA METRO LINEA 3
POBLACIÓN SANTA PAULA
ESTACIÓNDETRENES
FERREA FERREACOSTANERA LINEAS FF.CC

2- MODULACIÓN

Se forma una matriz programática de 8x8 en dirección de la linea del tren, esto para ordenar y controlar una futura programación al interior de esta.

1- CONEXIÓN/MITIGACIÓN

Como primera estrategia se extiende la red vial para poder conectar la población en el sector norte que actualmente se encuentra sin acceso al terreno y también generar una conexión directa con la avenida principal de la comuna.

Mediante el diagrama de flujos tanto de transporte como de personas y las áreas posibles de programas se elige un área programática para diseñar el proyecto.

Se genera una matriz 8x8 dentro del área propuesta en orientación del flujo del paso del tren, esto para generar un área de mitigacion al estar el tren al mismo nivel del terreno y ser colindante con este.

PROPUESTA III MATRIZ ORIENTACIÓN TREN ESTRATEGIAS DE PROYECTO 39

4- ENVOLVER/ CUBRIR

Se cubre el proyecto a través de una cubierta que pueda unificar las distintas áreas programáticas,siendo permeable en algunas zonas del proyecto para generar una buena iluminación de estos espacios intermedios que generen los núcleos programáticos. En un segundo nivel de los núcleos que presenten fachadas al sector oriente,norte y poniente se generara un recubrimiento que pueda otorgar un mejor control espacial y ambiental dentro de los núcleos programáticos.

3- VOLUMENES PROGRAMÁTICOS

Dentro de la matriz se forman 8 núcleos programáticos abarcando la totalidad del área de diseño, estos se generan a partir de las posibles áreas programáticas y los flujos que se puedan generar dentro del proyecto, al tener una población en el sector norte y las infraestructuras de transporte colindantes a este.

A su vez los flujos que se generen dentro del terreno fragmenten los volúmenes y puedan relacionar los distinto espacios intermedios que se forme en la matriz.

PROPUESTA III ESTRATEGIAS DE PROYECTO 40

ESTRATEGIA DE RELACIÓN DIMENSIONES DE UN BUS PÚBLICO RED/ MOVILIDAD DENTRO DE MATRIZ.

DIMENSIONES BUSES BYD K9FE

ESPACIALIDAD EN UNA DIRECCIÓN ESPACIALIDAD EN DOS DIRECCIONES

ESPACIALIDAD DE GIRO

ESPACIALIDAD DE GIRO DOBLE

41
PROPUESTA III
DENTRO DE MATRIZ 16X16 PARA BUS 12
2.7 MTS 6 MTS 3.3 MTS 2.1
1.9 MTS 3.3
MOVIMIENTOS
METROS APROX
MTS
MTS

PROPUESTA III

ESTRATEGIA DE MITIGACIÓN AL TREN/ ÁREAS DE CORTES Y PLANTAS

BARRERA DE MITIGACIÓN FRENTE AL TREN

Frente a la problemática de tener el flujo del tren cercano al proyecto y al mismo nivel de este, se propone como estrategia una barrera de mitigación programática, la cual primero tenga un área de mitigación colindante al flujo del tren, seguida de un programa de ciclovia y recorrido peatonal, que mediante la estructura del proyecto puedan unificarse, y a su vez generar nuevos flujos entre el limite del proyecto y los núcleos programáticos, formando un programa de seguridad frente al paso del tren.

SECCIÓN ÁREA AUDITORIO ESC:GRÁFICA

ÁREA AUDITORIO ÁREA TALLERES-BICICLETEROS ÁREA ADMINISTRATIVA- ESTACIÓN TREN

SECCIÓN ÁREA BICICLETEROS-EDUCACIONAL ESC:GRÁFICA

SECCIÓN ÁREA ESTACIÓN TREN-ADMINISTRATIVA ESC:GRÁFICA

PLANTA ÁREA AUDITORIO ESC:GRÁFICA

• En el área del auditorio la barrera de mitigación sera de mayor dimensión para estar mas alejada del recorrido del tren, seguido de los programas de ciclovia y recorrido peatonal.

• En el limite colindante del terreno mediante la estructura se propone generar un cerramiento permeable hacia el recorrido del tren, a su vez este cerramiento pueda opacar el ruido del tren.

PLANTA ÁREA BICICLETEROS-EDUCACIONAL

• En el área del auditorio la barrera de mitigación sera de una dimensión media.

• En el limite colindante del terreno mediante la estructura se propone generar nuevamente un cerramiento permeable.

PLANTA ÁREA ESTACIÓN TREN-ADMINISTRATIVA

• En el área cercana a la estación de tren la barrera pasa a ser menor para poder unificar el proyecto con la llegada del tren y generar un intercambio modal mas rápido.

• En el limite colindante del terreno mediante la estructura se eleva el programa de la ciclovia para generar más espacio al flujo de personas provenientes del tren.

42
0.0 4.0 8.0 0.0 4.0 8.0 0.0 8.0 4.0 4.0 7.7 4.0 12.0 8.0 3.0 4.0 4.0 4.0 4.0 5.8 4.0 4.0 8.0 ÁREA BARRERA DE MITIGACIÓN FF.CC ÁREA BARRERA DE MITIGACIÓN FF.CC ÁREA BARRERA DE MITIGACIÓN FF.CC ÁREA BARRERA DE MITIGACIÓN FF.CC ÁREA TALLERES EDUCACIONAL ÁREA ADMINISTRATIVA TREN LOCALES COMERCIALES LOCALES COMERCIALES LOCALES COMERCIALES RECORRIDO PEATONAL RECORRIDO PEATONAL BICICLETEROS CICLOVÍAS CICLOVÍAS ÁREA DE LLEGADA FF.CC CICLOVÍAS AUDITORIO AUDITORIO AUDITORIO RECORRIDO PEATONAL RECORRIDO PEATONAL CICLOVIAS CICLOVIAS

PROPUESTA III

TABLA DE SUPERFICIES / CANTIDAD DE USUARIOS / CARGA DE OCUPACIÓN

43
CARGA DE OCUPACIÓN TABLAS DE SUPERFICIE POR RECINTO LOCALES COMERCIALES EQUIPAMIENTO DE ESCALA MEDIANA Fuente: OGUC art 4.2.4
Fuente: estimación dimensión+usuario -CANTIDAD DE PERSONAS ENTRE 1000 - 4000 -EN TOTAL SON 2.273 PERSONAS. RECINTOS N° DE PERSONASM2 X N°P SUP PARCIALN° RECINTOS SUP TOTAL TOTAL M2 PUESTOS DE VENTA PUESTOS DE VENTA 8 4 4 256 1024 1024 1792 12 12 76.8 76.8 768 768 768 10 10 10 10 LOCALES COMERCIALES LOCALES COMERCIALES ÁREA ADMINSTRATIVA RECINTOS N° DE PERSONASM2 X N°P SUP PARCIALN° RECINTOS SUP TOTAL TOTAL M2 OFICINAS BUSES OFICINAS BUSES 10 768 1216 12 44.8 448 448 10 OFICINAS TREN OFICINAS TREN 12 76.8 768 768 ÁREA EDUCACIONAL RECINTOS N° DE PERSONASM2 X N°P SUP PARCIALN° RECINTOS SUP TOTAL TOTAL M2 TALLERES TALLERES 4 4 768 12 80 ÁREA CO-WORK RECINTOS N° DE PERSONASM2 X N°P SUP PARCIALN° RECINTOS SUP TOTAL TOTAL M2 CO-WORK CO-WORK 5 5 400 400 400 14 50 896 896 896 ÁREA HOTELERIA RECINTOS N° DE PERSONASM2 X N°P SUP PARCIALN° RECINTOS SUP TOTAL TOTAL M2 HOTELES HOTELES 18 18 14 768 384 384 384 ÁREA CULTURAL RECINTOS N° DE PERSONASM2 X N°P SUP PARCIALN° RECINTOS SUP TOTAL TOTAL M2 AUDITORIO AUDITORIO 0,5 0,5 12 544 4896 4896 4896 ESPACIO PÚBLICO RECINTOS N° DE PERSONASM2 X N°P SUP PARCIALN° RECINTOS SUP TOTAL TOTAL M2 ESPACIO PÚBLICO ESPACIO PÚBLICO 9 9 3 358.4 358.4 358.4 238.3 SERVICIOS SANITARIOS RECINTOS N° DE PERSONASM2 X N°P SUP PARCIALN° RECINTOS SUP TOTAL TOTAL M2 BAÑOS BAÑOS 1.5 1.5 3 256 256 256 64 PARKING BICICLETAS RECINTOS N° DE PERSONASM2 X N°P SUP PARCIALN° RECINTOS SUP TOTAL TOTAL M2 ESTACIONAMIENTO 4 4 RECINTO M2 X N° DE PERSONA ESTACIONAMIENTO
CANTIDAD DE USUARIOS
Fuente: OMS áreas verdes

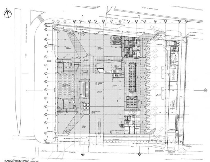
SIMBOLOGÍA

ÁREA RECORRIDO

ÁREA DE ESPARCIMIENTO

LOCALES COMERCIALES

OFICINAS ADMINISTRACIÓN

INTERCAMBIO MODAL DE BUSES

ESTACIONAMIENTOS DE BICICLETAS

AUDITORIO

BAÑOS

VÍAS DE TRANSPORTE

CICLOVÍA PASAJE 4

ESPACIO CO-WORK

ÁREA DE ESPARCIMIENTO

ÁREA DE CIRCULACIÓN VERTICAL

ÁREAS ESPACIOS EDUCATIVOS

ÁREA HOTELERA

BUSES INTERURBANOS TREN DE PASAJEROS

PASAJE 4

PROPUESTA III PLANTAS 44 PLANTA NIVEL 1 esc:gráfica PLANTA NIVEL 2 esc:gráfica AV. MANUEL ANTONIO MATTA AV. MANUEL ANTONIO MATTA ÁREADE MITIGACION FF.CC ÁREADE MITIGACION FF.CC
FÉRREACOSTANERA FÉRREACOSTANERA

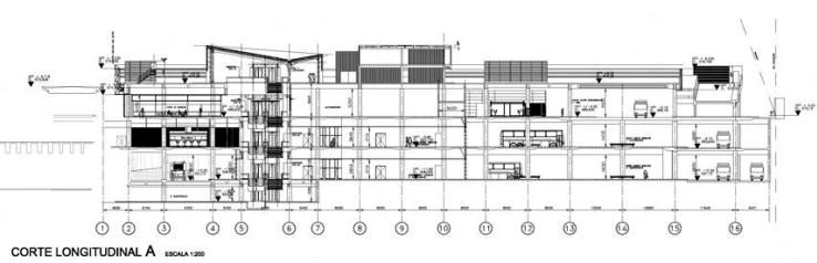
PROPUESTA III CORTES

CORTE A-A’ LAYOUT ESC:GRÁFICA

CORTE B-B’ LAYOUT ESC:GRÁFICA

CORTE C-C’ LAYOUT ESC:GRÁFICA

45 AV. MANUEL ANTONIO MATTA A B A’ B’ PASAJE 4 C C’
46
AXONOMÉTRICA ESC: GRÁFICA PROPUESTA III AXONOMÉTRICA EN CONTEXTO

PROPUESTA III

VISTAS

CERCANAS A ÁREAS DE INTERCAMBIO MODAL

VISTA SALIDA A INTERCAMBIO MODAL DE TRANSPORTE PÚBLICO

SIMBOLOGÍA

ÁREA LOCALES COMERCIALES

ÁREA ADMINISTRATIVA INTERCAMBIO MODAL TRANSPORTE PÚBLICO

CUBIERTA

ÁREA CICLOVIA

ÁREA DE SERVICIOS PÚBLICOS

CERRAMIENTO DE MITIGACIÓN PERMEABLE CON LA PROXIMIDAD DEL TREN

ÁREA DE TALLERES EDUCATIVOS.

ÁREA DE BICICLETEROS.

47 1 2
VISTA PASO DE CICLOVIA SOBRE INTERCAMBIO MODAL DE TREN
1 2

APROXIMACIÓN DE MATERIALIDAD

HORMIGÓN ACERO

ACERO

ACERO ESPACIALIDAD CUBIERTA ESTRUCTURA REVESTIMIENTO

•Alta cohesividad.

•Durabilidad.

•Resistencia.

•Modulación.

•Estructuralmente resistente.

•Material Maleable.

•Vigas livianas.

•Control solar.

•Grandes luces.

•Control solar.

•Permeabilidad

•Privacidad.

48
PROPUESTA III
Escuela Secundaria en Noisy-le-Grand Ubicacion: Noisy-le-Grand, Francia Edificio Darwin 1111 Ubicacion: Buenos Aires, Argentina Pabellón polideportivo de Villacelama Ubicacion: Villacelama, España Escuela Secundaria en Noisy-le-Grand Ubicacion: Noisy-le-Grand, Francia

PROPUESTA III

PROCESO DE MODELO PROPUESTA FINAL

MODULACIÓN

MATRIZ 8X8

ESC 1:250

FLUJOS DE CIRCULACION

FLUJO PEATONAL

FLUJO TRANSPORTE PÚBLICO

VOLÚMENES PROGRAMÁTICOS

49

ANÁLISIS Y CONTEXTO GENERAL DE LA COMUNA

https://es.wikipedia.org/wiki/Quilicura

https://prcquilicura.cl/wp-content/uploads/2021/03/ARCHIVO1_PRC_QUILICURA_EST_DIAGNOSTICO_COMUNAL.pdf

http://prcquilicura.cl/wp-content/uploads/2021/03/ARCHIVO8_PRC_QUILICURA_PROCESO-EAE.pdf

http://prcquilicura.cl/wp-content/uploads/2021/06/Archivo2_Borrador_MemoriaExplicativaImagenObjetivo.pdf

https://ine-chile.maps.arcgis.com/apps/webappviewer/index.html?id=59ba00b6bab8456cbadf80442b8bea9b

https://docplayer.es/108369054-Proceso-de-actualizacion-plan-regulador-comunal-de-quilicura.html

https://www.efe.cl/primera-estacion-intermodal-que-unira-trenes-buses-y-metro-en-lo-valledor-comenzara-a-operar-durante-el-segundo-semestre/ https://es.wikipedia.org/wiki/Tren_Santiago-Batuco

https://www.efe.cl/proyectos/santiago-batuco/ http://prcquilicura.cl/wp-content/uploads/2021/03/ARCHIVO3_PRC_QUILICURA_EST_CAP_VIAL.pdf

ANÁLISIS MOVILIDAD METROPOLITANA Y COMUNAL

http://mtt.gob.cl/wp-content/uploads/2020/11/Movilidad-en-el-Gran-Santiago.pdf

https://www.mtt.gob.cl/wp-content/uploads/2014/02/plan_maestro_2025_2.pdf

http://www.fundacionfuturo.cl/wp-content/themes/fund_futuro_theme/img/pdf/stgo-movurbana.pdf

https://www.aic.cl/wp-content/uploads/2021/06/Respuestas-AIC-Plan-Stgo-2030.pdf

https://www.subtrans.gob.cl/wp-content/uploads/2021/09/Diagnostico-1-Taller-Interinstitucional-PMMS-2030.pdf

ESTACIONES INTERMODALES

https://es.wikipedia.org/wiki/Estaci%C3%B3n_Intermodal_Lo_Ovalle

https://es.wikipedia.org/wiki/Estaci%C3%B3n_Intermodal_Bellavista_de_La_Florida

https://es.wikipedia.org/wiki/Pajaritos_(estaci%C3%B3n)

https://es.wikipedia.org/wiki/Estaci%C3%B3n_Intermodal_La_Cisterna

https://es.wikipedia.org/wiki/Estaci%C3%B3n_Intermodal_Vespucio_Norte

https://es.wikipedia.org/wiki/Estaci%C3%B3n_Intermodal_Del_Sol

https://es.wikipedia.org/wiki/Estaci%C3%B3n_Lo_Valledor

https://www.red.cl/red-comunica/mejoras-del-sistema/se-inaugura-nueva-estacion-intermodal-en-franklin/

https://es.wikipedia.org/wiki/Estaci%C3%B3n_Intermodal_Los_Libertadores

https://ww2.muniquilicura.cl/inauguracion-de-la-estacion-intermodal-los-libertadores-sera-el-proximo-28-de-noviembre/

REFERENTES

https://www.mbarq.net/obras/Transporte/C0507-EILC/C0507.html

https://www.archdaily.cl/cl/980707/estacion-de-metro-sao-paulo-morumbi-23-sul?ad_medium=gallery

https://www.archdaily.cl/cl/960840/parking-y-estacion-intermodal-idom?ad_medium=gallery

https://www.mbarq.net/html/DOC-Documentos.html

PROPUESTAS

https://movelatam.org/wp-content/uploads/2019/09/20190830-EV-Buses-BYD-Chile.pdf

https://www.mtt.gob.cl/archivos/31656

https://www.arqydom.cl/carga-de-ocupacion/#google_vignette

https://www.mtt.gob.cl/wp-content/uploads/2020/01/GUI%CC%81A_CICLOPISTAS_2020.pdf

https://www.archdaily.cl/cl/797305/escuela-secundaria-en-noisy-le-grand-ateliers-2-3-4?ad_medium=gallery

https://www.archdaily.cl/cl/993429/edificio-darwin-1111-hermanos-goldenberg?ad_source=search&ad_medium=projects_tab

https://www.archdaily.cl/cl/892405/pabellon-polideportivo-de-villacelama-quir-s-presa?ad_medium=gallery

https://www.archdaily.cl/cl/02-351739/edificio-laboratorio-synthon-gh-a-guillermo-hevia?utm_medium=website&utm_source=archdaily.cl

ANTECEDENTES SOCIO COMUNITARIO

-Plan Regulador Comunal de Quilicura 1985.

-Plan Regulador Metropolitano de Santiago,Imagen Quilicura,1994.

-Ordenanza PRMS actualizada a marzo del año 2020.

-PRC 1985 y ENMIENDA 1. Compilado de antecedentes.

BIBLIOGRAFÍAS 50

Turn static files into dynamic content formats.

Create a flipbook
Issuu converts static files into: digital portfolios, online yearbooks, online catalogs, digital photo albums and more. Sign up and create your flipbook.