Portafolio Académico Arquitectura

Page 1

Kunsthalle, Bielefeld - Alemania

Foto: Autor

PORTAFOLIO ARQUITECTURA

Juan Camilo Manrique Chiriví

“La arquitectura tiene que fundirse con el en entorno, no ser un elemento diferenciador” - TOYO ITO

PORTAFOLIO ARQUITECTURA

Juan Camilo Manrique Chiriví

1 HOJA DE VIDA

Vitae

ÍNDICE - INDEX

1.1 PERFIL PROFESIONAL

Professional Profile

2 EXPERIENCIA PROFESIONAL

Experience

2.1 Caracterización del Centro Histórico de Riohacha

Investigación y planteamiento para la implementación de centro histórico en Riohacha

3 PROYECTOS DE MÉRITO

Merit Projects

3.1 Workshop Reconversión de Paisajes Industriales

Reconversion of Industrial Landscapes

Conexión Verde, Rheinen Park - Duisburg, Alemania

Green Conection, Rheinen Park. Duisburg, Germany

3.2 Workshop Casa Raíz III, El Orígen

Mejoramiento Integral de Vivienda

Cazucá, Soacha - Colombia

Integral improvement of housing Cazucá, Soacha - Colombia

4 PROYECTOS

Projects

4.1 Vivienda/Housing - Teusaquillo, Bogotá - Colombia

Vivienda Estudiantil

Student Housing

4.2 Equipamiento Local/Local Equipment - Soacha, Cundinamarca - Colombia

Jardín Infantíl Lernen Durch Spielen Lernen Durch Spielen Kindergarten

4.3 Revitlización Urbana/Urban Revitalization - Bogotá - Colombia

Revitalización del Centro Histórico Ampliado de Bogotá

Urban revitalization, Bogotá´s expanded downtown

4.4 Patrimonio Cultural/Cultural Heritage - Las Cruces, Bogotá - Colombia

Centro Gastronómico Cultural La Garza

La Garza Cultural Gastronomic Center

4.5 Proyecto final de carrera/Final degree project - Isnos, Huila - Colombia

Museo taller para la cultura cafetera en la vereda El Mortiño (Isnos, Huila)

Museum-workshop for coffee culture at vereda El Mortiño (Isnos, Huila)

Curriculum
1.2 HOJA DE VIDA Curriculum Vitae
Professional

PERFIL PROFESIONAL

PROFESSIONAL PROFILE

DE VIDA CURRICULUM VITAE

Arquitecto egresado de la Facultad de Arquitectura, Diseño y Urbanismo (FADU) en la Universidad de La Salle, Bogotá - Colombia; con amplio conocimiento en proce sos de arquitectura social y trabajo con comunidades.

Intereses enfocados a la implementación de técnicas sostenibles para el desarrollo y la ejecución de proyec tos y su aplicación en entornos urbnaos y rurales.

Caracterizado por integrar la interdisciplinariedad en un marco colaborativo; con habilidades en representación arquitectónica por medio de herramientas digitales.

Architect at the Faculty of Architecture, Design and Urban Planningat La Salle University in Bogotá, Colom bia; with extensive knowledge in social architecture processes and work with communities .

Interests focused on the implementation of sustainable techniques for the development and execution of projects and their application in urban and rural envi ronments.

Characterized by integrating interdisciplinarity in a collaborative framework; with skills in architectural representation through digital tools.

1 HOJA

Juan Camilo Manrique Chirivi Bogotá, Colombia

Formación Académica/Academic Formation

Experiencia Laboral/Work Experience

Talleres/Workshops Cursos/Courses

Contacto Camilomanrique25@gmail.com (+57) 3223911474

Pregrado Arquitectura

Undergraduate Architecture

Facultad de Arquitectura, Diseño y Urbanismo (FADU) Universidad de La Salle

Bogotá, Colombia 2017 - 2022 Bachillerato Académico Academic High School

Colegio Externado Caro y Cuervo Bogotá, Colombia 2011 - 2016

Básica Primaria Basic Primary

Colegio Externadi Caro y Cuervo Bogotá. Colombia 2006 - 2010

Colectivo Urbz Colombia

Función: Colaborador de diseño y planimetría, proyecto Cine Comunitario barrio Altos del Pino, Cazucá Periodo: Enero 2020 - Actualmente

Workshop Casa Raiz III, El Orígen

Facultad de Arquitecura, Diseño y Urbanismo

Universidad de La Salle

Altos del Pino, Cazucá Octubre 2019

Fundación Proyecto Escape

Función: Levantamiento arquitectónico y planimetría, proyecto Centro Comunitario barrio Altos del Pino, Cazucá Periodo: Octubre 2019 - Marzo 2020

Workshop Reconversión de Paisajes

Industriales

Technische Hochschule Ostwestfalen - Lippe

Detmold, Alemania

Abril 2019 - Mayo 2019

Formulacion y Gestión de Proyectos Comunitarios

Fundación Ciudad Sostenible

Función: Sub - Coordinador proyecto urbanis mo táctico, barrio Verbenal, Bogotá Periodo: Febrefo 2018 - Julio 2018

Workshop Casa Raíz II

Facultad de Arquitectura, Diseño y Urbanismo

Universidad de La Salle

Altos del Pino, Cazucá Octubre 2018

Habilidades/Skills

2do Workshop Arquitectura y Urbanismo Emergente

Universidad Piloto de Colombia

Altos del Pino, Cazucá Mayo 2018

Workshop Casa Raíz

Facultad de Arquitectura, Diseño y Urbanismo

Universidad de La Salle

Altos del Pino, Cazucá Octubre 2017

Instituto Distrital de la Participación y Acción Comu nal (IDPAC) Alcaldía Local de Puente Aranda Junio 2018 Elaboración del Presupuesto para el manejo de las finanzas personales

Servicio Nacional de Aprendizaje Sena Colegio Externado Caro y Cuervo Octubre 2016

Idiomas/Languages

Español Lengua Materna Inglés Nivel B1 Alemán Nivel A1

AutoCAD Revit SketchUp Twinmotion Adobe Illustrator Adobe Photoshop Adobe InDesign Adobe Premiere Pro Suite Office

EXPERIENCIA PROFESIONAL Professional Experience

2.1 Caracterización del Centro Histórico de Riohacha

Characterization of the Historic Center of Riohacha

Investigación y planteamiento para la implementación de centro histórico en Riohacha Research and approach for the implementation of historic center in Riohacha

2

2.1 Caracterización del Centro Histórico de Riohacha

Characterization of the Historic Center of Riohacha

Investigación y planteamiento para la implementación de centro histórico en Riohacha

Research and approach for the implementation of historic center in Riohacha

La práctica rofesional abarcó aspectos netamente investigativos, teniendo en cuenta que el proceso que se llevó acabo fue el de determinar un posible nodo para el desarrollo del posible centro histórico de Riohacha.

The professional practice covered purely investigative aspects, taking into account that the process that was carried out was to determine a possible node for the development of the possible historic center of Riohacha.

Colombia La Guajira Riohacha

HISTÓRICOS CIUDAD DE RIOHACHA

Los indígenas Wayúu se levantaron contra el poder colonial y quema ron la ciudad de Riohacha

Fundación de Riohacha, uno de los primeros centros urbanos fundados en el siglo XVI

Un grupo de irlandeses e ingleses tomaron parte en la expedición del general Mac-Gregor, quién atacó y ocupó por algunos días Riohacha.

El 25 de mayo tuvo lugar la bata lla de la Laguna Salada, que le da independencia a la ciudad, comandada por el almirante José Prudencio Padilla.

Pasa a ser capital del re cien creado departamen to de la Guajira. Riohacha cuenta con una población de 169.000 habitantes.

EVOLUCIÓN DE RIOHACHA

Se asentaron algunos exranjeros como comerciantes, marineros, carpinteros y labradores

Se empieza a confor mar el plano urbano colonial, con la crea ción del primer barrio: Calancala. Riohacha creció en 39.508 habitantes, de los cuales 19.505 eran de la cabecera

3 PROYECTOS DE MÉRITO MERIT PROJECTS

EVENTOS

3.1 Workshop reconversión de Paisajes Industriales Workshop reconversion of Industrial Landscapes

Conexión verde

Rheinen Park, Duisburgo - Alemania

Green Connection

Rheinen Park, Duisburg - Germany

3.2 Workshop Casa Raíz III, El Orígen

Workshop Casa Raíz III, Origin

Mejoramiento Integral de vivienda

Cazucá - Soacha

Integral Improvement of Housing

Cazucá - Soacha

3.1 Workshop Reconversión de Paisajes Industriales Workshop Reconversion of Industrial Landscape

Conexión Verde

Rheinen Park, Duisburgo - Alemania

Green Connection

Rheinen Park, Duisburg - Germany

En el marco del proyecto Semestre Internacional de la Facultad de Ciencias del Hábitat en la alianza con Technische Hochschule Ostwestfalen - Lippe - University of Applied Sciences and Arts - TH OWL (Alemania), se realizó un workshop centrado en el análisis y estudio de reconversión de paisajes indus triales.

Within the framework of the International Semester project of the Faculty of Habitat Sciences in part nership with Technische Hochschule Ostwestfalen - Lippe - University of Applied Sciences and Arts - TH OWL (Germany), a workshop was held focused on the analysis and study of industrial landscape re conversion.

Coautor: Necati Karalar

DESCRIPCIÓN

El workshop se llevó a cabo en tre fases: -Recorrido en bicicleta -Trabajo en la universidad -Presentación final

Estuvo presente la interdisciplinareidad, al trabajar estudiantes de urbanismo alemanes con estudian tes de arquitectura colombianos

El Workshop planteó e incentivó de nuevo al uso de materiales y habilidades manuales, combinan do la tecnología y metodología de mapeo para la creación de la propuesta. El concepto que se buscaba era poder generar una conexión verde, allí donde antes era sólo industria

Productos de análisis y propuesta

La propuesta va enfocada a la recuperación y trnsformación de esta zona anteriormente indus trial, para generar nuevas dinámicas que integren el río, aplicando técnicas de sostenibilidad para que esta zona de muestra de la resiliencia frente a las anigüas actividades y ejemplo ante el nuevo programa planteado.

Diagrama de relaciones

Integración Creatividad Economía

Green Connection

Comunidad

Vivienda

Recreación

Sostenibilidad

Alemania North Rhine Westphalia RheinPark Duisburgo Espacio público Co working

Por medio de esta intervención, se busca renovar una zona anteriormente de ca rácter industrial. Posibilitando una integra ción con la zona residencial aledaña y a su vez creando una conexión y transición amena de la zona urbana hasta el río Rhin.

Se habilitará también una línea de ciclo ruta por la vía ferrea donde anteriormente circulaba el tren.

3.2

Workshop Casa Raíz III, El Origen

Workshop Casa Raiz III, Origin

En la actualidad la zona es una “zona residual” ya que dentro de sus usos sólo se encuentran pequeños comer cios, además está experimentando un deterioro en cuanto a su fitotectu ra. Lo anterior uno de los puntos clave que se tomaron en cuenta para la realización de la propuesta.

Mejoramiento Integral de Vivienda

Cazucá - Soacha

Integral Improvement of Housing

Cazucá - Soacha

CONCEPTO ESTADO ACTUAL Cicloruta en vía en actual vía ferrea abandonada Renaturalización de zonas verdes Residencias Oficinas Comercio Deporte Social Cultural

El workshop Casa Raíz III, El Orígen, más allá de enfocarse en la intervención y el mejoramiento de vivienda, genera un proceso individual y colectivo para que la comunidad pueda integrare mejor y empezar a manejar y entender el trabajo colaborativo.

The workshop Casa Raíz III, El Orígen, beyond focusing on the intervention and improvement of housing, generates an individual and collective process so that the community can better inte grate and begin to manage and understand collaborative work.

El workshop se realizó de la mano con estudiantes de arquitectura y urbanismo de la Universidad Technische Hochschule Ostwestfalen - Lippe de Detmold, Alemania

El workshop Casa Raíz se ha realizado desde el año 2017, cada versión con un foco de trabajo en específico, para el taller del año 2019 las intervenciones se basaron en el uso del BTC (Bloque de Tierra Comprimido) para la elaboración de divisiones internas, muros, muros bajos, entre otros, estos bloques fueron elaborados por la comunidad junto con los estudiantes que asisitieron a la totalidad del taller.

Se profundizó también en el desarrollo de las instalacio nes hidráulicas, creación de puntos de recolección y cajas de inspección. Uno de los materiales que también ha sido manejado es la guadua, en este caso se con tinuó con agunos aspectos de los baños comunitarios, elaborados con dicho material.

Colombia Soacha Cundinamarca

Elaboración de muro divisorio en bloque de tierra comprimido para el baño de la señora Aurora, en este caso ella no conta ba con un espacio cerrado para el baño.

Funcionamiento

Armado de viga de amarre para el poste rior levantamiento de un muro divisorio para la zona de cocina, en la casa de la señora Patricia

4 PROYECTOS PROJECTS

de la maquina cinva ram para la elaboración de los bloques con tierra comprimida (BTC) Fuente: https://repository.unilibre.edu.co/bitstream/handle/10901/17113/BLOQUES%20 DE%20TIERRA%20COMPRIMIDA%282016%29.pdf?sequence=1&isAllowed=y

4.1 Vivienda/Housing - Teusaquillo, Bogotá - Colombia

Vivienda Estudiantil

Student Housing

4.2 Equimapiento Local/Local Equipment - Soacha - Colombia

Jardín Infantíl Lernen Durch Spielen

Lernen Durch Spielen Kindergarten

4.3 Revitalización Urbana/Urban Revitalization - Bogotá - Colombia

Revitalización del Centro Ampliado de Bogotá

Urban Revitalization Bogota´s Expanded Downtown

4.1

Vivienda/Housing - Teusaquillo, Bogotá - Colombia

Vivienda Estudiantil Student Housing

4.4 Patrimonio Cultural/Cultural Heritage - Las Cruces, Bogotá - Colombia

Centro Gastronómico Cultural Rufino Cuervo

Gastronomic - Cultural Center

El proyecto de vivienda estudiantil busca dinamizar la zona y crear una cercanía para los es tudiantes, al estar ubicado a 30 min de la ciudad universitaria, gracias a las renovaciones en cuanto a ciclorutas el proyecto se complementa articulando hitos cercanos.

The student housing project seeks to energize the area and create a proximity for students, be ing located 30 minutes from the university city, thanks to the renovations in terms of bike paths, the project is complemented by articulating nearby landmarks.

LOCALIZACIÓN

La vivienda estudiantil se plantea cómo una solución de hábitat para los estu diantes que toman clases especialmente dentro de la ciudad universitaria. a su vez se plantea cómo una esquina de oportunidad con conexión a la plazoleta del concejo, se aprovechará la renova ción y ampliación de la zona de cicloru ta, teniendo en cuenta la población a la que va dirigido el inmueble.

Colombia Bogotá Localidad de Teusaquillo Flujo vehicular medio Mayor flujo peatonal Lote de intervención Estado actual del lote Imaginario del proyecto Hito: Plazoleta del Concejo Lugar de intervención: Casa Drago Área: 267.49 m2 Fitotectura Sangregao Pino Romerón Cajeto Caucho Sabanero

Planta 1er piso

Se busca generar espacios amplios para la circulación de residentes y permanencias confortables para visitantes.

Interior Apartamento

Espacio interior de apartaestudio con cocina abierta.

PRINCIPAL

Planta tipo

En cada planta se encuentran tres apartamentos, dirigidos a grupos de estudiantes o estudiantes sólos, con mobiliario acorde a necesidades.

Plano de venta Se aprecia la distribución de espacios y las diferentes circulaciones, perma nencias y servicios del edificio

Terraza Ubicada en el último apartamento que a su vez es duplez, cuenta con amplio espacio para dife rentes actividades sociales.

Hall Espacios amplios para una circula ción amena, cuentan con mobiliario.

CORTE

TIPOLOGÍAS FACHADA

Listones de Madera Plástica

Los perfiles WPC (Wood Plastic Com posite) Son un material innovador y ecológico usados para el revesti miento de fachadas ofreciendo la misma calidez y elegancia que la madera

Ventajas por su resistencia a: Humedad, sol a la intemperie Plagas que atacan la madera Hongos

Rayos Ultravioleta

Además de esto la madera plástica tiene diversos usos cómo: mobiliario urbano e interior, viviendas comple tas, escenografía, entre otros.

CONFORT BIOCLIMÁTICO Y SOSTENIBILIDAD

Placas de GRC

El GRC (Glassfibre Reinforced Concrete) es un compuesto de concreto armado con fibra de vidrio, resistente al óxido, su proporción debe comprender entre un 4% y 5% del peso total de la mezcla.

Ventajas:

Alta resistencia a la compresión

Resistencia a flexión y tracción

Inalterable por abrasión

Resistencia a agresiones químicas

Aplicaciones:

Paneles de fachada y cerramientos

Encofrados permanentes y/o reutilizables

Sistemas modulares de vivienda

Decoraciones interiores

Elementos de protección contra el fuego

Barreras acústicas para control de ruido

4.2

Equipamiento Local/Local Equipment - Soacha - Colombia

Jardín Infantíl Lernen Durch Spielen

Ilumninación LED: Sistema de enfriamiento: Huerta urbana:

Se implementa este tipo de iluminación por su evi dente ahorro energético, además de su versatilidad en cuanto a los diferentes diseños que se propongan teniendo en cuenta el usuario y función reque ridos.

Utilizando un sistema de enfriamien to activo gracias a la energía del aerogenerador, se dispondrá de acondicionamiento del flujo de aire especialmente en los diferentes apartamentos.

Con el fin de promover una estructura de sobe ranía alimentaria en parte del inmueble, será una herramienta que promoverá el consumo y la siembra consciente de los alimentos, la huerta estará ubicada en la terraza y junto con esta también habrá una compostera para así crear un ciclo entre lo que se consume y el insumo para la siembra.

Climatización: Energía eólica a pequeña escala: Compostera:

En este caso no sólo un sistema de enfriamiento es fundamental, ya que los materiales son impor tantes para generar los entornos requeridos en zonas cómo el gimnasio y el salón comunal.

Como suministro de energía de reserva para el edificio, se implementa el mecanismo de recolección de energía eólica por medio de dos aerogene radores pequeños, siendo esta una iniciativa más para reducir el consumo de energía convencional.

Como se menciona en la huerta urbana, se busca crear un ciclo para que los alimentos orgánicos consumidos puedan ser transfor mados en abono a través del proceso de compostaje, la caja estará situada junto a la huerta urbana de la terraza.

Kindergarten Lernen Durch Sipielen

MATERIALIDAD
Obtención del material Obtención del material Fibra de Vidrio Mezcla de mortero

Lernen Durch Spielen es un proyecto de Jardín Infantíl donde su idea formal tiene como base la deconstrucción de un cubo soma y como concepto “recorrer” a través de sus perfiles hori zontales que articulan los demás volúmenes.

Lernen Durch Spielen is a project of Jardín Infantíl , where its formal idea is based on the decos truction of a soma cube and as a concept “walk” through its horizontal profiles that articulate the other volumes.

Coautor: Camila Chávez

Colombia Cundinamarca Soacha

PLANTA GENERAL

En este caso el espacio intermedio entendido cómo el límite entre el jardín infantíl y el espacio público de la calle. Cuando se dispone de un espacio que separa la seguridad que ofrece el jardín en comparación con la calle; estos espa cios pueden ser terrazas, balcones o porches.

Algunos ambientes requieren de condiciones de atenuación sonora, las cuales se pueden obtener mediante el trabajo con superficies porosas, perfo radas, ranuradas, juntas profundas y angostas, nunca lisas.

DE CONFORT

ESTRATEGÍAS BIOCLIMÁTICAS

Los espacios de perma nencia de niños y niñas requieren adecuadas condiciones de iluminación natural. El aprovechamien to de la luz natural se debe disponer en lo posible de ventanales y claraboyas que además del acondi cionamiento ambiental y la ventilación del espaci, permiten el contacto visual y físico con el exterior.

Circulación de aire e iluminación

Estrategia de muro trombe

DIAGRAMA DE RELACIONES

Deben garantizar condiciones suficientes de ventilación natural por medio de áreas mínimas efectivas de ingreso e intercambio de aire en relación con el área de piso servido.

El muro trombe estandar ubica un panel de vidrio a aproximadamente 2 a 5 cen tímetros de una pared de mampostería oscura, habitualmente hecha de ladrillos, piedra u hormigón. El calor del sol pasa a través del vidrio, es absorbido por la pared de masa térmica y luego se libera lentamente al interior.

CORTE POR FACHADA REQUERIMIENTOS

4.3 Revitalización Urbana/ Urban Revitalization- Las Cruces, Bogotá

Tradición, Arte y Cultura

Tradition, Art and Culture

ESTRUCTURA
CORTE Detalle constructivo placa colaborante Detalle constructivo cimentación Detalle placa colaborante Steel Deck Detalle cimentación

TRATAMIENTOS URBANÍSTICOS

Se establecen criterios urbanísticos de intervención con el fin de conocer a fondo y junto con la norma tivoa aquellos espacios que urgen de una interven ciín y revitalización

El proyecto busca darle una nueva cara al centro ampliado de Bogotá, siendo la zoa de estudio la UPZ Las Cruces, dinámicas cómo el espacio público, zonas residuales y falta de equipamientos de toda índole son estudiados.

The project seeks to give a new face to the expanded center of Bogota, being the study area the UPZ Las Cruces, dynamics such as public space, residual areas and lack of facilities of all kinds are studied.

Coautor: Camila Chávez Colombia Bogotá Santa Fé
PROPUESTA URBANA PROPUESTA
EQUIPAMIENTOS
Parque saludable Pista de patinaje Parque para niños Polideportivo Canchas múltiples
Vistas
propuesta de parque Vista
canchas múltiples
Accesibilidad
del proyecto
Corte
propuesta
PROPUESTA ESPACIO PÚBLICO 4.4
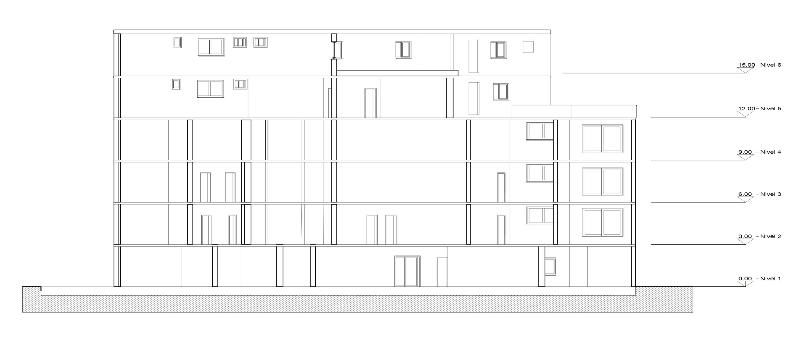
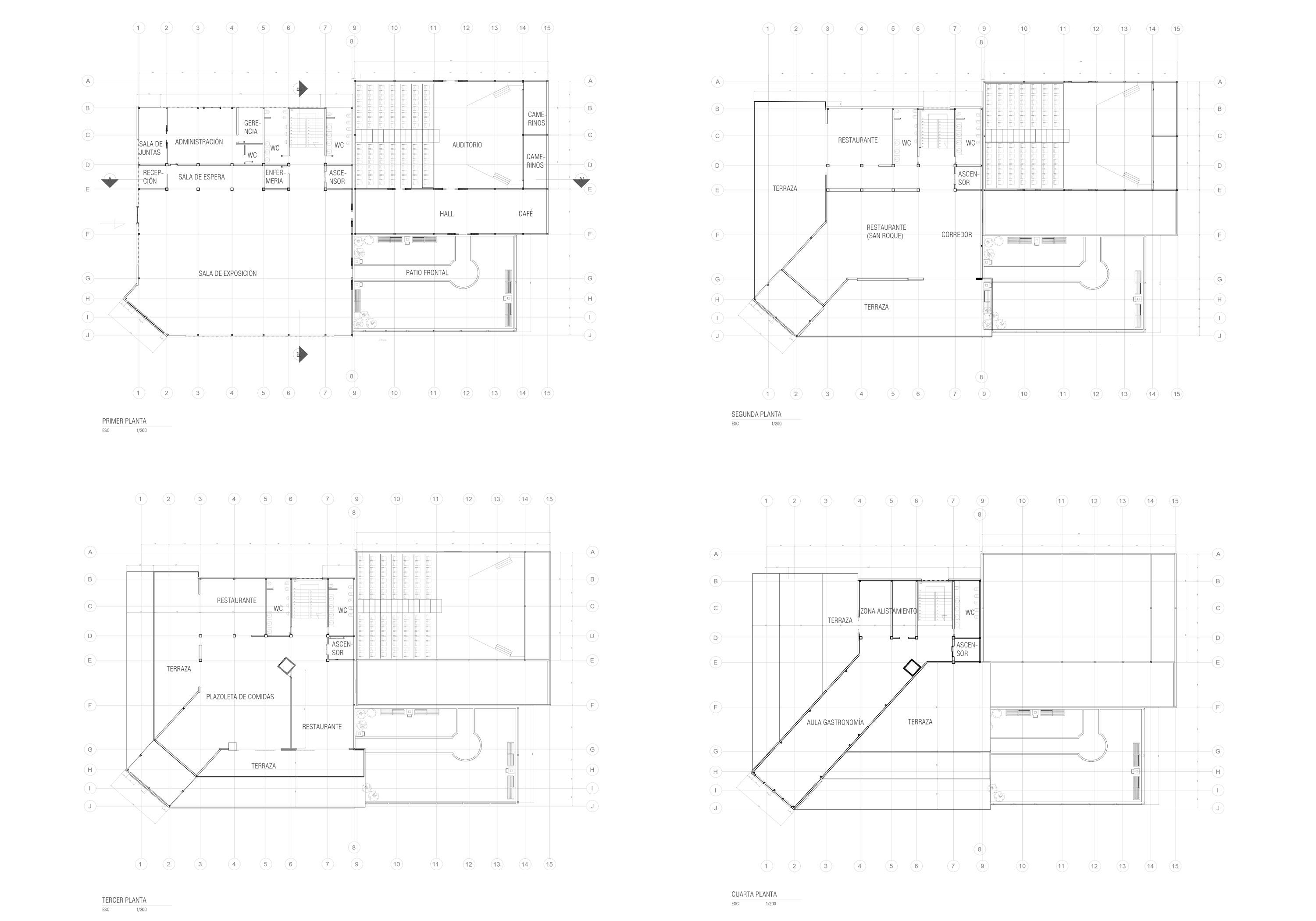
Patrimonio Cultural/ Cultural Heritage - Las Cruces, Bogotá Centro Gastronómico Cultural La Garza La Garza Cultural Gastronomic Center

Se busca, mediante el arraigo cultural, generar una propuesta de equipamiento, en este caso un Centro Gastronómico Cultural que pueda mejorar la economía y prácticas culturales inte grando a su vez el patrimonio gastroómico del país en la propuesta.

The aim is to generate, through cultural roots, an equipment proposal, in this case a gastronomic cultural center that can improve the economy and cultural practices while integrating the coun try’s gastro-omic heritage into the proposal.

Colombia Bogotá Santa fé
DOFA GENERAL
CONCEPTO CRITERIOS DE INTERVENCIÓN PRINCIPIOS
FORMALES DIAGRAMA DE RELACIONES
PROGRAMA

FACHADA CRA 7MA

PLANIMETRÍA TÉCNICA CORTE

PÚBLICO - PRIVADO

VISUALIZACIONES DE ESPACIOS

Dentro del

biciparqueadero,

Museo taller para la cultura cafetera en la vereda El Mortiño (Isnos, Huila)

Museum-workshop for coffee culture at vereda El Mortiño (Isnos, Huila)

SISTEMA ESTRUCTURAL
ZONIFICACIÓN
equipamiento se pueden encontrar diferentes espacios, cómo lo son:
café, auditorio para 150 personas, cocina indus
trial para
clases de gastronomía, entre otros.
4.5 Proyecto final de carrera/Final degree project - Isnos, Huila Colombia

El proyecto tiene cómo base la pregunta: ¿A través de qué proyecto la culturacafetera se puede vincular con la identidad y saberes de los campesinos y en un contexto general con la poblacióndel municipio de Isnos y la sinergiaentreentre estos?

De esta manera se gestó la idea que se fue puliendo, teniendo en cuenta las necesidades a fuuro por parte de los jóbvenes caficultores del municipio el devenir de la actividad cafetera, que ha de cambiar no sólo en Isnos y Colombia, sino en todas las zonas productoras de café en el mundo.

Colombia Huila Isnos

“La arquitectura no tiene que estar solamente relacionada con la belleza y la estética, sino más bien con la acción política (...) A mi nunca me han interesado tanto las formas como el hecho de poder intervenir en la sociedad”.

- Rem Koolhaas

CONTACTO camilomanrique25@gmail.com +57 3223911714 Bogotá, Colombia

Turn static files into dynamic content formats.

Create a flipbook
Issuu converts static files into: digital portfolios, online yearbooks, online catalogs, digital photo albums and more. Sign up and create your flipbook.
Portafolio Académico Arquitectura by Camilo Manrique - Issuu