PORTFOLIO 2024

Page 1


PORTFOLIO

Camilo BAZZANI

L'îlot peut être un lieu

[Re]découvrir [Re]dignifier

Piscine sur les quais

Intériorité orientée

Travaux transversaux de structure

Photographies

Contact

juanca96333@gmail.com

(+33)6 52 21 60 43

Langues

Français C1

Espagnol C2

Anglais B2

Compétences

Revit (en apprentissage)

Twinmotion/enscape

Sketch-up

Autocad

Ilustrator

Photoshop

Impression 3D

Decoupe laser

Photographie

Edition Photo/vidéo

CAMILO BAZZANI

Étudiant à l'École Nationale Supérieure

d'Architecture Paris Val-de-Seine, je suis une personne curieuse et créative , profondément passionné par l'architecture. Actuellement en quête d'une alternance au sein d'une agence d'architecture pendant mon parcours de master.

Expérience

Clément Blanchet Architecture

decembre 2023- fevrier 2024 (2 mois), stagier Création de documents de rendu pour les concours (maquettes, perspectives, dessins) et la participation aux différentes phases du concours au sein des équipes.

Studio Photo ENSA PVS

Octobre 2023- Actualité, moniteur

Assistance lors des prises de vue, réalisation de portraits, manipulation des équipements du studio.

Bouygues batiment IDF

Juillet 2022, stage en BTP

Participation au chantier d'un immeuble en béton armé, traçage et création des structures.

COOP ENSA PVS.

Printemps 2022, Vendeur bénévole Vente de matériel de beaux-arts.

Éducation

É cole nationale supérieure d'architecture

Paris Val-de-seine 2021-2024, Licence en architecture DEEA.

Lycée San Diego (Colombie)

2017-2020, Baccalauréat

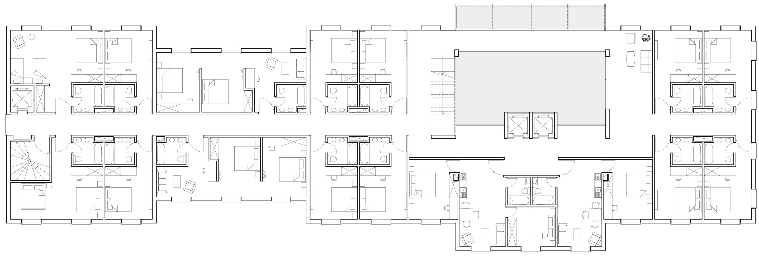
L'îlot peut être un lieu

3 typologies de logements collectifs avec des programmes publiques.

Projet sur un site théorique de 90 mètres sur 55 mètres , basé sur une critique de l'urbanisme actuel, le projet cherche à démontrer qu'il est possible de créer un ensemble de logements sociaux qui se rapporte à son environnement et qui accueille la ville.

Trois types d'appartements pouvant être assemblés entre eux, des ateliers d'artistes, un centre culturel, une école, un restaurant et un bureau de poste.

Le T4 parfait

Un projet dans le projet

Suivant les caractéristiques d'un appartement social typique de 80 mètres carrés , la le projet cherche à créer des espaces de la meilleure qualité possible, en travaillant sur la lumière, la ventilation, la profondeur visuelle, l'orientation et les espaces verts, cet appartement cherche à apporter les qualités d' une villa dans la ville.

L'appartement a été détaillé au maximum, chacun des meubles a été conçu sur mesure en fonction des caractéristiques de l'espace dans lequel il se trouve, nous avons également travaillé sur la qualité des murs principaux de chaque pièce.

[Re]découvrir [Re]dignifier

un hôtel de 37 chambres à Orsay.

Le projet se déroule en deux phases. La première phase consiste en un projet urbain visant à redonner la place aux piétons dans un îlot fragmenté au centre d' Orsay. La seconde phase concerne la réhabilitation de l'ancien hôpital en un hôtel .

L'objectif du projet est de préserver les qualités patrimoniales du bâtiment tout en renforçant son élégance grâce aux encadrements des fenêtres, créant ainsi une harmonie architecturale. L'élément distinctif de cette réhabilitation est un vaste atrium doté d'une façade en verre translucide , marquant clairement l'entrée du bâtiment.

Plan du R+2, R+3.

Piscine sur les quais.

Projet de piscine municipale à Charenton-le-Pont, dans le cadre d'équipements sportifs déjà existants.

Axes du site

Le projet est capable de définir son propre volume en fonction de l'expression des principaux axes du site. Celui-ci est parfaitement inséré parallèlement à l'autoroute et en bord de la Marne.

Volumetrie

Le volume fait un jeu de niveux por accueil les visiteurs et diferencier entre expectateurs et nageurs, il et a également été conçu pour orienter le bassin principal vers le sud.

Intériorité orientée

Une école dʼarchitecture à Ivry.

Projet d'une école d'architecture développée dans un cube de 30m sur 30m, avec un positionnement urbain dans un îlot du quartier des Confluences à Ivry.

Le projet vise à intégrer un espace vide central à l'intérieur du bâtiment, favorisant l'orientation et la reconnaissance des différents éléments. Il inclut également la réhabilitation d'une halle industrielle ainsi que la création de nouveaux ateliers pour les étudiants."

PLAN DU REZ-DE-CHAUSÉE

Conception à travers de la maquette

Le processus de conception s'est basé sur la création de maquettes, à partir d'un cube de 30m sur 30m . À l'intérieur, un vide en cristal permet de créer une complexité intérieure à travers une abstraction.

Ensuite, la maquette de l'écrin dévoile l'ensemble des matériaux avec lesquels on va travailler et sur lesquels on va sculpter le programme. Puis, une maquette en béton coulé illustre la masse et les différentes qualités de lumière à travers le bâtiment.

Enfin, la maquette finale en bois démontre toutes les logiques intérieures et extérieures, avec une uniformité de matériaux.

Travaux transversaux de structure

MAQUETTE DE DÉTAIL 1:20 DU PROJET “PISCINE SUR LES QUAIS”.

MAQUETTE DU “MUSEU DOS COCHES” (MENDES DA ROCHA)

WORKSHOP DE 1 SEMAINE.

Maquette réalisé avec du papier, de la colle et du fil nylon, poids final : 384g, supporté 48kg avant rupture.

MAQUETTE STRUCTURELLE DU “LONDON AQUATICS CENTER” (ZAHA HADID)

Photographies

2021 -24

PORTFOLIO

Camilo BAZZANI

Turn static files into dynamic content formats.

Create a flipbook
Issuu converts static files into: digital portfolios, online yearbooks, online catalogs, digital photo albums and more. Sign up and create your flipbook.
PORTFOLIO 2024 by camilo.bazzani - Issuu