Camille Wimpe Portfolio 2025

Page 1


Camille Wimpe

De-Parceling; Building an In-Between

Professor Jon Levine Spring 2024

It Takes a Village

Professor W. Gavin Robb

Fall 2022

Equitable Zoning by Design

Professional work

January 2024 - January 2025

Financial Fill

Professor Kearon Roy Taylor (in progress thesis work) Fall 2024 - Spring 2025

Walk-Up Housing

Professor Tim Love Spring 2021

Decontextualized Mapping

Personal mapping endeavor

October 2023 - October 2024

De-Parceling; Building an In-Between

Comprehensive Studio // Spring, 2024

Collaboration with Ethan

*Awarded studio-wide design excellence award

This adaptive re-use project responds to the harsh lines drawn between spaces which are considered “private” and “public,” seeking a less rigid approach. Reflecting on historical maps, we noticed the colonial obsession with drawing abstract lines, and claiming land for private use.

Our site is located on Columbia Road, originally intended to be the final link of the Emerald Necklace. We proposed that this final link is realized, extending a green-way on one-half of Columbia Road. To provide structure we created “follies” which can support various exterior programs. The building itself has a history of public programming, including a dance hall, meeting rooms, a bowling alley, and exhibition spaces as well as still-in-use Single Room Occupancy units. Seeing the value in this blend of private and public program, we worked to integrate the SRO units with newly revitalized public spaces. Our project sought to expand the role of Fox Hall in the neighborhood by providing exterior community gardens, and interior programming for both the residents of the SRO units and members of greater Upham’s Corner.

In our design, we integrated a new central stair and greenhouse, projecting a section of the buildings facade into the new green artery along Columbia Road. Other decisions were taken moment-by-moment, selectively intervening in the single room occupancies to improve the quality of life for residents, and making necessary changes to interior partitions to improve the buildings functionality.

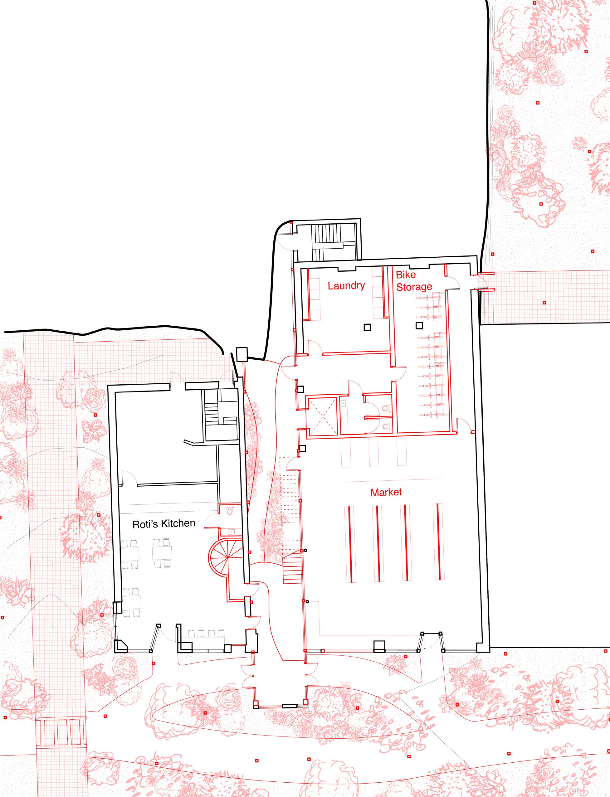
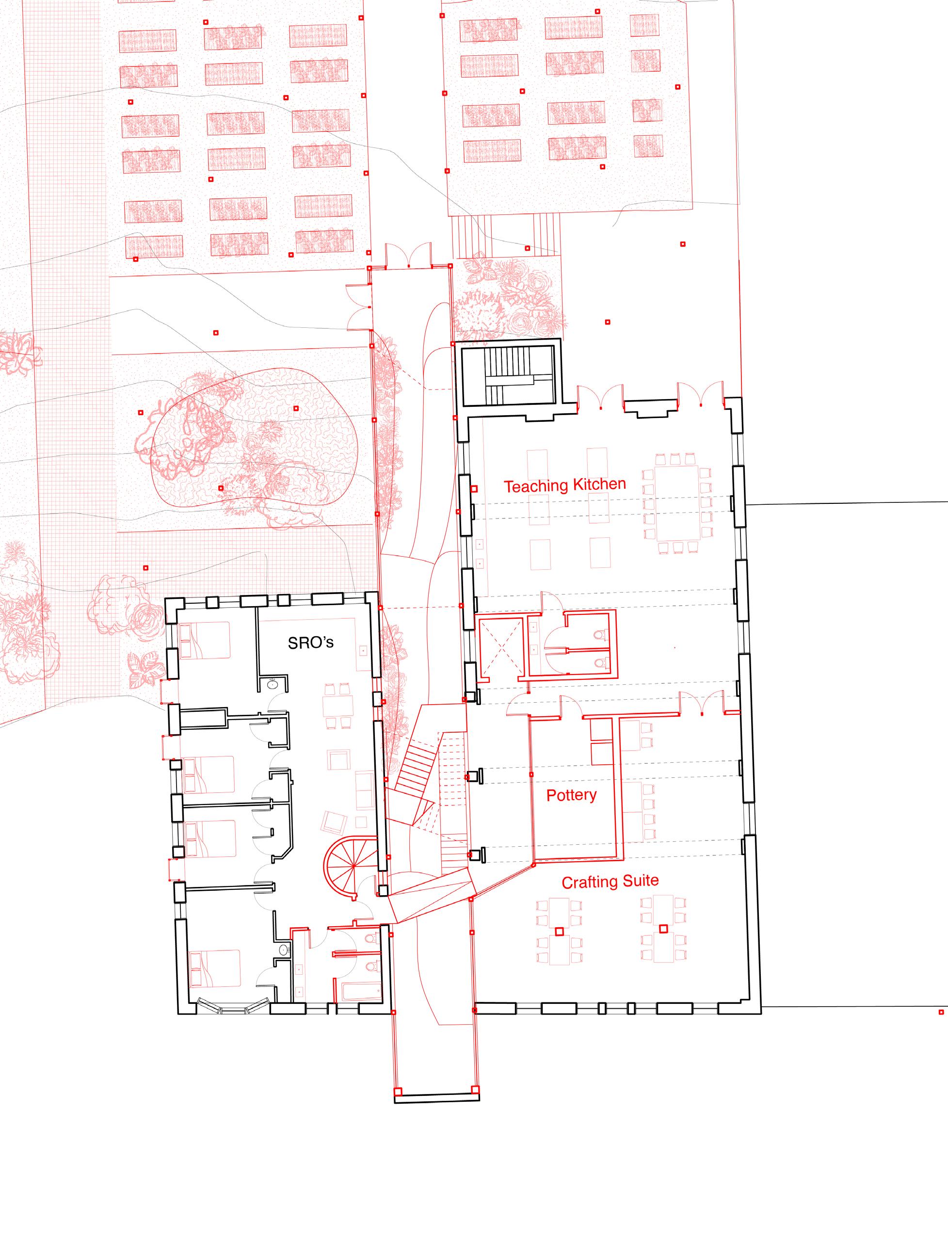
Note that in all drawings red-lines represent new elements, whereas black lines represent existing architectural elements.

Site // The site is located on Columbia Rd, which was intended to be the final link in Olmstead’s Emerald Necklace (historic map below). Our proposal realizes this link by foresting one-half of Columbia Rd, resolving traffic flows as needed. Our re-designed Fox Hall reaches into the new green way, extending greenery through the new central space and into the back-yard. The first floor plan shows the regrading of the interior space that makes this connection possible.

Demolition // Our primary focus in the interior of Fox Hall was the reconfiguration of the central section, which offers vertical circulation and some storage spaces in the existing building. The demo-plan (right) highlights the spine along which our interventions primarily took place. The greenhouse intervention is barely visible in the front elevation of the building, while the rear elevation tells more about the scale of the greenhouse structure.

Intervention // The complexities of the central spine of the project can be seen in the section and plan below, with stairs and platforms connecting to the structural members of the central greenhouse. The second floor plan is seen on the right, showing the connection created between the interior spaces and the backyard. Programmatically, the upper floors revitalize the SRO’s on the left-side of the plan, and introduce new public programs on the right-hand side of the plan.

Acupunctural Solutions // Rather than suggesting an overall scheme for renovation, we selected key moments and designed specific solutions. The intervention below, a simple window box inserted into the existing window frame, enhances the SRO units, and creates a unique element for the residents. On the right hand side of the page, we see a vestibule on the public side of the building, compared to a model photo of the smaller openings designed for the SRO’s.

The Greenhouse // The greenhouse itself is carefully designed to be ventilated during the hot summer months, with operable roof hatches and fans to let air out. We also included a curtain which can trap heat at night in the cooler winter months, reducing heat loss. The section below also shows the attachment of the greenhouse to the existing masonry party walls and floor slabs of the building.

The Follie // Extending the greenhouse structure outwards and into the new green way was critical to the idea of the “in-between.” We designed a distributed network of “follies” which support different types of public uses as visualized below and provides a structure to support programming in the backyard. The follies are two heights, three and seven-feet respectively, and lie on a 12-foot by 12-foot grid, the same dimension as the structural grid of Fox Hall.

Stewardship // We were interested in exploring the effect of time on our proposal, imagining the decay of follies (below) and the expansion of the network as people move out of SRO units (left).To support the longevity of the project and envision it’s integration with the neighborhood, we investigated residence options in the area, and imagined that Fox Hall could be continually supported by an ever-changing network of individuals.

Strategy // Revisiting the overall logic of the project, we sought to explore a more flexible relationship between individual spaces and those designed for common use. We utilized both the greenhouse and follie network to suggest a more public facing role of Fox Hall within the larger Upham’s Corner community. We maintained the existing SRO units on site, but intentionally re-oriented them outwardly, integrating them into the larger public facing building.

It Takes a Village

*Awarded studio-wide design excellence award

This urban design project is located in the Mission Hill neighborhood of Boston on several parking lots which are currently owned by Wentworth University. The sites edges are defined by Mission Main housing, the Alice Taylor Apartments, the Southwest Corridor and accompanying Orange Line trench, and the Mission Hill neighborhood, which is rich with triple-decker urban fabric. As a response to historic urban renewal projects, this proposal centers citizen participation, and outward connections to the surrounding neighborhood fabric.

Beginning with the development of outreach stations located throughout the surrounding neighborhoods on vacant sites or integrated into existing community buildings, input would be collected as soon as possible. Due to the format of the studio, this type of participation was not possible, so the design instead builds in flexibility. The framework is based on a “community-spine” which reaches from the Northeast corner of the site to the Southwest corner. The flexible buildings and adjacent green-spaces along this spine await programming which is requested by residents.

The majority of the site is dominated by a courtyard-style housing typology which is defined by it’s ground floor plan. The 40’ wide bars wrap courtyards which would contain varied programs, including playgrounds, dog parks, ponds, greenhouses, or other exterior programming. The housing itself - responding to the ideals of flexibility - could be designed as point loaded, row-houses, or single-loaded typologies, which all align with the 40’ wide first floor. The visualized axonometrics demonstrate one as-built scheme, but many other arrangements of courtyard programming and housing typologies would be possible within the network of streets, paths, and community spine.

Mapping // By drawing historical figure/ground maps of the areas around the site, a history of disinvestment, and urban renewal is uncovered. The resulting urban infill projects, namely the Southwest Corridor, are directly adjacent to the site. The map below abstractly represents these changes, as well as highlighting (in pink) properties that are owned by LLC’s or other management companies, indicating that they may have a higher potential for future change.

1931 - Red/Lined

In the 1930’s as part of the creation of red-lining maps, this section of Roxbury was given the grade of “D” due to dense living conditions, proximity to industry, and a high population of immigrants.

1969 - Urban Renewal I

As part of the citywide urban renewal effort, two public housing projectsMission Main and Alice Taylor were built in the 1960’s.

1975 - Urban Renewal II

Large swaths to the East of our site were cleared in preparation for the construction of the Southwest Expressway.

1995 - Urban Infill

The Southwest Corridor Park was constructed as well as the Orange Line. Madison Park Technical Vocational Highschool is also built to the East of our site.

Outreach // A key part of the project’s ambition was a phase of “outreach,” which would utilize a mixture of existing community centers and new structures on vacant land or parks.

Framework // The design framework operates at three levels - the neighborhood level, which stitches the proposal into it’s surroundings, the neighborhood unit, at the scale of one courtyard building, and the community unit, which is defined by a shared entrance and an internal community space, operating at the scale of daily interaction (8-15 units).

1. The Neighborhood
2. The Neighborhood Unit
3. The Community Unit

Site Plan + Views // In the site plan below, the aggregated courtyard buildings are seen as they relate to the community spine which bridges the SW corridor and connects to the SW corner of the site. The first-floor programming - shown using dark-blue for community spaces and interior circulation, and lighter-blue for retail, strategically activates the corners of the courtyard buildings, working together to establish a vibrant and active ground plane.

View from the SW Corridor
View looking into a courtyard

Transects + Section // The transects demonstrate some of the many combinations that can be created by mixing various housing typologies, courtyard infill strategies, and corner retail/community programs. Units are accessed off of the courtyard facing facade to generate activity within the courtyard spaces and create a sense of community between residents. In the site section the series of public street to shared courtyard, to private residences is revealed.

Equitable Zoning by Design

Northeastern University Grant Project

January 2024 - January 2025

Equitable Zoning by Design is a report on zoning for multifamily housing in New England. The small team was made up of Tim Love (Utile/Northeastern University), Sam Naylor (Utile/Joint Center for Housing Studies), and Amy Dain (Dain Research), and myself. We worked in collaboration with the municipalities of Canton, Framingham and Ipswich to develop tools and strategies for re-zoning in response to the MBTA Communities Law.

The final report summarizes the full range of issues that were considered and includes several suggested design-based zoning tools that are different in scope and ideological intent than the more comprehensive form-based template that was used in Somerville, MA and several other communities in New England. Our toolkit establishes the size and shape of buildings by prescribing the maximum building footprint, maximum number of stories, and optional solutions for the roof form, including fewer design standards, thus allowing for more design freedom. The reduction in design standards also means that the code is easier for municipalities to use and enforce.

Throughout the project, we met with planning boards and presented at public meetings, sharing our work with the municipalities. We utilized eye-level perspective test-fits to demonstrate the differences between existing zoning and proposed zoning tools on sites which we identified through extensively mapping and studying different districts.

Diagrams + Maps // Below is a map which was included in the report to show the history of exclusionary zoning in the Metropolitan Boston area as of 2023, showing zones which allow multi-family zoning by-right (blue) versus by special permit (yellow) only. The diagrams on the right were used in the report to represent the design-based zoning tools which were developed by the team as a part of the zoning toolkit.

Thesis Studio // Fall 2024 - Spring 2025 (In progress)

This project represents the research half of a thesis which investigates the seemingly spontaneous creation of land around the edges of the Shawmut Peninsula and it’s subsequent financialization. Specifically, by researching the many fill projects in Boston, I sought to unpack the funding strategies and ideological goals that caused the large scale creation of land. My research primarily involved Back Bay as a “golden-spike” of land making for speculative development.

Toward the end of the fall-semester, I began developing schemes to improve existing, rather than creating, cityowned land. After experimenting with different formats, I decided that a game was the most productive way to share my findings, and highlight the level of abstraction in our representation of land today. By flattening natural landscapes and representing them simply as rectangles, we are erasing natural edges, prioritizing profitability and uniformity over transformation and ambiguity.

The scheme I devised leverages the value of city-owned vacant parcels, the assets which they retain in their portfolio (acquired primarily through eminent domain or foreclosures), in order to improve other vacant parcels which are adjacent. The scheme entails the City strategically selling off some sites for profit, and then using that money to make improvements to other nearby parcels that they also own.

Fill Research // The studio began with a research phase, during which I worked on understanding the expansion of the edges of the Shawmut Peninsula, and the justifications for each project. Back Bay, a speculatively built project, relied on selling “parcels” - pieces of marshland - to developers or prospective homeowners, and then using this money to fill the streets, and parcels to a certain height as outlined in the deed. The Commonwealth of Massachusetts owned a significant portion of this area of the marsh, and used this process to generate a significant amount of profit.

Original Land (1630)

1700-1810

1811-1830

1831-1850

1851-1870

1871-1890

1891-1910

1911-1930

1931-1950

1951-1970 1971-1995

The Game // Inspired by the speculative land-making project of Back Bay, which was branded as a means to improve the quality of surrounding areas by eliminating the sewage filled cesspool that had been created by damming the marsh, I endeavored to create a process by which the city could use it’s vacant landholdings to improve a neighborhood overall. This process, rather than trying to de-commodify land, emphasizes it’s financial value, and leverages it for “public good”.

Plan

Plan

Improving the first parcel

Inventory of City Owned Parcels

Improving the first parcel

Inventory of City Owned Parcels

of City Owned Parcels

of the first parcel

Improving more parcels

of first parcel

of the first parcel

Improving more parcels

of first parcel

of first parcel

of City Owned Parcels

Cash

of first parcel

of first parcel

Costs of improving more parcels

of first parcel

Cost of improving the first parcel

Liquid Cash

Cost of improving the first parcel

Costs of improving more parcels

of more parcels

“Value”
Liquid
“Value”

Walk-Up Housing

Studio III // Spring 2021

This walk-up housing project is designed to accommodate graduate-level students who attend Northeastern University, which does not currently offer housing options on campus for graduate students. The walk-up housing module was designed first as a singular piece, and then aggregated on the site.

The module is designed with a “rift” along the East-West axis, taking advantage of the existing alley-level public ways which are typical of Boston neighborhoods. As seen in the ground floor plan, the plan carefully mediates the transition between the public road, sidewalk, and the private space of the units. The lobby - shown in white - extends closest to the sidewalk, while the units themselves are set-back behind a layer of landscape and patio. On the upper-levels, many of the units span across the rift, allowing the sleeping spaces and living spaces to be on different levels. Each module accommodates seven units, ranging from two to five bedrooms, responding to the varied preferences and needs of graduate-level students. Each unit is also equipped with an outdoor space, which is either a balcony or small yard and patio for apartments on the ground floor.

The site is located within Northeastern’s campus, on what is currently a faculty parking lot between undergraduate housing and the typical “alphabet-city” walk up housing fabric of the Fenway neighborhood. To mediate this difference, the Southern edge of the site is left open, creating a shared open-space for both graduate and undergraduate students.

Type 1

2 units/module

2 bedrooms

1 bathroom

750 sf

Type 2

3 units/module

3 bedrooms

1.5 bathrooms

1040 sf

Type 3

2 units/module

5 bedrooms

2 bathrooms

1530 sf

Decontextualized Mapping

Personal Project

October 2023 - October 2024

How long does it take for the map of Boston to appear if I map and compile my daily paths? How can I force myself to look up from my phone while I walk around and take note of my surroundings? These were the questions I sought to answer when I began mapping my every move last Fall. What started as an investigation became a somewhat obsessive practice of tracing and retracing the arteries of the city.

In my mapping, I separated walking from other modes of transport, using red-lines for paths that were not traveled on-foot. By stacking these maps, the City emerges out of the abstract lines of daily wanderings. This practice encouraged me to walk routes that were not necessarily the most direct, in order to trace a new path and add it to the map.

Diagrams // The charts below show these maps as isolated stacks of weeks, as well as stacked up. Even looking at a week of walks at a time, the city is not apparent, only by stacking them up does the city fabric start to emerge.

Turn static files into dynamic content formats.

Create a flipbook
Issuu converts static files into: digital portfolios, online yearbooks, online catalogs, digital photo albums and more. Sign up and create your flipbook.
Camille Wimpe Portfolio 2025 by CamilleWimpe - Issuu