Portfolio Camille Husson

Page 1


PORTFOLIO

Camille Husson

EXPÉRIENCES

Avril - Novembre 2024

Chargée d’études, Gastel Paysages, Bordeaux

Février - Juin 2023

Stage de master en architecture, MoonwalkLocal, Bordeaux

Janvier - Février 2021

Stage de licence en architecture, A-traits

architecture et design graphique, Bordeaux

Février 2019

Stage ouvrier, L’atelier Hand-Made, ébénisterie, Bordeaux

Mars 2018

Soirée de Bonté, Exposition Musée de la chasse et de la nature, Paris

Octobre 2017

Workshop en partenariat avec Dremel 3D, Paris

Juin 2017

Stage en architecture, Atelier d’architecture

Lionel Colson, Paris

FORMATION

2021-2024

Master en architecture

École nationale supérieure d’architecture et de paysage de Bordeaux

2022

Erasmus en architecture

National Technical University of Athens (NTUA), Athènes, Grèce

2018-2021

Licence en architecture

École nationale supérieure d’architecture et de paysage de Bordeaux

2016-2018

Bachelor/ BTS Design d’espace

École de Condé Paris

2015-2016

Mise à niveau en arts appliqués (MANAA)

École de Condé Paris

COMPÉTENCES

Photoshop

InDesign

Illustrator

ArchiCad

Sketchup

Autocad

PowerCADD

ArtLantis

Twinmotion

Vectorworks

SOMMAIRE

02 01 03 04 05 06

Athènes Bordeaux Castets-en-Dorthe Oloron Sainte Marie Marcheprime Croquis

01

Bordeaux

Ce projet situé dans le quartier Victoire-Capucins aborde deux thématiques : la lutte contre la précarité étudiante et le réemploi comme une des solutions envisagées dans un tiers-lieu alternatif conçu pour les étudiants. Le but étant de créer un vrai repère physique au sein de la ville.

Ce lieu favoriserait le lien social, l’échange, le partage des savoirs-faire et renforcerait le faire ensemble. Ainsi cela permettrait de sensibiliser les usagers au réemploi et à l’upcycling afin de diminuer leur empreinte écologique.

Cette proposition naît de la réhabilitation d’un ancien garage propice à l’accueil de ce type de programme tant par sa dimension architecturale que par son emplacement.

Coupe centrale
Coupe café, épicerie solidaire, exposition mobilier

02 Athènes

Le projet s’installe en face du marché Varvakios situé en plein coeur d’Athènes.

Le but était de recréer un espace piéton dans une ville où la voiture domine.

Une succession de strates permet de jouer avec le dénivelé naturel de la ville et ainsi offir des espaces pour s’installer, se poser, rencontrer, jouer, skater mais aussi tout simplement traverser de manière plus ou moins rapide.

Les strates se suffisent à elles mêmes pour accueillir des fonctions. Un jeu de texture sur la matière a été définit sur les 3 espaces afin d’accentuer les possibilités d’appropriations de l’espace.

Coupe halle de marché Varvakios

Coupe place du marché

Castets-en-Dorthe

Le pont habité. Situé à Castets en Dorthe , qui est un site particulièrement touché par les crues, c’est un projet qui mèle l’art l’architecture et le paysage, qui montre que l’on peut autant franchir l’espace que vivre l’espace et l’habiter simultanément.

Le projet se divise en différentes séquences suivant l’avancée sur le pont: Traversée de l’eau, rencontre avec la fôret, et surplomb de la Garonne.

La maille du pont se renforce ou s’adoucit en fonction de la position.

Façade partie porte à faux
Façade dans les arbres
Façade traversée du canal

Différentes temporalités/ Différentes manières d’habiter

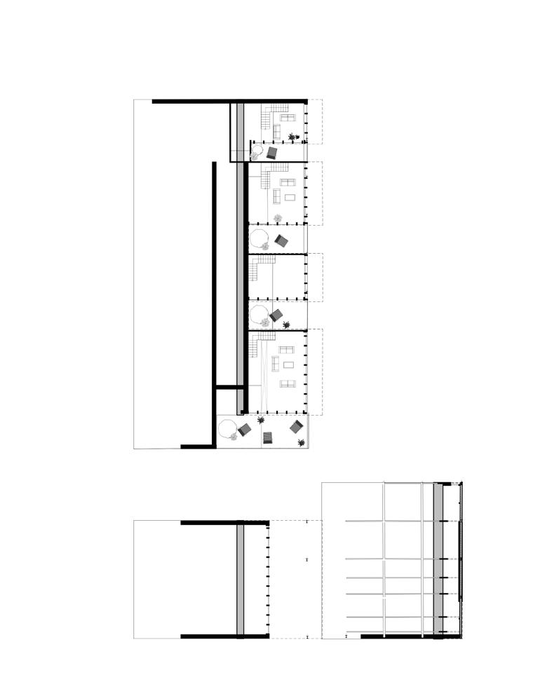
Ce projet intitulé Trois fois Sept s’installe sur l’ancienne zone industrielle dans le quartier Laulhère d’Oloron Sainte Marie.

C’est un projet de 20 logements individuels qui s’articulent tous sur une trame de 7m par 7m. Les logements sont conçus en hauteur pour offir des vues sur la ville et le gave d’Oloron. L’insertion du végétal dans le projet était primordial pour permettre une reconnexion de cet ancien espace industriel avec la nature.

Coupe
Plan masse

Insertion masse avec l’environnement

Insertion projet sur site - maquette

Marcheprime

Revitalisation de la ville de Marcheprime dans les Landes, une ville en évolution urbaine grâce à son emplacement entre Bordeaux et Arcachon.

Un projet qui met en avant l’implantation de nouveaux logements collectifs, la création d’une halle de marché avec un nouvel espace public central, mais aussi de nouveaux commerces et un studio de danse et de création. Cette nouvelle centralité vient créer une identité nouvelle à la ville.

Façade projet - Halle de marché et logements

R+1
R+2
Façades logements, studio danse
Plans

Détail gestion des eaux de pluie

Coupe halle de marché
Coupe halle de marché
Détail fondation halle
Rue du loup - Bordeaux
Eglise Saint Sulpice- Paris
Porto- Croquis 3 minutes
St michel - Bordeaux

Turn static files into dynamic content formats.

Create a flipbook
Issuu converts static files into: digital portfolios, online yearbooks, online catalogs, digital photo albums and more. Sign up and create your flipbook.