PORTIFOLIO 2022

Page 1

ARQUITETURA E URBANISMO I 2022 CAMILA CORTICEIRO CANHÃO P O R T I F Ó L I O

SUMÁRIO pag. 05 REFUGIO ILHA Cayo Peraza, Chirchiriviche 01 02 pag. 13 EDIFÍCIO LUPÉRCIO São Caetano, São Paulo CASA GB São Caetano, São Paulo 03 pag. 19 RENDERS de interiores 04 pag. 34

01

REFUGIO ILHA Cayo Peraza, Chirchiriviche Refugio projetado para abrigar duas pessoas, com medidas minimas e modulo hidraulico (banheiro, cozinha e área de serviço), projetado somente com móveis básicos e necessários. Modulado com placas CLT de 1 em 1 metro, com aberturas feitas com tela, brises e portas. Dividido em quatro famílias de espaço: área de serviço (áreas molhadas), área social (sala), área intima (quarto) e um pequeno hall de entrada, todos interligados entre si, também foi projetado uma varanda para atividades externas. ano: 2020 autores: Camila Corticeiro Canhão disciplina: Projeto I softwares utilizados: AutoCad informações sobre o projeto: 05

06

Implantado na ilha de Cayo Peraza, no arquipelago de Chirchiriviche Venezuela uma ilha tropical e desabitada. IMPLANTAÇÃO 07

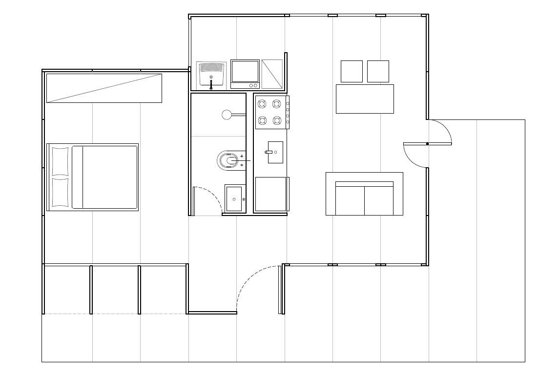
PLANTA BAIXA 08

VISTA 01 ELEVAÇÃO FACHADA 4 . 0 0 3 . 5 0 0 . 5 0 VISTAS VISTA 02 ELEVAÇÃO POSTERIOR 09 3 . 0 0

VISTA 03 ELEVAÇÃO LATERAL DIREITA VISTA 04 ELEVAÇÃO LATERAL ESQUERDA 10

MAQUETE 11

12

02

EDIFÍCIO LUPÉRCIO São Caetano, São Paulo ano: 2021 autores: Camila Corticeiro Canhão disciplina: Projeto III softwares utilizados: SketchUp, AutoCad, SketchUp Layout e Photoshop. informações O Edifício Lupércio consiste em um prédio público híbrido implantado em uma praça na divisa de São Caetano com Santo André. Em seu programa de necessidades inclui um fablab, biblioteca, sala de wifi, oficinas, cafeteria e as partes administrativas para o funcionamento do prédio. Foi projetado de forma que seguisse a topografia do terreno e também que os acessos ao prédio combinassem com os patamares das escadas. Sua forma consiste em um hall central e as outras funções ligadas a ele, que causa integração e transparência. sobre o projeto: 13

SANITÁRIO HALL CAFÉ WIFI BIBLIOTECA ADM SANITÁRIOS DEPÓSITO VESTIÁRIO SANITÁRIO SALA DE AULA SALA DE AULA FAB LAB PROGRAMA E FLUXOGRAMA

IMPLANTAÇÃO 15

PLANTA BAIXA 1º PAVIMENTO PLANTA BAIXA 2º PAVIMENTO PLANTA BAIXA 3º PAVIMENTO 1 4 2 3 1 2 3 4 5 6 7 8 9 10 11 5 6 7 8 9 10 11 12 13 14 15 12 13 14 15 CAFETERIA COZINHA CAFETERIA DEPÓSITO CAFETERIA SANITÁRIOS HALL E RECEPÇÃO BIBLIOTECA E SALA DE WIFI SANITÁRIOS ADMINISTRAÇÃO SANITÁRIOS E VESTUARIO ADMINISTRAÇÃO DEPÓSITO ADMINISTRAÇÃO ACESSO EXTERNO ADMINISTRAÇÃO SALA DE AULA/ OFICINA 1 SALA DE AULA/ OFICINA 2 FABLAB ÁREA DE CONVIVÊNCIA LEGENDA: LEGENDA: LEGENDA: 16

PERSPECTIVA 01

FACHADA PRINCIPAL PERSPECTIVA 02 PRINCIPAL

A Casa Ewbank Galiasso é uma residência unifamiliar localizada na Avenida Libero Badaró, no Jardim São Caetano, projetada par abrigar um casal e três filhos. A família costuma receber visitas frequentemente, pois Giovanna é youtuber e influenciadora digital e possui um estúdio em sua casa para gravar os vídeos. O partido do projeto foi conectar o exterior com o interior, criando diversas aberturas com paineis de vidro e portas de correr, já que a família é bastante ligada a natureza, criando espaços com paisagismo e respeitando também os desníveis do terreno. sobre o projeto: 19

informações

03

CASA GB São Caetano, São Paulo ano: 2022 autores: Camila Corticeiro Canhão disciplina: Projeto V softwares utilizados: SketchUp, AutoCad, e Photoshop.

PROGRAMA 5 SUÍTES ESTÚDIO SALA DE ESTAR SALA DE TV SALA DE JANTAR COZINHA ARÉA DE SERVIÇO 2ºPAVIMENTO SOCIAL INTIMO SOCIAL SERVIÇOS LAZER 1ºPAVIMENTO USOS ESCRITÓRIO BIBLIOTECA ACADEMIA DEPÓSITO ÁREA DE LAZER HORTA

21 IMPLANTAÇÃO RECÚOS: FRONTAL 5,00 M LATERAL 1,60 M POSTERIOR 2,00 M

22 PLANTAS BAIXA TÉRREO

23 1º PAVIMENTO

24 2º PAVIMENTO

020 B DA C 2.75 0.27 2.60 0.35 2.30 0.40 DET01 DET02 MANTA PLA FO VIST P A R E D E LAJE CAMAD DET.0 LAJ ESCALA1:20 P A R E D E DET.02 CONEXÃOENTREVIGA ESCALA1:20 CONECTOR METÁLICO PARAFUSO CORTES

26 020 2.75 0.27 2.60 0.35 2.30 0.40 6 5 4 3 2 1 DET03 DET.03 JANELA ESCALA1:20 PORTA FIXA PORTADE CORRER ESQUADRIA EMALUMINIO VIDRO LARGURADA PORTA=1,30M DETALHAMENTO

27 DETALHE FACHADA PEDRANATURAL FORMICADE MADEIRA CIMENTOQUEIMADO TINTAPRETA VIDRO BAMBU MATERIAISFACHADA FACHADA

LAJEPAINELTRELIÇADO MACIÇOUNIDIRECIONAL LAJEIMPERMEAVEL VIDRO BRISEEMBAMBU VIDRO ESQUADRIAS EMALUMINIO GUARDACORPO VIGAI CONECTORDAVIGAI PISOEMCONCRETO LAJE+CAMADAREGULARIZAÇÃO +COLA+PISOVINILICOMADEIRA FORROLAMBRIMADEIRA

ARMADURA METÁLICA ACABAMENTOEM CONCRETO CONEXÃODAARMADURA CMETÁLICACOMAVIGA ORRIMÃOEM ALUMINIO ESCADA

0.18 025 110 2.E+P=64CM 2.0,18+P=64CM P=0,25CM VÃODE3METROS 3METROS/0,18=16DEGRAUS

PERSPECTIVAS EXTERNAS

33 PERSPECTIVAS INTERNAS

33

RENDERS DE INTERIORES04 Quartos Quarto 01 autores: Camila Corticeiro Canhão softwares utilizados: SketchUp, V-ray e Photoshop informações 34

Quarto 02 - cena 1 Quarto 02 cena 2 modelagem: Daniel Ong softwares utilizados: SketchUp, V-ray e Photoshop informações 35

Obrigada, CAMILA C. CANHÃO camilaccanhao@gmail com (11) 95381 4541

Turn static files into dynamic content formats.

Create a flipbook
Issuu converts static files into: digital portfolios, online yearbooks, online catalogs, digital photo albums and more. Sign up and create your flipbook.
PORTIFOLIO 2022 by Camila Cnhao - Issuu