PORTAFOLIO_BERMÚDEZ

Page 1


P O R T A F O L I O

Bachiller de la carrera de Arquitectura y Urbanismo de la Universidad Privada del Norte (UPN). Me considero una persona creativa, responsable, proactiva y perfeccionista en los trabajos que realizo, sé trabajar en equipo como individualmente y estoy preparada para cualquier reto que se me presente en el camino.

Siempre he pensado que uno está en constante aprendizaje, y es algo que me gusta, seguir alimentando mis conocimientos en diversas áreas.

BERMÚDEZ HILARIO CAMILA LUCÍA

24 años

CONTACTO

Correo

camberhi.03@gmail.com cambermudez.03@gmail.com

Celular +51 999984150

Distrito Pueblo Libre, Lima

HABILIDADES

Representación gráfica 2D

Representación 3D

Renderización

Diseño de mobiliarios

Diseño de espacios

Creatividad

FORMACIÓN PROFESIONAL

2017 - 2023 Universidad Privada del Norte (UPN)

Carrera de Arquitectura y Urbanismo

CURSOS Y CAPACITACIONES

RED Arquitectura y Diseño

2022 Archicad BIM

Diseño Gráfico para Arquitectura

Diseño de Muebles en Melamine

2023 Remodelación y supervisión de obras interiores

Revit Arquitectura

Revit Estructuras

SENCICO

2024 Metrados en edificaciones

EXPERIENCIA LABORAL

Abr 2024- Ref: Arq. Joyce Silva Cubillas C.A.P. 4811

Jul 2024

Asistente de Arquitectura

“Hospital Nacional Arzobispo Loayza” - Cercado de Lima

“Escuela de Educación Superior Técnica Profesional de la PNP Sede Iquitos” - Loreto

● Levantamiento físico de edificaciones

● Elaboración de planos de ubicación, planos arquitectónicos con su respectiva memoria descriptiva

Nov 2023 - Ref: Arq. Rafael Lucas Bardales C.A.P. 25105

May 2024

Asistente de Arquitectura

“Proyecto diseño de vivienda multiusos de 5 pisos - Bocanegra, Callao”

“Proyecto de diseño de vivienda bifamiliar + comercio de 4 pisos - Carabayllo”

● Apoyo en la elaboración de planos de arquitectura y especialidades

● Elaboración de modelado 3D y vistas 3D (Renders)

● Apoyo en la elaboración de expediente técnico

Oct 2023 FC Inversiones y Maquinarias S.A.C

Auxiliar de “Edificio Calle 9 - II Corpac, San Isidro”

Arquitectura

● Elaboración de modelado 3D, vistas 3D (Renders), recorridos virtuales y videos promocionales de los departamentos.

● Levantamiento y elaboración de planos de obras provisionales.

● Apoyo en cumplimiento de ATS y permisos de seguridad en obra.

Ago 2021 - GM Ingenieros y consultores SAC

Nov 2021 “Área técnica de proyectos”

Prácticas pre profesionales

Proyecto “Estudio definitivo para la rehabilitación y mejoramiento de la carretera emp. ruta an 111huamanin - progreso - porque - llata - cochapata (túnel taytamyo) - nuevas flores - quivilla - tingo chico”.

Proyecto “Estudio definitivo para la construcción y mejoramiento de la vía de evitamiento de Huancayo”

● Elaboración de expedientes técnicos, planos de ubicación, planos perimétricos, planos de distribución (afectación) y planos de elevación.

2023 - 2024

Independiente de Arquitectura

● Servicios de planos de arquitectura, cortes, elevaciones, planos a detalles, modelado 3D, renderizado, recorridos virtuales, asimismo, asesoría a estudiantes.

IDIOMAS

INGLÉS - Básico

LOGROS Y/O RECONOCIMIENTOS

2019 Expomaqueta

2020 - 2023 EstudianteTercioSuperior 2023 Expomaqueta

CONOCIMIENTOS INFORMÁTICOS

MicrosoftOffice

(Word,PowerPoint,Excel)- Avanzado Photoshop - Intermedio

Autocad - Avanzado Enscape - Avanzado

Sketchup - Avanzado Lumion - Avanzado

Archicad - Intermedio Revit - Básico

PLANIMETRÍA Y VISUALIZACIÓN 3D(SERVICIO INDEPENDIENTE)

01 02 03 ARQUITECTURA E INTERIORISMOPLANIMETRÍA Y VISTAS 3D

OTROS PROYECTOSPROYECTOS

ACADÉMICOS

ARQUITECTURA E INTERIORISMO - PLANIMETRÍA Y VISTAS 3D

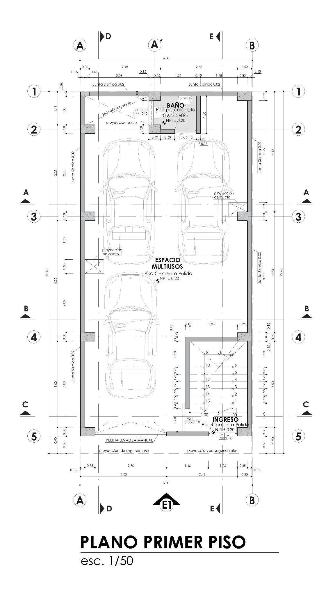
Proyecto diseño de vivienda multiusos de 5 pisos - Bocanegra, Callao

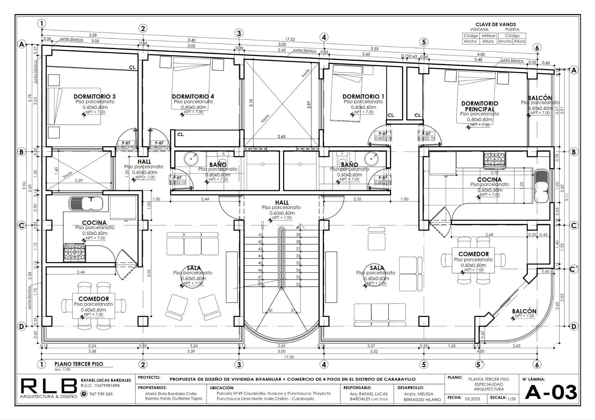
Proyecto de diseño de vivienda bifamiliar + comercio de 4 pisos - Carabayllo

en Autocad

PRIMER PISO
SEGUNDO PISO Planimetría
Modelado en Sketchup y renderizado en Lumion

en Sketchup y renderizado en Lumion / Isometrías en Enscape

Modelado
Proyecto diseño de vivienda multiusos de 5 pisos
Bocanegra, Callao
CORTE
PLANO DE TECHOS
Planimetría en Autocad

Proyecto de diseño de vivienda bifamiliar + comercio

Proyecto de diseño de vivienda bifamiliar + comercio de 4 pisos Carabayllo

Proyecto de diseño de vivienda bifamiliar + comercio de 4 pisos

Proyecto de diseño de vivienda bifamiliar + comercio de 4 pisos

Carabayllo
Modelado en Sketchup y renderizado en Enscape

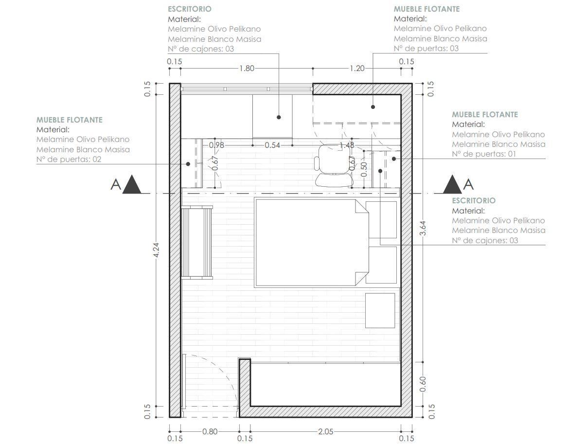
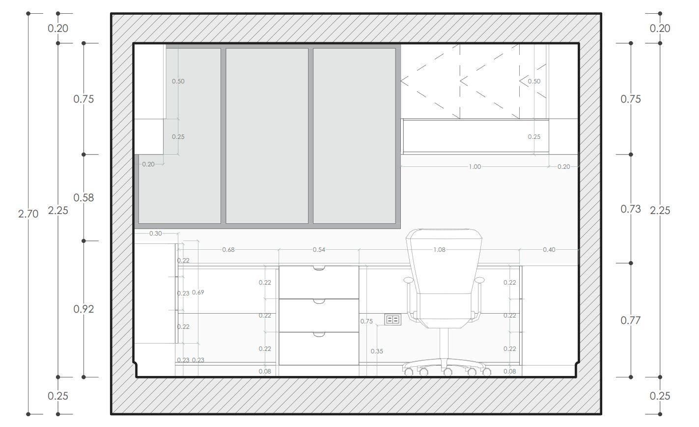
PROPUESTA DE REMODELACIÓN DE DORMITORIO

Usuario:Jovende25años

Lapropuestadediseñoesserhomeoffice,esporelloquese

planteó un escritorio equipado para el uso de trabajo y un tocador para el uso personal del usuario. Los materiales propuestos son melamine blanco masisa de 18 mm, y melamineolivopelikanode18mm.

02

PLANIMETRÍA Y VISUALIZACIÓN 3D - (SERVICIO INDEPENDIENTE)

Servicio de Modelado y Renderizado (Vistas 3D) para empresas

Servicio de Modelado y Renderizado (Vistas 3D) académicas

Modelado en Sketchup y renderizado en Lumion

Servicio de Modelado y Renderizado (Vistas 3D) para

Modelado en Sketchup y renderizado en Enscape

Servicio de Modelado y Renderizado (Vistas

Modelado en Sketchup y renderizado en Lumion

Servicio de Modelado y Renderizado (Vistas 3D) para empresas

Modelado en Archicad y renderizado en Enscape

Servicio de Modelado y Renderizado (Vistas

Modelado en Archicad y renderizado en Lumion y Enscape

Servicio de Modelado y Renderizado

OTROS PROYECTOS - PROYECTOS ACADÉMICOS

“CENTRO DE ATENCIÓN INTEGRAL ESPECIALIZADA PARA ADULTOS CON DIABETES Y COMPLICACIONES CRÓNICAS APLICANDO CRITERIOS DE LA ARQUITECTURA BIOFILICA

ENELDISTRITODELCALLAO, 2023”

La propuesta de diseño de este centro de salud fue aplicar los criterios de la arquitectura biofilica, debido que, los centros de salud en el Perú no se enfocan en la parte humana que se necesita para que los pacientes puedan mejorar, sean internados o no, el paciente como los familiares merecen calidad de infraestructura para su pronta recuperación. La arquitectura biofilica trata de eso, combinar el humano con la naturaleza, es por ello, que se uso vegetación en todo el establecimiento, asimismo, se aplicó la materialidad que haga recordar a lo natural comolamadera.

Turn static files into dynamic content formats.

Create a flipbook
Issuu converts static files into: digital portfolios, online yearbooks, online catalogs, digital photo albums and more. Sign up and create your flipbook.