Interior Design Portfolio

Page 1

INTERIOR DESIGN

RESIDENTIAL & WORKPLACE

2021/ 2023 SELECTED WORK

DESIGN PORTFOLIO

LEAMAN
CAITY
LEAMAN PORTFOLIO
CAITY

INDEX

INTERIOR DESIGN RESIDENTIAL & WORKPLACE

01 /AALTO

02 /RPS

03 /VERTICAL VILLAGE

04 /CASUARINA RESIDENCES

05 /BNE WORKPLACE

06 / RENDU TOWERS

CAITY LEAMAN PORTFOLIO

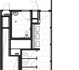
AALTO

MULTI-RESIDENTIAL/01

Aalto’s interiors echo the sculptural architectural language reference the ‘long-shore drift’. This tidal movement that shapes the coastline of Surfers Paradise has sculpted the interior language and joinery elements. Composed of finishes inspired by the coastal environment, the refined interior palette forges a sophisticated luxury residential offering that embraces the identity of the tower’s surroundings.

PROJECT SPECIFICATION

CLIENT

KEY ROLES:

- Developing Public Spaces

- Developing key joinery pieces in Typical apartment offering

- Producing conceptual & schematic renders

- Material boards

CAITY LEAMAN PORTFOLIO
WEIYA HOLDINGS 75-79 GARFIELD TERRACE SURFERS PARADISE CONCEPT & SCHEMATIC
LOCATION PROJECT PHASES
DESIGN
LEAMAN PORTFOLIO
CAITY

/01

CAITY LEAMAN PORTFOLIO
BY OTHERS
*RENDERS

CAITY LEAMAN PORTFOLIO

TYPICAL APARTMENT OFFERING

*RENDERS BY OTHERS

PORTFOLIO
CAITY LEAMAN

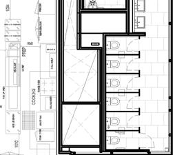
PUBLIC SPACES - GYM & CLUB AALTO

CAITY LEAMAN PORTFOLIO
/01
PROJECT
-
administration KEY ROLES: CLIENT LOCATION PROJECT PHASES RPS 31 DUNCAN CONCEPT CAITY LEAMAN PORTFOLIO
- Developing floorplan - Producing schematic - Producing tender
Construction

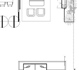
RPS WORKPLACE

COMMERCIAL WORKPLACE

/02

Inspired by Fish Lane; the work of RPS Landscape Architects, RPS’ newest office is rich with Brisbane’s identity, RPS’s iconic plumb and biophillia. This workplace is product of true collaboration and honest integration of staff needs. Within the unique setting of Chinatown Mall, this workplace takes on a hospitality persona in the front of house spaces, providing clients and staff with a meaningful and noteworthy experience.

schematic renders and report material tender and construction documentation administration and site meetings

floorplan
DUNCAN ST CONCEPT TO CONSTRUCTION IDEA & CONCEPT CAITY LEAMAN PORTFOLIO

CAITY LEAMAN PORTFOLIO

4 5 0 6 5 0 1 1 0 0 AMPHITHEATRE STYLE SEATING PLANTER WALL T LED BENCH SEATING CUSHION TILED PLANTER TLW1 TLW1 TLW1 TLW1 TLW1 TLW1 TLW1 LIGHTING ON FRONT FACE OF JOINERY - REFER ELECTRICAL DRAWINGS FOR SPEC FICATION FINAL LOCAT ON TO BE CONFIRMED ON S TE TLW1 6 5 2 1 0 2 0 0 2 4 0 FBR2 TLW1 TLW1 TLW1 REMOVABLE 65mm HIGH MARINE GRADE H GH DENS TY FOAM NSERTS - CONCEALED ZIPS TO MATCH FABR C 1 20 A J02 - ELEVATION 2 1 20 B J02 - ELEVATION 3 4 5 0 6 5 0 1 1 0 0 AMPHITHEATRE STYLE SEATING PLANTER WALL TILED BENCH SEAT NG CUSHION TILED PLANTER TLW1 TLW1 TLW1 TLW1 TLW1 TLW1 TLW1 LIGHTING ON FRONT FACE OF JOINERY - REFER ELECTRICAL DRAWINGS FOR SPECIFICAT ON F NAL LOCATION TO BE CONFIRMED ON SITE TLW1 6 5 2 1 0 2 0 0 2 4 0 FBR2 TLW1 TLW1 TLW1 4 5 0 2 0 0 2 1 0 6 5 VOID REMOVABLE 65mm H GH MARINE GRADE HIGH DENS TY FOAM NSERTS: - CONCEALED ZIPS TO MATCH FABRIC - STITCH NG TO MATCH FABR C - SIZES VARY - TBC S ZE CUSH ON SEAT BACK HEAVY DUTY VELCROED TO SUPPORT 1 5 15mm BLACK PA NTED SHADOWLINE STRUCTURE AS REQUIRED VOID VO D / PLANTER 5 0 5 0 3 7502 50MM SHADOWLINE 3 7503 F NGERPULL DOORS FRONT N SPEC FIED FINISH 30 450 P L A N T E R 4 0 0 4 5 0 4 5 0 2 0 0 LOOSE CUSH ONS TO RECEPT ON SIDE - CORDED BOX STYLE - FBR2 - 80mm HIGH - MARINE GRADE H GH DENS TY FOAM NSERTS - CONCEALED Z PS TO MATCH FABR C - ST TCHING TO MATCH FABRIC - S ZES VARY - TBC SIZE 15mm BLACK PAINTED SHADOWL NE VOID VO D 1 : 20 A J02 - ELEVATION 2 1 : 20 B J02 - ELEVATION 3 1 : 20 C J02 - SECTION 1 1 20 D J02 - SECTION 2 AMPH THEATRE STYLE SEATING PLANTER CUSH ON TILED PLANTER TLW1 TLW1 TLW1 TLW1 TLW1 TLW1 TLW1 LIGHTING ON FRONT FACE OF JOINERY - REFER ELECTRICAL DRAW NGS FOR SPECIFICATION FINAL LOCATION TO BE CONFIRMED ON SITE TLW1 AMPHITHEATRE STYLE SEAT NG PLANTER FBR2 TLW1 TLW1 TLW1 7003 D RINE GRADE HIGH H FABR C R C Y RT STRUCTURE AS REQUIRED 5 0 5 0 3 7502 50MM SHADOWLINE 3 7503 FINGERPULL DOORS FRONT IN SPEC FIED FINISH 30 450 BLACK MELAMINE TO NTERNAL PLANTER WATERPROOF MEMBRANE AS REQUIRED FOR PLANTER BY OTHERS P L A N T E R 4 0 0 4 5 0 4 5 0 2 0 0 15mm BLACK PA NTED SHADOWL NE 1 7503 SIM HOR ZONTAL OVERLAP ON ALL SAL ENT CORNERS NTERNAL STRUCTURE AS REQUIRED LOOSE CUSH ONS TO RECEPTION S DE - CORDED BOX STYLE - FBR2 - 80mm HIGH - MAR NE GRADE H GH DENS TY FOAM NSERTS - CONCEALED Z PS TO MATCH FABRIC - STITCH NG TO MATCH FABRIC - S ZES VARY - TBC S ZE 15mm BLACK PA NTED SHADOWL NE VOID VO D VOID VO D PLANTER 1 20 D J02 - SECTION 2
MATERIAL PALETTE

PROJECT PHOTOS

/02 LIGHTING ON FRONT FACE OF JO NERY - REFER ELECTRICAL DRAWINGS FOR SPECIF CATION FINAL LOCATION TO BE CONFIRMED ON SITE Client Project Revis on RPS RPS BRISBANE OFFICE, L8 31 DUNCAN ST KEYNOTE LEGEND ABBREV DESCRIPTION FBR2 FABRIC (TEXTILE) TYPE & COLOUR TLW1 TILES, WALL REV DESCRIPTION Issued to DATE APP Issued For Information Client 7/07 22 CS Issued For Information Client 22/07/22 CS Issued For Information Client 15/08/22 CS Issued For Information Client 19/08/22 CS ssued For Land ord App oval Client 22/08/22 CS A Issued For Tender Client 26/08/22 CS 1 Re ssue For Construct on Client 16/11/22 CS CAITY
PORTFOLIO
LEAMAN
LEAMAN PORTFOLIO
CAITY
MATERIAL PALETTE

PROJECT PHOTOS

/02
LEAMAN PORTFOLIO
CAITY

VERTICAL VILLAGE

WORKPLACE TEST-FITS

/03

IDEA & CONCEPT

Developing commercial workplace settings within the unique 40-storey ‘Vertical Village’ of 101 Albert St; part of the Cross River Rail precinct. These workplaces take on the tropical foliage theme of the tower through the integration of winter gardens and green edges within the access floor. This ambitious design rethinks the traditional sense of agility within the workplace with demountable meeting rooms, flexible workpoints and an activity informed layout.

A C D E F B 1 DA2002 P2003 * * * * * CAITY LEAMAN PORTFOLIO

PROJECT

SPECIFICATION

CLIENT LOCATION

KEY ROLES:

- Re-developing Test-fits

- Creating diagrams & rendered floor plans

- Producing proposal report

- Workplace Metrics

1 DA2001 P2002 CAITY LEAMAN PORTFOLIO
QIC 101 ALERT ST TEST-FIT PROPOSAL
PROJECT PHASES

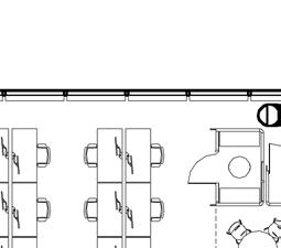
TYPICAL 3 FLOOR OFFERING

Focus Meet Connect Collaboration CAITY LEAMAN PORTFOLIO
/03

Building Stack

Level 14 - Level 16 Level 17 - Level 19 Level 20 - Level 21 Level 22 - Level 24 Level 25 - level 27 Level 28 Level 31 - Level 29 Level 32 - Level 34 Level 35 - Level 37 Level 11 - Level 13 Level 09 - Level 10 Level 06 - Level 08 Level 04 - Level 05 Lower Ground - Level 01 Level 02 Level 03 QIC - 101 Albert St Test Fits Level 14 - Level 16 Level 17 - Level 19 Level 20 - Level 21 Level 22 - Level 24 Level 25 - level 27 Level 28 Level 31 - Level 29 Level 32 - Level 34 Level 35 - Level 37 Level 11 - Level 13 Level 09 - Level 10 Level 06 - Level 08 Level 04 - Level 05 Lower Ground - Level 01 Level 02 Level 03 TYPICAL 3 FLOOR VERTICAL VILLAGE BASEMENT & EOT RETAIL - F&B LOBBY + 3RD SPACE WELLNESS + 3RD SPACE LOW-RISE PLANT LEVEL MID-RISE HIGH-RISE SKY-RISE ROOFTOP TERRACE - CONFERENCE NON-TYPICAL 2 FLOOR OFFICE
Vertical
CAITY LEAMAN PORTFOLIO
Village
BUILDING STACK BREAKDOWN

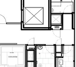
CASUARINA RESIDENCES

MULTI-RESIDENTIAL

/04

Grounded in a premium location, the interior identity explored a distinct and bold interpretation of a classic coastal place. The design language throughout the luxury residential offering celebrates expressive proportions, rhythmic language and a balance between heavy and light elements.

CAITY LEAMAN PORTFOLIO
IDEA & CONCEPT

PROJECT

CLIENT

LOCATION

PROJECT PHASES

CONCEPT, SCHEMATIC DESIGN

KEY ROLES:

- Developing the Typical Apartment offering

- Producing schematic renders

- Creating schematic design reports

d Material Boards

CAITY LEAMAN PORTFOLIO
AZURE
6 GRANDE PARADE CASUARINA BEACH

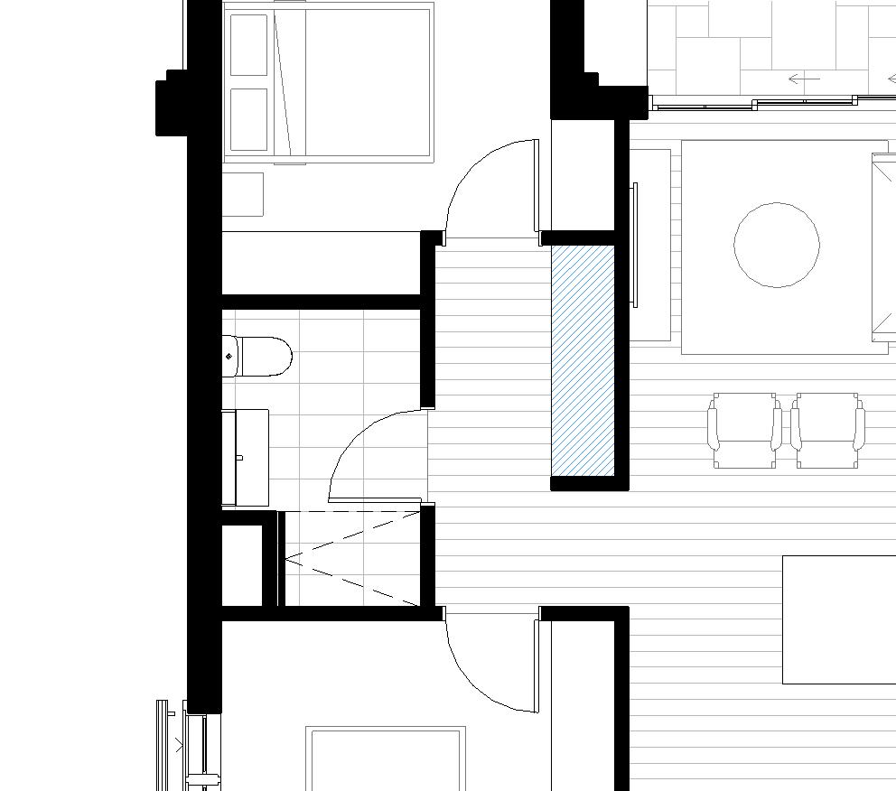
TYPICAL 3 BED APARTMENT OFFERING

LEAMAN PORTFOLIO
CAITY
/04
TYPE 03E
CAITY LEAMAN PORTFOLIO
LHD: SILVER LEVEL

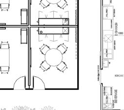
BNE WORKPLACE

COMMERCIAL

WORKPLACE/05

This Brisbane workplace for a major Bank has a conceptual direction to create a space that feels uniquely Brisbane, drawing on the local spirit and vernacular whilst celebrating the unique base building form and elements. Influenced by the spirit and identity of place, a refined palette of sustainability conscious materials has been developed. Timbers, green accents and pops of maroon from the rich Brisbane sunsets encapsulates a sophisticated design to create an authentic Brisbane experience for client.

CAITY LEAMAN PORTFOLIO

PROJECT

LOCATION

470 JUBILEE PLACE FORTITUDE VALLEY

PROJECT PHASES

CONCEPT TO DD

KEY ROLES:

- Developing floorplan

- Producing conceptual & schematic reports

- Producing documentation

- Co-ordination with consultants

CAITY LEAMAN PORTFOLIO
Drawing: Drawing no: Issue: Scale : Date: Architectus Brisbane Level 2 79 Adelaide Street Brisbane QLD 4000 brisbane@architectus.com.au CAITY LEAMAN PORTFOLIO LEVEL 13 LEVEL 12

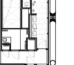
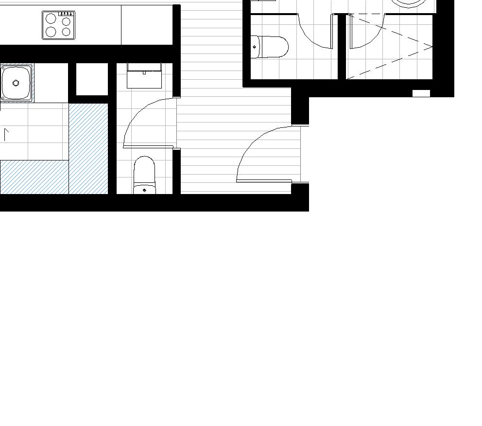
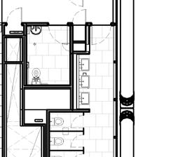
FLOOR PLANS & SPATIAL ANALYSIS

LEVEL 11

LEAMAN PORTFOLIO
CAITY
/05

QLD IDENTITY

ARTICULATED ARCHITECTURE

LEAMAN PORTFOLIO
CAITY
VALLEY GRIT

GUEST RELATIONS BUSINESS LOUNGE & KEY JOINERY

CAITY LEAMAN PORTFOLIO /05

RENDU TOWERS

MULTI-RESIDENTIAL/06

A luxury offering for retirement living in the heart of Newstead. Producing paid renders for marketing brochures issued to potential buyers for Rendu Towers’ launch event.

PROJECT

- Liaising with client - Modeling and rendering high quality images for marketing f material KEY ROLES:

CAITY LEAMAN PORTFOLIO
LOCATION PROJECT PHASES OZCARE AUSTRALIA 43 EVELYN STREET NEWSTEAD PAID IN-HOUSE RENDERS
CLIENT
LEAMAN PORTFOLIO
CAITY
LEAMAN PORTFOLIO
CAITY
CAITY LEAMAN PORTFOLIO /06

Turn static files into dynamic content formats.

Create a flipbook
Issuu converts static files into: digital portfolios, online yearbooks, online catalogs, digital photo albums and more. Sign up and create your flipbook.
Interior Design Portfolio by Caity Leaman - Issuu