PORT FOLIO

• Luis Miguel Cadillo Fernández
• Email - luismiguelcadillofernandez@gmail.com
• 954985916
• Lima - Perú
• Linkedin - https://www.linkedin.com/in/cadillo-fernandez1/
CURRICULUM VITAE
EXPERIENCIA
Enero 2023 – Abril 2023
• Práctica Preprofesional - Asistente
EDUCACIÓN
Marzo 2019 – Dicie. 2024
Constructora Integra Sac.
Universidad Privada del Norte
• Ganador de la Muestra Proyecto Urbano 2023
EDUCACIÓN COMPLEMENTARIA
Enero 2025
• Gestión de organizaciones efectivas
Diciembre 2024
• Ingles Basico A2
Noviembre 2024
Pontifica Universidad de Chile-Coursera
Universidad Privada del Norte
SemcoCad
• Revit II Modelado de Arquitectura Avanzada
Noviembre 2024 Rob Jobecson
• Renderizado y Expresión gráfica
SKILLS & INTERESTS
Tengo mayor experiencia en el uso de Autocad, Skp , Revit , V-ray Y Pshop.
• CAD - AutoCAD - Revit - SketChup - ArchiCad
• Adobe Suite - Photoshop - InDesign - Ilustrator.
• Visualisatión - V-ray - Twinmotion - Enscape
• Otros - S10 - Office en general
Academic & Competitions
• Centro Comunal Jibito
• Polideportivo 102
• Centro educativo de Inicio Superior Others
Professional - Prácticas
• 101 Huacho
• Casa Inu

PROJECT 01
CENTRO COMUNAL JIBITO
Trabajo | Académico
Proyecto: Centro Comunal en la ciudad de sullana Centro Polblado Jibito
Rol: Dibujo Técnico
Modelado 3d
Renderizado
Postproducción
El lugar fue escogido por la necesidad de desarrollo, disminuir la pobreza y ayudar en caso de desastres como inundaciones y finalmente dar a la población un segundo hogar y áreas verdes.
El proyecto se desarrolla en el corazón de Jibito, un centro poblado eN pleno desarrollo ubicado a 5 minutos de la provincia de Sullana. Con materiales de la zona y con un sistema constructivo usado por la zona.


PASO 1
Se tiene la forma rectangular de manera inicial con el cual se inicia la de unión del mismo.

PASO 2
Se forma una centralidad el cual genera espacios a su alrededor creando asi espacios de llenos y vacios.

PASO 3
Se generan “volumenes” mas pequeños los cuales serviran de patios teniendo asi un espacios que siempre tendra luz y ventilacion natural.




CORTE 1-1
Escala 1/100

CORTE 2-2
Escala 1/100
CORTE 3-3
Perspectiva Sin escala
Techo de madera sobre el sistema de vigas

Sistema de vigas de madera zonal
Sistema de ventilacion cerámicos adosados
AXONOMETRÍA
Perspectiva
Sin escala





ZONA DE JUEGOS
Entre los espacios creados se encuentra la zona de desarrollo y juegos los cuales se hicieron de materiales locales y con la cretividad local



AXONOMETRÍA SECCIÓN
Vista ortogonal
Sin escala





PROJECT 02
101 HUACHO
Trabajo | Freelance
Proyecto: Departamento 101 - Huacho
Rol: Dibujo Técnico
Modelado 3d
Renderizado
Postproducción
Ubicado en la ciudad de Huacho provincia de Huaura y departamento de Lima. Este departamento unifamiliar consta de 80 m.2 diseñada para el establecimiento de una familia unifamiliar.
Vivienda unifamiliar
Se propuso un departamento para una familia nuclear que consta de una pareja , pero con visita semi-frecuente de sus hijos. Se proyecto 3 Dormitorios : De los cuales dos son permanentes y el otro encambio,se adopto por un espacio multifuncional el cual sera usado de oficina u otra habitacionen el caso se necesite.


ISOMÉTRICO EXTERIOR
Vista ortogonal Sin escala
RENDER ITERIOR

CORTE 1-1 1/50


CORTE 2-2 1/50


RENDER INTERIOR

PROJECT 03
POLIDEPORTIVO 102
Trabajo | Académico
Proyecto: Polideportivo 102 - Lima
Rol: Modelado 3d
Renderizado
Postproducción

El polideportivo de Zárate, San Juan de Lurigancho, nace de la visión de crear un espacio que trascienda la mera funcionalidad deportiva. Este proyecto se concibe como un catalizador social, un punto de encuentro vibrante que revitaliza la comunidad y fomenta un estilo de vida activo y saludable.
Este espacio no solo promueve la práctica de diversas disciplinas deportivas, sino que también se erige como un centro de convivencia, donde los vecinos pueden fortalecer lazos, compartir experiencias y construir un sentido de pertenencia. El polideportivo de Zárate es mucho más que un recinto deportivo; es un símbolo de transformación y un legado para las futuras generaciones.”










































Independent Project























Harley-Davidson Shop Experience Competition (2016)






























































































Elevación Frontal
Escala 1/100


















Elevación Posterior
Escala 1/100




MATR Lab: Dar Al-Uloum Library Competition (2018)

















Professional Project - Top 10 Finalists




























































































Más allá de sus instalaciones de vanguardia, el polideportivo se distingue por su arquitectura innovadora, que rompe con los esquemas tradicionales. Su diseño busca generar un impacto visual y emocional, convirtiéndolo en un hito referencial para el distrito.
Render Maqueta Isométrico

Render Maqueta
Render Maqueta Posterior


PROJECT 04
CASA INU
Trabajo | Practicas Préprofesionales
Proyecto: Casa Unifamiliar - Lima
Rol: Modelado 3d
Renderizado
Postproducción
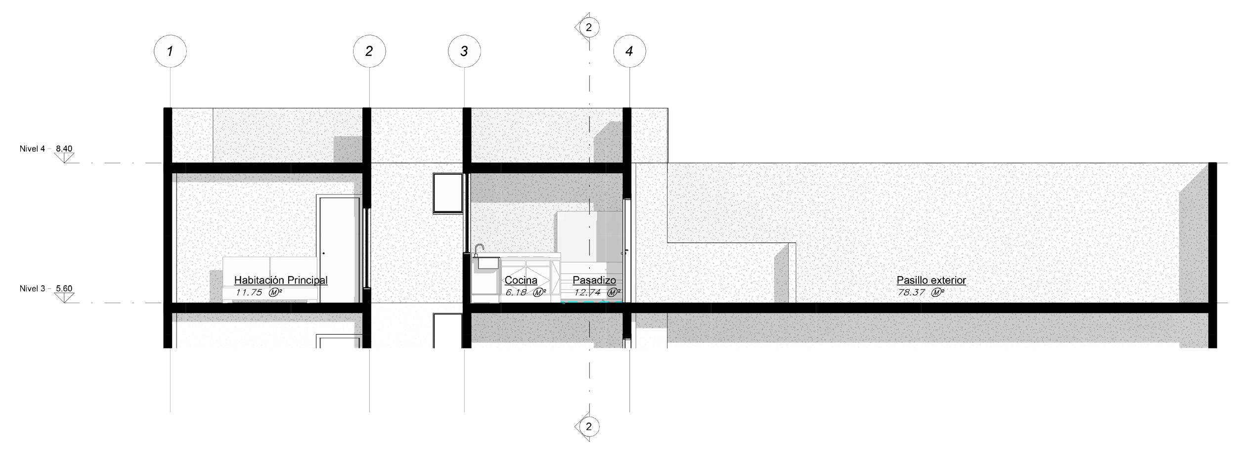
Ubicado en el distrito de Lince provincia de Lima y departamento de Lima. Esta vivienda unifamiliar consta de 3 pisos y 1 azotea diseñada para el establecimiento de una familia con los requirimientos que pidio el cliente. Vivienda unifamiliar con vivienda en primeros nivel, zona Social extra en los niveles superiores
Fachada Minimlista y monocromatica , con colores elegantes y sobrios.



Render Exterior Frontal

























































