Portfolio Arquitetura e Urbanismo_2023

Page 1

MICHELE BRITO ARQUITETURA E URBANISMO 2023
2 A é d C p F óp SC E p ç d çã t p d d DAU UDESC P O t d D A b L hm A M h St b d B 2022 2 Traba ho de Curso Trabalho de Curso 2 P inc pa s nte venções l Prog ama l P an as l Co tes Equ pamentos Tema e Problema Te r tó io A ed f cação D retr zes de ntervenção Fachada R Conse he o Maf a
3 Conteúdo Currículo Armazém do Campo em Florianópolis: Espaço de Interlocução entre Campo e Cidade [TCC] Projeto de Intervenção no Patrimônio Centro de Tecnologia e Inovação 4 6 24 32

Michele Staub de Brito

08 jan 98

Florianópolis, Santa Catarina

+55 49 999426248 be.net/michelebrto

Sobre

Sou uma profissional entusiasmada com tecnologia e movida pela curiosidade. Desde 2018, venho utilizando a ferramenta BIM (Revit) como maneira de aprimorar o processo projetual. Minha abordagem envolve colaborar ativamente em equipes diversificadas, a fim de catalisar soluções inovadoras e inclusivas.

Busco combinar meus conhecimentos para criar espaços e experiências conectados com as pessoas e as cidades.

2017 - 2023 Arquitetura e Urbanismo. Universidade do Estado de Santa Catarina

2023 Governança de Dados: Processo Paramétrico para Caminhabilidade 10h

Workshop DigitalFUTURES World

2022 DOT - Programação e Ciência de Dados para Arquitetura. 79h Responsive Cities Institute

2021 Método {CURA} Representação Arquitetônica. {CURA} Cursos

4
Formação complementar
Formação

Experiência Habilidades e Interesses

2023 Arquiteta Freelancer. RGW Arquitetura. Desenvolvimento de projetos arquitetônicos executivos para edificios residenciais.

2023 Estagiária. RGW Arquitetura. Desenvolvimento de projetos executivos de edificios residenciais.

2022 Estagiária. Couna Arquitetura. Apoio na criação de projetos arquitetônicos modulares em woodframe, levantamentos e criação de peças gráficas.

2022 Estagiária. MóduloEscritório de Cooperação Técnica da Udesc. Desenvolvimento de projeto de interiores e de fachada para a Biblioteca Central da Udesc em Florianópolis.

2021/2022 Estagiária. Prefeitura Municipal de Laguna / Fundação Lagunense de Cultura. Desenvolvimento de projetos expográficos e de comunicação visual para equipamentos culturais da cidade.

BIM (Revit)

Graficação e diagramação

Ciência de dados aplicada à Arquitetura e Urbanismo

Habilidades interpessoais

Pensamento criativo

Flexibilidade

Atenção aos detalhes

Colaboração

5

Armazém do Campo em Florianópolis: Espaço de Interlocução entre Campo e Cidade [TCC]

Armazém do Campo é uma rede de comercialização de produtos agroecológicos vinculada ao Movimento dos Trabalhadores sem Terra (MST).

O trabalho propõe transformar uma edificação histórica, sem uso desde os anos 90, em um espaço físico do Armazém em Florianópolis.

Edificação de intervençãoEdificação de intervenção

6

agroecológicos e/ou oriundos dos assentamentos e cooperativas do MST. Outro objetivo d a rede é oferecer produtos de qualidade a um preço justo – para quem consome e para quem produz (MST, 2021).

Fonte: Adaptado de <armazemdocampo.com.br> acesso 07 jun. 22.

Florianópolis está na rota de transporte entre os produtos dos Armazéns do Campo de Porto Alegre e de São Paulo, o que viabiliza o escoamento de produção pelo corredor rodoviário da BR101. A cartografia abaixo demonstra no eixo sul – Rio Grande do Sul e Paraná - a existência de uma lacuna geográfica na implantação dos Armazéns.

Recorte

7
Mapa das lojas Armazém do Campo pelo Brasil (2022) Armazém do Campo em Florianópolis/SC: Espaço de interlocução entre campo e cidade l DAU UDESC l Professor Orientador: Dr Alberto Lohmann l Aluna Michele Staub de Brito l 2022/2 Trabalho de Curso 1 l Trabalho de Curso 2 Tema e Problema l Território l A edificação l Diretrizes de intervenção Principais intervenções l Programa l Plantas l Cortes l Equipamentos mapeamento Armazéns do Campo Figura 4 – Diagrama localização pontos da rede Armazém do Campo

O bairro Centro é escolhido para a implantação do Armazém, por ser o grande centro comercial do município, e o ponto de ligação entre o Continente e a Ilha.

Mapas elaborado no QGIS a partir de database da Prefeitura Municipal de Florianópolis

8
Armazém do Campo em Florianópolis/SC Espaço de interlocução entre campo e cidade l DAU UDESC l Professor Orientador Dr Alberto Lohmann l Aluna Michele Staub de Brito l 2022/2 Trabalho de Curso 1 l Trabalho de Curso 2 Principais intervenções l Programa l Plantas l Cortes l Equipamentos Tema e Problema l Território l A edificação l Diretrizes de intervenção

A partir disso, são estabelecidos critérios para escolha do terreno/ edificação de implantação. O ponto de partida é o Plano Diretor, onde são selecionadas as zonas Área Mista Central (AMC) e Área Residencial Mista (ARM). Depois, nove pontos de interesse cultural e comercial são selecionados, e deles são demarcados raios de 200m, formando uma mancha de interesse.

A edificação escolhida está inserida em um circuito de comércio popular, onde se destacam a Feira do Largo da Alfândega, o Camelódromo Municipal e as lojas localizadas na R. Conselheiro Mafra.

9
Armazém do Campo em Florianópolis/SC Espaço de interlocução entre campo e cidade l DAU UDESC l Professor Orientador Dr Alberto Lohmann l Aluna Michele Staub de Brito l 2022/2 Trabalho de Curso 1 l Trabalho de Curso 2 Principais intervenções l Programa l Plantas l Cortes l Equipamentos Tema e Problema l Território l A edificação l Diretrizes de intervenção Armazém do Campo em Florianópolis/SC Espaço de interlocução entre campo e cidade l DAU UDESC l Professor Orientador Dr Alberto Lohmann l Aluna: Michele Staub de Brito l 2022/2 Trabalho de Curso 1 l Trabalho de Curso 2 Principais intervenções l Programa l Plantas l Cortes l Equipamentos TICEN PRAÇA XV
MERCADO PÚBLICO
'TERMINAL VELHO' LARGO DA ALFÂNDEGA Tema e Problema l Território l A edificação l Diretrizes de intervenção

Rua Saldanha Marinho

Serviços Comercial Uso público Residencial

ldanhaMarinho

RuaNunesMachado ach

adjacente ao Centro Histórico de da antiga Vila de Desterro, que se moldes expressos portuguesas de torno da praça primeira capela pela Catedral as primeiras (Casa da Câmara Governo), e as de alvenaria” CARNEIRO FILHO,

entes

estudo I inserida tombadas

RuaVictorMeirelles

AvnPauloFontes

Como exposto anteriormente, a edificação está inserida em um contexto altamente comercial e de serviços.

Por conta disso, a região possui um movimento cotidiano muito interessante aos objetivos da rede Armazém do Campo.

RuaConsMafra

RuaDeodoro

RuaFelipeSchmidt

RuaTrajano

de acordo com de Florianópolis

Rua Saldanha Marinho

Imóvel partícipe de arquitetônico, a ter seu totalmente preservado, remanejamento sua volumetria externos não sejam mantidos aqueles de excepcional arquitetônico”

AvnPauloFontes

RuaDeodoro

RuaConsMafra

RuaTrajano

RuaFelipeSchmidt

PcaXvdeNovembro

Edificação de estudo Via coletora Via peatonal

PcaXvdeNovembro

danhaMarinho

RuaNunesMachado ch

coloca que os de intervenção princípios de , legibilidade da reversibilidade.

RuaVictorMeirelles

AvnPauloFontesAvnPauloFontes

AvnPauloFontes

RuaConsMafra

PcaXvdeNovembro

AvnPauloFontes

PcaXvdeNovembro

PcaXvdeNovembro PcaXvdeNovembro

Em acordo aos requisitos de implantação, a edificação se encontra em um ponto de fácil logística para o recebimento de mercadorias.

RuaVictorMeirelles

projetada pelo escritório destaque na arquitetura

ntes

RuaDepJoaoBertoli

PcaAGomes Pca AGomes

RuaAntonioLuz

RuaJoaoPinto

RuaTiradentes

Ainda, as vias peatonais, ou seja, vias exclusivas para pedestres, contribuem para que haja um grande fluxo de pedestres

PcaXvdeNovembro uaNunesMachado uaNunesMach

AvnPauloFontes

RuaAntonioLuz

RuaJoaoPinto

As vias não marcadas não possuem classificação no sistema de geoprocessamento corporativo da Prefeitura Municipal de Florianópolis.

RuaTiradentes

RuaVictorMeirelles

11 Mapa de Usos Mapa viário Rua Saldanha Marinho RuaSaldanhaMarinho R R R uaSaldanhaMarinho
PcaXvdeNovembro PcaXvdeNovembro
PcaXvdeNovembro PcaXvdeNovembro uaNunesMachado uaNunesMach
RuaVictorMeirelles RuaFelipeSchmidt
AvnPauloFontes
RuaDepJoaoBertoli PcaXvdeNovembro PcaXvdeNovembro
PcaXvdeNovembro
RuaVictorMeirelles
RuaFelipeSchmidt AvnPauloFontes AvnPauloFontes
AvnPauloFontes
RuaAntonioLuz
RuaJoaoPinto
RuaTiradentes
RuaDeodoro PcaAGomes Pca AGomes RuaTrajano RuaTrajano Rua Saldanha Marinho
R R R uaSaldanhaMarinho
AvnPauloFontes RuaAntonioLuz
RuaConsMafra RuaConsMafra RuaConsMafra RuaTiradentes
RuaJoaoPinto
RuaDeodoro
RuaSaldanhaMarinho
Fonte: adaptado de Instagram Armazém do Campo SP
12 ém do Campo em Florianópolis/SC: Espaço de interlocução entre campo e cidade l DAU Tema e Problema l Território l A edificação l Diretrizes de intervenção Trabalho de Curso 1

Principais intervenções l Programa l Plantas l Cortes l Equipamento

U UDESC l
l Trabalho de Curso 2
Professor Orientador:
Dr. Alberto Lohmann l Aluna: Michele Staub de Brito

Trabalho de Curso 1 l Trabalho de Curso 2

Tema e Problema l Território l A edificação l Diretrizes de intervenção Principais intervenções l Programa l Plantas l Cortes l Equipamentos

interlocução

14
Armazém do Campo em Florianópolis/SC: Espaço de entre campo e cidade l DAU UDESC l Professor Orientador: Dr Alberto Lohmann l Aluna: Michele Staub de Brito l 2022/2

Trabalho de Curso 1 l Trabalho de Curso 2

Tema e Problema l Território l A edificação l Diretrizes de intervenção Principais intervenções l Programa l Plantas l Cortes l Equipamentos

Subsolo Espaço de higienização e desinfecção

Armazém do Campo em Florianópolis/SC Espaço de interlocução entre campo e cidade l DAU UDESC l Professor Orientador: Dr Alberto Lohmann l Aluna Michele Staub de Brito l 2022/2

Trabalho de Curso 1 l Trabalho de Curso 2

Tema e Problema l Território l A edificação l Diretrizes de intervenção Principais intervenções l Programa l Plantas l Cortes l Equipamentos

Subsolo Circulação

Armazém do Campo em Florianópolis/SC: Espaço de interlocução entre campo e cidade l DAU UDESC l Professor Orientador: Dr Alberto Lohmann l Aluna: Michele

15
Staub de Brito l 2022/2

Trabalho de Curso 1 l Trabalho de Curso 2

Tema e Problema l Território l A edificação l Diretrizes de intervenção Principais intervenções l Programa l Plantas l Cortes l Equipamentos

16
Armazém do Campo em Florianópolis/SC Espaço de interlocução entre campo e cidade l DAU UDESC l Professor Orientador: Dr Alberto Lohmann l Aluna Michele Staub de Brito l 2022/2

Trabalho de Curso 1 l Trabalho de Curso 2

Tema e Problema l Território l A edificação l Diretrizes de intervenção Principais intervenções l Programa l Plantas l Cortes l Equipamentos

Térreo Perspectiva Armazém 01 / Horta Vertical

Armazém do Campo em Florianópolis/SC Espaço de interlocução entre campo e cidade l DAU UDESC l Professor Orientador: Dr Alberto Lohmann l Aluna Michele Staub de Brito l 2022/2

Trabalho de Curso 1 l Trabalho de Curso 2

Tema e Problema l Território l A edificação l Diretrizes de intervenção Principais intervenções l Programa l Plantas l Cortes l Equipamentos

Térreo Perspectiva Acesso

Armazém do Campo em Florianópolis/SC: Espaço de interlocução entre campo e cidade l DAU UDESC l Professor Orientador Dr Alberto Lohmann l Aluna: Michele Staub de Brito l 2022/2

17

Trabalho de Curso 1 l Trabalho de Curso 2

Tema e Problema l Território l A edificação l Diretrizes de intervenção Principais intervenções l Programa l Plantas l Cortes l Equipamentos

18
Armazém do Campo em Florianópolis/SC: Espaço de interlocução entre campo e cidade l DAU UDESC l Professor Orientador Dr Alberto Lohmann l Aluna: Michele Staub de Brito l 2022/2

Trabalho de Curso 1 l Trabalho de Curso 2

Tema e Problema l Território l A edificação l Diretrizes de intervenção Principais intervenções l Programa l Plantas l Cortes l Equipamentos

Sobreloja Perspectiva Fachada

Armazém do Campo em Florianópolis/SC Espaço de interlocução entre campo e cidade l DAU UDESC l Professor Orientador: Dr Alberto Lohmann l Aluna Michele Staub de Brito l 2022/2

Trabalho de Curso 1 l Trabalho de Curso 2

Tema e Problema l Território l A edificação l Diretrizes de intervenção Principais intervenções l Programa l Plantas l Cortes l Equipamentos

Sobreloja Perspectiva Armazém 02

Armazém do Campo em Florianópolis/SC: Espaço de interlocução entre campo e cidade l DAU UDESC l Professor Orientador: Dr Alberto Lohmann l Aluna: Michele Staub de Brito l 2022/2

19

Trabalho de Curso 1 l Trabalho de Curso 2

Tema e Problema l Território l A edificação l Diretrizes de intervenção Principais intervenções l Programa l Plantas l Cortes l Equipamentos

de interlocução entre

20
Armazém do Campo em Florianópolis/SC: Espaço campo e cidade l DAU UDESC l Professor Orientador: Dr Alberto Lohmann l Aluna: Michele Staub de Brito l 2022/2

Trabalho de Curso 1 l Trabalho de Curso 2

Tema e Problema l Território l A edificação l Diretrizes de intervenção

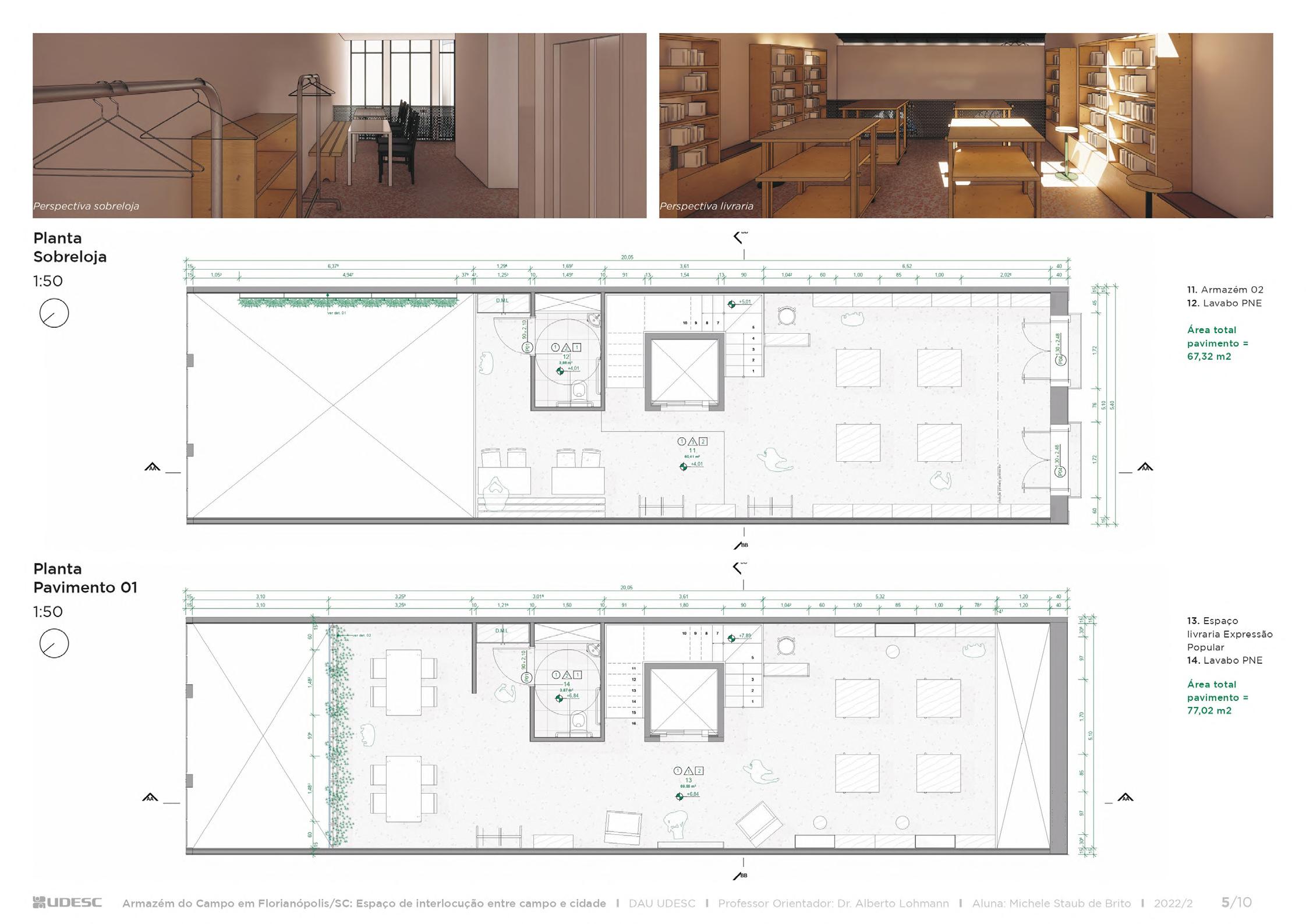
1 Pavimento Perspectiva Livraria Expressão Popular

Principais intervenções l Programa l Plantas l Cortes l Equipamentos

Armazém do Campo em Florianópolis/SC: Espaço de interlocução entre campo e cidade l DAU UDESC l Professor Orientador Dr Alberto Lohmann l Aluna: Michele Staub de Brito l 2022/2

Trabalho de Curso 1 l Trabalho de Curso 2

Tema e Problema l Território l A edificação l Diretrizes de intervenção

1 Pavimento Perspectiva Circulação / Espaço oficinas

Principais intervenções l Programa l Plantas l Cortes l Equipamentos

Armazém do Campo em Florianópolis/SC: Espaço de interlocução entre campo e cidade l DAU UDESC l Professor Orientador: Dr Alberto Lohmann l Aluna: Michele Staub de Brito l 2022/2

21

Trabalho de Curso 1 l Trabalho de Curso 2 Principais intervenções l Programa l Plantas l Cortes l Equipamentos Tema e Problema l Território l A edificação l Diretrizes de intervenção

Fachada Largo Alfândega Portas Abertas

Armazém do Campo em Florianópolis/SC: Espaço de interlocução entre campo e cidade l DAU UDESC l Professor Orientador: Dr Alberto Lohmann l Aluna: Michele Staub de Brito l 2022/2

22

Trabalho de Curso 1 l Trabalho de Curso 2 Principais intervenções l Programa l Plantas l Cortes l Equipamentos Tema e Problema l Território l A edificação l Diretrizes de intervenção

Fachada R Conselheiro Mafra

Armazém do Campo em Florianópolis/SC Espaço de interlocução entre campo e cidade l DAU UDESC l Professor Orientador Dr Alberto Lohmann l Aluna: Michele Staub de Brito l 2022/2

23

Projeto de Intervenção no Patrimônio

O desafio projetual da disciplina consiste em implantar uma moradia estudantil em um lote com duas edificações ecléticas do início do século XX.

Propomos uma edificação de dois pavimentos, com suporte para até trinta estudantes, sendo 22 apartamentos visitáveis e 8 acessíveis. Integra o complexo um pavilhão de apoio para potencializar as atividades culturais já existentes no entorno. Nas edificações ecléticas, propomos pequenas intervenções internas para suportar os novos usos.

Projeto realizado em dupla com Anderson Kanitz em 2021/2.

24

Casarão Rosa

A proposta de intervenção no lugar parte da análise do entorno, que desperta o desejo em valorizar e ressaltar a Praça Vidal Ramos, junto do circuito cultural que a envolve.

A escala das edificações existentes é preservada na implantação da nova edificação.

Os alinhamentos rentes ao lote na Rua Tenente Bessa e na Rua XV de Novembro foram

mantidos por entendermos a importância da visão de conjunto das edificações e dessa face de quadra para a praça. O desenho procura estabelecer uma noção de ruptura entre o passado e o presente, ressaltado também pela materialidade empregada.

25
Mapa de Situação
CONS. JERONIMO COELHO
DUQUE DE CAXIAS
sANTO ANTONIO 1 5 10 20 1 3 Lote de projeto
R.XVDENOVEMBRO R.T.BESSA R.
R.
R.
Casarão Amarelo
Edificações Existentes
Pontos de Cultura
26
27
28
Planta Pavimento Térreo Sem esc ala

O pavimento térreo abriga uma par te do espaço habitacional históricas .

O pavimento é marc ado por um Tenente B essa com a Praç a Vidal Ramos

pavilhão em aço cor ten destinado a apoiar e potencializar as atividades culturais dessa região

29
30

maior área de incidência solar

sua cober tura para ampliar o desempenho térmico e luminoso projetadas de forma a melhorar a ventilaç ão natural e iluminaç ão dos ambientes para o confor to dos usuários

De acordo com o bioclima da uma vedaç ão ex terna composta

inércia térmic a ótimo desempenho acústico e traz leveza para a estrutura para o layout

31

Centro de Inovação

32

Sobre

E xercício de projeto realizado na

Urbanismo Udesc

imaginarem centros tecnológicos município de L aguna/SC

33
34
35
Planta Pavimento Térreo Sem esc ala

Planta

Primeiro Pavimento Sem esc ala

Planta

Segundo Pavimento Sem esc ala

36

Desenho esquemático

Vedaç ão ex terna

Desenho esquemático

M ódulo de trabalho individual

37

Desenho esquemático Vedaç ão ex terna Fachada sul

38
39 Detalhamento
40

Turn static files into dynamic content formats.

Create a flipbook
Issuu converts static files into: digital portfolios, online yearbooks, online catalogs, digital photo albums and more. Sign up and create your flipbook.