LIGHTING & INTERIOR DESIGN

2019-2025
![]()

2019-2025


LIGHTING DESIGN
02-13
14-17
18-23
Passage of Time What is the Truth? Beyond Layers
INTERIOR DESIGN
24-31
32-39
40-47
Greenhouse
Entropy Decreasing Embracing Imperfection
Architectural Lighting Design
Lighting Installation
Luminaire Design
Retail | Professional Work
Curated Retail
Stool Manufacturing Workplace


Architectural Lighting Design
Lighting Design Studio 1: Light, Vision & Rep, Fall 2024
Instructor: Glenn Shrum, Golsana Heshmati, Francesca Bastianini
Team Member: Emir Ikhsan, Pin-Hsuan Wang
The passage of time is inspired by the natural cycles of time, creating an immersive experience. This dynamic interplay of light reflects a continuous flow through subtle gradients, layers, and patterned lighting.

REPETITIVE
GRADIENT LAYERING






LS1 Linear Suspended LED Strip

G1 Linear LED Grazer
T1 Linear LED Tape

C1 Custom Luminaire

D1 Recessed Downlight







This luminaire gracefully uplifts light from the floor, guiding a radiant glow from the wall to the ceiling. The intention is to layer the repetitive shadows, creating gradients to visualize the movement of time.






ELEVATOR LOBBY
Target Eh: 50
Achieved Eh: 57
Target Ev: 30
Achieved Ev: 38

OPEN STUDY
Target Eh: 400
Achieved Eh: 517
Target Ev: 300
Achieved Ev: 327
Target Eh: 50
Achieved Eh: 61
Target Ev: 30
Achieved Ev: 35

WORKSHOP
Target Eh: 1000
Achieved Eh: 1024
Target Ev: 500
Achieved Ev: 503

LECTURE
Target Eh: 500
Achieved Eh: 600
Target Ev: 200
Achieved Ev: 291

CATERED DINNER
Target Eh: 100
Achieved Eh: 174
Target Ev: 40
Achieved Ev: 70

PRE/POST DINNER
Target Eh: 100
Achieved Eh: 118
Target Ev: 50
Achieved Ev: 50
CLASSROOM
Target Eh: 400
Achieved Eh: 503
Target Ev: 300
Achieved Ev: 336
GROUP COUNSELING
Target Eh: 500
Achieved Eh: 555
Target Ev: 200
Achieved Ev: 213
YOGA
Target Eh: 50
Achieved Eh: 108
Target Ev: 30
Achieved Ev: 48




- The dimmable and tunable cove light from the cracks indicates that time is passing
- The position of the cove light indicates the entrance of another space
- Texture of the ceiling to emphasize the changing light and shadow effect
- Rough texture and frosted glass are visually consistent




Open Study

Pre/Post Dinner

Workshop



Lighting Installation
Lighting Design Studio 1: Light, Vision & Rep, Fall 2024
Instructor: Glenn Shrum, Golsana Heshmati, Francesca Bastianini
When everything around me were flooded by blue as I put the blue gel in front of my flashlight, a phrase came up with me - looking at things through colored glasses. We are inevitable to perceive and interpret the world from our own perspectives, sometimes even leading to prejudices. In this project, I would like to explore the idea of whether what we see is really what the truth is by manipulating with shadows, reflections and colors of light. All these visual components encourage us to reflect on what we are looking at.





Luminaire Deisgn
Lighting Design Studio 1: Light, Vision & Rep, Fall 2024
Instructor: Glenn Shrum, Golsana Heshmati, Francesca Bastianini
This luminarie is designed for dining room, where people gather around, share and communicate. The layered diffused surfaces create ambient light with cozy atmosphere, lighting up the table top and faces around the table.
The combination of three different sizes and positions of circles on the cube surfaces provide dynamic expriences for people as moving around.It also create inversed lighting effects when the luminaire is on and off. Beyong layers, each glance a surprise.


Section A-A’


Standing View

Sitting View

Different transmittance levels with layers enrich visual experiences









Reversed lighting effects with luminaire on & off
AGI CALCULATION OUTPUT

Maximum Candela = 86.172
Located At Horizontal Angle = 90
Vertical Angle = 65



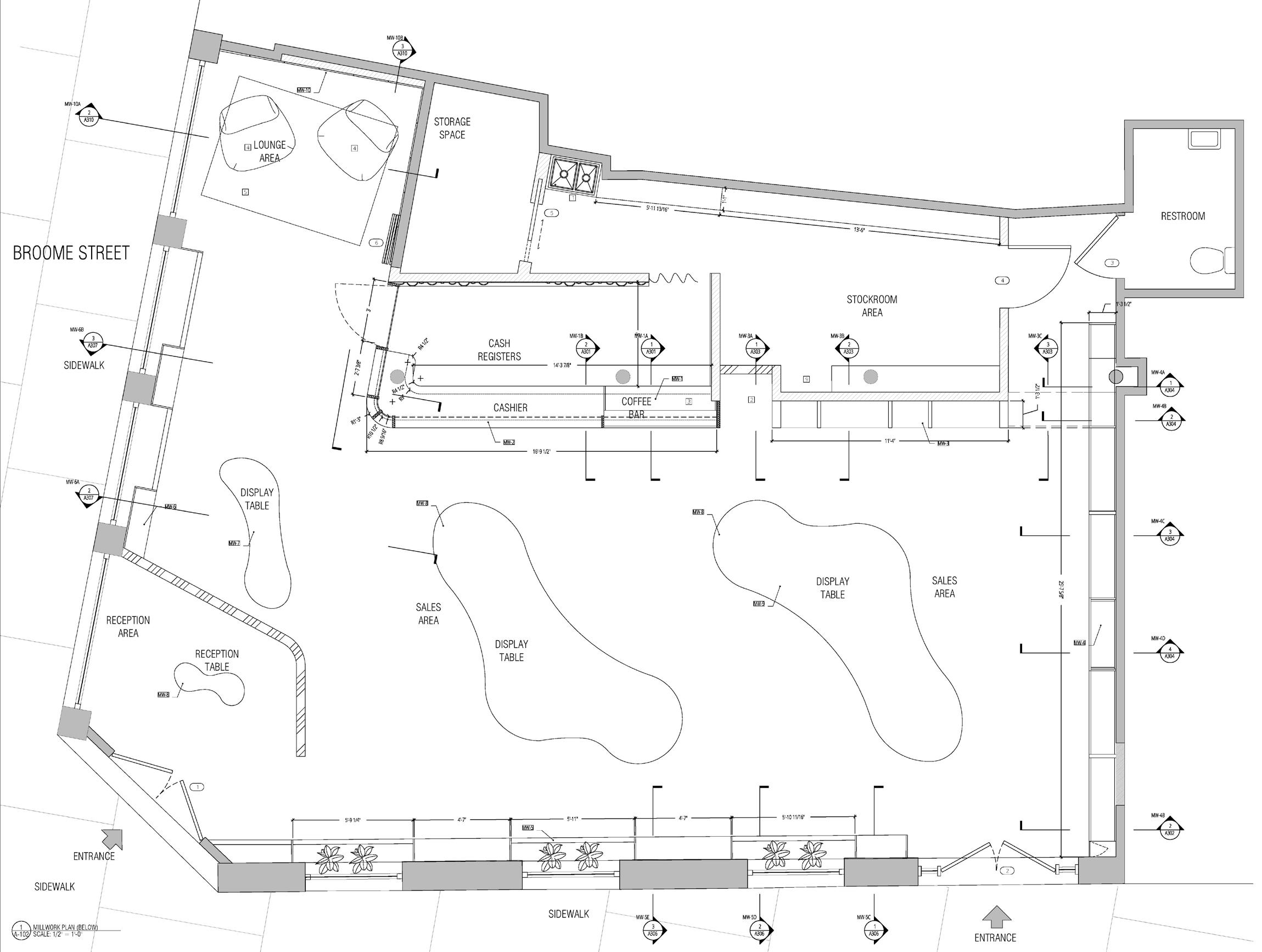
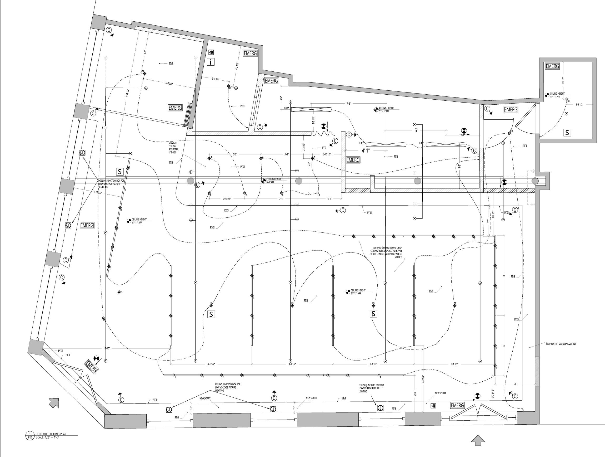
Retail, New York, 2023-2024
Sergio Mannino Studio
- Developed SD including experience sequences, mood boards
- Created construction plans, elevations, millwork details
- Created lighting layout and schedule
- Prepared 3D models and renderings for presentation to clients
- Sourced furniture, fixtures and equipment
- Checked DOB codes




1.GENERAL

2.GENERAL
3.GENERAL




Curated Retail, New York
Interior Design Studio 6Capstone Project, Spring 2023
Instructor: Adrienne Brown, Elizabeth Kuhn
In this capstone project, transience is defined as impulsive consumption leading to waste, and will be studied through marketing strategies that stimulate false needs. We are getting lost in various advertisements, promotions, and trends that strip our ability to make informed buying decisions. This problem will be addressed through the design of a curated retail space in New York City that crafts a slow experience, encouraging us to roam, discover, ponder, and make conscious decisions. In this space, we will keep asking ourselves
“Are we being deliberate with this decision?”




The sequencial experience of from chaos to order and from being impulsive to conscious










1 | Plastic Zone
Are we aware of the environmental impact of our impulsive consumption?


Installation 2 | Preview Window Highlighter
Lighting
Linen
- Display Board
- Diffuse the Light
- Lower Ceiling Height
Curved Bamboo
- Support Sliding Linen
- Modular Connection


Movable Structure for Multiple Usages

3 | Exhibition of the Product The Whole LIfe of a Linseed Phone Case



4 | Looking in and out through the Window Space of Spirit

5 | Meditation Area Are we being deliberate with this decision?

Stool Manufacturing, New York
Interior Design Studio 5, Fall 2022
Instructor: Cotter Christian
This project is a manufacturing space for Skilset, an art experimental production studio that reuses wasted wood to make new furniture. To echo the sustainability concept, the space would create an inclusive environment embracing the imperfections of waste material and working process.
Skilset is an art experimental production studio reusing reclaimed wood and tiles to make new furniture. To achieve sustainability, they embrace the imperfect material and endow new textures and colors to create a unique characteristic of each piece.

Flooring on site
To echo the sustainability concept of this furniture company, the space would create an inclusive environment embracing the imperfections of waste material and working process.











Interview with the Founder of Skilset
"Accept mistakes and imperfections. I've learned to embrace the ugly and embrace the mentality to not like being upset so quickly over something that I worked on and I'm probably gonna make something really cool or interesting."

THANK YOU