Architecture student portfolio

Page 1

POR TFO LIO

CHIARA MICHELI

2021

STUDENTESSA DI ARCHITETTURA

ESPERIENZE LAVORATIVE

Architetto tirocinante Studio “ Atelier Architettura” Lodi | 2020- 2021

Architetto tirocinante Studio “ Architetto Stefania Zangari” Milano | 2022

-Lavoro in Team e esperienza nel rapporto con la committenza -Redazione di pratiche catastali -Supporto attività di cantiere Attività di rilievo

FORMAZIONE E ISTRUZIONE

Politecnico di Milano

Attualmente iscritta al corso di Laurea Magistrale in Progettazione dell’architettura e interni

HOBBIES E INTERESSI

• Fotografia | Volontaria al Festival della fotografia di Lodi

• Let teratura

• Ar te e Musica | Volontaria al festi val “Creature” di Lodi

• Cucina

• Trekking

CONTATTI

chiaramicheli73@gmail.com chiara.micheli@mail.polimi.it

Politecnico di Milano

Classe 2020 | Laurea triennale in progettazione dell’ Architettura 105/110

Liceo Artistico Callisto Piazza Classe 2017 | indirizzo Design 87/100

-Rappresentante di classe e rappresentante di istituto -Volontaria come “Apprendista Cicerone” FAI COMPETENZE

Digitali AutoCad 2D Photoshop,Indesig, Illustrator SketchUP Suite Office ( Word, Excel) Dialux Revit Wix Linguistiche Italiano | Madrelingua Inglese | Livello avanzato Certificazione TOEIC C1 | 2021 Patente B

Indice lavori

01 04

02 05

Biblioteca della luce Bobbio al limite Case Giardino

03 06 07

pg 2-5 pg 5-9 pg 10-13 pg 23-27pg 18-22pg 14-17 pg 28-30

Piranesi Prix de Rome Tetris HousingAdaptive City

Casa su misura Atelier architettura

Biblioteca di luce - riconnessione tra storico e periferico Nuovi spazi collettivi per la città di Fiorenzuola d’Arda

Laboratorio di Progettazione dell’Architettura degli interni Docenti: Ugolini Michele - Lenzini Francesco Studenti: L. Biccheri - G. Bisogno - C. Micheli

a.a 2019 - 2020

Il tema del progetto è quello di convertire l’esistente edificio delle scuole elementari di Fiorenzuola d’Arda, valorizzando il patrimo nio costruito, dandogli nuovo valore.

Il progetto urbano si propone di creare ri connessione tra il centro storico e la periferia della città.

La strategia progettuale ha previsto una dop pia connessione pedonale per superare la cesura del tessuto urbano costituita dalla città ad alto scorrimento, trasformando lo stretto sottopassaggio esistente in un’ampia prome nade architcturale.

L’intervento sull’edificio esistente si pone al

centro della strategia urbana, creando un nuovo polo di attrazione per la comunità. La nuova biblioteca realizzata a partire dalla struttura esistente ha come tema centrale la luce, materiale per la realizzazione di spazi studio, lettura e incontro.

L’area verde tra i due corpi è stata ideata come un gioco di leggeri salti di quota, con aree ribassate per il gioco dei più piccoli e pedane rialzate per la lettura dei più gran di. Questo spazio verde è pensato come un area di transizione tra paesaggio urbano e architettura.

2
Piazza Taverna
01

masterplan scala urbana

sezione longitudinale foto modello - dettaglio piazzale taverna foto modello - dettaglio sezione interna edificio

3
1 2

sezione prospettica dettaglio camminamenti di luce

sezione prospettica dettaglio giardini interni

4 PIANO TERRA
5
SEZIONI
vista cortile interno

Bobbio al limite - tra architettura e paesaggio: ripensare i luoghi di scambio Laboratorio di Progettazione Architettonica 3

Bobbio tra fiume e montagna: Ri-abitare l’esistente per rigenerare paesaggi

Docenti: Chiara M.A. Bertoli - Sara Protasoni

Studenti: Rebecca Fascia - Alessia Franzini - Chiara Micheli a.a 2019 - 2020

Nel corso di questo laboratorio si è approfondita la comprensione critica del contesto alle diverse scale: locale, urbana, del territorio e del paesag gio.

L’interpretazione del contesto ha determinato lo sviluppo di un progetto attento all’esistente, in cui l’esperienza sensoriale, la risalita e la soglia sono i temi fondamentali. Il progetto prende in conside razione un’area limite tra borgo storico e la Statale 45, in cui si è scelto di creare un nuovo accesso al borgo, una nuova “immagine-cartolina” rappre sentativa e costruendo un sistema di relazioni tra paesaggio e borgo.

Il progetto mira a creare un nuovo spazio soglia, ripensando il limite costituito dal pendio al di sot to del convento di San Francesco e riqualificando l’esistente parcheggio semi interrato,elemento inva dente e fuori scala incastrato nel pendio sotto al convento.

Il nuovo accesso si completa con la trasformazione dell’ex monastero di San Francesco, sede di labo ratori artigiani e del nuovo mercato, e degli orti e dell’area verde ad esso connessa.

6
02

MASTERPLAN

7
STRATEGIA- nuove porte,velocità e connessioni
8 PIANTA QUOTA 0.0
sezione longitudinale prospetto longitudinale
9
E
DI DISPOSIZIONE
PIANTE
SCHEMI
PROGRAMMA FUNZIONALE - terrazzamenti e parco
SEZIONE- ex convento San Francesco

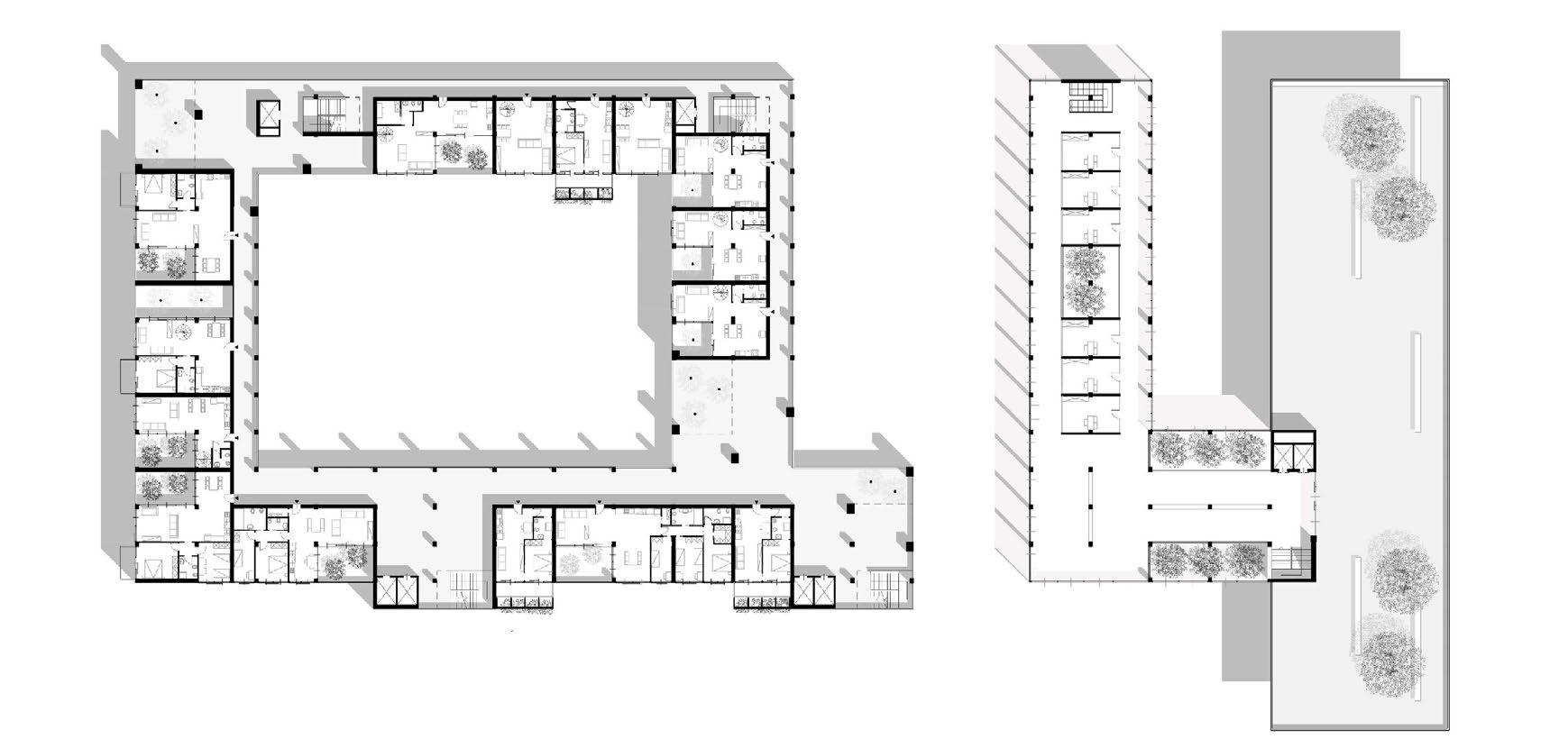
Case Giardino

Laboratorio di Progettazione Finale Trasformazione del Polichirurgico di Piacenza in residenze sociali e rigenerazione del comparto

Docenti: Vincenzo E. Zucchi - Mario Morrica - Pietro R. Lembi

Studenti: Ludovica Devoto- Letizia Biccheri- Gaia Bisogno - Chiara MicheliGianluca Migliavacca a.a 2019-2020

Il tema proposto vede in oggetto la riqualifica zione dell’area del policlinico di Piacenza, po nendo particolare attenzione alla rigenerazio ne degli spazi e dell’edificio del polichirurgico, convertendolo in residenze sociali. L’approccio al progetto è multidisciplinare dalla scala terri toriale, alla urbana, a quella architettonica con una attenzione sociologica all’intervento.

Lo sviluppo della strategia territoriale mira a dare nuovo valore alle molte aree verdi inutilizzate attorno all’area di intervento, creando una rete ecologica e un percorso ciclopedonale solare. Il nuovo progetto trasforma l’edificio esistente in

una casa a corte, tema ricorrente nel contesto dell’area. All’interno del processo di rigenerazio ne dell’edificio si è scelto di preservare la strut tura portante esistente, studiando l’inserimento puntuale del verde sia nelle singole unità abita tive, sia realizzando degli spazi di pertinenza in quota.

Questa casa-giardino alterna la presenza di spazi pubblici, semi pubblici e privati, con unità abitative modulari e “componibili”, in modo da permettere una ulteriore futura trasformazione.

10
03

VISIONE GUIDA

vasche d’acquaorti e pista ciclabileorti e pista ciclabile

11 1 2 3 1. 2. 3.
STRATEGIA ALLA SCALA TERRITORIALE

SEPARAZIONE

APERTURA ATTACCO A TERRA

B

A A SEZIONE A-A

B

PIANTA PIANO 1 + 5, 88 m

12
PROCESSO COMPOSITIVO STATO DI FATTO SCOMPOSIZIONE
SPAZI
INSERIMENTO PUNTUALE DEL VERDE SPAZI PRIVATI
PRIVATI
PIANTA PIANO 1 + 5.88 M

modulo 1 modulo 1 + 1/2 modulo 2 + 1/2

modulo 2 + 1/2 modulo 3 + 1/2

13
COMPOSIZIONE DEI MODULI ABITATIVI
SEZIONE B-B PROSPETTO NORD COLLAGE -mura storiche, specchi d’acqua e pista ciclabile

ADAPTIVE CITY

Trasformabilità - Flessibilità - Reversibilità

Trasformazione di un edificio per creare residenze temporanee e flessibili.

Laboratorio di progetto e costruzione dell’architettura

L’obbiettivo di questa esercitazione è di stu diare soluzioni innovative per realizzare mo duli abitativi flessibili, rifunzionalizzando l’e dilizia esistente e contrastando un successiva perdita di funzione.

I moduli abitativi progettati sono estremamen te flessibili e trasformabili, per poter risponde re velocemente alle future trasformazioni.

La struttura portante dell’edificio è stata so stanzialmente mantenuta e su di essa è stato montato il sistema degli aggetti con elementi verdi, appositamente studiati.

Il concept di questo progetto è quello di pre vedere le trasformazioni future e predisporre

le conseguenti modifiche degli spazi. I dettagli costruttivi mostrano il sistema di pa reti smontabili e attrezzate con aggancio nel pavimento e soffitto. Ogni minimo spazio dei moduli è stato sfruttato al massimo per creare un ambiente minimo ma confortevole. I servizi non presenzi nei diversi tagli di alloggio sono stati distribuiti sui diversi piani della stecca, pensando alle diverse utenze. L’estrema trasformabilità è stata raggiunta grazie al trattamento per moduli di tutte le parti, dal disegno dei pavimenti alla realizza zione della facciata a cellule.

14
Docenti: Ginelli Elisabetta - Formis Luca Studenti: Alessandro Biacca - Letizia Biccheri -Chiara Micheli a.a 2020-2021

Studentato I14 mq

Studentato I 21 mq

Monolocale I 28 mq

Bilocale I 42 mq

Senior housing I 56 mq

REVERSIBILITÀ

MONOLOCALE STUDENTATO STUDENTATO STUDENTATOSP. COMUNE

Albergo/ostello I 14 mq

Albergo/ostello I 21 mq

15 BILOCALE
STUDENTATO STUDENTATO FLESSIBILITÀ FUNZIONALE E TIPOLOGICA

SEZIONI 1:20

NODO 1

Sezione orizzontale di dettaglio

NODO

NODO

16
NODO 2
NODO 3 NODO 4 NODO 1 NODO 2
Sezione vertica le di dettaglio SCHEMA ATTREZZABILITÀ
3
4
NODO
NODO
AGGETTO MONTATO A SECCO
1
1 SCHEMA ELEMENTI AGGETTO
SEZIONE 1:20

TETRIS HOUSING Laboratorio di Progettazione Architettonica

Nuove residenze nel parco Martesana

Docenti: Marco Lucchini - Imma Forino

Studenti: Diletta D’Inverno - Chiara Micheli -Martina Talenti a.a 2021 -2022

Questo progetto ha l’obbiettivo di creare un nuovo edificio di housing in un area semi-abbandonata a Milano, lungo il Naviglio Martesana. Il progetto prevede anche il ridisegno del waterfront e l’inclu sione del nuovo edificio in un sistema residenziale e di servizi utili alla vita del quartiere. Il nuovo edificio è composto da tre “bracci”,i primi due di carattere residenziale e con servizi dedicati, il terzo è una palestra multipiano collegata con una passerella aerea al secondo braccio.

L’impronta di questa lunga stecca è movimentato dal gioco di sfalsamenti di moduli abitativi come pezzi i un tetris, rompendo così il margine della fi

gura di partenza. Gli spazi comuni e impianti di risalita sono eviden ziati in facciata (in particolare sud) da una pelle forata realizzata in fibro cemento come il resto dei rivestimenti. Le ombre importanti e il colore rosso mattone di alcuni dei moduli aggettanti evidenzia no i movimenti in facciata. All’interno della costruzione sono presenti appar tementi di diverse metrature, è stato riportato lo stu dio con dettaglio 1:50 del modulo “duplex A” di 114mq. Questo spazio è caratterizzato da un forte impianto orizzontale e da ampie aperture. Il con cept di arredo è quello di creare uno spazio fluido e attrezzato.

18

zona a bassa densità abitativa mercato coperto e zona commerciale

ASSONOMETRIA CONTESTO URBANO

19

pianta tipo piano 1

pianta tipo piano 2

20
sezione braccio EST

Pianta duplex “A” scala 1:50

Pianta duplex “A” scala 1:50

21

Sezione trasversale duplex “A” 1:50

Finiture

Rivestimento per facciata ventilata in fibrocemento, Equitone, Natura, colore n. 154

Rivestimento per facciata ventilata in fibrocemento con foratura

Rivestimento per facciata ventilata in fibrocemento, Equitone, Natura, colore n. 331

Rivestimento per interni in parquet, rovere, effetto sabbiato

rivestimento per interni in gres, effetto cotto e cemento, plaza white rt, dimensioni 60 x 120, Marazzi

Rivestimento per esterni in gres, effetto cotto, color terracotta, dimensioni 60 x 60, Marazzi

22
280 Mobile soggiorno Struttura a giorno in legno rovere sabbiato Ante e cassettoni color pannaSistema a boiserie 300 struttura
Plan
led
SEZIONE A-A'
e contrappeso in ferro cilindro in alluminio, lampada Doi, modello A05S, Luce
Lampada a sospensione a
1 2 3 4 5 6 1.
2.
3.
4.
5.
6.

Nuova area termale nel parco archeologico di Villa Adriana a Tivoli Piranesi Prix de Rome 2021

Il progetto è stato realizzato all’interno del wor kshop- concorso “Piranesi Prix de Rome” 2021, il tema è quello di progettare un complesso termale e espositivo all’interno di Villa Adriana, confrontandosi con l’antico.

Il progetto si occupa dell’immagine coordinata della Villa, della bufferzone e del complesso termale-espositivo realizzato nell’area dell’An tiquarium.

La strategia per la bufferzone prevede la re alizzazione di un percorso circolare che con netta la villa all’area fiume Aniene e alle aree coltivate che diventano parte dell’immagine di rebranding della Villa.

La costruzione del progetto richiama agli assi

prospettici e allineamenti su cui è costruita la Villa, ponendo in relazione l’antiquarium con Roccabruna.

Il nuovo complesso termale-espositivo stabili sce una forte relazione con il Canopo, di cui rimane visibile parte della cupola. Questa forte suggestione ha generato il disegno della sezio ne e della facciata de l progetto le cui lamelle richiamano alla rovine delle cupole presenti nell’area.

Proprio a partire da questa relazione con le ro vine si è costruito un gioco di riflessi e relazioni tra antico e nuovo.

23
Studenti: Chiuyu Li, Beatrice Maggi, Chiara Micheli, Claudia Mencarelli, Martina Ghisalberti, Pinwen Zhang Honorable mention prize

Connessione di punti notevoli

Punti notevoli percorsi di collegamento

24 Strategie bufferzone
Masterplan Villa Adriana Rapporto Canopo e Antiquario
25
Pianta piano terra - nuovo complesso termale Vista assonometrica Sviluppo del Concept
26

Progetto Brand Identity

27
Sezione prospettica

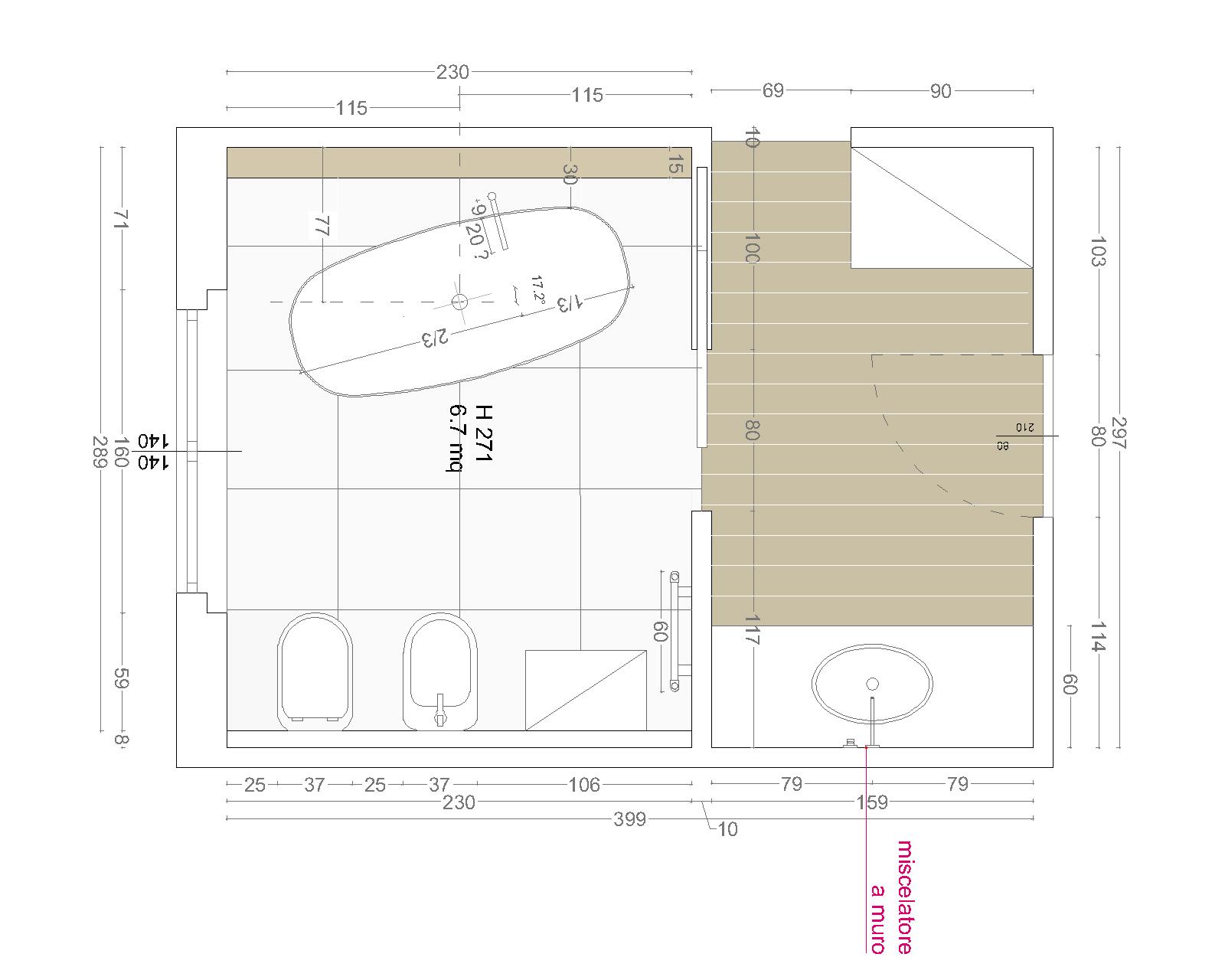
Esperienze lavorative

Case su misura

Progetti di ristrutturazione di interni e arredo su misura Presso lo studio

Atelier Architettura

Lodi

Le tavole riportate rappresentano alcuni dei lavori svolti durante il pe riodo di tirocinio facoltativo svolto presso lo studio Atelier Architettura di Lodi. I temi maggiormente trattati sono quelli della ristrutturazione d’in terni e dell’ideazione di arredi su mi sura, per creare spazi “sartoriali” re alizzati a partire dalle esigenze della committenza.

Il primo progetto è la realizzazione di un bagno padronale, all’interno del più ampio intervento di ristruttu

https://www.atelierarchitettura.org/

razione di un appartamento. La rea lizzazione è stata seguita dalla fase di disegno a quella di cantiere, con particolare attenzione agli elementi di dettaglio e all’armonia dello spa zio.

La seconda tavola riporta gli ela borati realizzati per una cameretta sottotetto in cui è stato progettato l’arredamento e armadiature su mi sura, pensate per sfruttare al meglio lo spazio.

28
Atelier Architettura - Lodi Arch. Anna Arioli Arch. Paolo Poggio| Tirocinante: Chiara Micheli
29 Mansarda con mobile su misura
Armadio su misura

specchio tutta

cementine Elios

pavimento Elios Ceramica D-ESIGN Evo "bianco" 60x60

30
Atelier
Architettura
BAGNO - vascaArredo bagno con dettaglio cementine

Turn static files into dynamic content formats.

Create a flipbook
Issuu converts static files into: digital portfolios, online yearbooks, online catalogs, digital photo albums and more. Sign up and create your flipbook.
Architecture student portfolio by Chiara Micheli - Issuu