REFERENTE DIGITAL

Page 1

PAE 1_T2

TEORÍA E HISTORIA

19/07/2023

Arq. Claudia Balseca. Mud

6° Semestre

Paralelo 02

UNIVERSIDAD INDOAMÉRICA

JEAN PIERRE JARRÍN ALDAS

PAE 1. ANÁLISIS

PAE 2. ANÁLISIS FORMAL

ANÁLISIS DE REFERENTES- TIPOLOGÍA: POLIDEPORTIVO
ÍNDICE
FUNCIONAL INFORMACIÓN PLANOS IMÁGENES DISTRIBUCIÓN PRIMERA PLANTA CIRCULACIÓN PRIMERA PLANTA DISTRIBUCIÓN SEGUNDA PLANTA CIRCULACIÓN SEGUNDA PLANTA FACHADA
PROGRAMA ARQUITECTÓNICO INFORMACIÓN PROGRAMA MATERIALIDAD REFERENTE 3D BIBLIOGRAFÍA 3 4 5-6 7 8 9 10 11 12 13 14 15-16 17-18 19 20

PAE 1 REFERENTES A. FUNCIONAL

TEORÍA E HISTORIA

JEAN PIERRE JARRÍN ALDAS

Universidad de Lima Recreation, Wellness, and Student Life Center

Información General

Arquitectos: Sasaki Associates

Area:

Año:

Proveedores:

Ubicaciòn:

Información

180000 ft²

2022 Armstrong, Construction Specialties Perù

El Centro de Recreación, Bienestar y Vida Estudiantil de la Universidad de Lima, es el primer proyecto implementado por Sasaki como parte de la primera fase de implementación del Plan Maestro de la Universidad, desarrollado también por Sasaki. El edificio consta de seis plantas desarrolladas con una estructura mixta de acero y concreto. El proyecto ofrece un espacio de actividad física, área de comedores y de apoyo académico. Los espacios dedicados al programa se equilibran con áreas versátiles para crear una plataforma de vida estudiantil acogedora y motivadora.

ANÁLISIS DE REFERENTES- TIPOLOGÍA: POLIDEPORTIVO
©Archdaily ©Archdaily©Archdaily

Universidad de Lima Recreation, Wellness, and Student Life Center

PLANTA BAJA

El edificio envuelve el espacio cubierto de la plaza como una banda Möbius conectando los distintos programas orientados al bienestar. Una plaza exterior con espacios de comedor fluye continuamente hacia la planta baja de esta la plaza cubierta central, atrayendo no sólo circulación peatonal del campus sino que por su morfología, el atrio promueve también la ventilación pasiva natural a través del mismo. La plaza cubierta proporciona acceso al foro existente del campus, que es un gran espacio de reunión debajo de la superficie de la plaza. Los servicios de salud del centro estudiantil se encuentran en una área más discreta del proyecto, hacia el norte de la zona de comercio y concesiones.

PLANOS

Universidad de Lima Recreation, Wellness, and Student Life Center

PLANTA ALTA

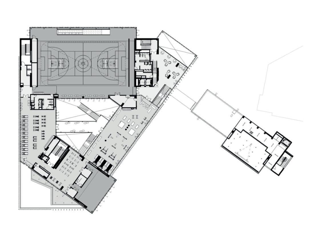
La mezzanine se eleva por encima de la plaza y el anfiteatro en el atrio del edificio, proporcionando un espacio de encuentro, zonas de comedores adicionales, acceso a las oficinas de Bienestar y la entrada a los programas de recreación. Las dos siguientes plantas están dedicadas al gimnasio, con áreas de pesas, zona de ejercicios cardiovasculares, entrenamiento y crossfit. En el tercer nivel se encuentra un puente que conecta el proyecto con la renovación y ampliación de un antiguo comedor que alberga ahora una sala multipropósito, salas de reunión y una cafetería. En el cuarto nivel se encuentran las salas de ejercicio grupal y el polideportivo con canchas para futsal, basketball y volleyball. El polideportivo está rodeado de una pista atlética flotante con un tramo exterior que atraviesa amplias terrazas con vistas al campus y a la ciudad de Lima.

PLANOS

Universidad de Lima Recreation, Wellness, and Student Life Center

©Archdaily ©Archdaily©Archdaily
IMÁGENES

PLANOS

Universidad de Lima Recreation, Wellness, and Student Life Center

DISTRIBUCIÓN

DEPARTAMENTO PSICOLOGÍA

CONCESIONES

TIENDA DE CONVENIENCIA

ANFITEATRO

TERRAZA DE DISEÑO

COMEDOR

TERRAZA

COCINA

PLAZA

BAÑOS

ATMS

Universidad de Lima Recreation, Wellness, and Student Life Center

CIRCULACIONES

PRINCIPAL SECUNDARIA

PLANOS

Universidad de Lima Recreation, Wellness, and Student Life Center

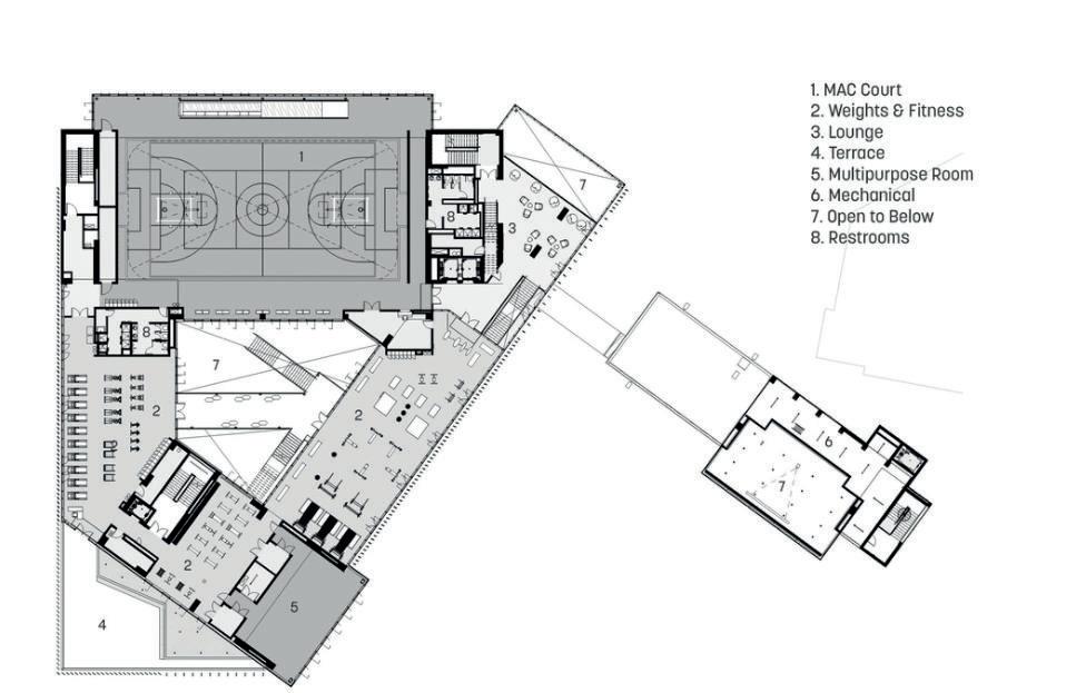
DISTRIBUCIÓN

CORTE MAC

GIMNASIO

SALÓN

TERRAZA

SALA MULTIPROPÓSITOS

MECÁNICA

DOBLE ALTURA

BAÑOS

PLANOS

Universidad de Lima Recreation, Wellness, and Student Life Center

PRINCIPAL SECUNDARIA CIRCULACIONES
PLANOS

Universidad de Lima Recreation, Wellness, and Student Life Center

©Archdaily ©Archdaily ©Archdaily
JERARQUÍA RITMO
FUNCIÓN
FACHADAS

PAE 2 REFERENTES A. FORMAL

TEORÍA E HISTORIA

JEAN PIERRE JARRÍN ALDAS

ZONA

SUB-ZONA

GARAJE

RECEPCIÓN

PROGRAMA ARQUITECTÓNICA

AMBIENTE

CASETA GUARDIA

OFICINA

ADMINISTRATIVA

BAÑOS

SECRETARÍA

BAÑOS HOMBRES

BAÑOS MUJERES

CANCHAS

FÚTBOL SALA

BÁSQUET

RECREACIÓN

ÁREAS COMUNES

PLAZA

TIENDA DE CONVENIENCIA

ANFITEATRO

TERRAZA DE DISEÑO

TERRAZA

SALA MULTIPROPÓSITOS

ALIMENTACIÓN

PREPARAR ALIMENTOS

INGERIR ALIMENTOS

COCINA

COMEDOR

SALÓN

DESCANSO

AYUDA

DEPARTAMENTO PSICOLOGÍA

CONCESIONES

MECÁNICA

GIMNASIO

Universidad de Lima Recreation, Wellness, and Student Life Center

ZONA CREATIVA RECREATIVA

El descanso creativo y recreativo es una práctica que consiste en dedicar tiempo a actividades que nos permitan desconectar de nuestras responsabilidades cotidianas y estimular nuestra creatividad. Algunas actividades que se pueden realizar son leer un libro, hacer manualidades, pintar, escuchar música, salir a caminar o practicar algún deporte. Este tipo de descanso nos ayuda a reducir el estrés y la ansiedad, mejorar nuestro estado de ánimo y aumentar nuestra productividad.

ESPACIOSDESCRIPCIÓN

NutriciónAyuda a una mejor alimentación de los usuarios

AsesoramientoAsesorar a los usuarios para un mejor rendimiento

FisioterapiaZona de recuperación

EntrenamientoLugar para entrenar GimnasioLugar para entrenar

ZONAS MULTIUSOS PLAZA

El edificio se envuelve alrededor del espacio de la plaza cubierta como una franja de Möbius que conecta diferentes programas orientados al bienestar. Una plaza al aire libre con espacio para comer fluye sin problemas hacia la planta baja de esta plaza central cubierta, atrayendo la circulación y la ventilación pasiva. La plaza cubierta también proporciona acceso al foro del campus, un gran espacio de reunión debajo de la superficie de la plaza. Los servicios de salud estudiantil del centro están ubicados en un área más discreta al norte de los restaurantes y tiendas.

El centro incluye nutrición, asesoramiento, fisioterapia y entrenamiento con pesas para atletas, así como un espacio de recreación informal dentro del gimnasio de usos múltiples, que también funciona como un espacio para eventos con capacidad para 600 personas. Todo el edificio está destinado a ser multipropósito; Como un importante motor de actividad en el campus, es un lugar donde los estudiantes y profesores pueden reunirse durante todo el día y socializar, estudiar y recargar energías.

©Archdaily ©Archdaily
PROGRAMA
© Eleazar Cuadros © Eleazar Cuadros

Universidad de Lima Recreation, Wellness, and Student Life Center

ENTRESUELO

El entresuelo da tanto a la plaza como al espacio del auditorio en el atrio del edificio y proporciona espacio adicional para reuniones y comedores, junto con acceso a las oficinas de asuntos estudiantiles y la entrada a los programas de recreación.

CANCHAS

RECREACIÓN

Actividades: Físicas

Capacidad: 600 personas

Dirigido: Estudiantes y personal universitario

Cancha FútbolCancha BásketGimnasio Fisioterapia

N° Personas 8 a 122 a 101 a 501 a 10

Medidas 38 x 2026 x 1520 x 4015 x 35

Equipamientos Carcos y RedesAros y redes

Máquinas, ves�dores, baños y recepción

Máquinas, camillas e implementos

Los siguientes dos niveles están dedicados a espacios de recreación como casilleros, gimnasio, pesas, entrenamiento en circuito y espacios de ejercicio grupal y una conexión con el ala renovada del edificio de al lado con su comedor, salones y espacios de teatro flexible para estudiantes. Los niveles superiores albergan suites de ejercicios grupales y un gimnasio multipropósito para fútbol sala, voleibol y baloncesto, todos conectados por una pista de jogging cubierta y al aire libre que se teje a través de amplias terrazas con vistas al campus y al horizonte de Lima.

©Archdaily
PROGRAMA
© Eleazar Cuadros

Universidad de Lima Recreation, Wellness, and Student Life Center

BARANDILLA DE VIDRIO

ALETAS DE ALUMINIO

ESTRUCTURA DE ACERO

VENTANA

LOSA MIXTA

MURO CORTINA

FILOS DE ALUMINIO

LOSA MIXTA

ESTRUCTURA DE ACERO

CONTROL SOLAR

ESTRUCTURA DE ACERO

LOSA MIXTA

ESTRUCTURA DE ACERO

FILOS DE ALUMINIO

BARANDILLA DE ACERO

RINES DE METAL

LOSA MIXTA

TECHO CON PANEL DE ALUMINIO

RINES DE METAL

DETECTOR CAÑA

CIMENTACIÓN

El sistema constructivo es de gran importancia en la construcción de cualquier tipo de edificación, ya que define la manera en que se llevará a cabo el proceso constructivo y cómo se utilizarán los materiales para lograr la estructura deseada. Un sistema constructivo bien diseñado puede mejorar la eficiencia y calidad de la construcción, reducir costos y tiempos de construcción, y garantizar la seguridad y durabilidad de la edificación.

©Archdaily ©Archdaily
MATERIALIDAD
© Eleazar Cuadros
© Eleazar Cuadros

Universidad de Lima Recreation, Wellness, and Student Life Center

El vidrio es un material de construcción que se utiliza en diversas aplicaciones debido a sus propiedades estéticas y funcionales. Es un material transparente,resistente,dura dero y fácil de limpiar.

El hierro es un material de construcción ampliamente utilizado debido a su alta resistencia y durabilidad. Se utiliza en diversas aplicaciones, como estructuras de edificios, puentes, torres de energía, tuberías, barandillas y puertas.

El acero también es un mate rialeconómicoyfácildetraba jar en comparación con otros materiales de construcción, lo que lo hace popular en la industria de la construcción.

El enlucido, también conocido comoyesooestuco,esunmaterial de construcción utilizado para cubrir y alisar superficies interiores y exteriores de paredes y techos. Se compone de una mezcla de yeso, agua y

POLICARBONATO

La madera es un material de construcciónnaturalyrenova ble que se ha utilizado durante siglos debido a su versatilidad, belleza y facilidad de trabajo.

El concreto es un material de construcción ampliamente utilizado debido a su alta resistencia, durabilidad y capacidad para soportar cargas pesadas. Se compone de una mezcla de cemento, agua,agregados(comoarenay grava) y aditivos.

El policarbonato es un material de construcción transparente y resistente que se utiliza en diversas aplicaciones, como techos, paredes divisorias, claraboyas, invernaderos y cubiertas de piscinas.

HIERRO ACERO ENLUCIDO CONCRETO
MATERIALIDAD
© Eleazar Cuadros
ABAJO ABAJO ABAJO ABAJO ABAJO ABAJO ABAJO ABAJO ARRIBA ARRIBA ARRIBA ARRIBA ARRIBA ABAJO ABAJO ARRIBA arriba ABAJO AB 10 10 11 11 10 10 11 11 10 10 11 11 10 10 11 11 10 10 11 11 10 10 11 11 10 10 11 11 1 : 500 Nivel 1 1 : 500 A101 2 Nivel 2 1 : 500 A101 3 Nivel 3 1 : 500 A101 4 Nivel 4 1 : 500 A101 5 Nivel 5 1 : 500 A101 6 Este 1 500 A101 7 Norte 1 500 A101 8 Oeste 1 500 A101 9 Sur 1 500 A101 10 Sección 1 1 : 500 A101 11 Sección 2 A101 12 {3D}

Universidad de Lima Recreation, Wellness, and Student Life Center

BIBLIOGRAFÍA

Universidad de Lima Recreation, Wellness, and Student Life Center / Sasaki. (2023,April 20).ArchDaily. https://www.archdaily.com/999759/universidad-de-lima-recreation-wellness-and-student-life-center-sasaki

Glass. (2023). Lenntech.es. https://www.lenntech.es/library/glass.htm#:~:text=El%20vidrio%20es%20un%20material%20duro%2C%20normalmente%20fr%C3%A1gil,son%20enfriados%20r%C3%A1pidament e%20para%20formar%20una%20estructura%20r%C3%ADgida.

Equipo editorial, Etecé. (2018, November 26).Acero: qué es, propiedades, tipos, usos y características. Enciclopedia Humanidades; Enciclopedia Humanidades. https://humanidades.com/acero/

Account Suspended. (2023). Delconstructor.com.uy. https://www.delconstructor.com.uy/cgi-sys/suspendedpage.cgi#:~:text=El%20sistema%20constructivo%20es%20un%20conjunto%20de%20elementos%2C,que%20permite%20levanta r%20muros%2C%20hacer%20pisos%20y%20techos.

Arqhys Contenidos. (2012, December 11). LAS ZONAS RECREATIVAS Y SU FUNCIÓN DE CONTROL. Esto tiene de por si una importancia muy grande en el análisis Leer contenido... Portal deArquitecturaARQHYS.com;Arqhys.com. https://www.arqhys.com/contenidos/recreativas-zonas.html

REFERENCIAS

Turn static files into dynamic content formats.

Create a flipbook
Issuu converts static files into: digital portfolios, online yearbooks, online catalogs, digital photo albums and more. Sign up and create your flipbook.