Gabrielle Scavuzzo

Page 1

ROAMERS’ HOME

GABBY SCAVUZZO

WHAT MAKES A HOUSE A HOME?

WHAT CAN I LEARN ABOUT DIFFERENT TRANSIENT LIFESTYLES, IN ORDER TO CREATE A SPACE BASED ON THEIR NEEDS?

IS THERE ANY ASPECTS OF DESIGN THAT CONTRIBUTES TO THEIR LIFESTYLE THAT CAN BE ADDED OR IMPROVED UPON?

CONCEPT

TRUCK DRIVERS

USER GROUPS

HOMELESS

MODERN-DAY NOMAD

FLORENCE, KY
SITE
EXISTING PROPOSED
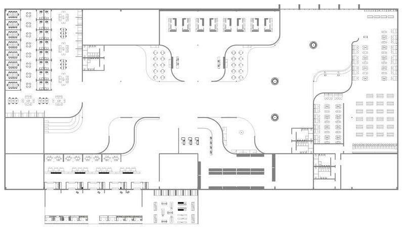
PROGRAM
EXPLODED SITE AXON

PUBLIC SPACE

GRAB AND GO FOOD

MARKET

COWORKING
BOH BOH BOH BOH BOH BOH
RESTAURANT BOH RETAIL
LOBBY
EAST SECTION WEST SECTION
OUTDOOR MARKET INDOOR MARKETS
COWORKING RESTUARANT

FIRST FLOOR

TRUCK SUITE

SECOND FLOOR

FIRST

FLOOR

CAR SUITE

SECOND FLOOR

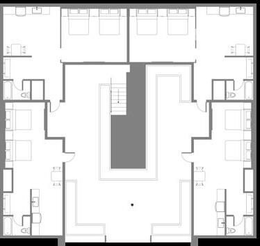
HOTEL SUITES

FIRST FLOOR
SECOND FLOOR
COMMON SPACE BETWEEN SUITES HOTEL SUITE

HOTEL SITE PLAN

CAR STYLE
TRUCK STYLE

Turn static files into dynamic content formats.

Create a flipbook
Issuu converts static files into: digital portfolios, online yearbooks, online catalogs, digital photo albums and more. Sign up and create your flipbook.
Gabrielle Scavuzzo by DAAP | School of Architecture and Interior Design - Interiors Capstone - Issuu