Bryan Sim Work Portfolio 2020-2023

Page 1

2020-2023

Bryan Sim Work Samples
2

Education University of Tennessee, Knoxville

Bachelor of Architecture

University of Arkansas Rome Center

Study Abroad

Experience

Fusa Designs - Architectural Designer

bryansim24@gmail.com +1(615)-946-4478

2014-2019

2018

2022-2023

Managed small-scale projects from single-family to small apartment buildings. Handled projects that involved renovations, additions, and ground-up construction. Developed zoning submissions and presentations, schematic sets, and construction documents. Surveyed Sites. Helped implement a project management program (Asaana).

Aerotek/Actalent - Contracted Architectural Designer

JDavis Architects- Assited in the development of construction drawings using Revit and AutoCAD.

VLBJR+- Aided in production of construction drawings using AutoCAD.

Barton Partners Architects, Planners - Architectural Designer

Edited, annotated, and drafted architectural drawings. Worked on various multi-family and mixed-use projects in varying scales and densities. Helped push projects from schematic design to pricing sets. Worked on projects that involved demolition, renovation, and ground-up construction. Worked remotely during the Covid-19 Pandemic.

Affiliations American Institue of Architecture Students

2020-2022

2019-2020

AIAS National Forum Attendee | 2018 | Seattle, WA South Quad Volunteer | 2019 | Knoxville, TN

Construction Specifications Institute

2018-2019 Student Chapter President | 2018-2019

Skills Building Information Modeling/ Computer Aided Design

Autodesk Revit, AutoCAD, Bluebeam, Rhino 3d

Graphic Design

Adobe Photoshop, Illustrator, InDesign, Lightroom Design + Build

Large-Scale Woodworking, Scale Model Building, Abrasive Water Jet, CNC Milling, Laser Cutter

2018-2019

3
4

Table of Contents

Fusa Designs

- 143 E Allen St

- 1821 Montrose St

VLBJR+

- Holmdel Rendered Elevations

JDavis Architects

- Shelly Lake Condos Wall Sections

- Brightleaf Commons Elevations

5
6

Fusa Designs

7
143 E. Allen St. & 1821 Montrose St.
8 143 E. ALLEN
9 622 North Third Street a Philadelphia, Pennsylvania 19123 215.413.9012 215.922.4588 p f ALLEN
September 20, 2018
ST.

143 E. Allen St.

10
Philadelphia, PA DRAWING LIST PROJECT DIRECTORY___________________________________________________________________ PROJECT INFORMATION
11 EDWARD FINK RICHARD STANGE tel 215.922.4588 fax 215.413.9012 SEAL ARCHITECTS CLIENT/PROJECT PAUL SHERMAN; DIANE CLEMENS 143 E ALLEN ST. PHILADELPHIA, PA 19125 PHONE: (267) 258-8939 EMAIL: mar41703@yahoo.com 03/31/23 ZONING SUBMITTAL 04/14/23 ZONING REVISION 1. 04/21/23 ZONING REVISION 2. Z1.1 2 1. 2
12 1821 Montrose
13 2431 Kensington Ave. a Philadelphia, Pennsylvania 19125 215.413.9012 215.922.4588 p f Montrose St XXXX XX, XXXX

1821 Montrose St.

14
Philadelphia, PA DRAWING LIST PROJECT DIRECTORY___________________________________________________________________ PROJECT INFORMATION
15 EDWARD FINK RICHARD STANGE tel 215.922.4588 fax 215.413.9012 SEAL ARCHITECTS CLIENT/PROJECT 1821 MONTROSE ST. Vincent Manzo Jr. & Teresa Manzo 759 S. 7th St. Philadelphia, PA 19147 07/06/23 ZONING SUBMITTAL
16
17 VLJBR+ Holmdel Rendered Elevations
18
Barclay Square Holmdel Township, Exterior
19 vlbjr +
+
+
architecture
town planning
urban design
Exterior
Square Holmdel Township, New Jersey
Render January, 2021
20
Holmdel
Barclay Square
Township, Exterior
21 vlbjr + architecture + town planning + urban design
New Jersey Exterior
Square Holmdel Township,
Render January, 2021
22

JDavis Architects

23
Shelly Lake Condos Wall Sections
24 02-B1-SECOND FLOOR 333' - 0" 03-B1-THIRD FLOOR 344' - 8 1/4" 04-B1-FOURTH FLOOR 356' - 4 1/2" B1-ROOF TRUSS BEARING 366' - 6" 02-LOBBIES/B2 SECOND FLOOR 323' - 0" GARAGE RESIDENTIAL UNIT RESIDENTIAL UNIT RESIDENTIAL UNIT RESIDENTIAL UNIT RESIDENTIAL UNIT RESIDENTIAL UNIT UL -L521 UL -L521 UL -P522 10' 1/2" 1' 3/4" 10' 1 1/2" 1' 6 3/4" 10' 1/2" 10' 0" GARAGE SLAB, SEE STRUCTURAL 10 MIL VAPOR BARRIER 4" GRAVEL, COORDINATE WITH GEOTECHNICAL ENGINEER NFPA 13 SPRINKLER HEAD IN GARAGE TO BE MIN 7'-0" ABOVE FLOOR. USE CONCEALED SPRINKLER HEAD WHERE NEEDED. SPRINKLER HEAD TO BE MIN 8'-2" ABOVE FLOOR AT VAN HC SPACE AND DRIVE AISLE TO ACCESS VAN HC SPACE POST-TENSIONED CONCRETE SLAB, SEE STRUCTURAL UL -U341 UL -U341 UL -U341 P.T. SILL PLATE, SEE STRUCTURAL 2x6 STUD WALL, SEE STRUCTURAL 5/8" TYPE 'X' GWB ON RESILIENT CHANNELS R-19 SOUND BATTS, TYP. UL -L521 NFPA 13R SPRINKLER SYSTEM, COORD. W/ FIRE PROTECTION BY OTHERS 5/8" TYPE 'X' GWB ON RESILIENT CHANNELS R-19 SOUND BATTS, TYP. NFPA 13R SPRINKLER SYSTEM, COORD. W/ FIRE PROTECTION 5/8" TYPE 'X' GWB ON RESILIENT CHANNELS NFPA 13R SPRINKLER SYSTEM, COORD. W/ FIRE PROTECTION MIN R-15 SOUND ATTENUATION BATTS, BOTH WALLS NOMINAL 2" THICK FIRESTOP, SEE STRUCTURAL NOMINAL 2" THICK FIRESTOP, SEE STRUCTURAL NOMINAL 2" THICK FIRESTOP, SEE STRUCTURAL 1/2" GWB DRAFTSTOPPING BETWEEN EVERY UNIT AND IN LINE WITH TENANT SEPARATION WALL BELOW, SEE STRUCTURAL 2x6 STUD WALL, SEE STRUCTURAL PROVIDE VERTICAL FIRE BLOCKING FOR FULL WIDTH OF WALL. SEE UL DETAIL ON SHEET A0.05 PROVIDE VERTICAL FIRE BLOCKING FOR FULL WIDTH OF WALL. SEE UL DETAIL ON SHEET A0.05 PROVIDE VERTICAL FIRE BLOCKING FOR FULL WIDTH OF WALL. SEE UL DETAIL ON SHEET A0.05 UL -L521 UL -P522 MECHANICALLY FASTENED 60 MIL TPO MEMBRANE ROOFING ON COVER BOARD PER CLASS 'B' ROOF OVER MIN R-20 RIGID INSULATION ON ROOF DECK -SEE STRUC DRAWINGS 1" GYPCRETE ON 3/8" ACOUSTIMAT ON 3/4" PLYWOOD SUBFLOOR 1/2" GWB DRAFTSTOPPING -SEE ROOF PLANS FOR LOCATIONS PRE-MANUFACTURED TOP-CHORD SLOPING WOOD ROOF TRUSS INSTALL PUTTY PAD (ACOUSTICAL OR ENTUMESCENT) ON BACK SIDE OF ELECTRICAL BOXES IN TENANT SEPARATION WALLS INSTALL PUTTY PAD (ACOUSTICAL OR ENTUMESCENT) ON BACK SIDE OF ELECTRICAL BOXES IN TENANT SEPARATION WALLS R-21 SPRAY FOAM INSULATION TIGHT TO UNDERSIDE OF PT SLAB PLACE SPRINKLER LINE BELOW INSULATION R-11 BATT INSULATION TIGHT TO UNDER SIDE OF ROOF SHEATHING 02-B1-SECOND FLOOR 333' - 0" 03-B1-THIRD FLOOR 344' - 8 1/4" 04-B1-FOURTH FLOOR 356' - 4 1/2" B1-ROOF TRUSS BEARING 366' - 6" 02-LOBBIES/B2 SECOND FLOOR 323' - 0" RESIDENTIAL UNIT RESIDENTIAL UNIT RESIDENTIAL UNIT RESIDENTIAL UNIT RESIDENTIAL UNIT RESIDENTIAL UNIT UL -L521 UL -L521 UL -L521 UL -L521 UL -P522 GARAGE 10' 1/2" 1' 3/4" 10' 1 1/2" 1' 6 3/4" 10' 1/2" 10' 0" 'H' SHAPED NO. 25 MSG GALV. STEEL STUDS 24" O.C. TO RECIEVE GYPSUM LINER PANLES UL -U336 CONFIG. 'B' UL -U336 CONFIG. 'B' UL -U336 CONFIG. 'B' 2x6 STUD WALL, SEE STRUCTURAL P.T. SILL PLATE, SEE STRUCTURAL GARAGE SLAB, SEE STRUCTURAL 10 MIL VAPOR BARRIER 4" GRAVEL, COORDINATE WITH GEOTECHNICAL ENGINEER 5/8" TYPE 'X' GWB ON RESILIENT CHANNELS R-19 SOUND BATTS, TYP. ALUMINUM BURN CLIPS; SEE UL DETAILS FOR REQUIREMENTS 1/2" DRAFTSTOPPING ON EACH SIDE AT EACH FLOOR 1" GYPCRETE ON 3/8" ACOUSTI-MAT ON 3/4" PLYWOOD SUBFLOOR 5/8" TYPE 'X' GWB ON RESILIENT CHANNELS R-19 SOUND BATTS, TYP. 5/8" TYPE 'X' GWB ON RESILIENT CHANNELS ON PREMANUFACTURED TOP-CHORD SLOPING ROOF TRUSS UL-U336 EXTEND TO UNDERSIDE OF ROOF SHEATHING FIRE CAULKING AT GWB TO GYPCRETE AND SUBFLOOR JOINT MIN R-15 BATT INSUALTION ON BOTH SIDES NFPA 13 SPRINKLER HEAD IN GARAGE TO BE MIN 7'-0" ABOVE FLOOR. USE CONCEALED SPRINKLER HEAD WHERE NEEDED. SPRINKLER HEAD TO BE MIN 8'-2" ABOVE FLOOR AT VAN HC SPACE AND DRIVE AISLE TO ACCESS VAN HC SPACE POST TENSIONED CONCRETE SLAB, SEE STRUCTURAL MECHANICALLY FASTENED 60 MIL TPO MEMBRANE ROOFING ON COVER BOARD PER CLASS 'B' ROOF OVER MIN R-20 RIGID INSULATION ON ROOF DECK -SEE STRUC DRAWINGS NON-COMBUSTIBLE ROOF SHEATHING TO EXTEND 4' BEYOND 2 HR FIRE WALL PER 706.6 NOTE 4 EXCEPTION IN 2018 NC BUILDING CODE PROVIDE FIRE SAFING BETWEEN GWB AND LINEAR PANEL CLOSE GAP INSTALL PUTTY PAD (ACOUSTICAL OR ENTUMESCENT) ON BACK SIDE OF ELECTRICAL BOXES IN TENANT SEPARATION WALLS INSTALL PUTTY PAD (ACOUSTICAL OR ENTUMESCENT) ON BACK SIDE OF ELECTRICAL BOXES IN TENANT SEPARATION WALLS INSTALL PUTTY PAD (ACOUSTICAL OR ENTUMESCENT) ON BACK SIDE OF ELECTRICAL BOXES IN TENANT SEPARATION WALLS R-21 SPRAY FOAM INSUALTION TIGHT TO UNDERSIDE OF PT SLAB PLACE SPRINKLER LINE BELOW INSULATION R-11 BATT INSULATION TIGHT TO UNDER SIDE OF ROOF SHEATHING 02-B1-SECOND FLOOR 333' - 0" 03-B1-THIRD FLOOR 344' - 8 1/4" 04-B1-FOURTH FLOOR 356' - 4 1/2" B1-ROOF TRUSS BEARING 366' - 6" 02-LOBBIES/B2 SECOND FLOOR 323' - 0" 01-B1 FIRST FLOOR 321' - 0" CORRIDOR RESIDENTIAL UNIT RESIDENTIAL UNIT CORRIDOR RESIDENTIAL UNIT RESIDENTIAL UNIT CORRIDOR RESIDENTIAL UNIT RESIDENTIAL UNIT GARAGE GARAGE SLAB, SEE STRUCTURAL. SEE GARAGE PLANS FOR SLOPE 10 MIL VAPOR BARRIER 4" GRAVEL, COORDINATE WITH GEOTECHNICAL ENGINEER NFPA 13 SPRINKLER. SPRINKLER HEAD TO BE MIN. 7'-0" ABOVE FLOOR. USE CONCEALED SPRINKLER HEAD WHERE NEEDED POST-TENSIONED CONCRETE SLAB, SEE STRUCTURAL UL -U305 UL -L521 UL -L521 UL -L521 UL -L521 UL -P522 UL -P522 UL -U305 UL -U305 5/8" TYPE 'X' GWB OVER RESILIENT CHANNELS ON CORRIDOR SIDE ONLY P.T. SILL PLATE, SEE STRUCTURAL 2x6 STUD WALL, SEE STRUCTURAL 5/8" TYPE 'X' GWB ON RESILIENT CHANNELS R-19 SOUND BATTS, TYP. NFPA 13R SPRINKLER SYSTEM, COORD. W/ FIRE PROTECTION UL -U305 UL -U305 UL -U305 UL -L521 UL -L521 UL -P522 1" GYPCRETE ON 3/8" ACOUSTI-MAT ON 3/4" PLYWOOD SUBFLOOR 1" GYPCRETE ON 3/8" ACOUSTI-MAT ON 3/4" PLYWOOD SUBFLOOR TOP CHORD BEARING WOOD FLOOR TRUSS IN CORRDIOR, SEE STRUCTURAL SEE MECH. DWGS FOR DUCT WORK SIZE AND LOCATIONS MIN R-15 SOUND ATTENUATION BATTS W/ 5/8" GWB 5/8" TYPE 'X' GWB ON RESILIENT CHANNELS R-19 SOUND BATTS, TYP. NFPA 13R SPRINKLER SYSTEM, COORD. W/ FIRE PROTECTION 5/8" TYPE 'X' GWB ON RESILIENT CHANNELS ON TOP-CHORD SLOPING ROOF TRUSS NFPA 13R SPRINKLER SYSTEM, COORD. W/ FIRE PROTECTION ROOF CONDENSING UNITS ON (4) SPRING ISOLATORS WITH STEEL HOUSING BRACKETS OVER PLASTIC PAD PROVIDE VIBRATION/SOUND ISOLATION CLIPS AT ROOF AND UNDER HEAT PUMP UNITS MECHANICALLY FASTENED 60 MIL TPO MEMBRANE ROOFING ON COVER BOARD PER CLASS 'B' ROOF OVER MIN R-20 RIGID INSULATION ON ROOF DECK -SEE STRUC DRAWINGS 5/8" TYPE 'X' GWB OVER RESILIENT CHANNELS ON CORRIDOR SIDE ONLY 5/8" TYPE 'X' GWB OVER RESILIENT CHANNELS ON CORRIDOR SIDE ONLY CL 1 2 12 A9.03 6 ALT. FRAMING R-21 SPRAY FOAM INSULATION TIGHT TO UNDERSIDE OF PT SLAB WITH 15 MINUTES IGNITION BARRIER 10' 1/2" 11' 8 1/4" 11' 1/4" 10' 0" PLACE SPRINKLER LINE BELOW INSULATION 1 2 / 12 ROOF MEMBRANE WALK PAD R-11 BATT INSULATION TIGHT TO UNDER SIDE OF ROOF SHEATHING MECH. DUCT, SEE MECH. DRAWINGS MECH. DUCT, SEE MECH. DRAWINGS DRAWN BY: © 2015 JDAVIS ARCHITECTS EXPRESSLY RESERVES ITS COMMON LAW COPYRIGHT AND OTHER PROPERTY RIGHTS IN THESE PLANS. THESE PLANS ARE NOT TO BE REPRODUCED, CHANGED OR COPIED IN ANY FORM OR MANNER WHATSOEVER, NOR ARE THEY TO BE ASSIGNE D TO ANY THIRD PARTY WITHOUT FIRST OBTAINING THE EXPRESSED WRITTEN PERMISSION AND CONSENT OF JDAVIS ARCHITECTS, PLLC. CHECKED BY: CONTENT: REVISIONS: ISSUE: PROJECT: DATE 510 South Wilmington Street Raleigh, NC 27601 el 919.835.1500 1218 Chestnut Street, 7th Floor | Philadelphia, PA 19107 tel 215.545.0121 City Staff Comments 04/02/2021 20030 NORTH HILLS DRIVE CONDOMINIUM NORTH HILLS DRIVE, RALEIGH, NC NORTH HILLS INVESTMENT PARTNERS, LLC WALL SECTIONS A8.01 Author Checker NOTFOR CONSTRUCTION 05/13/2021 1/2" = 1'-0" 3 TYPICAL TENANT SEPARATION 1/2" = 1'-0" 2 TYPICAL FIRE WALL SECTION 1/2" = 1'-0" 1 TYPICAL CORRIDOR SECTION
25 02-B1-SECOND FLOOR 333' - 0" 03-B1-THIRD FLOOR 344' - 11" 04-B1-FOURTH FLOOR 356' - 10" B1 - UNDERSIDE OF BOTTOM CHORD OF ROOF JOIST 366' - 11 1/2" 02-LOBBIES/B2 SECOND FLOOR 323' - 0" GARAGE RESIDENTIAL UNIT RESIDENTIAL UNIT RESIDENTIAL UNIT RESIDENTIAL UNIT RESIDENTIAL UNIT RESIDENTIAL UNIT 10' 1 1/2" 1' 1/2" 10' 1/2" 1' 1/2" 10' 1/2" 10' 0" GARAGE SLAB, SEE STRUCTURAL 10 MIL VAPOR BARRIER 4" GRAVEL, COORDINATE WITH GEOTECHNICAL ENGINEER NFPA 13 SPRINKLER HEAD IN GARAGE TO BE MIN 7'-0" ABOVE FLOOR. USE CONCEALED SPRINKLER HEAD WHERE NEEDED. SPRINKLER HEAD TO BE MIN 8'-2" ABOVE FLOOR AT VAN HC SPACE AND DRIVE AISLE TO ACCESS VAN HC SPACE POST-TENSIONED CONCRETE SLAB, SEE STRUCTURAL UL -U493 CFS RUNNER CHANNEL, SEE STRUCTURAL METAL STUD WALL, SEE STRUCTURAL 5/8" TYPE 'X' GWB ON RESILIENT CHANNELS R-19 SOUND BATTS, TYP. NFPA 13R SPRINKLER SYSTEM, COORD. W/ FIRE PROTECTION BY OTHERS 5/8" TYPE 'X' GWB ON RESILIENT CHANNELS R-19 SOUND BATTS, TYP. NFPA 13R SPRINKLER SYSTEM, COORD. W/ FIRE PROTECTION 5/8" TYPE 'X' GWB ON RESILIENT CHANNELS NFPA 13R SPRINKLER SYSTEM, COORD. W/ FIRE PROTECTION MIN R-15 SOUND ATTENUATION BATTS, BOTH WALLS NOMINAL 2" THICK FIRESTOP, SEE STRUCTURAL 1/2" TYPE 'X' GWB DRAFTSTOPPING BETWEEN EVERY UNIT AND IN LINE WITH TENANT SEPARATION WALL BELOW, SEE STRUCTURAL METAL STUD WALL, SEE STRUCTURAL PROVIDE VERTICAL FIRE BLOCKING FOR FULL WIDTH OF WALL. SEE UL DETAIL ON SHEET A0.05 PROVIDE VERTICAL FIRE BLOCKING FOR FULL WIDTH OF WALL. SEE UL DETAIL ON SHEET A0.05 PROVIDE VERTICAL FIRE BLOCKING FOR FULL WIDTH OF WALL. SEE UL DETAIL ON SHEET A0.05 MECHANICALLY FASTENED 60 MIL TPO MEMBRANE ROOFING ON COVER BOARD PER CLASS 'B' ROOF OVER MIN R-20 RIGID INSULATION ON METAL DECK ON ROOF JOIST -SEE STRUC DRAWINGS X PRE-MANUFACTURED TOP-CHORD SLOPING STEEL TRUSS INSTALL PUTTY PAD (ACOUSTICAL OR ENTUMESCENT) ON BACK SIDE OF ELECTRICAL BOXES IN TENANT SEPARATION WALLS INSTALL PUTTY PAD (ACOUSTICAL OR ENTUMESCENT) ON BACK SIDE OF ELECTRICAL BOXES IN TENANT SEPARATION WALLS R-21 SPRAY FOAM INSULATION TIGHT TO UNDERSIDE OF PT SLAB PLACE SPRINKLER LINE BELOW INSULATION R-11 BATT INSULATION TIGHT TO UNDER SIDE OF METAL DECK UL -U493 UL -U493 10' 1 1/2" ECOSPAN COMPOSITE FLOOR SYSTEM: X" CONCRETE ON METAL DECKING ON 18" DEEP STEEL JOIST 43' 11 1/2" UL -G561 1 HOUR UL -G561 1 HOUR UL -G561 1 HOUR UL -G561 1 HOUR UL -P522 1 HOUR UL -P522 1 HOUR 02-B1-SECOND FLOOR 333' - 0" 03-B1-THIRD FLOOR 344' - 11" 04-B1-FOURTH FLOOR 356' - 10" B1 - UNDERSIDE OF BOTTOM CHORD OF ROOF JOIST 366' - 11 1/2" 02-LOBBIES/B2 SECOND FLOOR 323' - 0" RESIDENTIAL UNIT RESIDENTIAL UNIT RESIDENTIAL UNIT RESIDENTIAL UNIT RESIDENTIAL UNIT RESIDENTIAL UNIT GARAGE 10' 1 1/2" 1' 9 1/2" 10' 1 1/2" 1' 1/2" 10' 1/2" 10' 0" 'H' SHAPED NO. 25 MSG GALV. STEEL STUDS 24" O.C. TO RECIEVE GYPSUM LINER PANELS UL -U336 CONFIG. 'B' UL -U336 CONFIG. 'B' UL -U336 CONFIG. 'B' METAL STUD WALL, SEE STRUCTURAL CFS RUNNER CHANNEL, SEE STRUCTURAL GARAGE SLAB, SEE STRUCTURAL 10 MIL VAPOR BARRIER 4" GRAVEL, COORDINATE WITH GEOTECHNICAL ENGINEER 5/8" TYPE 'X' GWB ON RESILIENT CHANNELS R-19 SOUND BATTS, TYP. ALUMINUM BURN CLIPS; SEE UL DETAILS FOR REQUIREMENTS 1/2" DRAFTSTOPPING ON EACH SIDE AT EACH FLOOR X 5/8" TYPE 'X' GWB ON RESILIENT CHANNELS R-19 SOUND BATTS, TYP. 5/8" TYPE 'X' GWB ON RESILIENT CHANNELS ON PREMANUFACTURED TOP-CHORD SLOPING ROOF TRUSS UL-U336 EXTEND TO UNDERSIDE OF METAL DECK FIRE CAULKING AT GWB TO GYPCRETE AND SUBFLOOR JOINT MIN R-15 BATT INSUALTION ON BOTH SIDES NFPA 13 SPRINKLER HEAD IN GARAGE TO BE MIN 7'-0" ABOVE FLOOR. USE CONCEALED SPRINKLER HEAD WHERE NEEDED. SPRINKLER HEAD TO BE MIN 8'-2" ABOVE FLOOR AT VAN HC SPACE AND DRIVE AISLE TO ACCESS VAN HC SPACE POST TENSIONED CONCRETE SLAB, SEE STRUCTURAL MECHANICALLY FASTENED 60 MIL TPO MEMBRANE ROOFING ON COVER BOARD PER CLASS 'B' ROOF OVER MIN R-20 RIGID INSULATION ON METAL DECK ON ROOF JOIST SEE STRUC DRAWINGS NON-COMBUSTIBLE ROOF SHEATHING TO EXTEND 4' BEYOND 2 HR FIRE WALL PER 706.6 NOTE 4 EXCEPTION IN 2018 NC BUILDING CODE PROVIDE FIRE SAFING BETWEEN GWB AND LINEAR PANEL CLOSE GAP INSTALL PUTTY PAD (ACOUSTICAL OR ENTUMESCENT) ON BACK SIDE OF ELECTRICAL BOXES IN TENANT SEPARATION WALLS INSTALL PUTTY PAD (ACOUSTICAL OR ENTUMESCENT) ON BACK SIDE OF ELECTRICAL BOXES IN TENANT SEPARATION WALLS INSTALL PUTTY PAD (ACOUSTICAL OR ENTUMESCENT) ON BACK SIDE OF ELECTRICAL BOXES IN TENANT SEPARATION WALLS R-21 SPRAY FOAM INSUALTION TIGHT TO UNDERSIDE OF PT SLAB PLACE SPRINKLER LINE BELOW INSULATION R-11 BATT INSULATION TIGHT TO UNDER SIDE OF METAL DECK ECOSPAN COMPOSITE FLOOR SYSTEM: X" CONCRETE ON METAL DECKING ON 18" DEEP STEEL JOIST 43' 11 1/2" UL -G561 1 HOUR UL -G561 1 HOUR UL -G561 1 HOUR UL -G561 1 HOUR UL -P522 1 HOUR 02-B1-SECOND FLOOR 333' - 0" 03-B1-THIRD FLOOR 344' - 11" 04-B1-FOURTH FLOOR 356' - 10" B1 - UNDERSIDE OF BOTTOM CHORD OF ROOF JOIST 366' - 11 1/2" 02-LOBBIES/B2 SECOND FLOOR 323' - 0" 01-B1 FIRST FLOOR 321' - 0" CORRIDOR RESIDENTIAL UNIT RESIDENTIAL UNIT CORRIDOR RESIDENTIAL UNIT RESIDENTIAL UNIT CORRIDOR RESIDENTIAL UNIT RESIDENTIAL UNIT GARAGE GARAGE SLAB, SEE STRUCTURAL. SEE GARAGE PLANS FOR SLOPE 10 MIL VAPOR BARRIER 4" GRAVEL, COORDINATE WITH GEOTECHNICAL ENGINEER NFPA 13 SPRINKLER. SPRINKLER HEAD TO BE MIN. 7'-0" ABOVE FLOOR. USE CONCEALED SPRINKLER HEAD WHERE NEEDED POST-TENSIONED CONCRETE SLAB, SEE STRUCTURAL UL -P522 1HOUR (2) LAYERS OF 5/8" TYPE 'X' GWB OVER RESILIENT CHANNELS ON CORRIDOR SIDE ONLY CFS RUNNER CHANNEL, SEE STRUCTURAL 5 1/2" METAL STUD WALL, SEE STRUCTURAL 5/8" TYPE 'X' GWB ON RESILIENT CHANNELS R-19 SOUND BATTS, TYP. NFPA 13R RECESSED SPRINKLER SYSTEM, COORD. W/ FIRE PROTECTION X X SEE MECH. DWGS FOR DUCT WORK SIZE AND LOCATIONS MIN R-15 SOUND ATTENUATION BATTS W/ 5/8" GWB 5/8" TYPE 'X' GWB ON RESILIENT CHANNELS R-19 SOUND BATTS, TYP. NFPA 13R RECESSED SPRINKLER SYSTEM, COORD. W/ FIRE PROTECTION 5/8" TYPE 'X' GWB ON RESILIENT CHANNELS ON TOP-CHORD SLOPING ROOF TRUSS NFPA 13R RECESSED SPRINKLER SYSTEM, COORD. W/ FIRE PROTECTION ROOF CONDENSING UNITS ON (4) SPRING ISOLATORS WITH STEEL HOUSING BRACKETS OVER PLASTIC PAD PROVIDE VIBRATION/SOUND ISOLATION CLIPS AT ROOF AND UNDER HEAT PUMP UNITS MECHANICALLY FASTENED 60 MIL TPO MEMBRANE ROOFING ON COVER BOARD PER CLASS 'B' ROOF OVER MIN R-20 RIGID INSULATION ON METAL DECK ON ROOF JOIST -SEE STRUC DRAWINGS (2) LAYERS OF 5/8" TYPE 'X' GWB OVER RESILIENT CHANNELS ON CORRIDOR SIDE ONLY (2) LAYERS OF 5/8" TYPE 'X' GWB OVER RESILIENT CHANNELS ON CORRIDOR SIDE ONLY 1/2 12 R-21 SPRAY FOAM INSULATION TIGHT TO UNDERSIDE OF PT SLAB WITH 15 MINUTES IGNITION BARRIER 10' 1 1/2" 11' 11" 11' 11" 10' 0" PLACE SPRINKLER LINE BELOW INSULATION 1 2 12 ROOF MEMBRANE WALK PAD R-11 BATT INSULATION TIGHT TO UNDER SIDE OF METAL DECK MECH. DUCT, SEE MECH. DRAWINGS MECH. DUCT, SEE MECH. DRAWINGS UL -D916 UL -G561 1 HOUR UL -D916 ECOSPAN COMPOSITE FLOOR SYSTEM: X" CONCRETE ON METAL DECKING ON 18" DEEP STEEL JOIST 43' 11 1/2" UL -U425 1 HOUR UL -U425 1 HOUR UL -U425 1 HOUR UL -U425 1 HOUR UL -G561 1 HOUR METAL DECKING METAL DECKING UL -U425 1 HOUR UL -U425 1 HOUR DRAWN BY: © 2015 JDAVIS ARCHITECTS EXPRESSLY RESERVES ITS COMMON LAW COPYRIGHT AND OTHER PROPERTY RIGHTS IN THESE PLANS. THESE PLANS ARE NOT TO BE REPRODUCED, CHANGED OR COPIED IN ANY FORM OR MANNER WHATSOEVER, NOR ARE THEY TO BE ASSIGNED TO ANY THIRD PARTY WITHOUT FIRST OBTAINING THE EXPRESSED WRITTEN PERMISSION AND CONSENT OF JDAVIS ARCHITECTS, PLLC. CHECKED BY: CONTENT: REVISIONS: ISSUE: PROJECT: DATE 510 South Wilmington Street Raleigh, NC 27601 el 919.835.1500 1218 Chestnut Street, 7th Floor | Philadelphia, PA 19107 | tel 215.545.0121 City Staff Comments 04/02/2021 Pricing Set 10/07/2021 20030 NORTH HILLS DRIVE CONDOMINIUM NORTH HILLS DRIVE, RALEIGH, NC NORTH HILLS INVESTMENT PARTNERS, LLC WALL SECTIONS A8.01 Author Checker NOTFOR CONSTRUCTION 10/07/2021 1/2" = 1'-0" 3 TYPICAL TENANT SEPARATION 1/2" = 1'-0" 2 TYPICAL FIRE WALL SECTION 1/2" = 1'-0" 1 TYPICAL CORRIDOR SECTION

Shelly Lake Condos were a set of condos in development in Raleigh, NC. During my time on the project, the team decided to change the construction type from wood stud construction to metal stud and eco-span construction. I was tasked with updating the wall sections to match the new construction.

26 02-B1-SECOND FLOOR 333' - 0" ---02-LOBBIES/B2 SECOND FLOOR 323' - 0"RESIDENTIAL UNIT CONNECTION TO STORM SYSTEM, REINFORCED CONCRETE ON 10MIL POLY VAPOR BARRIER ON 4" GRAVEL FILL SLOPED TO DRAIN PER FIRST FLOOR PLAN DOUBLE HUNG COMPOSITE WINDOW WITH TRANSOM 5/8" TYP 'X' GWB ON RESILIENT CHANNELS 5/8" TYP 'X' GWB ON RESILIENT CHANNELS ON PRE-MANUFACTURED TOP-CHORD SLOPING ROOF TRUSS DOUBLE HUNG COMPOSITE WINDOW WITH TRANSOM 2x WINDOW HEADER, SEE STRUCTURAL 2x WINDOW HEADER, SEE STRUCTURAL 2x WINDOW HEADER, SEE STRUCTURAL WEATHER RESISTANT BARRIER ON EXTERIOR SHEATHING ON 2x6 STUD WALL. WRB WITH AIR PERMEANCE NO LARGER 6" EXP. CEMENTITIOUS LAP SIDING R-19 BATT INSULATION IN 2x6 STUD WALL R-19 SOUND BATTS, TYP. PREFINISHED ALUMINUM METAL COPING HEAD TO BE MIN 8'-2" ABOVE FLOOR AT VAN HC SPACE AND DRIVE AISLE TO ACCESS VAN HC SPACE UL -L521 5/4 15 CEMENTITIOUS PANEL 5/4 CEMENTITIOUS TRIM 5/8" GWB MASONRY ROWLOCK SILL SLOPE TIGHT TO UNDERSIDE OF PT SLAB 1/4" 1/4" 2' HDR. HT. 1/4" 51' T.O. LOW PARAPET REINFORCED CIP WALL SEE STRUCTURAL DRAINAGE MAT WATER STOP 1" GYPCRETE ON 3/8" ACOUSTI-MAT ON 3/4" PLYWOOD SUBFLOOR UL -U356 5/8" GWB BRICK SOLDIER COURSE 5/4 CEMENTITIOUS TRIM 02-LOBBIES/B2 SECOND FLOOR 323' - 0"---SLOPE GRADE AWAY FROM BUILDING, TYP. DOUBLE HUNG COMPOSITE WINDOW WITH TRANSOM WRB WITH AIR PERMEANCE NO LARGER THAN 0.004 CFM/SQFT, TYP. BRICK WEEP AND PREFINISHED METAL DRAINAGE MAT 8" GRAVEL FILL 4" PERIMETER FOUNDATION DRAIN W/ FILTER SOCK OR EQUIVALENT IN CRUSHED STONE W/ POSITIVE FOOTING, SEE STRUCTURAL 2x WINDOW HEADER, SEE STRUCTURAL EXP. CEMENTITIOUS LAP SIDING 5/8" TYP 'X' GWB ON RESILIENT CHANNELS DOUBLE HUNG COMPOSITE WINDOW WITH TRANSOM 2x WINDOW HEADER, SEE STRUCTURAL R-19 BATT INSULATION IN 2x6 STUD WALL 5/4 CEMENTITIOUS TRIM 2x WINDOW HEADER, SEE STRUCTURAL MECHANICALLY FASTENED 60 MIL TPO MEMBRANE ROOFING N COVER BOARD PER CLASS 'B' ROOF OVER MIN R-20 RIGID INSULATION ON ROOF DECK -SEE STRUC DRAWINGS 5/4 15 CEMENTITIOUS PANEL UL -L521 UL -U356 GARAGE 5" REINFORCED CONCRETE SLAB ON 10MIL POLY VAPOR BARRIER RESIDENTIAL UNIT HDR. HT. 1/4" HDR. HT. 1/4" 2' HDR. HT. 10' 1/2" 1' 3/4" 10' 1/2" 3/4" 10' 1/2" 11' GARAGE SLAB SLOPS, DIMENSION VARIES 50' T.O. LOW PARAPET DRAWN BY: NOT TO BE REPRODUCED, CHANGED OR COPIED IN ANY FORM OR MANNER WHATSOEVER, NOR ARE THEY TO BE ASSIGNE CONSENT OF JDAVIS ARCHITECTS, PLLC. CHECKED BY: REVISIONS: ISSUE: 510 South Wilmington Street Raleigh, 1218 Chestnut Street, 7th Floor Philadelphia, City Staff Comments 04/02/2021 1 5 U C - 2 NORTH HILLS DRIVE CONDOMINIUM NORTH HILLS DRIVE, RALEIGH, NC NORTH HILLS INVESTMENT PARTNERS, LLC A8.02 Author Checker NOTFOR CONSTRUCTION 1/2" 1'-0" 1 TYPICAL EXTERIOR WALL SECTION -BLDG 1 1/2" 1'-0" 2 EXTERIOR WALL SECTION @ BLDG2 C2 WINDOW-312' - 0" 01-B1 FIRST FLOOR 321' - 0" 03-B2-THIRD FLOOR 334' - 1/4" -CONCRETE TOPPING SLAB AND WATER RESISTIVE BARRIER ON POST -TENSIONED CONCRETE SLAB; RECESSED 3" FROM TOP OF INTERIOR SLAB AND SLOPED 1/4" PER BALCONY SUPPORT BEAM; SEE BALCONY RAILING BEYOND 42" HIGH ALUMINUM GUARDRAIL; GUARDRAIL FASTENED TO 2X MEMBERS BALCONY FRAME BEYOND ALUMINUM TERMINATION BAR POUR STOP 2x12 RIPPED TO 1/4" PER FOOT TAPER AND TOPPED WITH 3/4" PLYWOOD DECK, WATER SHEATHING ON 2x BALCONY FRAMING ALUMINUM TERMINATION BAR POUR STOP WATERPROOF MEMBRANE CONNECTION TO STORM SYSTEM, REINFORCED CONCRETE FOOTING, SEE STRUCTURAL WATER STOP SLOPE GRADE AWAY FROM BUILDING, TYP. MECHANICALLY FASTENED 60 MIL TPO MEMBRANE ROOFING ON COVER BOARD PER CLASS 'B' ROOF OVER MIN R-20 RIGID INSULATION ON ROOF DECK SEE STRUC DRAWINGS ON 3/4" PLYWOOD SUBFLOOR R-19 SOUND BATTS, TYP. 1" GYPCRETE ON 3/8" ACOUSTI-MAT R-19 SOUND BATTS, TYP. DRAIN PER FIRST FLOOR PLAN HEAD WHERE NEEDED. SPRINKLER HEAD TO BE MIN 8'-2" ABOVE FLOOR AT VAN HC SPACE AND DRIVE AISLE TO ACCESS VAN HC SPACE R-21 SPRAY FOAM INSULATION TIGHT TO UNDERSIDE OF PT SLAB DOUBLE BRICK SOLDIER 42" HIGH ALUMINUM GUARDRAIL; GUARDRAIL SLAB R-19 BATT INSULATION, TYP. -1/2" 11' 1/2" 3/4" 10' 3/4" 3/4" 3/4" 11' 0" UNIT C2 ROOF TRUSS BEARING 55' 1/2" 1/4" 1/4" HDR. HT. 1/4" WATERPROOF MEMBRANE BRICK WEEP AND PREFINISHED RESIDENTIAL UNIT GARAGECEMENTITIOUS PANEL W/ ALUMINUM TRIM STANDING SEAM METAL ROOFHR CIP SLAB-312' - 0" 03-B2-THIRD FLOOR 334' - 1/4" -UNIT C2 ROOF TRUSS BEARING 1/4" 1/4" 1/2" 11' 1/2" 3/4" 10' 1/2" 3/4" 10' 1/2" 11' 0" 55' 1/2" 2" CONCRETE TOPPING SLAB AND WATER RESISTIVE BARRIER ON POST -TENSIONED 4" RESYSTA CLADDING BEYOND BALCONY SUPPORT BEAM; SEE STRUCTURAL BALCONY RAILING BEYOND 42" HIGH ALUMINUM GUARDRAIL; GUARDRAIL FASTENED TO 2X MEMBERS ALUMINUM TERMINATION BAR POUR STOP 42" HIGH ALUMINUM GUARDRAIL; GUARDRAIL BALCONY FRAME BEYOND TRIM; SEE STRUCTURAL REVEALS ON 2x BLOCKING ON EXTERIOR SHEATHING ON 2x BALCONY FRAMING WATERPROOF W/ FILTER SOCK OR EQUIVALENT IN CRUSHED STONE W/ POSITIVE DRAINAGE TO DAY LIGHT OR CONNECTION TO STORM SYSTEM, SEE CIVIL DWGS. FOOTING, SEE STRUCTURAL 8" GRAVEL FILL FROM BUILDING, TYP. O PREFINISHED ALUMINUM METAL COPING RESIDENTIAL UNIT GYPCRETE ON 3/8" ACOUSTI-MAT ON 3/4" PLYWOOD SUBFLOOR R-19 SOUND BATTS, TYP. SLAB, SEE STRUCTURAL R-19 SOUND BATTS, TYP. ON 10MIL POLY VAPOR BARRIER ON 4" GRAVEL FILL SLOPED TO DRAIN PER FIRST FLOOR PLAN GARAGE TO BE MIN 7'-0" ABOVE FLOOR. USE CONCEALED SPRINKLER HEAD WHERE NEEDED. SPRINKLER HEAD TO BE MIN 8'-2" ABOVE FLOOR R-21 SPRAY FOAM INSULATION REINFORCED CIP WALL SEE PLACE SPRINKLER LINE BELOW INSULATION -DOUBLE BRICK SOLDIER 42" HIGH ALUMINUM GUARDRAIL; GUARDRAIL FASTENED TO POST -TENSIONED CONCRETE SLAB R-19 BATT INSULTION, TYP. SIDE OF ROOF SHEATHING NFPA 13R SPRINKLER SYSTEM, BY OTHERS NFPA 13R SPRINKLER SYSTEM, COORD. W/ FIRE PROTECTION BY OTHERS 1/4"E NOT TO BE REPRODUCED, CHANGED OR COPIED IN ANY FORM OR MANNER WHATSOEVER, NOR ARE THEY TO BE ASSIGNE CONSENT OF JDAVIS ARCHITECTS, PLLC. CHECKED BY: CONTENT: REVISIONS: PROJECT: DATE 510 South Wilmington Street Raleigh, NC 27601 tel 919.835.1500 1218 Chestnut Street, 7th Floor Philadelphia, PA 19107 tel 215.545.0121 City Staff Comments 2 7 M C D d M S20030 NORTH HILLS DRIVE CONDOMINIUM NORTH HILLS DRIVE, RALEIGH, NC NORTH HILLS INVESTMENT PARTNERS, LLC WALL SECTIONS A8.04 Checker NOTFOR CONSTRUCTION 05/13/2021 1/2" 1'-0" 2 EXTERIOR WALL SECTION @ BLDG2 C2 BALCONY 1/2" = 1'-0" 1 EXTERIOR WALL SECTION @ CORNER C2 BALCONY
27 02-B1-SECOND FLOOR 333' - 0" 03-B1-THIRD FLOOR 344' - 11" -356' - 10"02-LOBBIES/B2 SECOND FLOOR 323' - 0"RESIDENTIAL UNIT CONNECTION TO STORM SYSTEM, REINFORCED CONCRETE ON 10MIL POLY VAPOR BARRIER ON 4" GRAVEL FILL SLOPED TO DRAIN PER FIRST FLOOR PLAN DOUBLE HUNG COMPOSITE WINDOW WITH TRANSOM 5/8" TYPE 'X' GWB ON RESILIENT CHANNELS 5/8" TYPE 'X' GWB ON RESILIENT CHANNELS ON PRE-MANUFACTURED TOP-CHORD SLOPING ROOF JOIST DOUBLE HUNG COMPOSITE WINDOW WITH TRANSOM WINDOW HEADER, SEE STRUCTURAL WINDOW HEADER, SEE STRUCTURAL WEATHER RESISTANT BARRIER ON EXTERIOR SHEATHING ON 5 1/2" METAL 6" EXP. CEMENTITIOUS LAP SIDING 6" EXP. CEMENTITIOUS LAP SIDING MECHANICALLY FASTENED 60 MIL TPO MEMBRANE ROOFING O PREFINISHED ALUMINUM METAL COPING HEAD TO BE MIN 8'-2" ABOVE FLOOR AT VAN HC SPACE AND DRIVE AISLE TO ACCESS VAN HC SPACE 5/4 15 CEMENTITIOUS PANEL 5/4 CEMENTITIOUS TRIM 5/8" TYPE 'X' GWB 5/8" TYPE 'X' GWB CFS STUD WALL POST-TENSIONED CONCRETE SLAB, SEE STRUCTURAL MASONRY ROWLOCK SILL SLOPE TIGHT TO UNDERSIDE OF PT SLAB 1/4" 1/4" 1/4" 52' 1/2" T.O. PARAPET 373' -0 1/2" DEPTH OF ROOF JOIST AT LOWEST POINT REINFORCED CIP WALL SEE STRUCTURAL DRAINAGE MAT WATER STOP BRICK SOLDIER COURSE 5/4 CEMENTITIOUS TRIM UNDERSIDE OF BOTTOM CHORD OF STEEL JOIST ECOSPAN COMPOSITE FLOOR SYSTEM: X" CONCRETE ON METAL ECOSPAN COMPOSITE FLOOR SYSTEM: X" CONCRETE ON METAL UL -U425 UL -G561 UL -G561 HOUR 6' 10' 1/2" 1/2" 10' 1/2" 1/2" 10' 1/2" 10' COMPOSITE FLOOR SYSTEM: X" CONCRETE ON METAL DECKING ON METAL DECKING ON 18" DEEP STEEL JOIST 02-LOBBIES/B2 SECOND FLOOR 323' - 0"03-B2-THIRD FLOOR 334' - 11" -346' - 10"SLOPE GRADE AWAY FROM BUILDING, TYP. DOUBLE HUNG COMPOSITE WINDOW WITH TRANSOM STUD WALL. WRB WITH AIR PERMEANCE NO LARGER THAN 0.004 CFM/SQFT, TYP. BRICK WEEP AND PREFINISHED METAL DRAINAGE MAT 8" GRAVEL FILL 4" PERIMETER FOUNDATION DRAIN W/ FILTER SOCK OR EQUIVALENT IN CRUSHED STONE W/ POSITIVE FOOTING, SEE STRUCTURAL DOUBLE HUNG COMPOSITE WINDOW WITH TRANSOM WINDOW HEADER, SEE STRUCTURAL EXP. CEMENTITIOUS LAP SIDING R-19 BATT INSULATION IN 1/2" METAL STUD WALL 5/8" TYPE 'X' GWB ON RESILIENT CHANNELS EXP. CEMENTITIOUS LAP SIDING R-19 BATT INSULATION IN 1/2" METAL STUD WALL PRE-MANUFACTURED TOPCHORD SLOPING ROOF JOIST WINDOW HEADER, SEE STRUCTURAL 6" EXP. CEMENTITIOUS LAP SIDING HOUR GARAGE 5" REINFORCED CONCRETE SLAB ON 10MIL POLY VAPOR BARRIER RESIDENTIAL UNIT HDR. HT. HDR. HT. HDR. HT. T.O. PARAPET A 365' -6 1/2" ECOSPAN COMPOSITE FLOOR SYSTEM: X" CONCRETE ON METAL DECKING ON 18" DEEP POURSTOP BY ECOSPAN DEPTH OF ROOF JOIST AT LOWEST POINT UNDERSIDE OF BOTTOM CHORD OF STEEL JOIST UNDERSIDE OF BOTTOM CHORD OF STEEL JOIST FLOOR SYSTEM: X" CONCRETE ON METAL DECKING ON 18" DEEP STEEL JOIST UL -G561 HOUR HOUR UL -G561 UL -U425 5/8" TYPE 'X' GWB 6' 10' 1/2" 1/2" 10' 1/2" 1/2" 10' 1/2" 11' COMPOSITE FLOOR SYSTEM: X" CONCRETE ON METAL DECKING ON ECOSPAN COMPOSITE FLOOR SYSTEM: X" CONCRETE ON DRAWN BY: NOT TO BE REPRODUCED, CHANGED OR COPIED IN ANY FORM OR MANNER WHATSOEVER, NOR ARE THEY TO BE ASSIGNE CONSENT OF JDAVIS ARCHITECTS, PLLC. CHECKED BY: CONTENT: REVISIONS: ISSUE: PROJECT: 510 South Wilmington Street Raleigh, NC 27601 1218 Chestnut Street, 7th Floor Philadelphia, PA City Staff Comments 04/02/2021 Pricing Set 10/07/2021 12/1/2021 10:14:59 PM \\jda-fs01\UserFldr$\bryans\Documents\Autodesk\My Projects\Shelley Lake Condos-02_bryans.rvt 20030 NORTH HILLS DRIVE CONDOMINIUM NORTH HILLS DRIVE, RALEIGH, NC NORTH HILLS INVESTMENT PARTNERS, LLC WALL SECTIONS A8.02 Author Checker NOTFOR CONSTRUCTION 10/07/2021 1/2" 1'-0" 1 TYPICAL EXTERIOR WALL SECTION -BLDG 1 1/2" = 1'-0" 2 EXTERIOR WALL SECTION @ BLDG2 C2 WINDOW-312'01-B1 FIRST FLOOR 321'--2" CONCRETE TOPPING SLAB AND WATER RESISTIVE BARRIER ON POST -TENSIONED CONCRETE SLAB; RECESSED 3" FROM TOP OF INTERIOR SLAB AND SLOPED 1/4" PER BALCONY SUPPORT BEAM; SEE BALCONY RAILING BEYOND 42" HIGH ALUMINUM GUARDRAIL; GUARDRAIL FASTENED TO 2X MEMBERS BALCONY FRAME BEYOND BALCONY SUPPORT BEAM; SEE STRUCTURAL ALUMINUM TERMINATION BAR POUR STOP CEMENTITIOUS PANEL WITH ALUMINUM ALUMINUM TERMINATION BAR POUR STOP WATERPROOF MEMBRANE CONNECTION TO STORM SYSTEM, REINFORCED CONCRETE FOOTING, SEE STRUCTURAL WATER STOP SLOPE GRADE AWAY FROM BUILDING, TYP. ROOF JOIST -SEE STRUC DRAWINGS DRAIN PER FIRST FLOOR PLAN HEAD WHERE NEEDED. SPRINKLER HEAD TO BE MIN 8'-2" ABOVE FLOOR AT VAN HC SPACE AND DRIVE AISLE TO ACCESS VAN HC SPACE R-21 SPRAY FOAM INSULATION TIGHT TO UNDERSIDE OF PT SLAB 42" HIGH ALUMINUM GUARDRAIL; GUARDRAIL SLAB R-19 BATT INSULATION, TYP. R-11 BATT INSULATION TIGHT TO UNIT C2 ROOF TRUSS BEARING 357' -11 1/2" HDR. HT. 1/4" HDR. HT. 1/4" 1/4" WATERPROOF MEMBRANE BRICK WEEP AND PREFINISHED RESIDENTIAL UNIT GARAGE 2T.O. PARAPET (C) HR CIP SLAB 1/2" 11' 1/2" 1/2" 10' 1/2" 1/2" 10' 1/2" 11' 0" 55' SPRINKLER SYSTEM, COORD. W/ FIRE PROTECTION BY OTHERS SPRINKLER SYSTEM, COORD. W/ FIRE PROTECTION BY OTHERS UL -U425 HOUR UL -U425 2 - - 4 18" DEEP STEEL JOIST COMPOSITE FLOOR SYSTEM: X" CONCRETE ON METAL DECKING ON-312' - 0" --UNIT C2 ROOF TRUSS BEARING 357' -11 1/2" 1/4" 1/4" T.O. PARAPET (C) 55' 2" CONCRETE TOPPING SLAB AND WATER RESISTIVE BARRIER ON POST -TENSIONED 4" RESYSTA CLADDING BEYOND BALCONY SUPPORT BEAM; SEE STRUCTURAL BALCONY RAILING BEYOND 42" HIGH ALUMINUM GUARDRAIL 4" RESYSTA CLADDING BALCONY SUPPORT BEAM; SEE STRUCTURAL ALUMINUM TERMINATION BAR POUR STOP BALCONY RAILING BEYOND 42" HIGH ALUMINUM GUARDRAIL BALCONY FRAME BEYOND TRIM; SEE STRUCTURAL DECK, WATER RESISTIVE MEMBRANE AND 2" OF LIGHTWEIGHT CONCRETE CEMENTITIOUS PANEL WITH ALUMINUM REVEALS ALUMINUM TERMINATION BAR POUR STOP WATERPROOF W/ FILTER SOCK OR EQUIVALENT IN CRUSHED STONE W/ POSITIVE DRAINAGE TO DAY LIGHT OR CONNECTION TO STORM SYSTEM, SEE CIVIL DWGS. FOOTING, SEE STRUCTURAL 8" GRAVEL FILL FROM BUILDING, TYP. RESIDENTIAL UNIT SLAB, SEE STRUCTURAL ON 10MIL POLY VAPOR BARRIER ON 4" GRAVEL FILL SLOPED TO DRAIN PER FIRST FLOOR PLAN GARAGE TO BE MIN 7'-0" ABOVE FLOOR. USE CONCEALED SPRINKLER HEAD WHERE NEEDED. SPRINKLER HEAD TO BE MIN 8'-2" ABOVE FLOOR R-21 SPRAY FOAM INSULATION REINFORCED CIP WALL SEE PLACE SPRINKLER LINE BELOW INSULATION DOUBLE BRICK SOLDIER 42" HIGH ALUMINUM GUARDRAIL; GUARDRAIL FASTENED TO POST -TENSIONED CONCRETE SLAB R-19 BATT INSULTION, TYP. 1/4" NFPA 13R SPRINKLER SYSTEM, COORD. W/ FIRE PROTECTION BY OTHERS 1 HOUR UL -U425 1 HOUR -DRAWN BY: NOT TO BE REPRODUCED, CHANGED OR COPIED IN ANY FORM OR MANNER WHATSOEVER, NOR ARE THEY TO BE ASSIGNE CONSENT OF JDAVIS ARCHITECTS, PLLC. CHECKED BY: CONTENT: REVISIONS: PROJECT: DATE 510 South Wilmington Street Raleigh, NC 27601 el 919.835.1500 1218 Chestnut Street, 7th Floor Philadelphia, PA 19107 tel 215.545.0121 City Staff Comments Pricing Set 10/07/2021 0 M d - U D A C20030 NORTH HILLS DRIVE CONDOMINIUM NORTH HILLS DRIVE, RALEIGH, NC NORTH HILLS INVESTMENT PARTNERS, LLC WALL SECTIONS A8.04 Author Checker NOTFOR CONSTRUCTION 10/07/2021 1/2" = 1'-0" 2 EXTERIOR WALL SECTION @ BLDG2 C2 BALCONY 1/2" = 1'-0" 1 EXTERIOR WALL SECTION @ CORNER C2 BALCONY
28 02-B1-SECOND FLOOR 333' - 0" ----FLOOR 323' - 0"HDR. HT. HDR. HT. HDR. HT. HDR. HT. 11' 8" 10' 1/2" 3/4" 10' 1/2" 1' 3/4" 10' 1/2" 7" 54' 1" T.O. MEDIUM PARAPET 2" CONCRETE TOPPING SLAB AND WATER RESISTIVE BARRIER ON POST -TENSIONED CONCRETE SLAB; RECESSED 3" FROM TOP ALUMINUM TERMINATION BAR POUR STOP BALCONY RAILING BEYOND 42" HIGH ALUMINUM GUARDRAIL; GUARDRAIL FASTENED TO POST -TENSIONED CONCRETE SLAB BALCONY SUPPORT BEAM; SEE BALCONY FRAME BEYOND BALCONY SUPPORT BEAM; SEE 2x12 RIPPED TO 1/4" PER FOOT TAPER AND TOPPED WITH 3/4" PLYWOOD DECK, WATER CEMENTITIOUS PANEL WITH ALUMINUM REVEALS ON 2x BLOCKING ON EXTERIOR O 42" HIGH ALUMINUM GUARDRAIL; GUARDRAIL FASTENED TO 2X MEMBERS BRICK VENEER BEYOND TOPPED WITH 3/4" PLYWOOD DECK, WATER LIGHTWEIGHT CONCRETE SHEATHING ON 2x BALCONY FRAMING ALUMINUM TERMINATION BAR POUR STOP PREMANUFACTURED METAL CANOPY INSET BRICK VENEER BRICK SOLDIER COURSE CANOPY ATTACHMENT; SEE MANUF. MECHANICALLY FASTENED 60 MIL TPO MEMBRANE ROOFING ON COVER BOARD PER CLASS 'B' ROOF OVER MIN R-20 RIGID WATERPROOF MEMBRANE FOOTING, SEE STRUCTURAL DRAINAGE MAT RESIDENTIAL UNIT POST-TENSIONED CONCRETE SLAB, SEE STRUCTURAL R-11 BATT INSULATION TIGHT TO UNDER SIDE OF ROOF SHEATHINGSLOPE GRADE AWAY FROM BUILDING, TYP. AT VAN HC SPACE AND DRIVE AISLE TO ACCESS VAN HC SPACE GROUT SOLID BELOW GRADE BRICK WEEP AND PREFINISHED BRICK SOLDIER COURSE-R-19 BATT INSULATION NFPA 13R SPRINKLER SYSTEM, COORD. W/ FIRE PROTECTION NFPA 13R SPRINKLER SYSTEM, COORD. W/ FIRE PROTECTION BY OTHERS A9.03 UL -P522 HR CIP SLAB 02-LOBBIES/B2 SECOND FLOOR 323' - 0"---1/4" HDR. HT. 1' 1/4" 7" 10' 1/2" 1' 3/4" 10' 1/2" 3/4" 10' 1/2" 11' 53' T.O. MEDIUM PARAPET 2" CONCRETE TOPPING SLAB AND WATER RESISTIVE BARRIER ON POST -TENSIONED 4" RESYSTA CLADDING BEYOND BALCONY SUPPORT BEAM; SEE STRUCTURAL 42" HIGH ALUMINUM GUARDRAIL; GUARDRAIL 4" RESYSTA CLADDING BALCONY SUPPORT BEAM; SEE STRUCTURAL REVEALS ON 2x BLOCKING ON EXTERIOR SHEATHING ON 2x BALCONY FRAMING BRICK VENEER BEYOND BALCONY FRAME BEYOND CEMENTITIOUS TRIM; SEE STRUCTURAL 2x12 RIPPED TO 1/4" PER FOOT TAPER AND CEMENTITIOUS PANEL WITH ALUMINUM REVEALS ON 2x BLOCKING ON EXTERIOR SHEATHING ON 2x BALCONY FRAMING BRICK SOLDIER COURSE S E IN CRUSHED STONE W/ POSITIVE DRAINAGE TO DAY LIGHT OR CONNECTION TO STORM SYSTEM, SEE CIVIL DWGS. DRAINAGE MAT MECHANICALLY FASTENED 60 MIL TPO MEMBRANE O RESIDENTIAL UNIT ON 3/4" PLYWOOD SUBFLOOR-5" REINFORCED CONCRETE SLAB ON 10MIL POLY VAPOR BARRIER TO ACCESS VAN HC SPACE REINFORCED CIP WALL SEE STRUCTURAL ROOF CRICKET; SEE ROOF PLAN FOR LOCATIONS PARAPET RETURN BEYOND UL -P522 DRAWN BY: NOT TO BE REPRODUCED, CHANGED OR COPIED IN ANY FORM OR MANNER WHATSOEVER, NOR ARE THEY TO BE ASSIGNE CONSENT OF JDAVIS ARCHITECTS, PLLC. CHECKED BY: REVISIONS: ISSUE: 510 South Wilmington Street Raleigh, NC 27601 tel 919.835.1500 1218 Chestnut Street, 7th Floor Philadelphia, PA 19107 tel 215.545.0121 City Staff Comments 04/02/2021 M U D A CNORTH HILLS DRIVE CONDOMINIUM NORTH HILLS DRIVE, RALEIGH, NC NORTH HILLS INVESTMENT PARTNERS, LLC A8.03 Author Checker NOTFOR CONSTRUCTION 1/2" = 1'-0" 2 EXTERIOR WALL SECTION @ ELEVATED BALCONY 1/2" = 1'-0" 1 EXTERIOR WALL SECTION @ BALCONY AT GRADE --04-B1-FOURTH FLOORB1-ROOF TRUSS BEARING 366' - 6"01-B1 FIRST FLOOR 321' - 0" 1/4" 10' 1/2" 3/4" 10' 1/2" 1' 3/4" 10' 1/2" 10' 0" 0" HDR. HT. 1/4" 0" HDR. HT. +/-375' -1" DRAINAGE TO DAY LIGHT OR CONNECTION TO STORM SYSTEM, SEE CIVIL DWGS. VAPOR BARRIER ON 4" GRAVEL FILL SLOPED TO DRAIN PER FIRST FLOOR PLAN WATER STOP PLACE SPRINKLER LINE BELOW RESIDENTIAL UNITPREFINISHED ALUMINUM METAL COPING 5/8" TYP 'X' GWB ON RESILIENT CHANNELS ON PREMANUFACTURED TOP-CHORD TPO MEMBRANE ROOFING OVER PROTECTION BOARD PER CLASS 'B' ROOF OVER MIN 5" RIGID INSULATION ON 3/4" ROOF DECK PARAPET RETURN BEYOND ROOF CRICKET; SEE ROOF PLAN WEATHER RESISTANT BARRIER ON EXTERIOR SHEATHING ON 2x6 STUD WALL. WRB WITH AIR PERMEANCE NO LARGER THAN 0.004 CFM/SQFT, TYP. DOUBLE HUNG COMPOSITE WINDOW WITH TRANSOM 5/4 CEMENTITIOUS TRIM 5/4 CEMENTITIOUS TRIM BRICK SOLDIER COURSE STANDING SEAM METAL ROOF - 1 -STOREFRONT; SEE WINDOW SCHEDULE (3) 2x8 BALCONY SUPPORT 2x10 HEADER1" GYPCRETE ON 3/8" ACOUSTI-MAT ON 3/4" PLYWOOD SUBFLOOR R-19 SOUND BATTS, TYP. UL -P522 --04-B1-FOURTH FLOORB1-ROOF TRUSS BEARING 366'01-B1 FIRST FLOOR 321'GARAGE DRAINAGE TO DAY LIGHT OR CONNECTION TO STORM SYSTEM, SEE CIVIL DWGS. SLOPED TO DRAIN PER FIRST FLOOR PLAN POST-TENSIONED CONCRETE REINFORCED CIP WALL SEE STRUCTURAL R-19 SOUND BATTS, TYP. BALCONY DOOR; SEE DOOR SCHEDULE HDR. HT. HDR. HT. 0" HDR. HT. +/-375' -1" STOREFRONT; SEE WINDOW SCHEDULE PREFINISHED ALUMINUM METAL COPING 54' MANUFACTURED TOP-CHORD SLOPING ROOF TRUSS 2x HEADER; SEE STRUCTURAL PARAPET RETURN BEYOND ON 3/4" PLYWOOD SUBFLOOR -42" HIGH ALUMINUM GUARDRAIL; TOPPED WITH 3/4" PLYWOOD DECK, WATER RESISTIVE MEMBRANE AND OF LIGHTWEIGHT CONCRETE ALUMINUM TERMINATION BAR POUR STOP BALCONY RAILING BEYOND RESYSTA CLADDING BALCONY SUPPORT BEAM FACED WITH CEMENTITIOUS TRIM; SEE STRUCTURAL CEMENTITIOUS PANEL WITH ALUMINUM REVEALS ON 2x BLOCKING ON EXTERIOR SHEATHING ON 2x BALCONY FRAMING ROOF CRICKET; SEE ROOF PLAN FACE OF WALL BEYOND (3) 2x8 BALCONY SUPPORT FACE OF BALCONY FRAMEBRICK SOLDIER COURSE PORCELAIN PAVER ON SANDUL -P522 NOT TO BE REPRODUCED, CHANGED OR COPIED ANY FORM OR MANNER WHATSOEVER, NOR ARE THEY TO BE ASSIGNE CONSENT OF JDAVIS ARCHITECTS, PLLC. CHECKED BY: CONTENT: ISSUE: PROJECT: DATE 510 South Wilmington Street Raleigh, NC 27601 tel 919.835.1500 1218 Chestnut Street, 7th Floor Philadelphia, PA 19107 tel 215.545.0121 City Staff Comments 5 M C M S20030 NORTH HILLS DRIVE CONDOMINIUM NORTH HILLS DRIVE, RALEIGH, NC NORTH HILLS INVESTMENT PARTNERS, LLC WALL SECTIONS A8.05 Checker NOTFOR CONSTRUCTION 05/13/2021 1/2" 1'-0" 1 EXTERIOR WALL SECTION @ CLUB AND A1 1/2" 1'-0" 2 EXTERIOR WALL SECTION @ CLUB AND A1 BALCONY
29 02-B1-SECOND FLOOR 333' - 0" 03-B1-THIRD FLOOR 344' - 11" 04-B1-FOURTH FLOOR 356' - 10"-FLOOR 323' - 0"HDR. HT. 1/4" HDR. HT. 1/4" HDR. HT. 1/4" T.O. PARAPET (B) 375' -6 1/2" 2" CONCRETE TOPPING SLAB AND WATER RESISTIVE BARRIER ON POST -TENSIONED CONCRETE SLAB; RECESSED 3" FROM TOP ALUMINUM TERMINATION BAR POUR STOP BALCONY RAILING BEYOND 42" HIGH ALUMINUM GUARDRAIL; GUARDRAIL FASTENED TO POST -TENSIONED CONCRETE SLAB BALCONY SUPPORT BEAM; SEE CONTINUATION OF ECOSPAN CONRETE DECK, WATER RESISTIVE MEMBRANE AND 2" OF LIGHTWEIGHT CONCRETE CEMENTITIOUS PANEL WITH ALUMINUM REVEALS BRICK VENEER BEYOND 4" RESYSTA CLADDING CEMENTITIOUS TRIM; SEE STRUCTURAL DECK, WATER RESISTIVE MEMBRANE AND 2" INSET BRICK VENEER BRICK SOLDIER COURSE CANOPY ATTACHMENT; SEE MANUF. WATERPROOF MEMBRANE FOOTING, SEE STRUCTURAL DRAINAGE MAT RESIDENTIAL UNIT POST-TENSIONED CONCRETE SLAB, SEE STRUCTURAL SLOPE GRADE AWAY FROM BUILDING, TYP. AT VAN HC SPACE AND DRIVE AISLE TO ACCESS VAN HC SPACE GROUT SOLID BELOW GRADE BRICK WEEP AND PREFINISHED BRICK SOLDIER COURSEA9.03 3 HR CIP SLAB 10' 10' 1/2" 1/2" 10' 1/2" 1/2" 10' 1/2" 7" R-19 SOUND BATTS, TYP. UL -G561 R-19 SOUND BATTS, TYP. NFPA 13R RECESSED UL -G561 HOUR COMPOSITE FLOOR SYSTEM: X" CONCRETE ON METAL DECKING ON ECOSPAN COMPOSITE FLOOR SYSTEM: X" 02-LOBBIES/B2 SECOND FLOOR 323' - 0"03-B2-THIRD FLOOR 334' - 11" 04-B2-FOURTH FLOOR 346' - 10"1/4" 1/4" 1/4" 53' 1/2" T.O. PARAPET (B) 365' -6 1/2" 2" CONCRETE TOPPING SLAB AND WATER RESISTIVE BARRIER ON POST -TENSIONED BALCONY SUPPORT BEAM; SEE STRUCTURAL 42" HIGH ALUMINUM GUARDRAIL 4" RESYSTA CLADDING CEMENTITIOUS PANEL WITH ALUMINUM BALCONY SUPPORT BEAM FACED WITH CEMENTITIOUS TRIM; SEE STRUCTURAL DECK, WATER RESISTIVE MEMBRANE AND OF LIGHTWEIGHT CONCRETE CEMENTITIOUS PANEL WITH ALUMINUM REVEALS ALUMINUM TERMINATION BAR POUR STOP BRICK SOLDIER COURSE IN CRUSHED STONE W/ POSITIVE DRAINAGE TO DAY LIGHT OR CONNECTION TO STORM SYSTEM, SEE CIVIL DWGS. DRAINAGE MAT PREFINISHED ALUMINUM METAL COPING RESIDENTIAL UNIT R-19 SOUND BATTS, TYP. 5" REINFORCED CONCRETE SLAB ON 10MIL POLY VAPOR BARRIER TO ACCESS VAN HC SPACE REINFORCED CIP WALL SEE STRUCTURAL ROOF CRICKET; SEE ROOF PLAN FOR LOCATIONS PARAPET RETURN BEYOND 10' 1/2" 1/2" 10' 1/2" 1/2" 10' 1/2" UL -G561 HOUR R-19 SOUND BATTS, TYP. UL -G561 HOUR HOUR HOUR COMPOSITE FLOOR SYSTEM: X" CONCRETE ON METAL DECKING ON COMPOSITE FLOOR SYSTEM: X" CONCRETE ON METAL DECKING ON DRAWN BY: NOT TO BE REPRODUCED, CHANGED OR COPIED IN ANY FORM OR MANNER WHATSOEVER, NOR ARE THEY TO BE ASSIGNE D CONSENT OF JDAVIS ARCHITECTS, PLLC. CONTENT: REVISIONS: ISSUE: PROJECT: DATE 510 South Wilmington Street Raleigh, NC 27601 919.835.1500 1218 Chestnut Street, 7th Floor Philadelphia, PA 19107 tel 215.545.0121 City Staff Comments 04/02/2021 Pricing Set 10/07/2021 - M P d20030 NORTH HILLS DRIVE CONDOMINIUM NORTH HILLS DRIVE, RALEIGH, NC NORTH HILLS INVESTMENT PARTNERS, LLC WALL SECTIONS A8.03 Author NOTFOR CONSTRUCTION 10/07/2021 1/2" 1'-0" 2 EXTERIOR WALL SECTION @ ELEVATED BALCONY 1/2" 1'-0" 1 EXTERIOR WALL SECTION @ BALCONY AT GRADE ---B1 - UNDERSIDE OF BOTTOM CHORD OF ROOF JOIST 366' - 11 1/2"01-B1 FIRST FLOOR 321' - 0" HDR. HT. 1/4" 0" HDR. HT. 1/4" T.O. PARAPET (B) 54' 1/2" DRAINAGE TO DAY LIGHT OR CONNECTION TO STORM SYSTEM, SEE CIVIL DWGS. VAPOR BARRIER ON 4" GRAVEL FILL SLOPED TO DRAIN PER FIRST FLOOR PLAN WATER STOP PLACE SPRINKLER LINE BELOW PROTECTION BOARD PER CLASS 'B' ROOF OVER MIN 5" RIGID INSULATION ON METAL DECK ON ROOF JOIST -SEE STRUCT HEADER; SEE STRUCTURAL PARAPET RETURN BEYOND ROOF CRICKET; SEE ROOF PLAN WEATHER RESISTANT BARRIER ON EXTERIOR SHEATHING ON 1/2" METAL STUD WALL. WRB WITH AIR PERMEANCE NO LARGER THAN 0.004 CFM/SQFT, TYP. DOUBLE HUNG COMPOSITE WINDOW WITH TRANSOM 5/4 CEMENTITIOUS TRIM R-19 BATT INSULATION IN 1/2" METAL STUD WALL 5/4 CEMENTITIOUS TRIM BRICK SOLDIER COURSE STANDING SEAM METAL ROOF STOREFRONT; SEE WINDOW SCHEDULE (3) 2x8 BALCONY SUPPORT R-19 SOUND BATTS, TYP. FILL FLOOR/CEILING ASSEMBLY BETWEEN CLUB AND UNIT FULL HOUR SPRINKLER SYSTEM, COORD. W/ FIRE PROTECTION BY OTHERS HOURECOSPAN COMPOSITE FLOOR SYSTEM: X" CONCRETE ON JOIST ---B1 - UNDERSIDE OF BOTTOM CHORD OF ROOF JOIST 366' - 11 1/2" 01-B1 FIRST FLOOR 321' - 0" GARAGE DRAINAGE TO DAY LIGHT OR CONNECTION TO STORM SYSTEM, SEE CIVIL DWGS. SLOPED TO DRAIN PER FIRST FLOOR PLAN POST-TENSIONED CONCRETE REINFORCED CIP WALL SEE STRUCTURAL R-19 SOUND BATTS, TYP. BALCONY DOOR; SEE DOOR SCHEDULE 1/4" 1/4" 0" 1/4" STOREFRONT; SEE WINDOW SCHEDULE PREFINISHED ALUMINUM METAL COPING SLOPING ROOF JOIST HEADER; SEE STRUCTURAL PARAPET RETURN BEYOND BALCONY DOOR; SEE DOOR 42" HIGH ALUMINUM GUARDRAIL; BALCONY SUPPORT BEAM; SEE STRUCTURAL DECK, WATER RESISTIVE MEMBRANE AND 2" OF LIGHTWEIGHT CONCRETE 42" HIGH ALUMINUM GUARDRAIL 4" RESYSTA CLADDING CEMENTITIOUS TRIM; SEE STRUCTURAL CONTINUATION OF ECOSPAN CONCRETE DECK, WATER RESISTIVE MEMBRANE AND 2" OF LIGHTWEIGHT CONCRETE CEMENTITIOUS PANEL WITH ALUMINUM ALUMINUM TERMINATION BAR POUR STOP ROOF CRICKET; SEE ROOF PLAN FACE OF WALL BEYOND (3) 2x8 BALCONY SUPPORT FACE OF BALCONY FRAME R-11 BATT INSULATION TIGHT TO UNDER BRICK SOLDIER COURSE PORCELAIN PAVER ON SAND UL -P522 HOUR 8' 10' 1/2" 1/2" 10' 1/2" 1/2" 10' 1/2" 12' SPRINKLER SYSTEM, COORD. W/ FIRE PROTECTION BY OTHERS UL -U425 1 HOUR 18" DEEP STEEL JOIST JOIST DRAWN BY: NOT TO BE REPRODUCED, CHANGED OR COPIED IN ANY FORM OR MANNER WHATSOEVER, NOR ARE THEY TO BE ASSIGNE CONSENT OF JDAVIS ARCHITECTS, PLLC. CHECKED BY: CONTENT: REVISIONS: ISSUE: PROJECT: DATE 510 South Wilmington Street Raleigh, NC 27601 el 919.835.1500 1218 Chestnut Street, 7th Floor Philadelphia, PA 19107 tel 215.545.0121 City Staff Comments 04/02/2021 Pricing Set 10/07/2021 2 M d - U $ D A C20030 NORTH HILLS DRIVE CONDOMINIUM NORTH HILLS DRIVE, RALEIGH, NC NORTH HILLS INVESTMENT PARTNERS, LLC WALL SECTIONS A8.05 Author Checker NOTFOR CONSTRUCTION 10/07/2021 1/2" = 1'-0" 1 EXTERIOR WALL SECTION @ CLUB AND A1 1/2" = 1'-0" 2 EXTERIOR WALL SECTION @ CLUB AND A1 BALCONY
30

JDavis Architects

31
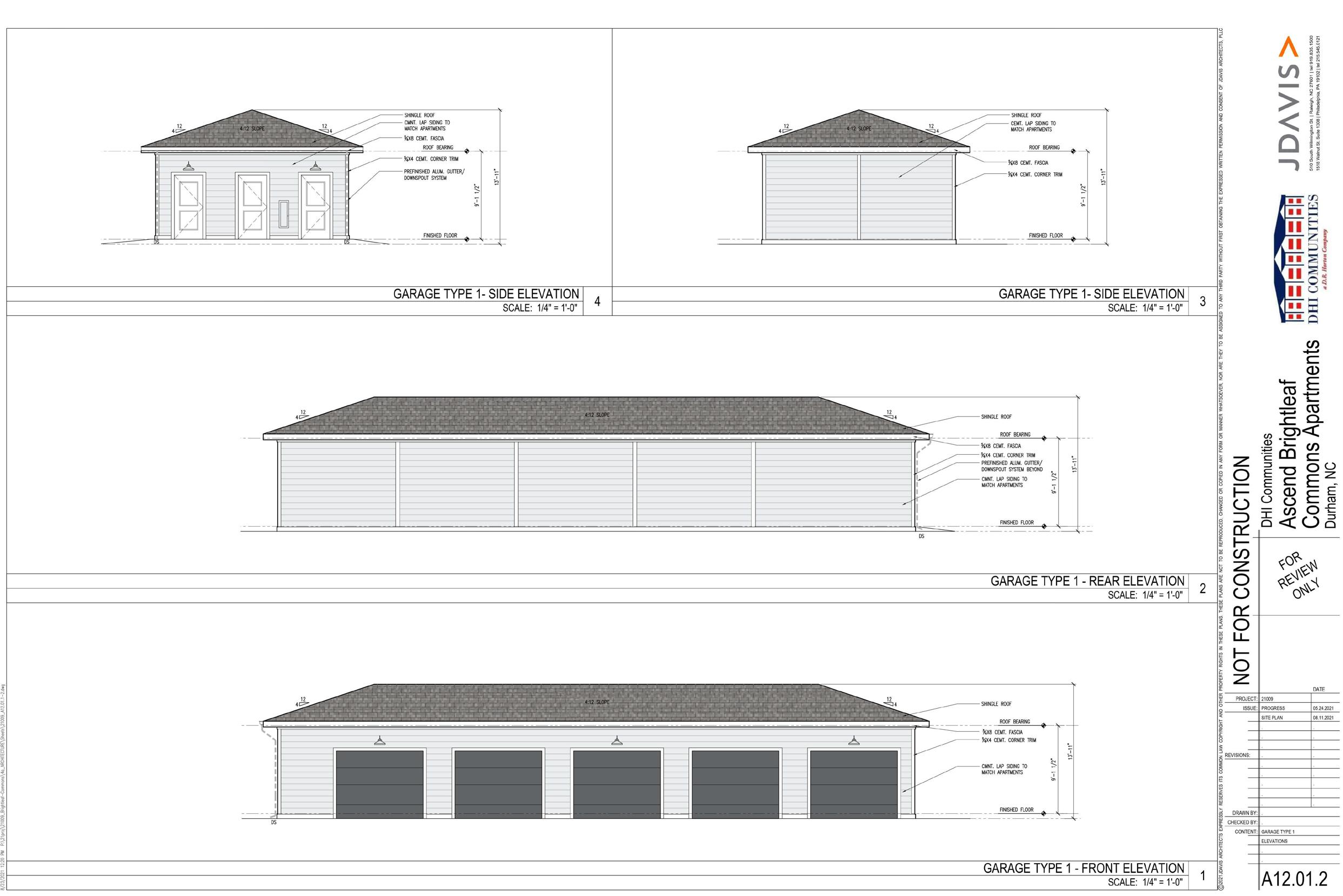
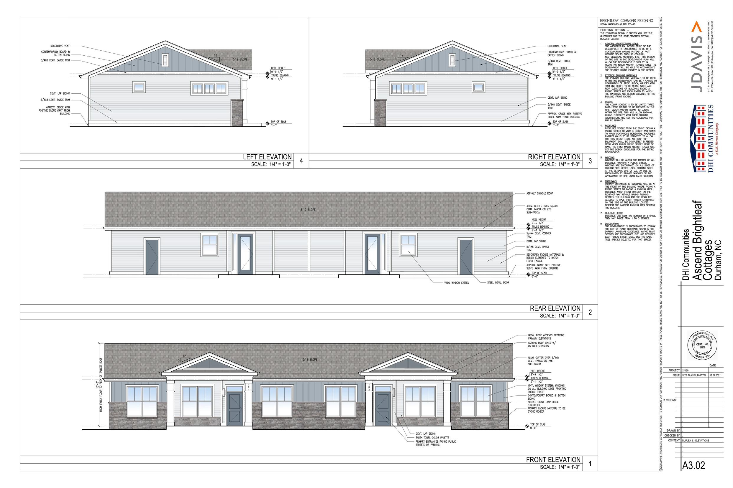
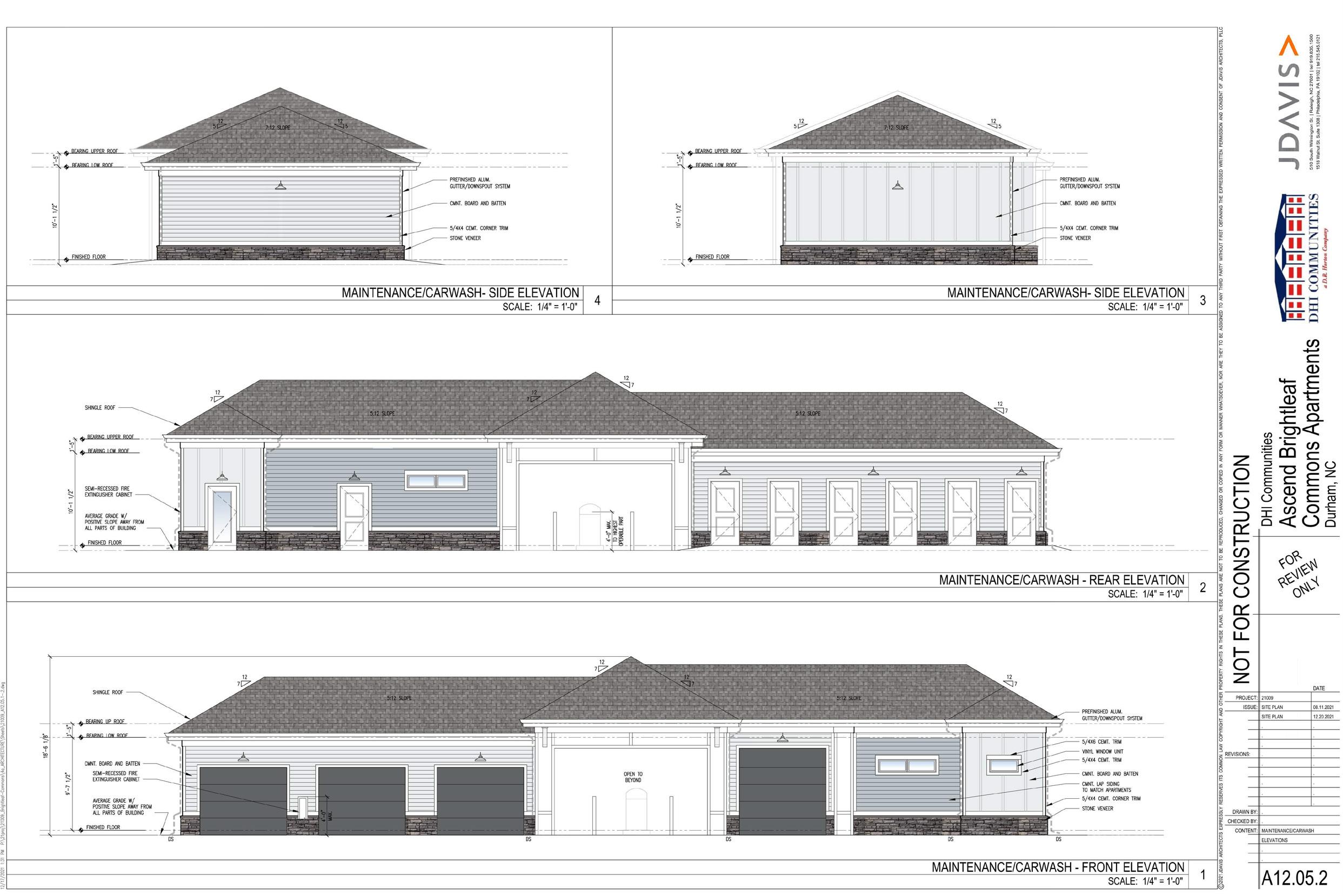
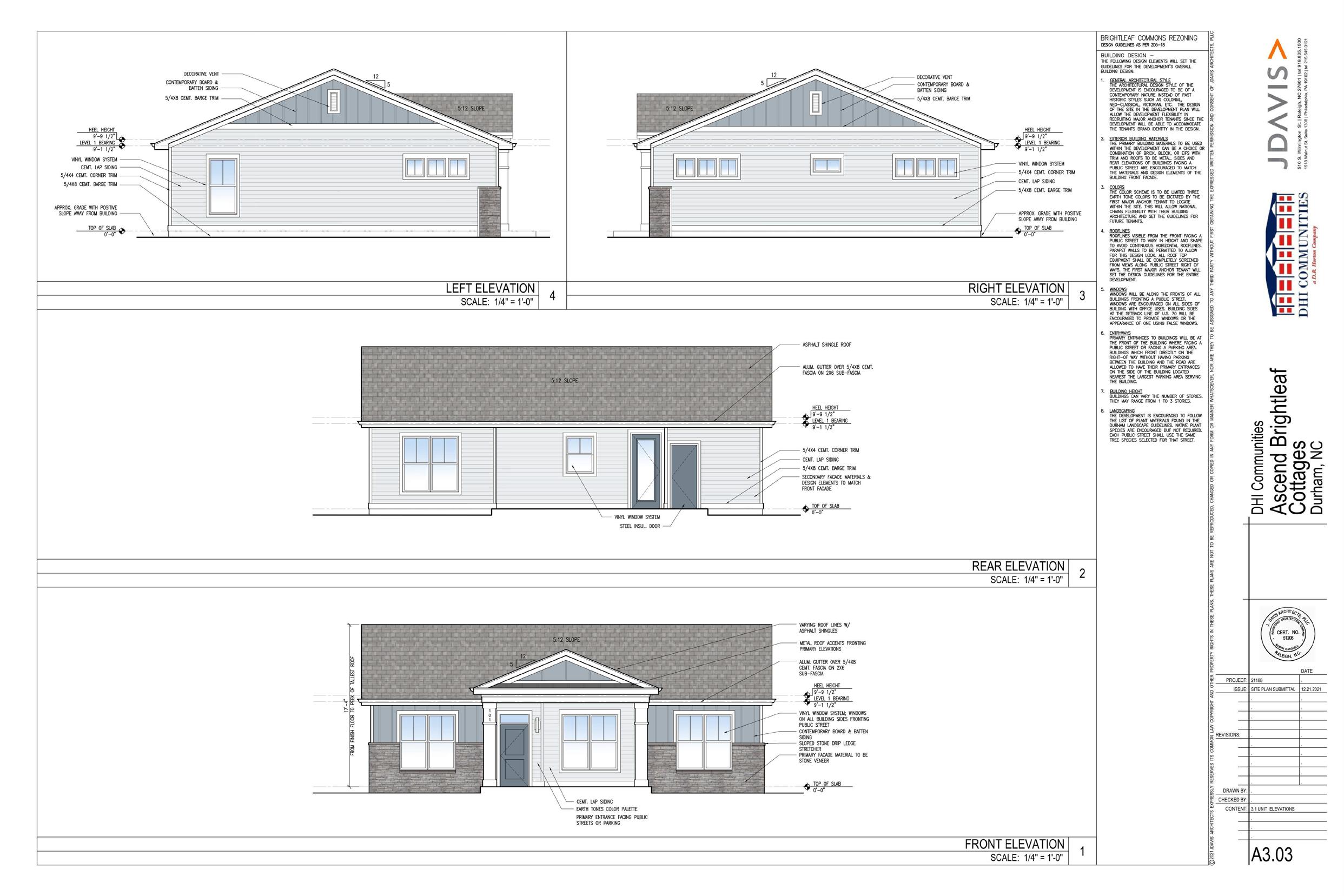
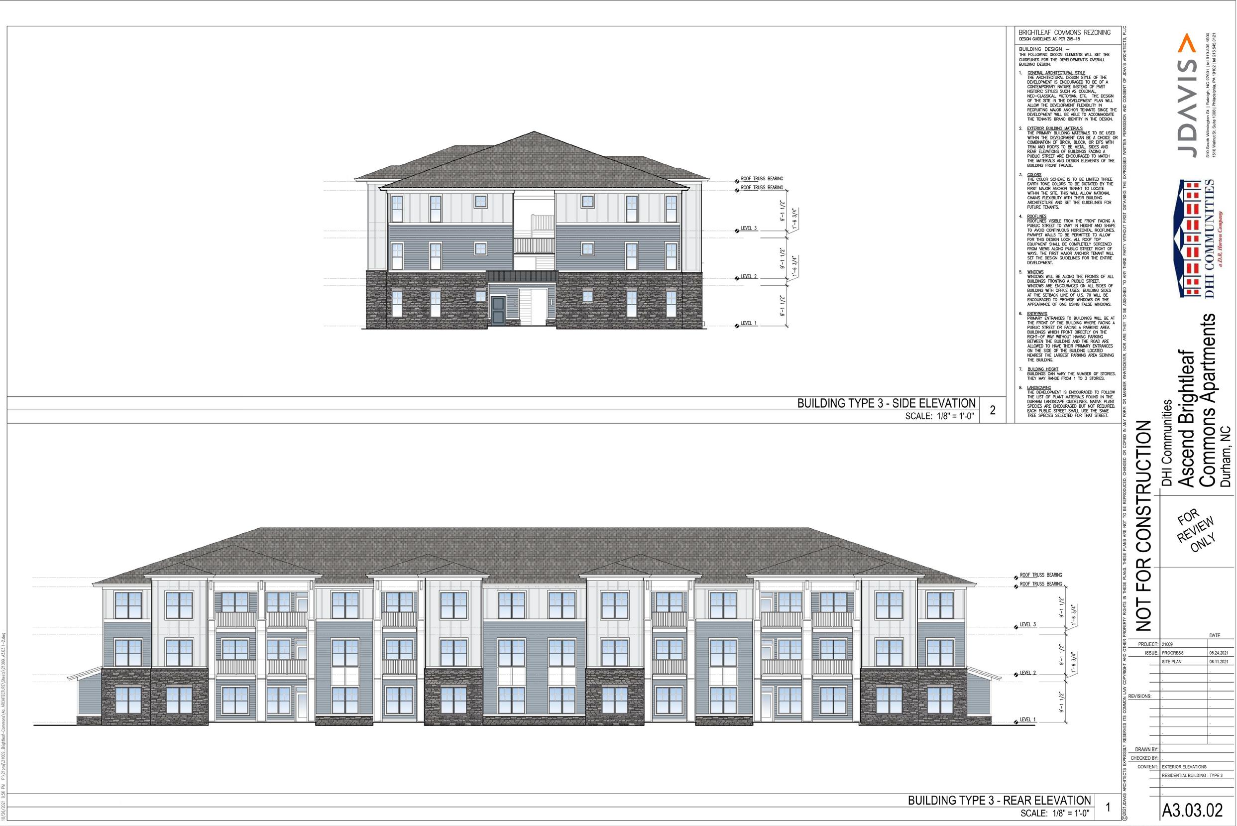
Brightleaf Commons Elevations
32
34
36

Brightleaf Commons is an apartment development with duplex rental units in the city of Durham. I was tasked with colorizing the various types of buildings with the chosen material pallette for a zoning meeting.

37
38
39

Turn static files into dynamic content formats.

Create a flipbook
Issuu converts static files into: digital portfolios, online yearbooks, online catalogs, digital photo albums and more. Sign up and create your flipbook.