Portfólio Bruna Feitosa

Page 1

PORTFÓLIO

A R Q U I T E T U R A | I N T E R I O R E S | U R B A N I S M O 2023 BRUNAFEITOSA

BRUNA Feitosa

souestudantedearquiteturaeurbanismonocentro universitárioparaíso-UniFAP,atualmenteestouno8ºperíodo eminhasáreasdeinteressesãoprincipalmenteemprojetos arquitetônicos/comerciaiseprojetosdeinteriores Tenho27 anosejápossuoumagraduaçãoemgeografiapelaURCA,a qualmeproporcionouterumamelhorvisãosobrequestões urbanaseterumacertanoçãosobreoespaçoconstruído. Soudeterminadaetenhocompromissocomasminhas obrigações,adoroaprenderesempreprocuroaperfeiçoaro meutrabalho,costumopensarnocoletivoesouprestativa. Duranteo4ºperíodo,tiveaoportunidadedeestagiarno escritóriodearquiteturaAlanaMottaeno7ºperíodoentreina equipedaLaryssaLeitãoarquitetura

Softwares:

autocad

scketchup

layout

vray enscapeelumion(emprogresso)

arquitetura e urbanismo

Bruna Emanuelle Feitosa Castro
1 2 3
Habitação de Interesse Social Projeto Urbano - Jardim Gonzaga Projeto Residencial - Trilha Edifício Garden
04 4 5 6
7
Projeto de Interiores - Área de Lazer Projeto de Interiores - Residencial Projeto UPA

informações

HABITAÇÃODE INTERESSESOCIAL

Período:7º-2022

Autoras:Bruna,CaroleMyllena

Disciplina:ProjetoArquitetônico5-UniFAP

Local:BairroJardimGonzaga

Softwares:autocad,sketchup,vrayeenscape

sobre o projeto Oprojetopossuiumterrenoconfortávelparaatendero programadenecessidades,ondefoiintegradoao desenhourbano,localizadonobairroJardimGonzagaem JuazeirodoNorte.Foiadotadooconceito“Ubuntu”,que trata-sedeumtermoantigodaregiãoSulAfricana originadonalínguaZulu,quesignifica“humanidade” Dentrodestaperspectivaabordamosoprincípiode coletividade,socializaçãoesuarespectivareaçãoe interaçãocomoespaçoproposto.

Partindodoconceitoapresentado,almejamosevidenciar aintegraçãoeconexão,adotandoumelodeligaçãoentre osblocos,enosdemaisambientesdospavimentostipos foramacrescentadasvarandascoletivas,visandoampliar asinteraçõesentreosmoradoresdolocal,e,também, destescomoentorno Paraotérreo,foramincluídos espaçosdesocializaçãoecomércio,facilitandooacesso dosmoradoresaserviçoseprodutos.

1
sobre o projeto

aedificaçãoencontra-secomumaáreaconstruídade 3488,16m²,compostapor4blocoscomduastipologias, sendoumacomdoisquartos,eoutracomtrêsquartos,PCD econvencional.Nobloco01e02cadaedificaçãoabriga18 apartamentos,sendootérreocomercial,oprimeiro pavimentoexclusivamentecomapartamentosdotipoPCDe osoutrosdoispavimentoscomapartamentosapenasdo tipoconvencional.Jáobloco03e04contamcom21 apartamentosemcada,sendootérreocomercial,oprimeiro pavimentoexclusivamentecomapartamentosdotipoPCDe osoutrosdoispavimentoscomapartamentosapenasdo tipoconvencional

sobre o projeto

Paraoprojeto,foiidealizadaautilizaçãodemateriaisque promovemoconfortotérmicoelumínico,taiscomoastelhas termoacústicasnacoberta,esquadriasemmadeira,eaberturas empontosestratégicos,que,aliadosàestratégiadeimplantação noprojeto,auxiliamnaentradadeluznaturaleventilação, dificultandoaretençãodecalorpelaedificação,e,assim, contribuindocomaexistênciadeespaçosinternosquese relacionamcomoambienteexternonoformaagradávele sustentável.Aescolhadoblocodeconcretoestruturalocorreu principalmenteporsuasdimensões,quepermitemqueos ambientespossuammaioráreaútil,epossibilita,também,ouso deblocosàmostra,deixandoapossibilidadedeaplicarpintura apenasquandoquiser,semanecessidadedeargamassa,além depossuirumbomisolamentoacústico

PROJETOURBANO JARDIMGONZAGA

informações

Período:7º-2022

Autoras:Bruna,CaroleMyllena

Disciplina:DesenhoUrbano4- UniFAP

Local:BairroJardimGonzaga

Softwares:autocad,sketchup,vrayeenscape

sobre o projeto

Aáreadeintervençãoestálocalizadano bairroJardimGonzagaemJuazeirodoNortee éumprojetointegradoaoanterior,de habitaçãodeinteressesocial Foipossível planejarespaçosquecontribuamna convivênciadoshabitantesdessaregião Dentrodomesmoconceito"ubuntu",aequipe desenvolveuespaçosdesocialização,prática deesportes,comalgunsequipamentose trilhas,alémdeplaygrounds,áreasde socializaçãoequiosquesqueinteragemcom apartecomercialdoprédioparao fortalecimentodomercadolocal.

2

PROJETOURBANO JARDIMGONZAGA

PROJETORESIDENCIAL TRILHA 3

informações

Período:4º-2021

Autoras:Bruna

Disciplina:Projetoarquitetônico2- UniFAP

Local:JuazeirodoNorte

Softwares:autocad,sketchupevray

sobre o projeto

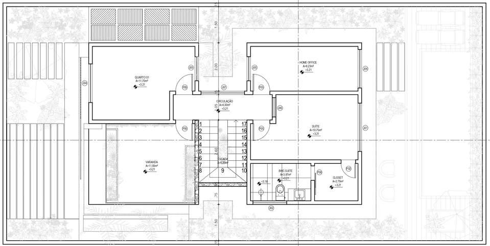
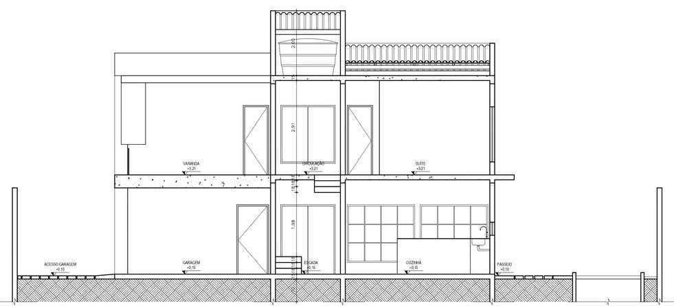
Oprojetotevecomoprogramade

necessidades:umahabitaçãounifamiliarcom doispavimentos,saladejantareestar, cozinha,doisquartos,umsendosuíte,um banheirosocial,umhomeofficeegaragem.A partirdissoedascaracterísticasdafamília, alinhou-seoconceitode"trilha"ondeháuma certaimersãonanaturezaequepermite sensaçõesdetranquilidade Essesaspectos foramtrazidosparaoprojetoapartirdofluxo eespacialidadedaplantaondesecriou caminhosde"trilha"atéchegarno"destino final"daáreadelazer,alémdosmateriais naturaisutilizadoseainserçãodavegetação.

informações

EDIFÍCIOGARDEN

Período:5º-2021

Autoras:Bruna,CaroleMyllena

Disciplina:Projetoarquitetônico3- UniFAP

Local:JuazeirodoNorte

Softwares:autocad,sketchup,vrayeenscape

sobre o projeto Foipropostoaelaboraçãodeumprojetode umedifíciodeusomisto,comerciale residencial,aequipebuscouintegraroedifício aoespaçourbano,paraqueassim,alémde tornaroespaçomaisdemocrático,possibilita ofácilacessoaoespaçocomercial,a espacialidadedasplantasatendeuàs diversasnecessidades,comopçõesde2e trêsquartoselofts Teveoconceitode sustentabilidadeeissofoitrazidonoprojetoa partirdousodeeficiênciaenergética, priorizandoventilaçãoeiluminaçãonatural, alémdousodosmateriais.

4

EDIFÍCIOGARDEN

PROJETODEINTERIORES ÁREADELAZER

2022

Autoras:LaryssaLeitãoeBruna

EscritórioLaryssaLeitãoArquitetura Local:Tauá-CE

informações

Softwares:autocad,sketchup,vray

5

Oprojetofoidesenvolvidoduranteo estágionoescritóriodearquitetura einterioresLaryssaLeitão,sob aprovaçãoealgumasintervenções porpartedaarquitetaresponsável Trata-sedeumprojetodeumaárea delazer,ondeaclientesolicitou umaampliaçãodeáreacoberta comtelhadoaparente,omesmofoi desenvolvidodeacordocomas exigênciasdacliente,comcores neutras,eapermanênciada churrasqueiraquejáexistianolocal, alémdealinharaoestilodeprojeto doescritórioresponsável.Buscou-se gerarumespaçoconfortávele visualmenteagradável.

sobre o projeto

EXECUTIVOCIVILE DETALHAMENTODE MARCENARIA

acesse o qr code e visualize executivo civil e detalhamento de marcenaria de alguns projetos

os detalhamentos foram desenvolvidos no layout

PROJETODEINTERIORES RESIDENCIAL

Período:7º-2021

Autoras:Bruna,CaroleMyllena

Disciplina:Projetodeinteriores1- UniFAP

Local:JuazeirodoNorte

informações

Softwares:autocad,sketchupevray

6

Oprojetofoidesenvolvidoparaa disciplinadeinteriores1, desenvolvemosprojetodacozinha comlavanderiaeumquarto.Esse emtela,trata-sedeumquartopara ummeninode14anos.Buscamos trazerelementosmodernosna composição,alémdeuma marcenariaplanejadaquese adequeaoespaçode9m².

Utilizamosmdfazulsecretoda duratexparadardestaqueem algumasparteseoutromdfmais neutrocomoooásisdaduratexpara permitirodestaquedasoutras áreas,adequamosamarcenariaà ergonomia,confortotérmicoevisual.

sobre o projeto

sobre o projeto

Oprojetodacozinhafoidesafiador porcontadoespaçomínimo,além deintegraralavanderia Utilizamos mdfsemtonsclarosepalhinha indiana.Linkamosomesmomaterial nalavanderiaenaportacamarão queescondealavanderiaquandoa mesmanãoéusada Buscamos trazerfuncionalidadeeconforto visualqueatendesseàs necessidadesdosclientes.

informações

PROJETOUPA

Período:6º-2022

Autoras:Bruna,CaroleMyllena

Disciplina:ProjetoArquitetônicoePaisagismo

Local:JuazeirodoNorte

Softwares:autocad,sketchupevray

Oprojetofoidesenvolvidoparaa disciplinadeprojetoarquitetônicoe paisagismo.Tevecomoconceitoos sentidoshumanos:paladar,olfato, visão,audiçãoetato.Porsetratarde umhospital,procuramosteruma sensibilidademaioreproporcionar aosusuáriosumasensaçãode tranquilidadeeumamaiorconexão comanaturezaapartirdossentidos humanos

sobre o projeto

7
OBRIGADA. (88) 99741-5343 @brunaftsacastro brunafeitosaarquitetura@gmail com Bruna Feitosa.

Turn static files into dynamic content formats.

Create a flipbook
Issuu converts static files into: digital portfolios, online yearbooks, online catalogs, digital photo albums and more. Sign up and create your flipbook.