BROOKE SCRUGGS

![]()

EDUCATION
BACHELORS OF SCIENCE IN INTERIOR DESIGN
WORK EXPERIENCE
ASSISTANT INTERIOR DESIGNER AT CREATIVE DESIGN TEXAS | DALLAS, TX
INTERIOR DESIGN INTERN AT DAVIS ARCHITECTS | BIRMINGHAM, AL
SUMMER INTERIOR DESIGN INTERN AT BROOKE BAILEY HOMES | DALLAS, TX
STUDENT DESIGN ASSISTANT AT UA’S FURNISHINGS & DESIGN | TUSCALOOSA, AL
REVIT, AUTOCAD, SKETCHUP, ADOBE CREATIVE SUITE, MICROSOFT OFFICE, BLUEBEAM, ENSCAPE, HAND DRAFTING, HAND RENDERING, CANVA
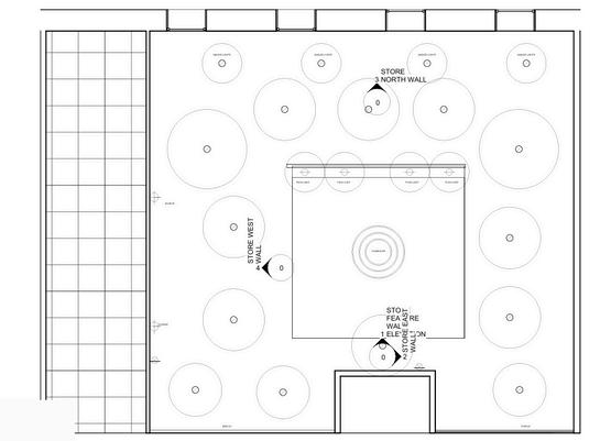
LUXURYBOUTIQUEHOTEL
COMMERCIAL

PROJECTDESCRIPTION:
TheCollierisaboutiquehotellocatedinAustin,TXTheHotelfeatures24Guestsuits,a largerestaurant/bar(TheGarza),andacoffeeshopTheconceptoftheHotelisamodern takeonthesaying“reddirtcountry”whichrepresentsthelandandthespiritofTexasI wasprovidedtheshellofthehotelandfilledintherestfromstarttofinish!


















GreenvilleNestisaretirementhomelocatedinGreenv residencefeelatpeaceintheirnewhome.Safetywa comfortandsimplicityasaclosesecond.Iwasgiventh



1/2"PLYWOODW/MAPLEVENEER
STAINLESSSTEELENGLISHCABINETDOORHINGE 1"PLYWOODW/WHITEASHVENEERLAMINATE









ASSISTEDLIVINGENTRANCE MAINENTRANCE
SKETCHUP


REVIT&ENSCAPE
















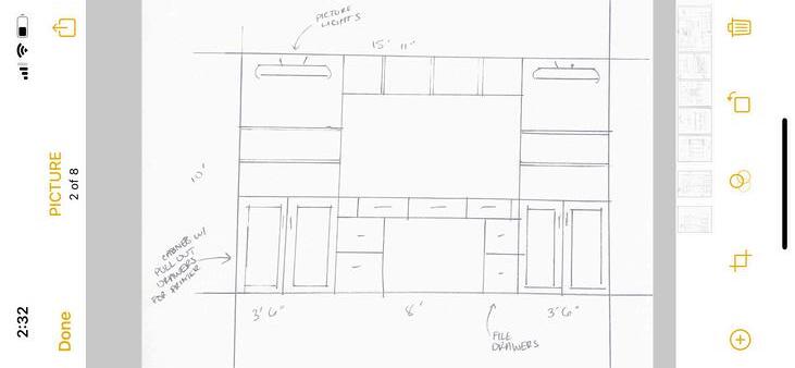
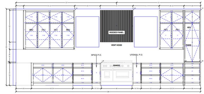
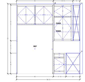
PROJECTDESCRIPTION: IwashiredbyBrookeBaileyHomestodesignaspechouseinDallas,TexasIreceivedthe shellofthis5,000squarefoothouseandwastaskedwithmakingallselectionsand cabinet/detaildrawingsforthehouseIworkedwithseveralvendors,thebuilder,andthe architecttocompletethislargecolonialstylehouseThehouseiscurrentlyintheframing stageandshouldbecompletedaroundAugust2023












STUDY ELEVATION



KITCHEN ELEVATION








PROJECTDESCRIPTION: ThisisacurrentprojectIam workingonforDallasbuilder, BrookeBaileyHomesThisisaspec homelocatedintheeastdallas neighborhood,LakewoodIwas hiredastheinteriordesigneronthe projectandcontributedtoall aspectsoftheprocess,fromspace planning,exteriorselections, plumbing,detaildrawings,lighting specs,etcThisprojectisexpected tobecompletedinAugust2025 andwillbelistedfor3.5Million.














