PROCESO DE CONSTRUCCIÓN DEL MODELADO DE UN PROYECTO
ARQUITECTÓNICO BÁSICO
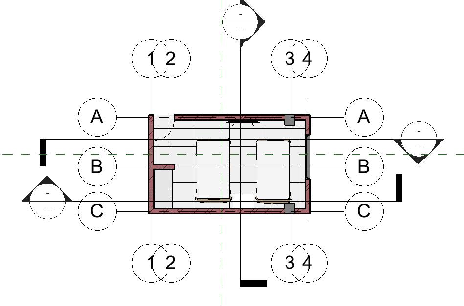
REJILLAS, NIVELES, MUROS Y FORJADOS CON DISTINTAS CAPAS, FAMILIAS DE PUERTAS Y VENTANAS, FAMILIA DE PLANO PERSONALIZADA


![]()
REJILLAS, NIVELES, MUROS Y FORJADOS CON DISTINTAS CAPAS, FAMILIAS DE PUERTAS Y VENTANAS, FAMILIA DE PLANO PERSONALIZADA


REJILLAS, NIVELES, MUROS Y FORJADOS CON DISTINTAS CAPAS, FAMILIAS DE PUERTAS Y VENTANAS, FAMILIA DE PLANO PERSONALIZADA




REJILLAS, NIVELES, MUROS Y FORJADOS CON DISTINTAS CAPAS, FAMILIAS DE PUERTAS Y VENTANAS, FAMILIA DE PLANO PERSONALIZADA

ELEVACIÓN ESTE ELEVACIÓN NORTE



DESPIECE
REJILLAS, NIVELES, MUROS Y FORJADOS CON DISTINTAS CAPAS, FAMILIAS DE PUERTAS Y VENTANAS, FAMILIA DE PLANO PERSONALIZADA

ELEVACIÓN OESTE

ELEVACIÓN SUR

INSTALACIONES ELECTRICAS Y SANITARIAS

DESPIECE


REJILLAS, NIVELES, MUROS Y FORJADOS CON DISTINTAS CAPAS, FAMILIAS DE PUERTAS Y VENTANAS, FAMILIA DE PLANO PERSONALIZADA




