The Landing Suite 200

Page 1

Class “A” Office Space For Sublease

115 FAIRCHILD STREET, SUITE 200 DANIEL ISLAND, SC

• Suite 200 - 1,822 - 9,977 RSF

• Master Lease Term through August 2028

• Potential Expansion up to 14,382 RSF

• $29.50/RSF, Full Service

MARK A. MATTISON, II CCIM SIOR

Executive Vice President

DIR: +1 843 437 1545 mark.mattison@bridge-commercial.com

PETER FENNELLY, SIOR, MCR, SLCR

President

DIR: +1 843 425 0186 peter.fennelly@bridge-commercial.com

COLBY FARMER

Associate

DIR: +1 978 998 9243 colby.farmer@bridge-commercial.com

CLICK HERE TO WATCH PROPERTY VIDEO

CORPORATE OFFICE SPACE ON DANIEL ISLAND

The Landing is one of the most unique office building opportunities in the Charleston, SC market offering abundant on-site parking. Excellent access to Interstate I-526 heading east and west. Within walking distance to numerous amenities ranging from dining, retail trades, financial institutions and residential units.

Proximate to high profile office users including BLACKBAUD and BENEFIT FOCUS.

HIGH END INTERIOR FINISHES

EASILY ACCESSIBLE

MINUTES TO AMENITIES ABUNDANT PARKING

NEARBY PARKS & TRAILS

CHARLESTON 26 DANIEL ISLAND MT. PLEASANT N. CHARLESTON 526 WEST ASHLEY BRIDGE-COMMERCIAL.COM

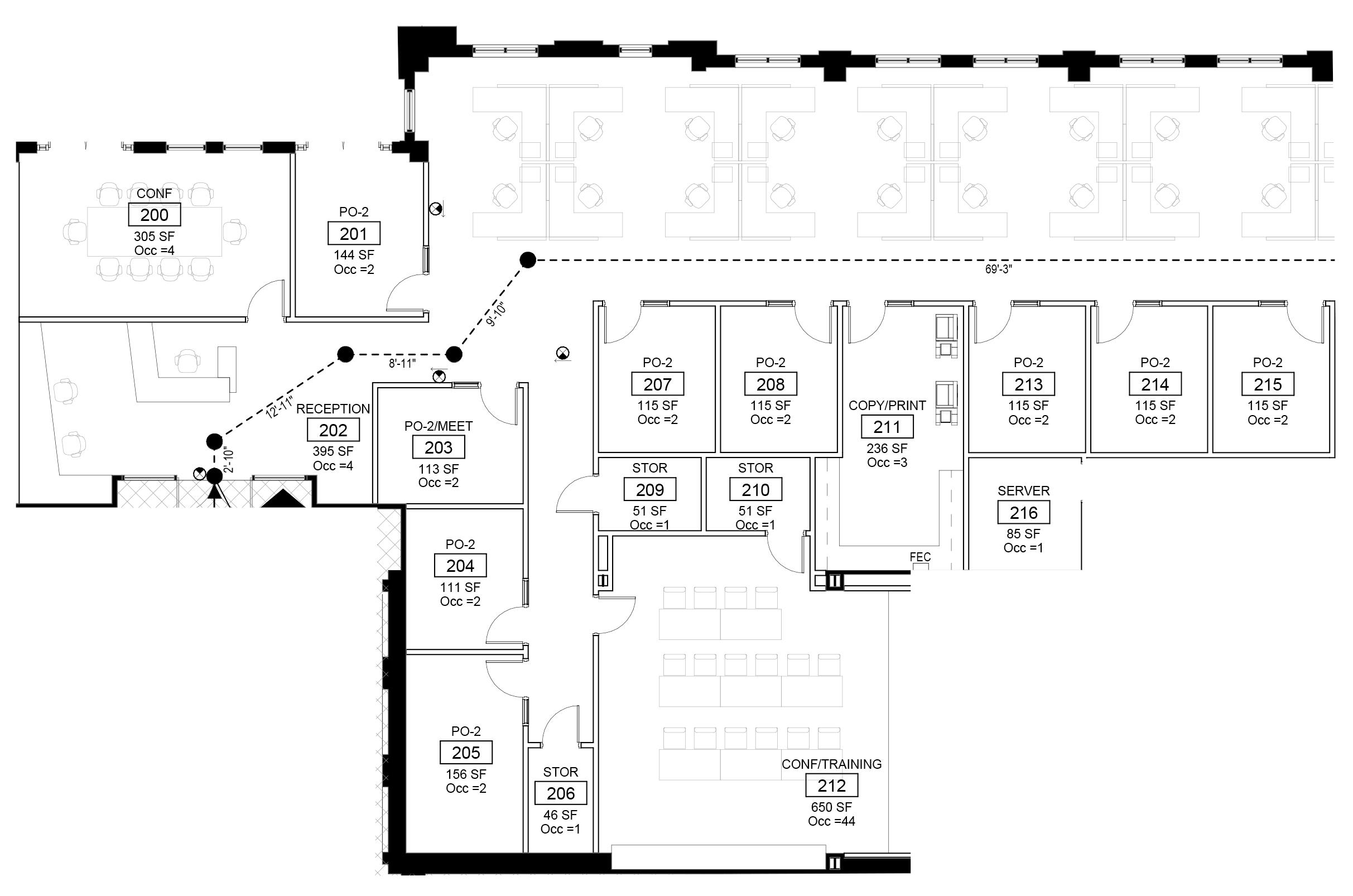
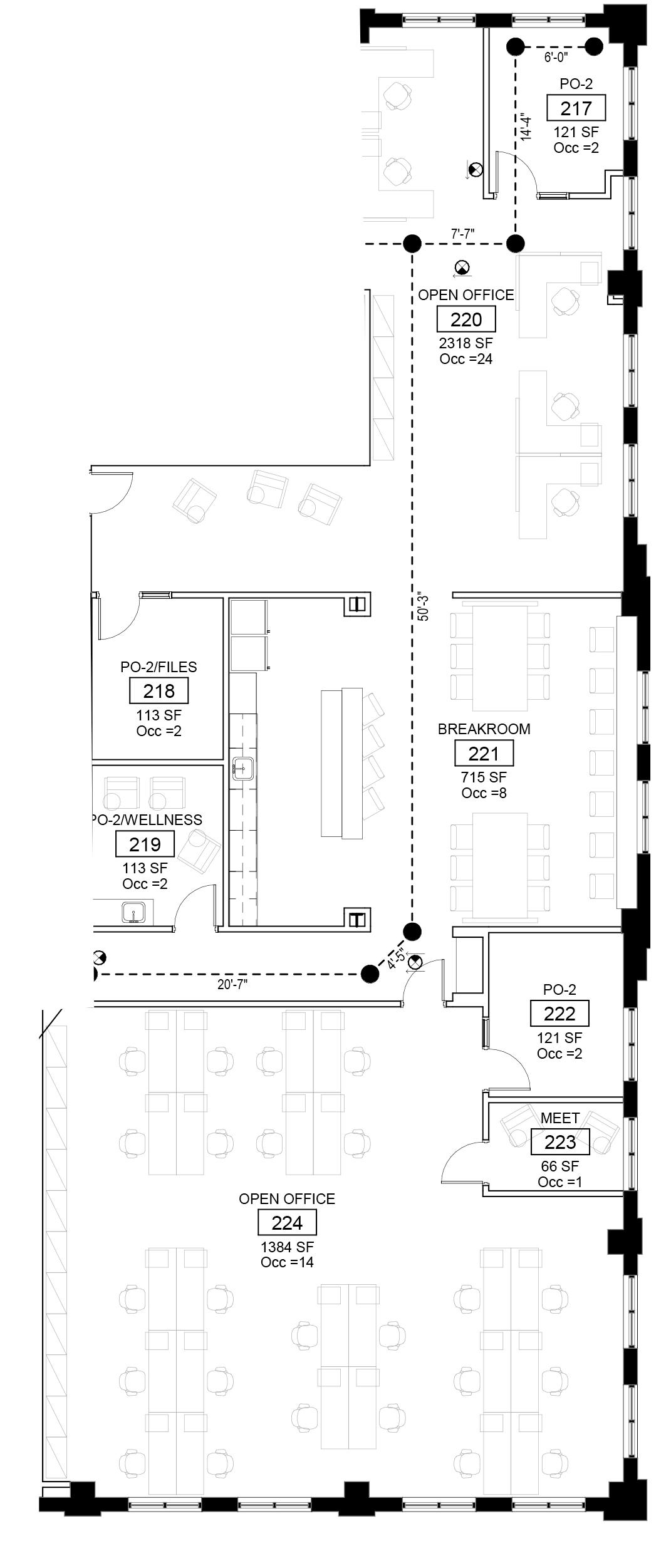
SUITE 200 SPACE PLAN

Bridge Commercial makes no guarantees, representations or warranties of any kind, expressed or implied, including warranties of content, accuracy and reliability. Any interested party should do their own research as to the accuracy of the information. Bridge Commercial excludes warranties arising out of this document and excludes all liability for loss and damages arising out of this document.

1,822 SF

5,996 SF

3,981 SF

9,977 RSF LIFE SAFETY LEGEND Min. (Typ.) 3'-4" Clear18" Min. Front Approach, Pull Side Front Approach, Push Side 60" Min. 12" Min. Both Closer and Latch Provided Hinge Approach, Pull Side 60" Min. 36" Min. 42" Min. 54" Min. Hinge Approach, Push Side 22" Min. 12" Min. Both Closer and Latch Provided Latch Side Approach, Pull Side 24" Min. P 4 C 4 M 24" Min. Two Doors in Series 60" Min. 48" Min.Door Width Door Width48" Min.Door Width T y 6 M n 4 M n Doorway Without Door, Front Approach Doorway Without Door, Side Approach 4 2 M Sliding and Folding Door, Pocket or Hinge Approach 22" Min. 4 2 M Sliding and Folding Door, Stop or Hinge Approach 24" Min. UNOBSTRUCTED FORWARD REACH OBSTRUCTED HIGH FORWARD REACH OBSTRUCTED HIGH FORWARD REACH UNOBSTRUCTED SIDE REACH OBSTRUCTED HIGH SIDE REACH OBSTRUCTED HIGH SIDE REACH OCCUPANCY TYPE EXISTING COMMON, N.I.C. N.I.C.14'4" 69'9-10 -11"1120'-7" 4'-5 50'3" 7'-7" 8'-0" 3'11'-7" 2'10" 77'-10" - 85'EXISTING COMMON CORRIDOR EXISTING COMMON CORRIDOR 40 0" 4" 20 0" 0' 4" 20 FEC 305 SF CONF 200 Occ =4 144 SF PO-2 201 Occ =2 395 SF RECEPTION 202 Occ =4 113 SF PO-2/MEET 203 Occ =2 111 SF PO-2 204 Occ =2 156 SF PO-2 205 Occ =2 46 SF STOR 206 Occ =1 115 SF PO-2 207 Occ =2 115 SF PO-2 208 Occ =2 51 SF STOR 209 Occ =1 51 SF STOR 210 Occ =1 236 SF COPY/PRINT 211 Occ =3 650 SF CONF/TRAINING 212 Occ =44 115 SF PO-2 213 Occ =2 115 SF PO-2 214 Occ =2 115 SF PO-2 215 Occ =2 85 SF SERVER 216 Occ =1 121 SF PO-2 217 Occ =2 113 SF PO-2/FILES 218 Occ =2 113 SF PO-2/WELLNESS 219 Occ =2 2318 SF OPEN OFFICE 220 Occ =24 715 SF BREAKROOM 221 Occ =8 121 SF PO-2 222 Occ =2 66 SF MEET 223 Occ =1 1384 SF OPEN OFFICE 224 Occ =14 Architects, Engineers, Constructors www.brph.com Copyright 2018 4105 Faber Place Drive | Suite 480 Charleston South Carolina 29405 843-743-0222 Offices in Melbourne, Orlando, Atlanta, West Palm Beach, Everett and Charleston Board of Architecture License No. 100163 S TATE OF S U H CAROL INA GROHER LOGAN M. E G ISTE E D RC ITEC T TATE O O T CAROL INA ENGINEERS INC. NORTH CHARLESTON, SC No. 100163 BRPH ARCHITECTS S 5 4 3 2 1 LOWE ENTERPRISESSUITE 200 185 FAIRCHILD STREET, DANIEL ISLAND, 29492 REACH RANGES ACCESSIBLE DOOR CLEARANCES 213 PO-2 B 100 2115 SF 214 PO-2 B 100 2115 SF 215 PO-2 B 100 2115 SF 216 SERVER B 100 185 SF 217 PO-2 B 100 2121 SF 218PO-2/FILES B 100 2113 SF 219PO-2/WELLNESSB 100 3113 SF 220OPEN OFFICE B 100 242318 SF 221BREAKROOM B 100 8715 SF 222 PO-2 B 100 2121 SF 223 MEET B 100 166 SF 224OPEN OFFICE B 100 141384 SF GENERAL NOTES: NO SEPERATION IS REQUIRED BETWEEN OCCUPANCIES OF TH SAME USE. ALL EXISTING TENANT IMPROVEMENTS ARE "B" OCCCUPANCIES. 1. 1/8" = 1'-0" 1 SECOND FLOOR LIFE SAFETY PLAN TOTALS 126 7342 SF

SUITE 270 EXPANSION SPACE 4,405 RSF

5,996 SF

4,405 SF

SECOND FLOOR LIFE SAFETY PLAN

Bridge Commercial makes no guarantees, representations or warranties of any kind, expressed or implied, including warranties of content, accuracy and reliability. Any interested party should do their own research as to the accuracy of the information. Bridge Commercial excludes warranties arising out of this document and excludes all liability for loss and damages arising out of this document.

3,981 SF

1,822 SF

OCCUPANCY TYPE

Doorway Without Door, Front Approach Doorway Without Door, Side Approach Sliding and Folding Door, Pocket or Hinge Approach Sliding and Folding Door, Stop or Hinge Approach UNOBSTRUCTED SIDE REACH OBSTRUCTED HIGH SIDE REACH OBSTRUCTED HIGH SIDE REACH
EXISTING COMMON, N.I.C. N.I.C. 6'-0" 14'4" 69'-3" 9-10 " 8'-11" 12-11 " 2'10" 20'-7" 4'-5 " 50'3" 7'-7" 8'-0" 3'7" 11'-7" 2'10" 77'-10" 5'1" 85'-9" EXISTING COMMON CORRIDOR EXISTING COMMON CORRIDOR 6' 0" 0' 8" 40 3' 0" 0' 4" 20 3' 0" 0' 4" 20 FEC 305 SF CONF 200 Occ =4 144 SF PO-2 201 Occ =2 395 SF RECEPTION 202 Occ =4 113 SF PO-2/MEET 203 Occ =2 111 SF PO-2 204 Occ =2 156 SF PO-2 205 Occ =2 46 SF STOR 206 Occ =1 115 SF PO-2 207 Occ =2 115 SF PO-2 208 Occ =2 51 SF STOR 209 Occ =1 51 SF STOR 210 Occ =1 236 SF COPY/PRINT 211 Occ =3 650 SF CONF/TRAINING 212 Occ =44 115 SF PO-2 213 Occ =2 115 SF PO-2 214 Occ =2 115 SF PO-2 215 Occ =2 85 SF SERVER 216 Occ =1 121 SF PO-2 217 Occ =2 113 SF PO-2/FILES 218 Occ =2 113 SF PO-2/WELLNESS 219 Occ =2 2318 SF OPEN OFFICE 220 Occ =24 715 SF BREAKROOM 221 Occ =8 121 SF PO-2 222 Occ =2 66 SF MEET 223 Occ =1 1384 SF OPEN OFFICE 224 Occ =14 5 4 3 2 1 A B C D U:\Revit Project Files\2017\Lowe Enterprises_Central_ksmall@brph.rvt 4/6/2018 10:04:12 AM
ACCESSIBLE
REACH RANGES
DOOR CLEARANCES
SUITE 200
9,977 RSF
A LIFESTYLE FOR BUSINESSES & EMPLOYEES BEFORE, DURING & AFTER HOURS DANIEL ISLAND’S WORKPLACE Photos courtesy of www.danielisland.com www.dockerys.com www.vespapizzaria.com www.danielislandnews.com S RESTAURANTS (R) BANKS (B) HOTELS (H) RETAIL & SERVICES (S) S B S S FAIRCHILD ST R R R B R H H R S R R R R B S B SEVEN FARMS DR RIVER LANDING DR R S S AMENITY-RICH LOCATION EXIT 24 Agaves Cantina Ali Baba Deli & Catering Bin 526 Blondies Bagels & Cafe Daniel Island Grill Dragon Palace Chinese Bistro
Honeycomb Cafe Laura Alberts Orlando’s Brick Oven Pizza
LIDI
Courtyard Starbucks Sweets by the Beach Tropical Smoothie Cafe Hampton Inn Home 2 Suites BB&T Federal Credit Union FineMark Bank First Citizens Bank SunTrust Bank Synovus Bank Wells Fargo ATM Circle K Cooper River Cycles Daniel Island Computer Doctor Eagan’s Spirits Envy Salon & Beauty Boutique Lucia’s Pet Shop O2 Fitness
of Daniel Island Refuel BRIDGE-COMMERCIAL.COM
Dockery’s
Ristorante
Sermet’s
Paisley

MARK A. MATTISON, II CCIM SIOR

Executive Vice President

DIR: +1 843 437 1545 mark.mattison@bridge-commercial.com

PETER FENNELLY, SIOR, MCR, SLCR

President

DIR: +1 843 425 0186 peter.fennelly@bridge-commercial.com

COLBY FARMER

Associate

DIR: +1 978 998 9243 colby.farmer@bridge-commercial.com

BRIDGE COMMERCIAL

25 Calhoun Street, Suite 220 Charleston, SC 29401

Tel: +1 843 535 8600

BRIDGE-COMMERCIAL.COM

Bridge Commercial makes no guarantees, representations or warranties of any kind, expressed or implied, including warranties of content, accuracy and reliability. Any interested party should do their own research as to the accuracy of the information. Bridge Commercial excludes warranties arising out of this document and excludes all liability for loss and damages arising out of this document.

115 FAIRCHILD STREET, SUITE 200 CHARLESTON, SC 29492 FOR SUBLEASE

Turn static files into dynamic content formats.

Create a flipbook
Issuu converts static files into: digital portfolios, online yearbooks, online catalogs, digital photo albums and more. Sign up and create your flipbook.
The Landing Suite 200 by bridgecommercial - Issuu