Faber Plaza

Page 1

FABER PLAZA | 4400 LEEDS AVENUE NORTH CHARLESTON, SC 29405 CLASS “A” OFFICE SPACE FOR SUBLEASE PARK LIKE SETTING: LIVE OAKS, PICNIC AREA AND WALKING TRAILS HIGHLY VISIBLE FROM LEEDS AVENUE, IMMEDIATE ACCESS TO I-526 & 1-26 SURROUNDED BY DINING, SHOPPING & BANKS MARK MATTISON, II, SIOR, CCIM Executive Vice President +1 843 437 1545 mark.mattison@bridge-commercial.com

OFFICE SPACE IN NORTH

CHARLESTON

ADDRESS:

4400 Leeds Avenue Charleston, SC 29405

AVAILABLE SF: 3,453 SF

LEASE RATE: $26.50/PSF

MASTER LEASE: Expires Q2 2025

BRIDGE-COMMERCIAL.COM
CHARLESTON NORTH CHARLESTON SUMMERVILLE WEST ASHLEY MOUNT PLEASANT DANIEL ISLAND GOOSE CREEK SULLIVANS ISLAND ISLE OF PALMS FOLLY BEACH JOHNS ISLAND Atlantic Ocean BRIDGE-COMMERCIAL.COM

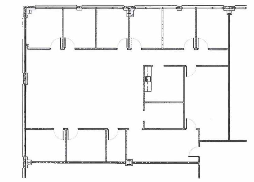
FLOOR PLAN

BRIDGE-COMMERCIAL.COM Bridge Commercial makes no guarantees, representations or warranties of any kind, expressed or implied, including warranties of content, accuracy and reliability. Any interested party should do their own research as to the accuracy of the information. Bridge Commercial excludes warranties arising out of this document and excludes all liability for loss and damages arising out of this document.
SUITE 470: 3,453 RSF

CENTRALLY LOCATED, EASILY ACCESSIBLE & MINUTES TO AMENITIES

Azul

Bonefish Grill

Buffalo Wild Wings

Charleston Sports Pub

Chick-fil-a

Chili’s

Chipotle

Daniel Island Grill

Frothy Beard Brewing

Jackrabbit Filly

DINING

Jersey Mike’s

Jim N Nick’s BBQ

Jimmy Johns

Kickin Chicken

LoLA

McAlister’s Deli

Mellow Mushroom

Mod Pizza

Moe’s

Panera Bread

Poke Bros.

Rio Chico

Sesame Burger

Smoothie King

Starbucks

The Tattooed Moose

Tropical Smoothie Cafe

Zaxby’s

Aloft

Bank of America

Charleston Int. Airport

DoubleTree

Embassy Suites

Hampton Inn

Harris Teeter

Holiday Inn Express

Hyatt Place

Office Depot

Publix

Sam’s Club

Spinx

Staples

Tanger Outlets

Target

Walmart

FABER PLAZA

Top Golf
HOTELS, RETAIL & SERVICES
North Charleston Coliseum & Performing Arts Center
MILES 6 MINUTES 5.7 MILES 10 MINUTES 7.2 MILES 10 MINUTES 4.1 MILES 7 MINUTES PARK CIRCLE CENTRE POINTE CITADEL MALL AshleyRiver COSGROVE AVE ASHLEY RIVER RD MCCONNEL GLENN AZALEA DR DORCHESTER RD SPRUILLAVE RIVERSAVE MONTAGUE AVE LEEDS AVE 2.7 MILES 6 MINUTES
3.4
3.6 MILES 6 MINUTES
FABER PLAZA | 4400 LEEDS AVENUE NORTH CHARLESTON, SC 29405 CLASS “A” OFFICE SPACE FOR SUBLEASE FOR MORE INFORMATION, CONTACT: MARK MATTISON, II, SIOR, CCIM Executive Vice President +1 843 437 1545 mark.mattison@bridge-commercial.com

Turn static files into dynamic content formats.

Create a flipbook
Issuu converts static files into: digital portfolios, online yearbooks, online catalogs, digital photo albums and more. Sign up and create your flipbook.