7240 Cross Park Drive

Page 1

7240 CROSS PARK DRIVE OFFICE FOR LEASE 3,000 SF AVAILABLE AMPLE PARKING NORTH CHARLESTON, SC 29418 HAGOOD S. MORRISON, SIOR | Vice President | +1 843 830 9108 | hs.morrison@bridge-commercial.com COLBY FARMER | Associate | +1 843 990 7882 | colby.farmer@bridge-commercial.com OFFICE AVAILABLE IN NORTH CHARLESTON

7240 CROSS PARK DRIVE OFFICE FOR LEASE

SUMMARY OF OFFERING

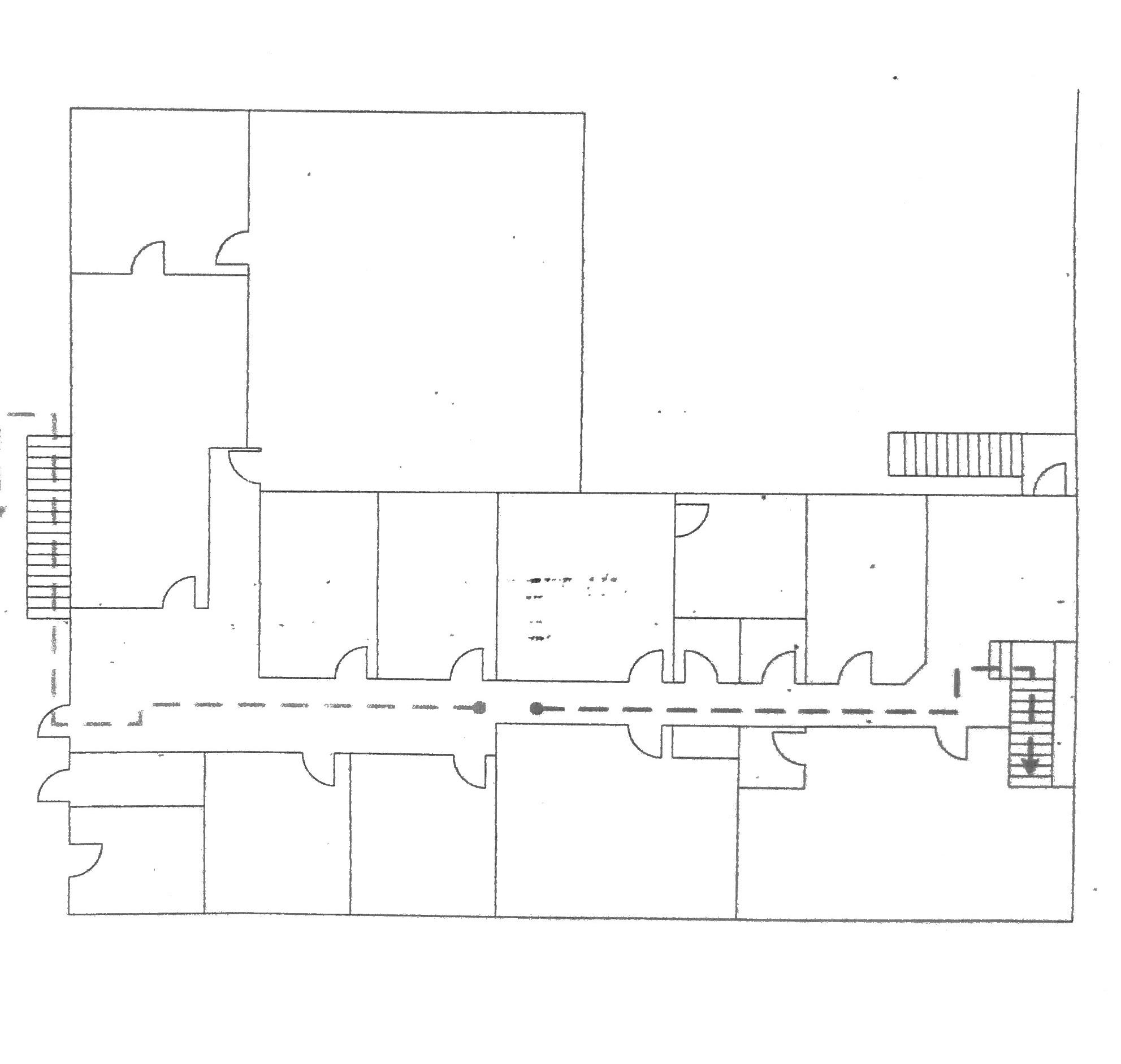
7240 Cross Park Drive is a 6.10 acre property zoned Light Industrial in North Charleston, South Carolina. The property is improved with a 106,353 SF metal warehouse built in 1996. 7240 Cross Park is offering flexlible second floor office space for lease located in the heart of North Charleston along the Ashley Phosphate corridor. The space is accessed by a dedicated door leading directly upstairs to the suite. The suite offers 7 offices, a storage room, conference room and 3 bathrooms. In addition to storage within the office there is additional mezzanine storage contiguous with the office.

FLOOR & SITE PLAN

Storage Mezzanine Storage Leased Office Office Office Storage Room Office Office Office Office IT Closet Conference Room Front Entrance

7240 CROSS PARK DRIVE FOR LEASE

LOCATION OVERVIEW

DORCHESTERRD

ASHLEY PHOSPHATE RD CHARLESTON AIRFORCE BASE 7240 CROSS PARK DRIVE CROSS COUNTY RD BOEING 5.5 MILES 5.8 MILES R.B. STALL HIGH SCHOOL

7240 CROSS PARK DRIVE OFFICE FOR LEASE

Rental Rate $12.00 Full Service

SF Available 3,000 SF City North Charleston County Charleston

Comments

7240 Cross Park is offering flexlible second floor office space for lease located in the heart of North Charleston along the Ashley Phosphate corridor. The space is accessed by a dedicated door leading directly upstairs to the suite. The suite offers 7 offices, a storage room, conference room and 3 bathrooms. In addition to storage within the office there is additional mezzanine storage contiguous with the office.

Bridge Commercial makes no guarantees, representations or warranties of any kind, expressed or implied, including warranties of content, accuracy
reliability. Any interested party should do their own research as to the accuracy of the information. Bridge Commercial excludes warranties arising out of this document and excludes all liability for loss and damages arising out of this document.
and
HAGOOD S. MORRISON, SIOR | Vice President | +1 843 830 9108 | hs.morrison@bridge-commercial.com
FARMER | Associate | +1 843 990 7882 | colby.farmer@bridge-commercial.com I-26 Exit 209 2.6 mi Bosch 3.3 mi Boeing 5.5 mi Mercedes Benz 5.8 mi N. CHS Terminal 11.2 mi Hugh Leatherman Terminal 13.2 mi Wando Welch Terminal 18.3 mi Volvo 28.4 mi
COLBY

Turn static files into dynamic content formats.

Create a flipbook
Issuu converts static files into: digital portfolios, online yearbooks, online catalogs, digital photo albums and more. Sign up and create your flipbook.
7240 Cross Park Drive by bridgecommercial - Issuu