Brian J. Russo Interior Design Portfolio

Page 1

Interior Design

Undergraduate

/pôrt ˈ fōlēō/
RUSSO
PORTFOLIO
BRIAN
2023
Work 2020 -
BR

THIS IS ME! HI THERE,

BRIAN RUSSO

INTERIOR DESIGN

CONTACT

(978) 835-5624

www.linkedin.com/in/bri anrusso9 russo1206@comcast.net

EDUCATION

B.S., Interior Design

HighPointUniversity | HighPoint,NC 2019 - 2023

PresidentialScholar

AlphaLambdaDeltaHonorSociety

SKILLS

Highly industrious with a hardworking mentality

Perform all assigned tasks in a timely and professional manner

Microsoft Office, Word, PowerPoint, Excel, and Outlook

Proficient in Studio Designer, Adobe InDesign, Photoshop, Illustrator, SketchUp, AutoCAD, Revit, & Enscape

Hand & 3D Renderings

Artistic eye for spatial design

BR

EXPERIENCE

Associate Interior Designer | May 2023 - Present

Ageloff & Associates | New York, NY

Engage with the Firm’s principals, associates, and vendors to research and integrate design components and furnishings for the Firm’s projects

Prepare client presentations and proposals while also serving as a purchasing agent to acquire decorative items on behalf of clients

Contribute to sketching, drafting, designing, and producing construction drawings tailored to the specific requirements of the Firm's projects

Oversee multiple projects from the initial site survey phase through to installation.

Assistant Resident Director | Aug. 2022 - May 2023

High Point University | High Point, NC

Served as a mentor and advisor for 50 students in my residential community while enforcing campus living policies

Received promotion of Assistant Resident Director after two years of Resident Assistant experience

Assisted the Resident Director in administrative tasks and the oversight of a staff of 10 Resident Assistants

Interior Design Intern | Jan. 2022 - May 2023

Ageloff & Associates | New York, NY

Collaborated with principals and associates in researching and processing design components and furnishings for the Firm’s design projects

Responded to internal and external inquiries from the Firm’s associates, principals, vendors and service providers

Participated in sketching, drafting, design, and construction drawings based on the nature of the Firm's projects

Director of First Impressions | May 2021 - Aug. 2021

18|8 Fine Men's Salons | Burlington, MA

Greeted 30 guests a day by checking them in and directing them to their stylist

Established diverse customer service skills through engaging with clients both in-person and over the phone

Completed daily tasks relevant to the salon's operation

ORGANIZATIONS

American Society of Interior Designers | 2023 - Present

Siegfried Leadership Fellow | Aug. 2019 - May 2023

Contribute ideas to foster leadership and community involvement for the city of High Point

Complete 20 hours of community service within the local community per year

TABLE OF

CONTENTS

01. 01.

02. 02.

COTTAGE DRAWINGS

AutoCAD

03. 03.

SPA & RESIDENCE

Revit

04. 04.

HEALTH & WELLNESS CENTER INSPIRATION BOARDS

Adobe Illustrator

07.

HAND RENDERINGS

By Hand

HEALTH & WELLNESS CENTER DRAWINGS / RENDERINGS

AutoCAD & Revit

NEOCLASSICISM IN THE 21ST CENTURY

Revit

ADA COMPLIANT MEN'S RESTROOM

Revit

JACKSONVILLE, FL COHOUSING COMMUNITY

Revit

07.
08.
08.
05. 05. 06. 06.
5

ONE PROJECT 01.

COTTAGE DRAWINGS

AutoCAD

For this project, I was tasked with drafting digital drawings of a cottage's exterior. Using technical digitaldrawingstandards,Iproducedvariousbuilding elevations of the exterior of the cottage, as well as twobuildingsections.

Completed 2020

Interior Design Portfolio | 2023

Building Elevations

Building Sections

7

TWO PROJECT 02.

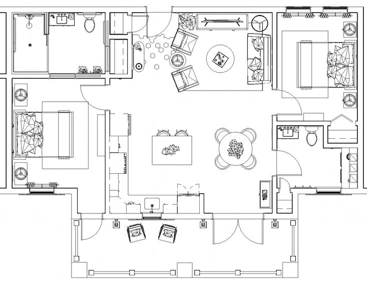
SPA & RESIDENCE Revit

White Oaks Spa is located at the base of a mountain in Gatlinburg, Tennessee and surrounded by water features and an abundance of wild life. Each of these elements will contribute to the facilitation of the holistic day spa treatments specializing in therapeutic treatment for Multiple Sclerosis (MS) patients. In addition, a residence is directly adjacent to the day spa, which is the home of the spaowners,PatandChrisHelf.

Located in Gatlinburg, Tennessee, the White Oaks Spa pays tribute to the historical origins of Gatlinburg, as it was onceknownastheWhiteOakFlats.

For this project, I created a conceptual design around a central parti of the white oak tree. Integration of the parti include various decorative elements throughout the space, aswellasvariousfinishes.

Completed2021

Interior Design Portfolio | 2023

BOARD MOOD

9
PLAN FLOOR

CEILING PLAN

11
REFLECTED

RENDERINGS

SPA&WELLNESSCENTER
13
RENDERINGS RESIDENCE

THREE PROJECT 03.

HEALTH & WELLNESS CENTER INSPIRATION BOARDS

AdobeIllustrator

For this project, I was tasked with sourcing and finding inspirationforspacesinaHealth&WellnessCenterthatIam designing for the Camp Dawson Army National Guard Military Base in Kingwood, WV. This Center is being designed to provide a space where military personnel and their families can focus on a holistic approach to physical, mental, and spiritualhealth.

When sourcing furniture for the Center, all furniture, fixtures,andequipmenthadtobeGSArated.

Completed 2022

Interior Design Portfolio | 2023

*Indicates Room Being Shown

Entry Lobby | Waiting | Library
INSPIRATION
Reception
BOARD
15

*Indicates Room Being Shown

BOARD

INSPIRATION
Kitchen | Food Demonstration Room

*Indicates Room Being Shown

BOARD

Relaxation | Meditation Space
17

*Indicates Room Being Shown

Exterior Wellness Space BOARD INSPIRATION

*Indicates Room Being Shown

BOARD

Journaling Center
INSPIRATION 19

FOUR PROJECT 04.

HAND RENDERINGS

As a continuation of the previous project, I was taskedtoproducearangeofhandrenderingsofafew spacesintheCampDawsonHealth&WellnessCenter. Using hand rendering techniques and strategies, I produced five hand renderings using micron ink pens, alcoholmarkers,&tracingpaper.

Completed 2022

Interior Design Portfolio | 2023
RENDERINGS HAND RENDERINGS INCLUDE: 01. Reception Lobby | Waiting Area 02. Exterior Wellness Space 03. Relaxations | Meditation Space 04. Kitchen | Food Demonstration Room 05. Journaling Center 01. 02. 03. 04. 05. 21

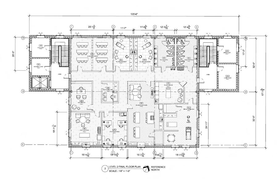
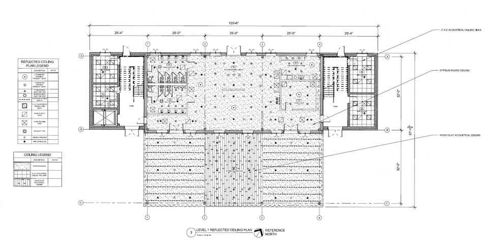
FIVE PROJECT 05.

HEALTH & WELLNESS CENTER DRAWINGS & RENDERINGS

AutoCAD & Revit

Asthisyearlongprojectcontinued,Iwastaskedwith using all preliminary research and findings to digitally draft a set of design development drawings with relevance to the construction of the Health & Wellness Center. Using digital drafting skills, I produced ten varying plans in AutoCAD to communicate various elements of the design and construction.

Uponcompletionoftheconstructionsetofdrawings inAutoCAD,thedrawingsweretransferredtoRevitto developrenderingsusingEnscape.

Completed 2022-2023

Interior Design Portfolio | 2023

PLANSFLOOR

Level

Level 2

1
23

CEILING PLANS

REFLECTED 1 Level 2 Level

PLANS POWER & DATA 1

Level

Level 2

25

Level

Level 2

PLANS LIGHTING 1

PLANS LIFE SAFETY

27
1 Level
Level
PLANS LIFE SAFETY 2

RENDERINGS

29

RENDERINGS

SIX PROJECT 06.

NEOCLASSICISM IN THE 21ST CENTURY Revit

For this project, I was tasked with designing an interior space with inspiration from a historical period. Using research methods and seeking inspiration, I designed a living room / library space that includes visual elements, such as decorative wall molding, crown and base molding, accentsofgold,amutedcolorpalettewithaccentsofnavy, andsimplisticfurnishingstomodernizetheessenceofNeoClassical architecture and interiors. The space embodies many of the parti's and elements related to this style of design. It was modernized in a manner that is relevant to today's design trends while still clearly communicating its inspirationof18thand19thcenturyNeo-Classicism.

Completed 2022

Interior Design Portfolio | 2023

BOARDS MOOD

PLAN

FLOOR 33

BOARD MATERIAL

1. Marble Herringbone Fireplace Tile

2. Wood Flooring

3. Perigold Area Rug

4. Grey Painted Furniture Finish

5. Antique Brass Metal

Bernhardt

6. Kravet Armor Titan Chenille Blue Fabric for Chairs, Ottomans, and Stools 7. White Linen Fabric 8. Bookshelf Quartz Countertop: Cambria Swanbrige 9. Semi-Gloss White Cabinets 10. Benjamin Moore Calm (OC-22) Ceiling Paint 11. Benjamin Moore Super White (OC-152) Wall & Molding Paint 12. Phillip Jeffries Wallcovering for Bookshelf Interior

RENDERINGS

35

SEVEN PROJECT 07.

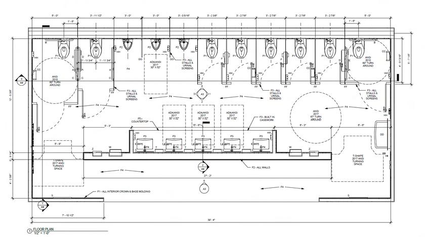
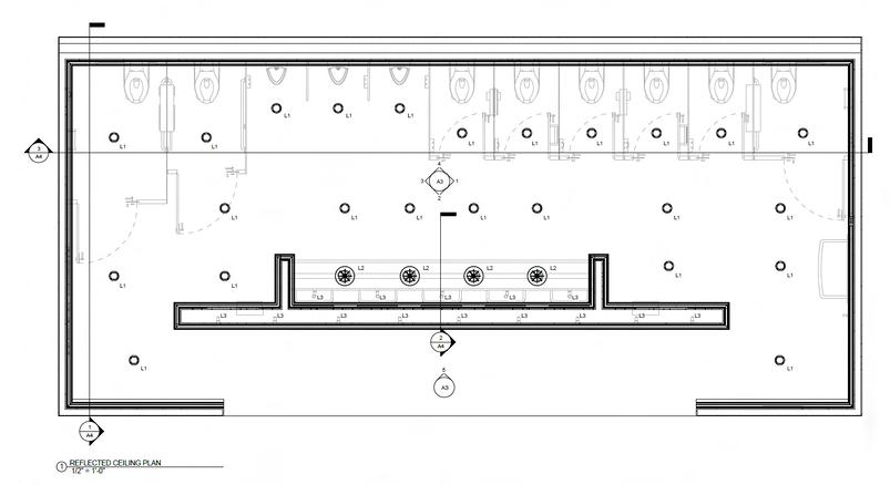
ADA COMPLIANT MEN'S RESTROOM Revit

For this project, I was tasked with designing a commercial men's restroom in accordance with all regulations set in place by the American's with Disabilities Act (ADA). Using Revit and Enscape, I developedadetailedfloorplan,reflectedceilingplan, interiorelevations,andrenderings.

Completed 2022

Interior Design Portfolio | 2023
37
PLAN FLOOR

CEILING PLAN REFLECTED

ELEVATIONS

INTERIOR 39

RENDERINGS

EIGHT PROJECT 08.

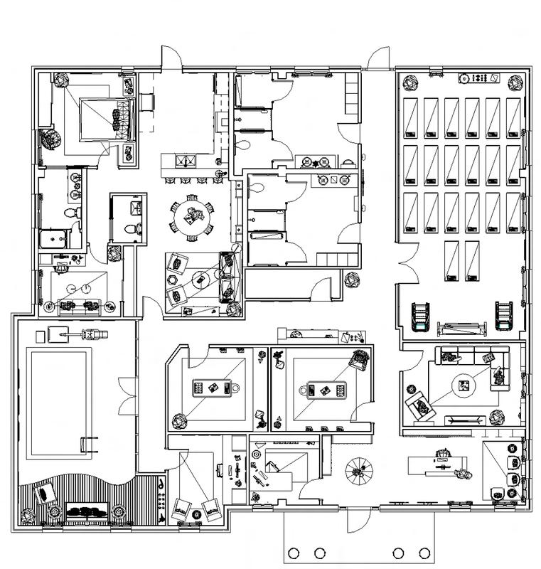
JACKSONVILLE, FL COHOUSING COMMUNITY Revit

For this project, I was tasked with working in a team of three to design a cohousing community with special emphasis of elderly residents over the age of 65. Using research methods and seeking inspiration, I designed the entry, lounge space, cafe/bar, mail room, dining room, and exterior. This area takes inspiration from the coastal living in Florida and aims to provide residents a place to gather, socialize,andbuildcommunity.

For the residential portion of the project, I designed a two bedroomcondowithspecialemphasisonaginginplace.The condo features furnishings and fixtures to aid residents in theirdailylivesastheirabilitiesmaydecline.

Completed 2023

Interior Design Portfolio | 2023
The Commons Floor Plan Exterior Rendering

Material Board for Condo

Two Bedroom Condo Floor Plan
43

RENDERINGS

THECOMMONS
Entry Mail Room Lounge Lounge Mail Room Bar/Cafe Bar/Cafe Bar/Cafe

RENDERINGS THE COMMONS

Dining Room Walker Storage Family Dining Room Dining Room Exterior
45
Exterior

RENDERINGS

CONDOMINIUM
Main Living Kitchen Dining Nook Living Room En-Suite Bath Powder Room Laundry

RENDERINGS

Master Bedroom Guest Bedroom
THANK YOU russo1206@comcast.net (978) 835-5624
49
BR BRIANRUSSO InteriorDesign

Turn static files into dynamic content formats.

Create a flipbook
Issuu converts static files into: digital portfolios, online yearbooks, online catalogs, digital photo albums and more. Sign up and create your flipbook.
Brian J. Russo Interior Design Portfolio by Brian Russo - Issuu