Brianne Banducci Portfolio 2025

Page 1


brianne banducci feng

BIOGRAPHY

Bree Banducci Feng (b. 1997) lives and works in Bakersfield, CA. She received a Bachelor of Architecture with a minor in Italian Studies from California Polytechnic State University in 2020. After studying abroad in Florence, Italy, she developed a fascination with the convergence of architecture and art. Feng currently works at Cater Design Group, integrating her experiences in the built environment into her artistic practice. She primarily works in oil painting and textiles, using materiality as a conduit for memory and meaning.

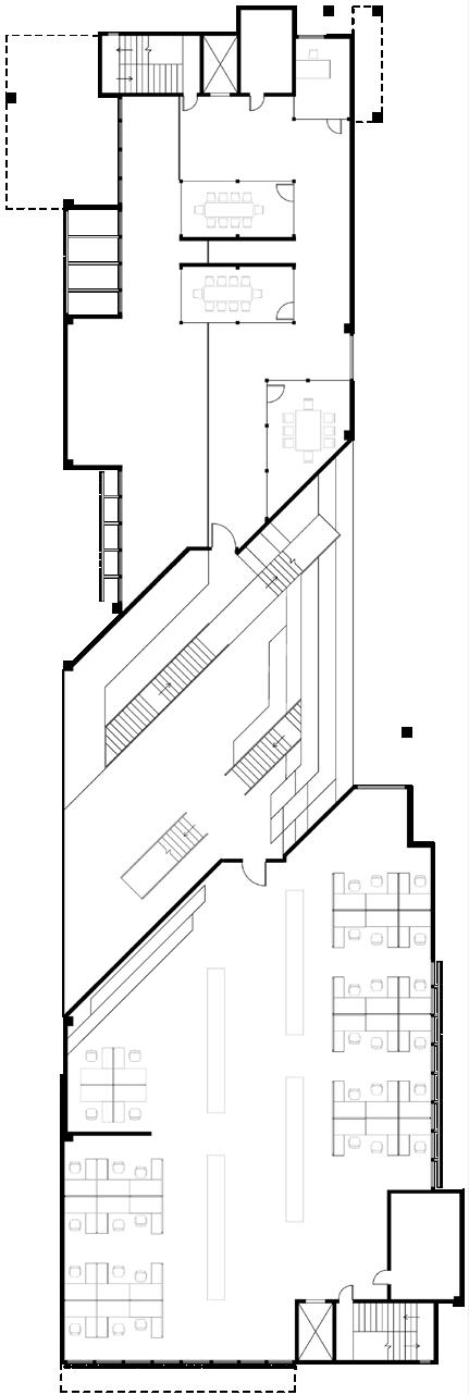
1.1 MULTIFAMILY HOUSING 01

COMING SOON

Located in downtown Bakersfield, East of Chester Ave. These new apartments coming soon will feature stacked flat housing, a rooftop wellness center with a view of the Eastern mountains and downtown Bakersfield to the West, and a luxury lap pool aside the existing creekside park.

The form of the building is inspired by the neighboring creek and the flow of water. The materials begin to fold over eachother and around the building, encouraging movement, fluidity, and communal living.

1.2 MULTIFAMILY HOUSING 02

COMING SOON

Located in downtown Bakersfield, neighboring a beloved coffee shop. This future project engages the street, bridges the gap between cafe users and residence, and provides new life to an empty lot.

Perspective Street View
Cater Design Group

1.3 WOOLWORTH BUILDING

A revitilization of an existing historic department store. The 70 year old building has been carefully preserved and will be placed on the national list of historic buildings. The new space will embody a sound venue, two retail stores, a restaurant and bar, and office space.

1.4 CUSTOM HOMESPANISH CONTEMPORARY

Project Type:

Project Year:

Architectural Style:

Home addition to existing residence

Under construction; completion in 2025 A modern twist on Spanish style architecture

Cater Design Group Inc
Cater Design Group
Section Cut (between existing and new)

1.5 CUSTOM HOMEMODERN GUEST HOUSE

Project Type:

Project Year:

Architectural Style:

New guest house on existing residential property

Under construction; completion in 2025

Modern nordic inspired

1.6 SYMPHONIZE

Location: Piazza Brunelleschi, Firenze, Italy.

Two buildings moving together, inspired by Claude Debussy and his two compositions Deux Arabesque and Claire De Lune. Inviting the citizens of Florence and tourist into a series of spaces that create an emotional experience driven by the movement of the music.

NORTH

1.7 AGRICOLA

Location: San Donnino, Firenze, Italy

A complete rehabilitation of the town incinerator with the use of water (flow, pour, spill) directing one through a series of agricultural fields. This rehabilitation is pushing forward innovation and sustainability, while createing a new reputation for the small town and provide and produce for neighboring towns.

CONCEPTUAL SECTION

CONCEPTUAL SECTION

OLIVES & OLIVE OIL
COFFEE SHOP

1.3 LACUNA

Location: San Luis Obispo, California

Permanent housing for the chronically homeless; a unique experience that merges the residences, the employees of the exiisting building, and the city of San Luis Obispo with music.A space to express individuality, to celebrate uniqueness, and remind those of their importance in society.

MASSING

The Site laid out as one large mass. Split down the north and South axis to allow for the flow of circulation throughout the entire site. A modular structure that begins to morph and move around the central amphitheater. All surrounding forms move, push and pulling around the center.

2.1 A PAST OF PLANK AND NAIL

Bree Banducci Feng’s A Past of Plank and Nail marks the artist’s first gallery presentation. Featuring new paintings, drawings, and sculptures that explore the complex interplay between the physical and emotional structures we inhabit. Rooted in her architectural background and engagement with materiality, Feng’s work bridges the tangible and the intangible, questioning the boundaries between outward environments and inward experiences.

In Feng’s work, textiles become medium, object, and metaphor, exploring how everyday items of comfort and utility evoke feelings of protection, emotion, and memory—similar to a building’s facade or the human body. Like architecture, fabric carries a sense of weight and history, invoking the artist’s childhood surrounded by fabrics and textures, connecting her to her seamstress mother.

Feng’s paintings are sculptural, capturing fleeting moments through a dynamic interplay of tension and release enforced by color and texture. Often depicted in motion or with energetic draping, highly rendered fabric becomes a frozen snapshot in time, embodying a fragile yet protective shield. In Feng’s drawings, the human body transforms into an architectural space where form and dynamism are explored through sharp and fragmented brush strokes, further reinforcing the connection between physical and emotional states. With A Past of Plank and Nail, Feng offers an intimate exploration of the intersections between fabric, architecture, memory, and emotion.

Above: On a Silver Platter, 2025 Oil on Canvas 48” x 48”

WORKS

Three Worn Steps, 2025

The Threshold Beckons, 2025

Oil On Canvas
24” x 36”
Oil On Canvas
24” x 36”
Corners Forgotten by Brooms, 2025
Oil On Canvas
24” x 36”
Lavender in the Linen, 2025
Oil On Canvas
24” x 36”

Right: A Silent Dweller, A Sturdy Web of Intimacy

Rope, Wool, Wire

13 ft x 2 ft (diameter)

12” x 15” Framed

Left:
Izzy, Chloe, Becky, Kristen, Nicola, Peter, Jake, Jane, Anderson
Gouache on paper in an artist-built frame

Email:

Website:

Linkedin: brieducci111197@gmail.com loomstudiobybree.com https://www.linkedin.com/in/brianne-banducci/

brianne banducci feng

Turn static files into dynamic content formats.

Create a flipbook
Issuu converts static files into: digital portfolios, online yearbooks, online catalogs, digital photo albums and more. Sign up and create your flipbook.