BRIANDA YANIRA LLAMAS COPADO
DISEÑADORA DE INTERIORES
22|07|2002
Mi nombre es Brianda Yanira Llamas Copado, me encuentro culminando mis estudios en La Univerdad Autónoma de Sinaloa (UAS), con licenciatura en Diseño de Interiores siendo de la generación2020-2025.
Mi personalidad me define como una persona sociable y autodidacta. Mis tiempos libres los dedicoatrabajarpormedioturnoymipasatiemposescocinaroconsumircontenidosenredes sociales,tambiénmegustaactualizarmeconcursosOnlineenmisvacaciones.

HABILIDADES EDUCACIÓN SUPERIOR
Autodidacta. Perseverante. Adaptación. Creativa. Conocimientostecnológicos. Responsable.
Tolerante
Atenta
IDIOMAS
Ingles.............................................
CONOCIMIENTOS
Autocad.........................................
2017 - 2020
UAS- PREPARATORIA EMILIANO ZAPATA
2020 - 2025
UAS- FACULTAD DE ARQUITECTURA
Lic. diseño de interiores
EXPERIENCIA LABORAL
CAFE PUNTA DEL CIELO
2021-2022
Barista atenciónalcliente elaboracióndebebidas
CALCA2
2022-2024
Manualidades desempeñoloqueeslaelaboración deensamblajedeelementosdefiesta, ycortedeetiquetas atenciónalclienteencuestiónde entregas
PROYECTOS.








mariana rivera, y en el stand hace referencia a la representaciónlogramosveralgunosdesusproductoscomo





Concepto: Eldiseñobuscaelreflejarlaesenciadelainterioristamarianariveraquien muestraunestiloquereflejaenlasusproyectos








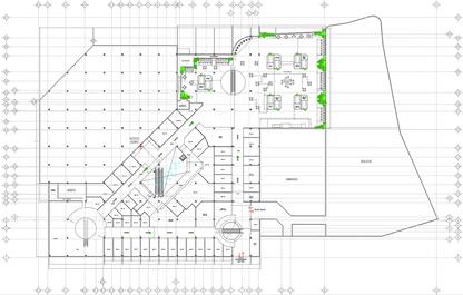
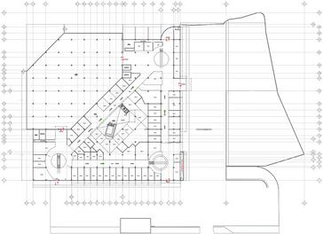
PLANTAARQUITECTONICA


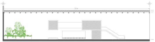
CORTES


Enesteproyectopartimosdeloyaexistentequeesuninmuebleconunestiloclásicoconalgunasáreasremodeladas,aloquequeremos llegarconlabasedeelinmuebleesdarleunaspectoprincipalmentemoderno,llamativo,untantoeleganteyqueasísedeseeregresar,ya que se desea que sus usuarios puedan estar cómodos en el. La propuesta que ofrecemos, es una adaptación de un estilo entre orgánico,/modernosedeseaeldarunaspectofrescoalespaciocontonalidadesclarasqueaportengraniluminaciónaeste,asícomo elementostalessonlasplantas,mobiliarioconformascurvasrespetandolo lastonalidadesclaras, elementoscomolosonla madera,elcementopulidoyciertasestructurasquecausenuntipodeimpactoalverlas.




Concepto:



Lapropuestaqueofrecemos,esunaadaptacióndeunestiloentreorgánico,/modernose desea el dar un aspecto fresco al espacio con tonalidades claras que aporten gran iluminación a este, así como elementos tales son las plantas, mobiliario con formas curvas respetando lo que son las tonalidades claras, otros elementos como lo son la madera,elcementopulidoyciertasestructurasquecausenuntipodeimpactoalverlas.
PLANTASARQUITECTONICAS


CORTESFACHADAS

CORTESINTERIORES


ÁreadeJuegosZonadeComida


Elproyectoarquitectónicodeljardín,inspiradoenOaxaca,buscaofrecerunaexperienciasensorialúnicaatravésdela vegetaciónlocal,destacandoplantasherbolariasdelaregión.Elespacioestádivididoendiversasáreas,incluyendoun caminorodeadodenaturalezaqueatraviesaespejosdeaguaygrandesjarronesdebarro.Enelcentro,ungranespejo de agua con una escultura invita a la reflexión. El jardín está diseñado para promover la conexión con la naturaleza, ofreciendoáreasdedescansoymomentosdetranquilidadentreárbolesyarbustos,creandounambientearmoniosoy educativo.



















PLANTAARQUITECTONICA



HVB-001Esunproyectoderecamara,walkingclosetybañoparaunaparejajovenlacualbuscaquesuespaciocuente conunaaparienciaagradableycálidaparapoderdescansar,unestiloelcualesdesuagradoeselindustrialporlocual seimplementoaldiseñoyestefueelresultadodeello













Concepto: Eldiseño reflejaunambientecálidoenelcuallaparejalograra descansar después de una larga jornada esto con un toque del estiloindustrial
PLANTAARQUITECTONICA



El proyecto de remodelación interior del comercio Copiricoh, especializado en imprenta, busca optimizar el uso del espacioymejorarlafluidezdelasactividadesdeloscolaboradores.Lareconfiguracióndelosambientespermitiráuna distribución más eficiente, facilitando la circulación y los procesos de producción. Además, se renovará la apariencia comercialdelnegocioparaofrecerunaimagenmodernayatractiva,mejorandolaexperienciatantodelosclientescomo delosempleados.Laremodelaciónincluirááreasespecíficasparaatenciónalcliente,trabajoyalmacenamiento,conun diseñoquecombinefuncionalidad,eficienciayestéticacontemporánea.


Concepto:
ElenfoquedelAbedul como elemento natural se vincule con el ser humano en su entorno buscando el generar un ambiente de comodidad, frescuraytranquilidad como principales sensaciones para lograr satisfacer las necesidades que existendelosusuarios de la imprenta copiricoh, esperando resultadospositivosal convivirconelespacio.









PLANTAARQUITECTONICA


CORTES

MODULODEATENCIONALCLIENTE


MODULODETRABAJOMANUAL
MODULODEDESCANSO
