BW Portfolio

Page 1


Brenda Wong
storymaker | creative | interior designer

HOSPITALITY DESIGN

TEMPO BY HILTON

WASHINGTON, DC

A hotel conversion from a 198,000 sf office building, Tempo is located in DC’s Golden Triangle, a vibrant urban district a few blocks from the White House and the national mall. To create a lively hub where travelers can experience the rhythms of DC life, a variety of patterns and textures ebb and flow throughout the design, mimicking the cadence of urban living.

Playful moments interspersed with locally influenced crafts, notable imagery and ample greenery reflect the hotel’s surrounding landmarks -- the DC Improv, Farragut Square and the Renwick Gallery.

Estimated Completion February 2026

198,000 sf

280 Guest Rooms, 5,000 sf of Meeting Rooms, 3,000 sf Ground Floor Restaurant

OTO/Palmetto Hospitality of Washington, DC

Role: Senior Interior Designer for Public Spaces

View of Reception
View from Lobby to Brasserie
View of Brasserie
View of Brasserie Bar
View of Bluestone Lane Cafe
View from Lobby to Flex Meeting Space
View of Flex Meeting Space
View of Meeting Space

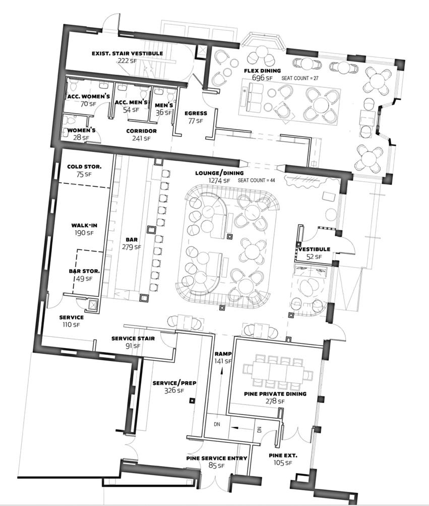
YAAMAVA’ RESORT & CASINO

AT SAN MANUEL

VENUE REFRESH

HIGHLAND, CA

Putting a new spin on a dining/enter tainment venue with an 80’s rock and roll theme proved challenging when the project parameters required no reference to rock and roll. Part performance and part fantasy, Venue invites diners to fall down the rabbit hole into an immersive dreamscape where the imaginative art of creating music flows between the buzzy beats of live performances. Bold, eclectic and loud, the design illustrates how ideas float and come together as creativity.

Estimated Completion May 2025 9,300 sf

San Manuel Band of Mission Indians, Highland, CA

Role: Lead Designer

for feel-good vibes in an imaginative dining experience

VENUE

DESIGN

To provide an immersive dining experience that captures the fluid approach to creating music.

Capturing the Beat - rhythmic patterns on wall accents and floor patterns

Opening the Mind - fractured mirror planes distort and reflect back an alternate reality to the diner

Creating the Muse - every surface is visually stimulating and immersed with the theme

Stepping Into the Story - vignettes allow diners to immerse themselves into the story

Collaging Art + Music Motifs - imagery drawn across artistic and musical platforms

PROPOSED PLAN - CREATING AN IMMERSIVE EXPERIENCE

LOOK + FEEL - ARRIVAL MOMENT

DISTORTING REALITY AS ENTRY EXPERIENCE

SUPER SCALED SIGNAGE

DYNAMIC FLOOR PATTERN
WAVE OF LIGHT SIMULATES AUDIO VIBRATIONS

LOOK + FEEL - MUSIC PLATFORM

LIGHT SCAFFOLD

ACOUSTICAL PANELS @ TYPICAL WALLS
ACOUSTICAL PANEL COLORS
BACK WALL MEDIA SCREENS
ART FEATURE @ WALLS AROUND ENTRY

LOOK + FEEL - DINING AND BAR

NEON CLOUD INSPIRATION @ OPEN CEILINGS

TILE FLOOR PATTERN

LOOK + FEEL - VIP DINING

BACK WALL INSPIRATION - DINERS BECOME THE SUBJECT OF THE PAINTING BACKDROP, RECREATING THE SCENE (IN THE STYLE OF PAGEANT OF THE MASTERS)

BANQUETTE INSPIRATION

FINISH FLOOR PLAN

Reflected Ceiling Plan

BAR PENDANT LIGHTING NEON WRAPPED ARRIVAL EXPERIENCE

FRACTURED ANTIQUE MIRROR MOSAIC CEILING W/ PUSH, PULL & VOIDS ROPE LIGHT LED O/ METAL MESH CEILING

- 6"

- 6"

FRACTURED ANTIQUE MIRROR MOSAIC CEILING

- 6"

MAIN STAGE W/ NEW ILLUMINATED TRUSS FEATURE VIP (PATRON-IN-PICTURE) SEATING AREA

PENDANT LIGHTING

View of Casino Floor to Venue Entry
Venue Entry Close-up
View of Stage from Interior Entry
View of Dining from Main Stage
View of Main Stage from High-Top Dining

Waitstaff/Servers

Basics with creative details

Host staff/Greeters

Painterly patterns

A MIXOLOGY LOUNGE

HANOVER, NH

A retail conversion to bar establishment, this unrealized project looked to adding a mixology lounge to the lively cultural scene of Hanover, New Hampshire’s smalltown charm.

NATURE’S ALCHEMY

The art of transforming from one state to a higher one through nature’s essence.

Schematic design

4,200 sf

Pyramid Global Hospitality

Role: Concept and FFE Design

Embark on an immersive journey where nature’s essence converges with the art of modern mixology. Nature’s raw beauty fuses with contemporary aesthetics to provide an artful blend of classic yet cozy American elegance. Mixing raw and finished woods, metals, stone and lush greenery, Elixir Lounge is a transformative experience.

CHANGING SEASONS

ARTFULLY INSPIRED
CUBE STYLE DISPLAY
SOFT LIVING ROOM SEATING

INTIMATE VIGNETTES

DECORATIVE DISPLAY WALL
STARRY LIGHTING
SIMPLE SOPHISTICATION
NATURAL TEXTURES

ALOFT BOSTON SEAPORT DISTRICT

BOSTON, MA

Adjacent to the Boston Convention and Exhibition Center in the Seaport neighborhood, the Aloft hotel combines standard brand finishes and programming with elements unique to Boston. In recognition of the Seaport’s history, natural wood, blackened steel and exposed concrete reminiscent of shipping crates and waterfront warehouses were incorporated into the main lobby. Custom wall graphics throughout the building feature bright colors and patterns inspired by cellular biology, highlighting Boston’s leadership in biomedical research and its influence as a hub for innovation.

199,411 gsf

330 guest rooms, 13 stories

CV Properties, LLC; Starwood - Aloft Hotels

Role: Interior Designer

MULTIFAMILY RESIDENTIAL DESIGN

THE SMITH 89

Boston, MA

Brimming with art, color and bespoke pieces, the Smith blends maker energy with home. Hand-hewn farm tables, black metal screens and sculptural fiber art, combined with original work by local artists, honor the South End’s past of creative industry. The name Smith is a play on masters of craft –blacksmith, woodsmith, wordsmith – and reflects the energy of the South End and the current makers, doers and creators who make it unlike anywhere else in Boston. It is a place where craftmanship and attention to detail matter, and where the art of living and casting your own way is a way of life.

452,265 sf 300 units, 11 stories

Leggat McCall Properties, Bentall GreenOak Certified LEED Silver, Fitwel Certified Role: Senior Interior Designer

THE SMITH 99

Boston, MA

Next to its refined sibling, The Smith 99 celebrates the raw craft of artisanry. Interior spaces feature traditional crafts reinterpreted with contempoary attitudes, combining seemingly disparate textures, sheens and materiality to create a new third element. Amenities include numerous spaces for private and communal creation and socializing, both indoors and out.

465,110 sf, 303 units, 11 stories Leggat McCall Properties, Bentall GreenOak Role: Senior Interior Designer

HARRISON ALBANY BLOCK Leggat McCall Properties | Bentall GreenOak | Greystar
custom area rugs
HARRISON ALBANY BLOCK Leggat McCall Properties | Bentall GreenOak | Greystar
custom area rugs

THE MASON

EVERETT,

MA

Inspired by the shapes of Everett’s industrial past, as well as the city’s birth from the Mystic River marsh lands, The Mason offers a vibrant and inviting reinterpretation of the industrial environs. The building’s interior design reflects a growing new Everett while nodding to the urban contours found on the Tobin Memorial Bridge and the city’s former factories, as well as the natural colors of the river marshes.

449,563 sf 330 units, 6 stories

Greystar Development

Role: Senior Interior Designer

THE MAXWELL

EVERETT, MA

Within Everett’s busy city living, The Maxwell is a haven of tranquil settings blended with energy zones to restore, renew and discover oneself. A feeling of urban oasis is emphasized by Interior finishes that reinterpret natural stone and rammed earth agregate. Amenities include privacy pods, a flex tech room that can be configured for virtual reality games and as a green room for podcasts, a makers space, and wellness and fitness studios with urban and green views.

515,988 sf

384 units, 6 stories

Greystar Development

Role: Senior Interior Designer

ALTA REVOLUTION

SOMERVILLE, MA

Located in the lively Assembly Square neighborhood of Somerville, MA, Alta Revolution is a luxury apartment complex with distinctive living spaces. The design and atmosphere of Alta Revolution is influenced by Somerville’s vibrant community of working creators like the Brickbottom Studios and Artisan’s Asylum. Alta Revolution’s design motivates residents to live boldly and creatively and is inspired by the energy of Andy Warhol’s studio The Factory. Dwelling units are separate from creation spaces. Whether writing, inventing, composing or drawing, there are multiple opportunities for residents to inspire by themselves or with others.

371,800 sf

329 units, 8 stories

Wood Partners

Role: Senior Interior Designer, amenity spaces

INK BLOCK

INK 1, INK 2, INK 3 APARTMENTS

BOSTON, MA

Built on the site of the former Boston Herald newspaper, Ink Block is a mixeduse neighborhood whose goal is to restore a vibrant residential community to what had become an industrial and commercial area. Each building’s finish palette is composed of the CMYK colors from which newspapers were printed. Imagery and icons range from newspaper cartoons and photographs to letter type and machinery that honor the site’s printing past. Each of the rental apartments were designed for a different target group, ranging from sophisticated gallery go-ers to edgy creatives and transitional empty nesters.

463,000 sf

Ink 1 - 91 units; Ink 2 - 134 units; Ink 3 - 90 units National Development Role: Interior Designer

SIENA CONDOMINIUMS

BOSTON, MA

The second condo building built on the Ink Block site, Siena was influenced by a man’s bespoke jacket –an item of clothing that is reserved on the outside but visually exciting on the inside once opened. To differentiate Siena from its softer sister building Sepia, the finish palette is high contrast with bolder colors.

Inspired by the black and white marble stripes of the Duomo in Siena, the exterior stripes carry into the interior, which is then enlivened by a range of vibrant colors, including the yellow brown sienna.

10 stories

79 luxury units

National Development

Role: Senior Interior Designer

ACADEMIC DESIGN

HONORS COLLEGE, RUTGERS UNIVERSITY

NEW BRUNSWICK, NEW JERSEY

A request by the college dean to create an American version of Oxford college inspired us to look at Rutgers’ original 1766 charter as Queen’s College. With a design where Oxford meets hipster Hogwarts, this 500-bed residential honors college conveys its rich academic history while also providing a youthful spirit. Programming includes seminar rooms, administrative offices, faculty apartments, and lounge and study spaces on the first floor with housing for all first-year students on the upper floors.

170,000 sf

281 units (500 beds), 5 stories

DEVCO New Brunswick Development Corporation

Role: Senior Interior Designer

faculty apartment

SOJOURNER TRUTH APARTMENTS

AT THE YARD

NEW BRUNSWICK, NEW JERSEY

This residential community provides apartment-style accommodations for junior and senior students as they start to transition to life after graduation. All apartments feature full kitchens and living rooms for independence. The apartments sit atop a mixed-use ground level that includes 8,000 sf of restaurant and retail space, a tech-transfer lounge and collaborative space, and a 1,500 sf fitness facility. The site’s U-shaped design connects three wings to surround a courtyard called The Yard. A large common room on the ground floor anchors the lawn of the Yard.

232,000 sf 135 apartments (2-, 3- and 4-person suites), 14 stories New Brunswick Development Corporation, Rutgers University

2017 Excellence Award - NJ Development Project of the Year, Urban Land Institute - Northern NJ

Role: Senior Interior Designer

NE INSTITUTE OF TECHNOLOGY

RESIDENCE HALL

EAST GREENWICH, RI

This first residence hall in the history of the school marks NEIT’s transition from a commuter-centric campus to a traditional college campus. The building’s exterior is an elegant blend of New England materials. The first floor features a community kitchen, multi-purpose function spaces, conference and administrative rooms, as well as laundry and trash. The project was delivered in a design-build methodology.

122,000 sf

416 bed, 4 stories

Cranshaw Construction, Brailsford Dunlavey

Role: Senior Interior Designer

WORKPLACE DESIGN

ANALYSISGROUPMONTREAL

MONTREAL, QUEBEC, CANADA

New leadership combined with an office relocation presented a delicate design challenge when it came to merging an established corporate culture with unique local flair. For Analysis Group’s Montreal office - the only Canadian branch of the global economic analysis company - leadership wanted a less formal space while still maintaining a high level of refinement. Using the concept of farm-to-table, a movement celebrated in Montreal’s bistro culture, the design team used humble, imperfect natural materials throughout the space and found inspiration in nature’s geometric shapes.

25,000 sf Analysis Group

Role: Senior Interior Designer

PRTM DC

WASHINGTON, DC

When it came time to expand their Washington, DC office, PRTM, a global business consulting firm, decided to keep their Pennsylvania Avenue address by relocating to the building next door. Just down the road from the White House, the new space had to house two work sectors yet maintain federal security separations. Using glass panels and sliding glass walls, the design minimizes visual barriers as much as possible to promote collaboration and interaction among the staff. Colors in the furnishings and finishes are layered from foreground to background for a harmonizing vista. Built space is kept to a minimum with large areas of the perimeter open to consultant workspace and collaboration areas.

25,000 sf

PRTM

Role: Interior Designer

UNUM

Worcester, MA

In contemplating its move into the City Square building, disability insurance company Unum wanted to increase connection among its staff in a warm and welcoming environtment. Colorful resin and glass openings incorporated into doors and walls allow shadows of movement to bring interconnectedness to the space.

214,000 sf Design Development Unum

Role: Interior Designer

VISIONING

VENUE ENTRY STUDIES

YAAMAVA’ RESORT & CASINO AT SAN MANUEL

HIGHLAND, CA

In response to the client’s request for a more monumental and Instagram-worthy entry, I explored various immersive experiences in which guests can feel as if they are stepping into a portrait and participating in the narrative. Role: Lead designer

study 3 - Banksy inspired
study 4 - Inspired by Trick Eye Museum, Hongdae, Seoul
study 5 - frames within frames

AMPED UP

YAAMAVA’ RESORT & CASINO AT SAN MANUEL HIGHLAND, CA

A Decade of Eclecticism

Characteristics

• Diverse and transformative era for music

• Dominated by alternative rock and grunge

• Contrasting lifestyles of festival music culture with gritty acoustics

• Counter-cultural movement that rejected mainstream music

• Era of autheticity, rawness and a more genuine expression of emotions and experiences

Before Venue became an immersive dining and entertainment experience, the projrect was originally a restaurant refresh with a rock and roll theme. The following were design concepts studying the spirit of 90’s music.

Role: Lead designer

26th IIDA NE FASHION SHOW

BOSTON, MA

Winner

Best Interpretation of Theme Award

This year’s theme, “THE MENU,” invited participants to creatively explore and interpret the culinary world, with endless possibilities for unique material choices and visual storytelling.

Role: Team member

CONCEPT A

GATEWAY II

WHITE PLAINS, NY

In response to an RFP for a Greystar Development mixed-use project, the CBT design team provided two concepts for architecture and interiors that captured the contemporary lifestyle of White Plains, NY.

Role: Interior design concepts, programming and space planning.

The simple, elegant massing affords a bold identity on the White Plains skyline. The residential tower is strategically oriented east-west and is located in the center of the site. This configurations maximizes the distance from the adjacent office building to the south and the bus terminal to the north, while creating two rooftop amenity terraces. An active sun-filled roof deck amenity on the south side of the podium and a passive roof/landscape amenity on the north side. We are also proposing a rooftop terrace affording spectacular 360-degree views on the 24th level. The retail and residential lobby are maximized to create a vibrant and active public realm. The above grade parking is efficiently consolidated, creating a four-story podium.

CONCEPT A

LIVE, THINK, BREATHE

CONCEPT B

The simple yet elegant residential tower is composed of a primary and secondary massing move creating a bold identity on the skyline. The primary massing is strategically oriented north-south to take full advantage of the unobstructed views to the east and west. The lower secondary tower helps visually transition the massing to the podium below and is deliberately positioned away from the adjacent office tower.

The lower tower rooftop affords nearly 360 degree views on upper floors in a very unique vantage point in the city. The “L” shaped building is not only highly efficient in its planning, but also creates an expansive south facing/ sun filled amenity terrace at its podium.

The retail and residential lobby are maximized to create a vibrant and active public realm. The above-grade parking is efficiently consolidated, creating a four-story podium.

CONCEPT B

EXPLORE

LIVE, THINK, BREATHE

THE GROVES

NORTH LEXINGTON AVE

amenity floor sky deck

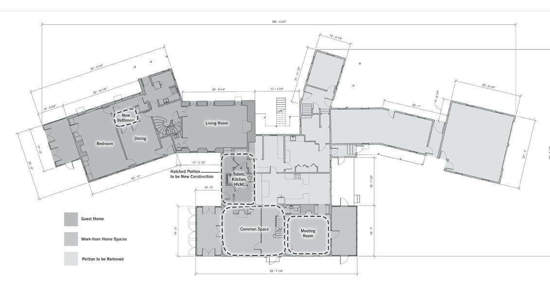
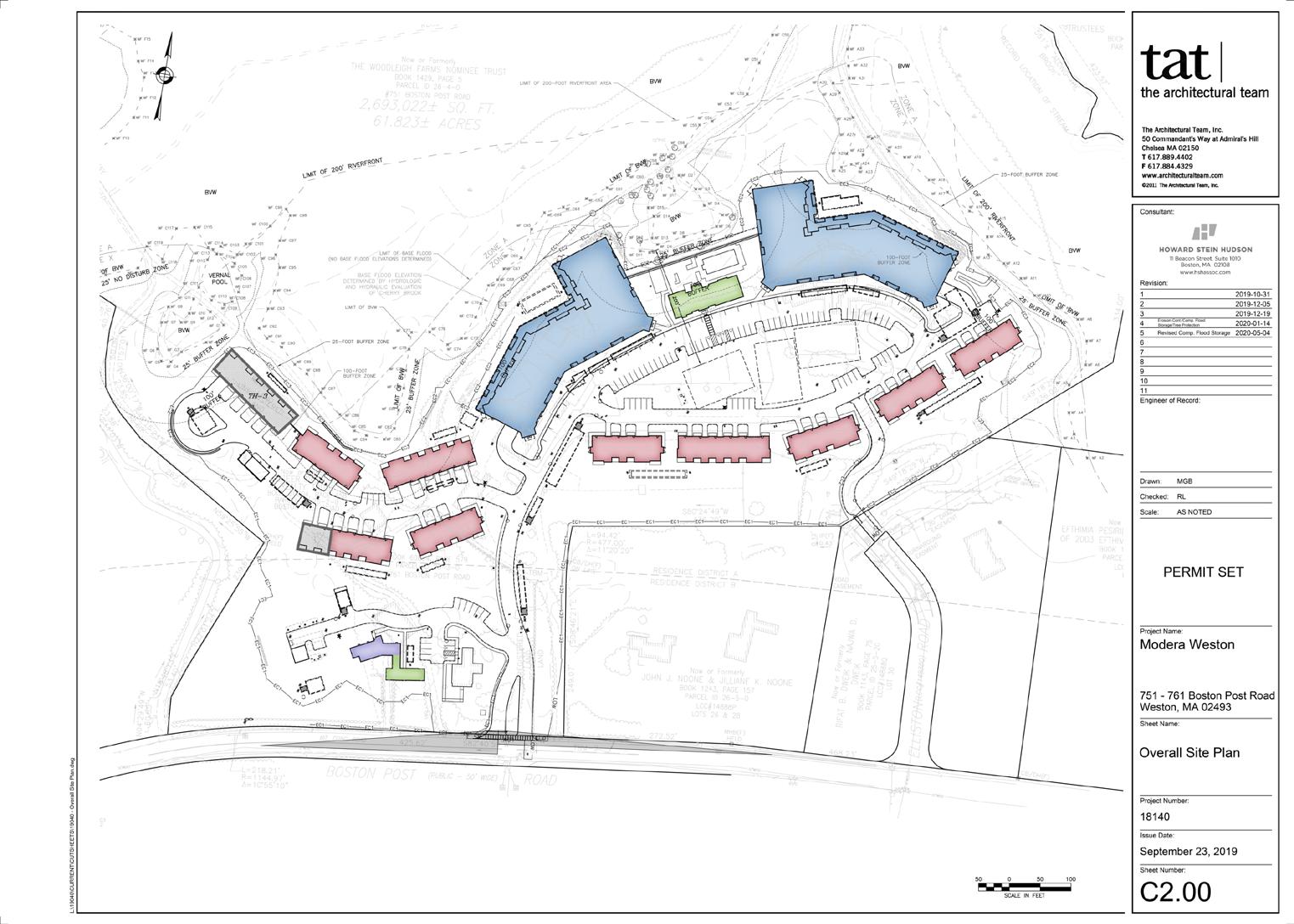
MILL CREEK MODERA WESTON

WESTON, MA

For the visioning portion of this RFP, I extensively researched the town’s history to identify interior architectural elements and finishes that would allow the Modera complex of rental apartments and townhouses to blend seamlessly with the neighborhood. Two design concepts were presented along with amenity programming ideas to appeal to an audience who want to enjoy the Weston lifestyle without the complications of home ownership.

Role: Interior design concepts and programming

WELCOME
MODERA | WESTON
BY MILL CREEK

MODERA | WESTON

With its PICTARESQUE location, Modera Weston will appeal to professionals and empty nesters who desire the town community feel without the responsibility of maintaining a large home.

Luxe finishes reflect the QUIET AFFLUENCE of the neighborhood.

MODERN amenities invite connection, activity and work-life balance. Natural abundance can be found in nearby conservation lands and nature trails.

DESIGN CONCEPTS

PASTORAL RETREAT

EUROPEAN STYLE LUXURY

THE WESTON COLLECTION AT MODERA

BY MILL CREEK

entertainment

THE WESTON LIFESTYLE

gracious vestibules

Turn static files into dynamic content formats.

Create a flipbook
Issuu converts static files into: digital portfolios, online yearbooks, online catalogs, digital photo albums and more. Sign up and create your flipbook.