Brenda's Portfolio 2023

Page 1

PORTFOLIO

BRENDA GARDUÑO MONTERO 2023

01 02 03 Colective Housing Restaurant Student Housing
PROJECTS
04 05 06 Residential Building Retail Design Corporate Office Building

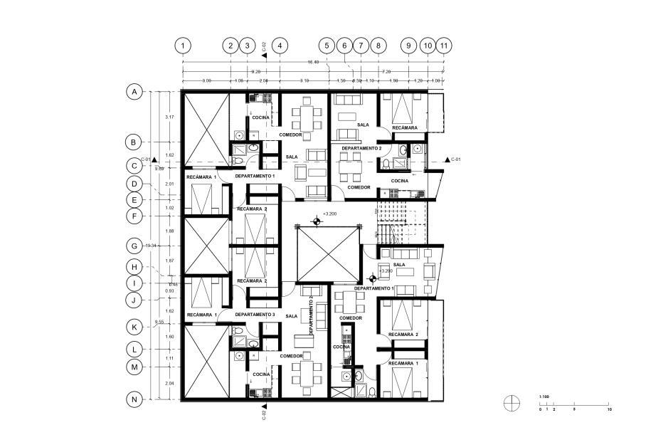
COLECTIVE HOUSING “ESTACIÓN ALAMEDA”

YEAR 2020

LOCATION Toluca, Estado de México.

ABOUTTHEPROJECT

The premise of the project was to develop a collective housing building that could create a connection between the new Zinacantepec Station of the Mexico-Toluca Interurban Train and the “Barrio Tec” Neighborhood. The goal was to create a space where people could live while simultaneously carrying out their daily activities without the need of a vehicle.

01

Bedroom | Apartment Type T2 A

Dinning and Livingroom | Apartment Type T2 A

Ground Floor

Structural Axonometric Criteria

Axonometric

First Floor

Exterior view

North Facade South Facade

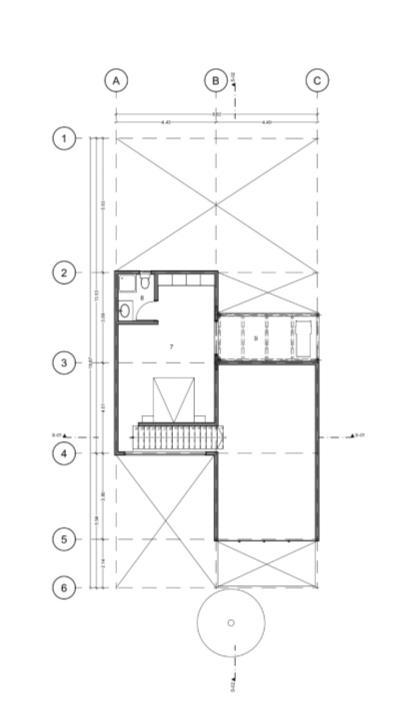
STUDENT HOUSING

“SAN BERNARDO”

YEAR 2020

LOCATION Toluca, Estado de México.

AREA 116 m2

ABOUTTHEPROJECT

The main objective was to design a house for students with the following spaces: a bedroom with a full bathroom, kitchen, dining room, living room, and a study or home office, along with a garage with space for one car and a motorcycle. The inhabitant was intended to be a student who could have a workspace in their home and occasionally hold meetings.

02
Bedroom Dinning Room

Ground Floor

First Floor

Structural Axonometric Criteria

Axonometric

Cochera de la residencia

South Facade
North Facade

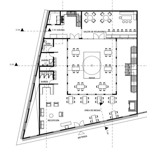
RESTAURANT “SEBASTIÁN LERDO DE TEJADA”

YEAR 2022

LOCATION Toluca, Estado de México

AREA 773.52 m2

ABOUTTHEPROJECT

The objective of this project is to intervene in a downtown area of Toluca while preserving the facades on the property, creating a safe and permeable space available for everyone including safety regulations.

03
Restaurant Bar
Restaurant Terrace Ground Floor Hallway view Courtyard view First Floor

Urban Desing

West Facade South Facade

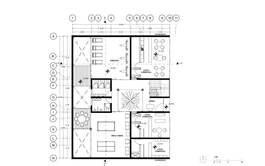
RESIDENTIAL BUILDING

“104 TOWER”

YEAR 2022

LOCATION Álvaro Obregón, Ciudad de México

AREA 308.112 m2

ABOUTTHEPROJECT

The objective of this project is to intervene in a downtown area of Toluca while preserving the facades on the property, creating a safe and permeable space available for everyone including safety regulations.

04
Common Room
Gimnasium
Hallway view Apartment
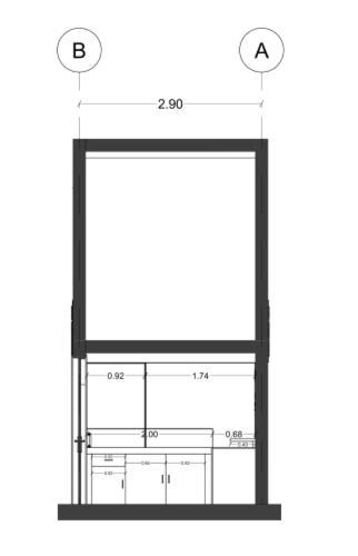
Ground Floor First Floor
Facade
Section 01

OFFICE BUILDING

“IONDA DEVELOPMENTS”

YEAR 2022

LOCATION Toluca, Estado de México

AREA 11,000 m2

ABOUTTHEPROJECT

The main goal of this project was to design a building for our own branding IONDA created by me and another architect, we had to make a budget of all the gains this development would obtain. The Design of this building was created with a study of the area, in which there was a lack of commerce construction, for this reason we designed mixed use buildings.

05
Office
view
General
Apartment Waiting room

INTERNSHIP

RETAIL DESIGN PROJECT FOR TWUIST

YEAR 2022

LOCATION Toluca, Estado de México

AREA 16.74 m2

ABOUTTHEPROJECT

The objective of the design was to create a space where people could feel immersed in the flavor of the ice cream designing the interiors as well as the furniture. The main goal was a sustainable design that stay within budget.

06
01
02
03
Ground Floor Section
Section
Section
Interior Design view Furniture design view Costumer Area view Costumer Service view
BRENDA GARDUÑO MONTERO brenda.gamot@gmail.com
BMG

Turn static files into dynamic content formats.

Create a flipbook
Issuu converts static files into: digital portfolios, online yearbooks, online catalogs, digital photo albums and more. Sign up and create your flipbook.