NEW CONSTRUCTION IN THE HEART OF AMAGANSETT LANES




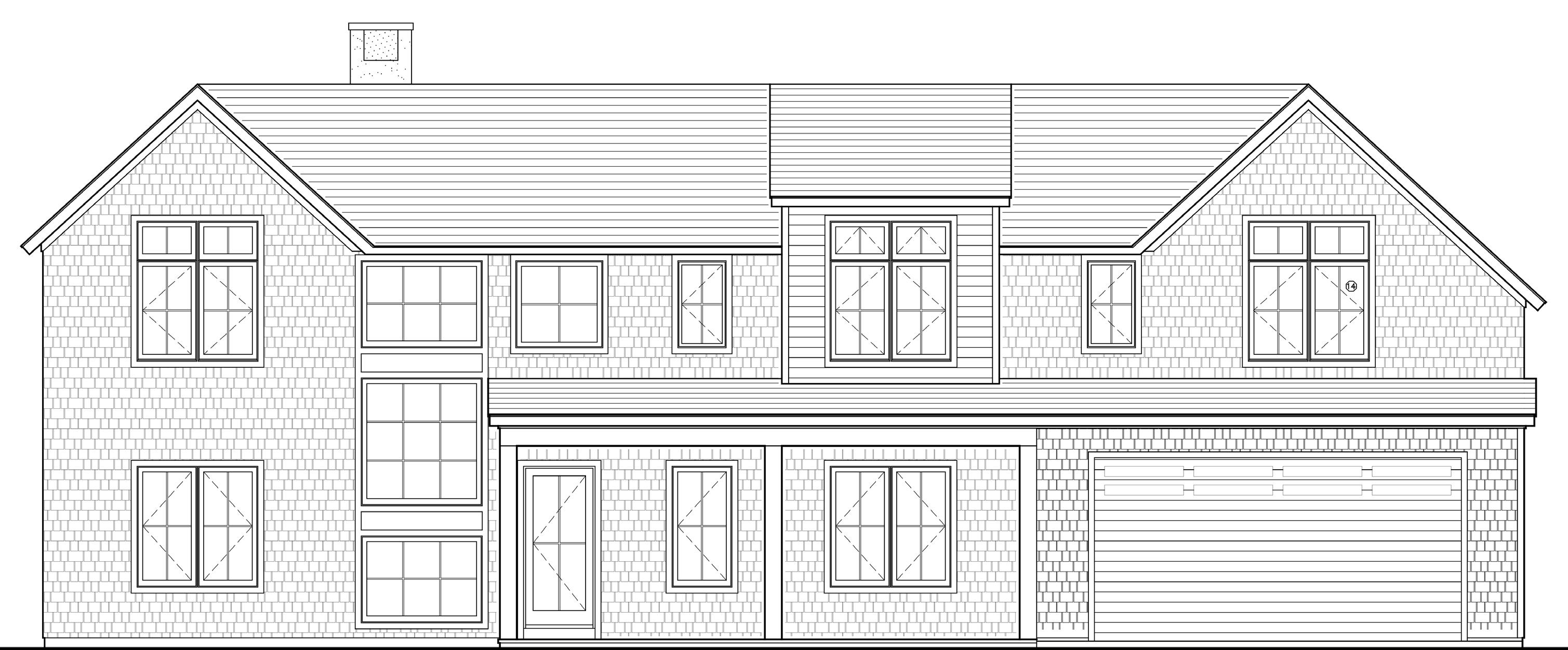
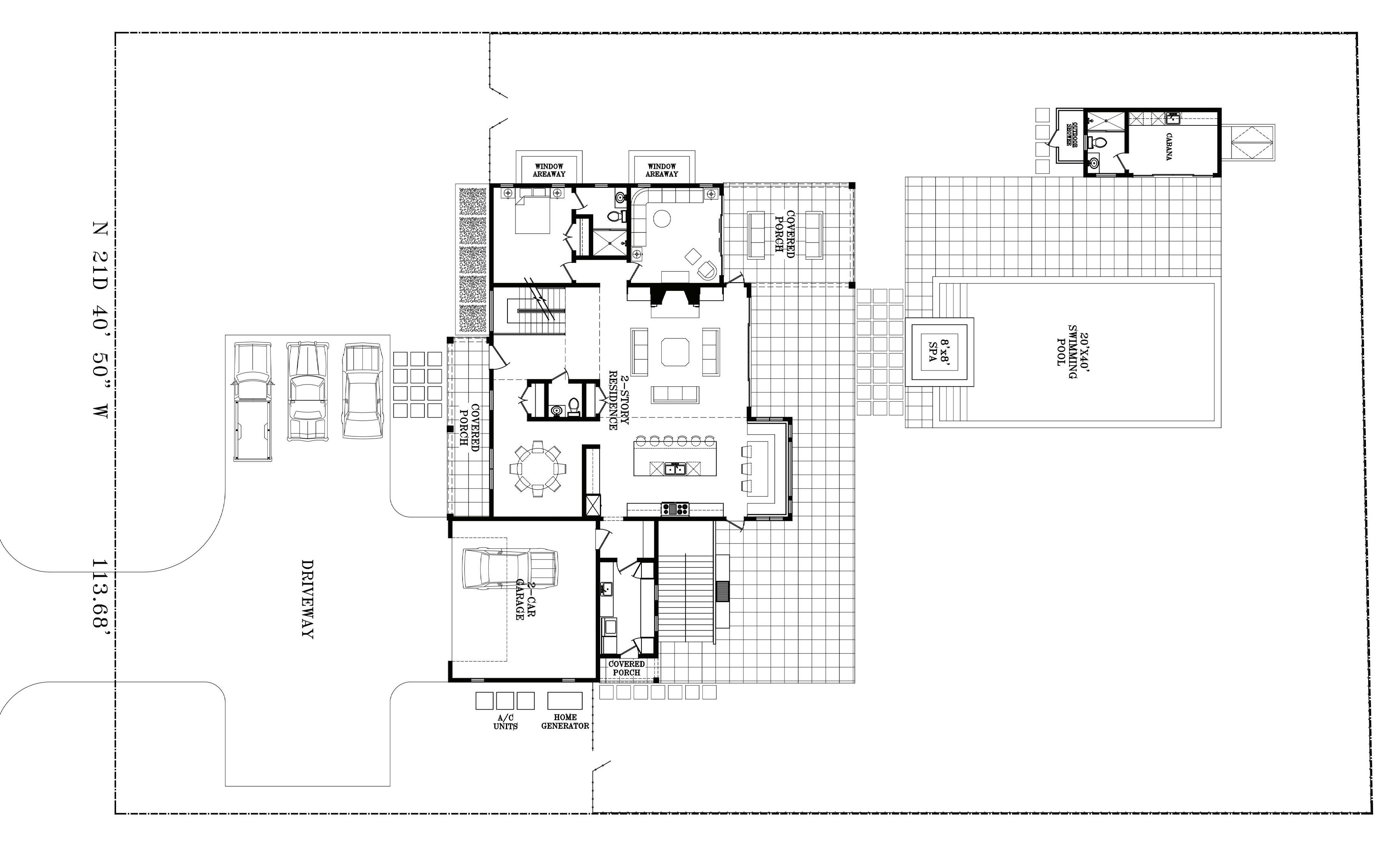
Arriving in 2023, is this new construction by Michael Frank Building. Set on .50 acre in the heart Amagansett, this new development will feature 5,300 +/- sq. ft. of living space set across 3 levels featuring 7 bedrooms and 9 bathrooms. The main level offers an open concept eat-in kitchen with breakfast area which seamlessly flows into the den, formal dining area, and great room showcasing soaring 15 ft. ceilings and a luxurious fireplace. A gracious junior primary suite is located on the first floor, along with a laundry room, powder room, mudroom, and 530 +/- sq. ft. 2-car attached garage.
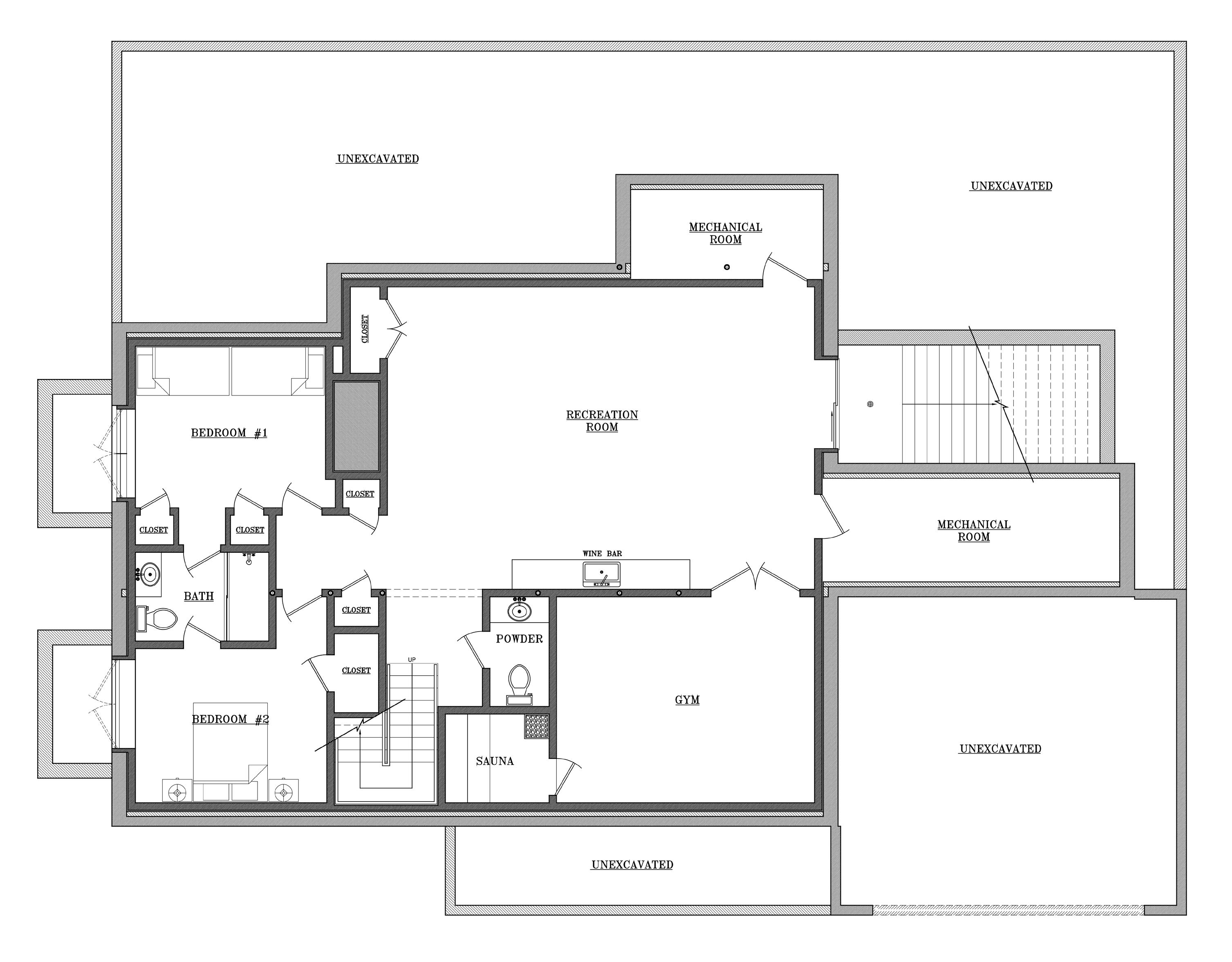
Set on the second level, the primary suite presents a substantial bathroom with steam shower, walk-in closet, and private covered rooftop deck overlooking the backyard. Complimenting the primary are three additional bedrooms, each with their own bathroom, and an upstairs laundry room. The planned lower level includes a recreational room, gym, and sauna with a full bathroom. In addition, there are two 2 bedrooms which share a full bathroom.
Outside, retreat to the heated gunite pool with inset spa and adjoining 200 +/- sq. ft. pool house which encompasses a sitting area, full bathroom, and outdoor shower. With plenty of space for entertaining, the backyard presents an outdoor kitchen and allows for dining al fresco under the covered porch or relaxing on the bluestone patio. The residence is less than 1 mile to Atlantic Beach, a stones throw to the center of Amagansett Village, and offers close proximity to both Montauk and East Hampton Village.
For more information, visit: 63handlane.com
“Since 2005 Michael Frank Building Co. has built homes in the Hamptons with one premise in mind – build as you would if it were your own home.
Most important to us, however, are the relationships we have with our buyers. Where many builders see closing day as a goodbye, we see it as only the beginning. Every new homeowner of a Michael Frank Building Co. home is part of our building family as we warranty their homes and assist in any needs, big or small, they may have. Our creed is that success is measured by the satisfaction of our clients.”
For more information, visit: michaelfrankbuilding.com