Braisa Gurreonero - Portfolio

Page 1

braisa gurreonero rojas

Portfolio 2023

Téléphone: 514-358-5050

Email: braisagr@gmail.com

Domicile: Laval, QC

Formation

DEC en Sciences Pures et Appliqués

Collège André-Grasset, Montréal, QC

2019-2021

Baccalauréat en Architecture

Université de Montréal, Montréal, QC 2021-2024

Photoshop

Logiciels

Langues

Rhinoceros

Sketchup

Enscape

Autocad V-Ray

Français

Anglais

Espagnol

InDesign

Illustrator

Salut!

Je m’appelle Braisa et je fais mes premiers pas dans le monde professionnel de l’architecture. Je suis présentement au 1er cycle de l’Université de Montréal.

Je suis curieuse, dynamique et à la recherche de la vraie signification de l’architecture. Je suis intéressé par les dessins, la musique et la photographie.

Braisa Gurreonero 2
CV

1 2 3 4

GLISSEMENT STRUCTURÉE

Duplex

P. 4

SYMBIOSE

Logement collectif

P. 12

ESCALIER ARCHITECTURAL Travail pratique, Cours de construction

P. 22

GYRATIONS

Bibliothèque

P. 32

Portfolio 3
table des matières

GLISSEMENT STRUCTURÉE

Année: 2022

Type: Résidentiel

Travail: Individuel

Situé dans le quartier de Rosemont, la Petite Patrie, le duplex loge une personne aînée au premier étage et une famille aux étages supérieurs. La forme prédominante des maisons sont des prismes pleins, le tout ayant une allure statique. La maison Glissement structurée reprend cette forme de base et tente de l’animer. La modification est la suivante : chaque niveau correspond à un glissement horizontal. Grâce aux glissements horizontaux, de nouveaux espaces se créent et permettent une meilleure cohésion entre rue, maison et ruelle.

La façade se caractérise par une porte-à-faux à chaque niveau et la notion de tri-partie est davantage souligner par la simplicité de ses grandes fenêtres.

Reprise de la volumétrie commune dans le quartier

Braisa Gurreonero 4
Création

Création d’espaces extérieurs en relation avec la ruelle et la rue

Portfolio 5
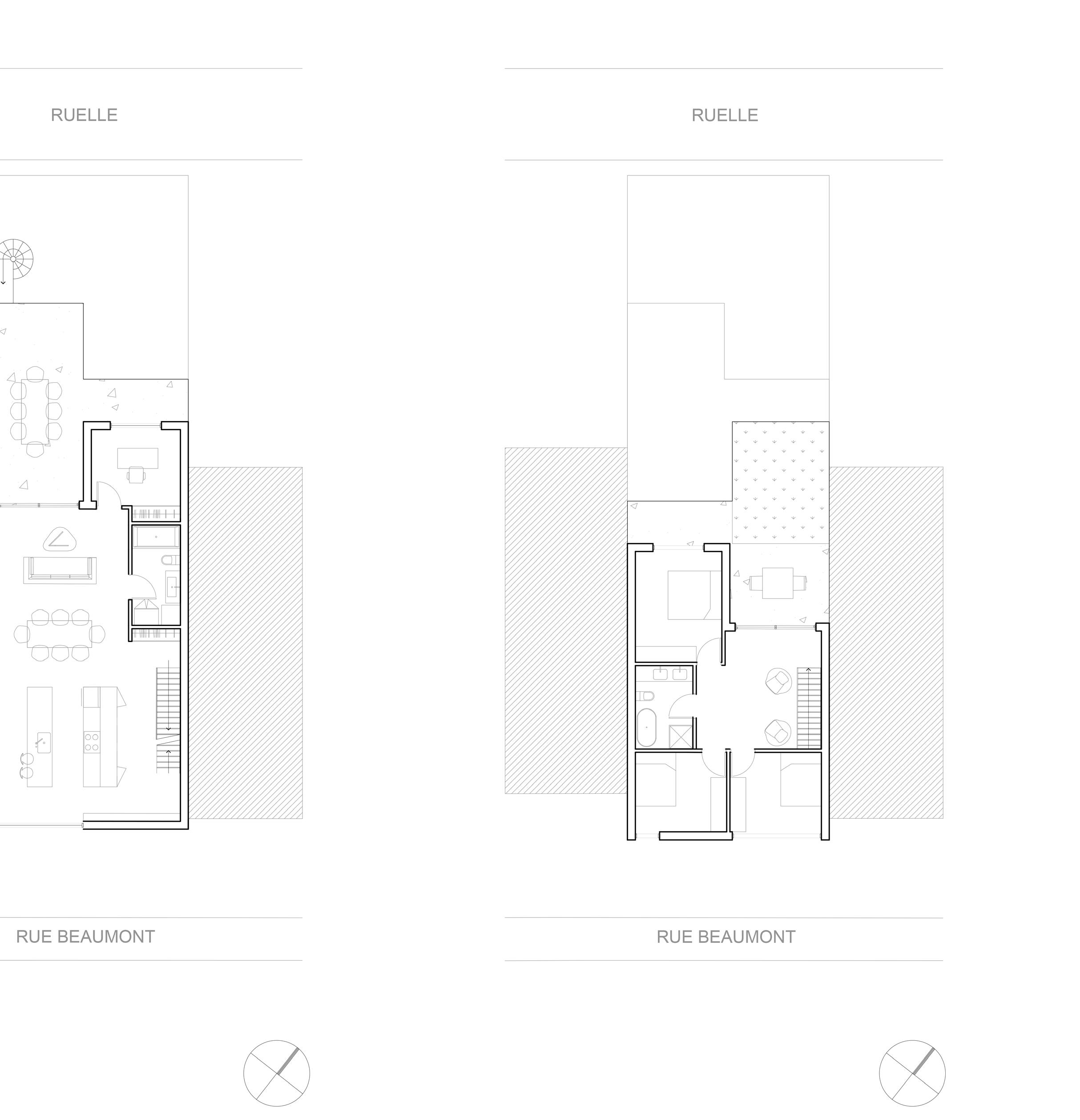
Braisa Gurreonero 6 Plan 2e niveau
Portfolio 7 Plan 3e niveau
Braisa Gurreonero 8
Élévation Rue Beaumont
Portfolio 9
Élévation sur la ruelle
10
Portfolio 11

SYMBIOSE

Session: 3e

Type: Logements collectifs

Travail: En équipe de 2

Le projet naît du contraste entre les deux quartiers adjacents du site, le Nouvel-Outremont ainsi que le Vieux-Outremont. Nous avions été grandement inspirés par le premier exercice, qui était d’analyser le paysage urbain : cela inclut la végétation, la matérialité et les ambiances. Le Nouvel-Outremont se caractérise par la présence d’imposants bâtiments institutionnels. L’ambiance froide de ce secteur est justifiée par les couleurs et les matériaux choisis. En effet, on remarque une palette de couleurs assez claires, tournant autour du blanc, du bleu et du gris. Le Vieux-Outremont, qui regroupe plusieurs secteurs, possède une ambiance tout à fait contraire. Ses couleurs sont beaucoup plus chaudes en raison de la grande présence de la brique rouge. Une allure plus accueillante y est alors émise.

Le concept de base était de créer une vue à travers le projet qui donnerait sur le campus MIL, une figure iconique du quartier en développement et une vue sur le secteur Ducharme. Nous avons créé une diagonale, un passage qui relie les deux secteurs ensemble. Ce passage vient donc diviser le terrain en deux, créant ainsi deux volumes. Ces derniers sont lisses à l’extérieur et dénivelé à l’intérieur de la diagonale. Cette dénivellation est dictée par une trame qui vient diviser le site en cinq parties égales. Il y a donc la présence de cinq cours. Les formes des volumes suivent aussi des ellipses qui modifient la profon-

Braisa Gurreonero 12
Portfolio 13

Schéma de végétation

Braisa Gurreonero 14
Portfolio 15 BRAISA PLAN DU REZ-DE-CHAUSSÉE 1:200 5M 10M 15M 20M
DE LA VÉGÉTATION
POCHÉ 1:2500
THÉRÈSE-LAVOIX-ROUX AVENUE DU MANOIR AVENUE DOLLARD AVENUE MCEACHRAN
CONCEPT
PLAN
AVENUE
Braisa Gurreonero 16 A A B B PLAN D’ÉTAGE TYPE 1:200 5M 10M 15M 20M PLAN D’UN 4 C.C 1:50 PLAN D’UN 2 C.C ACCESSIBLE 1:50 PLAN D’UN 4 C.C 1:50 PLAN D’UN 2 C.C ACCESSIBLE 1:50 Plan d’étage type Plan d’un 4 c.c Plan d’un 2 c.c accessible
Portfolio 17

Élévation Avenue Thérèse-Lavoix-Roux

ÉLÉVATION AVENUE THÉRÈSE-LAVOIX-ROUX 1:200

Élévation Avenue du Manoir

ÉLÉVATION AVENUE DU MANOIR 1:200

Braisa Gurreonero 18
Portfolio 19
Braisa Gurreonero 20 COUPE BB 1:200 COUPE AA 1:200 Coupe AA Coupe BB
Portfolio 21

ESCALIER ARCHITECTURAL

Session: 3e

Type: Dessins techniques, cours de construction

Travail: En équipe de 2

Cet escalier vise à créer un équilibre entre la lourdeur et la légèreté en conservant une approche esthétique et élégante. Ce contraste entre le lourd et le léger permet de donner un effet de stabilité à l’escalier malgré le fait que les marches en porte-à-faux semblent flotter dans l’espace. Grâce aux matériaux choisis ainsi qu’à la structure utilisée, le concept se traduit facilement à travers notre dispositif de circulation. De plus, il faudra que l’entièreté des pièces soient préfabriquées en usine, puis assemblées sur place afin d’augmenter la qualité du produit final, de diminuer le temps de travail sur le chantier ainsi que le coût associé à la construction de cet escalier.

Braisa Gurreonero 22
Braisa Gurreonero 24
PL01 PL02 Dessus dalle niveau bas Dessous plafond RDC Dessous plafond RDC 14190 10000 13790 COUPE LONGITUDINALE 07 A-603 ECH: 1:50 La
04 A-603 POU01 PAL01 Béton Isolant Acier Caoutchouc Verre Bois Axe de structure XXXXX xx A-603 xx A-603 Élévation Identification des niveaux Détail de construction xx A-603 Coupe XXXYY Codification Légende
Élodie Kalisz et Braisa Gurreonero ARC2313-A-A22
composition du plancher sera détaillé dans le détail A603-04
Portfolio 25 ARC2313-A-A22 Atelier et construction 3 1510 900 900 GC01 PL01 01 A-603 GC03 GC02 900 M01 4700 A B 02 A-603 1 2 3 4 12 13 14 POU01
Braisa Gurreonero 26
Élodie Kalisz et Braisa Gurreonero ARC2313-A-A22
Portfolio 27 ARC2313-A-A22 Atelier et construction 3

Élodie Kalisz et Braisa Gurreonero ARC2313-A-A22

Braisa Gurreonero 28
Hauteur du garde corps en béton varie de 0mm à 1520mm Hauteur minimale de 900mm à partir de la première marche PL01 PL02 GC01 GC03 GC02 GC01 GC02 Dessus dalle niveau bas Dessous plafond RDC Dessous plafond RDC 14190 10000 13790 190 Contremarche de 900mm 4700 A B 03 A-603 06 A-603 05 A-603 ÉLÉVATION 08 A-603 ECH: 1:50
Portfolio 29 ARC2313-A-A22 Atelier et construction 3 900mm 2200 1250 1250 4700 Première marche Épaisseur du garde corps en béton: 250mm Distance de 97 mm d'arc de longueur entre les montants. Centre du goujon doit être reculé de 30 mm de l'extrémité 08 A-603 E.H. 1 2 3 4 5 07 A-603 PLAN DU REZ-DE-CHAUSÉE 08 A-603 ECH: 1:50

GIRATIONS

Session: 4e

Type: Bibliothèque

Travail: En équipe de 2

Le projet de cette bibliothèque s’implante sur un site que nous appelons le « bassin Peel », situé entre l’écluse no.2 et le Pont Wellington. L’emplacement est particulier, car il se situe à la couture de trois quartiers tout à fait différents. Griffintown, à l’ouest, est un ancien quartier ouvrier fortement empreint de l’architecture industrielle et plus récemment de l’architecture contemporaine. Le Vieux-Montréal, au nord, centre historique de la ville regorgeant de bâtiments patrimoniaux. Finalement, Pointe-Saint-Charles, au sud-est, deuxième plus ancien quartier de Montréal, où l’on retrouve notamment le Canal Lachine et des installations portuaires d’autrefois.

En visitant le site, nous avons été frappés par les trois principales vues qui s’offraient à nous. L’usine des farines Five Roses, l’étendue d’eau du bassin Peel et finalement le Silo #5. C’est en gardant en tête ces vues que nous avons commencé à plancher sur des idées de volumétries, qui offraient à la fois une vision sur ces repères visuels et un rappel métaphorique à la fonction première du site : l’industrie. La volumétrie résultante permet à la fois de créer des extrusions agissant comme des miradors d’observation sur les vues identifiées et de rappeler les volumétries des grands silos que l’on retrouve au Vieux-Port de Montréal.

Braisa Gurreonero 32
Portfolio 33
Braisa Gurreonero 34
Portfolio 35
RUE ANN RUE WELLINGTON RUE SMITH RUEBRENNAN RUE WELLINGTON RUE ANN RUEDUSHANNON RUEPEEL RUE WELLINGTON RUE DE LA COMMUNE OUEST RUEPEEL RUEYOUNG RUEMURRAY RUE SMITH RUEDUSHANNON Braisa Gurreonero 36
RUEBRENNAN RUE MILL RUEDENAZARETH DUKE RUE DE NAZARETH RUE DE LA COMMUNE OUEST AUTOROUTE 10 RUE DE LA COMMUNE OUEST OUEST RUE MILL AUTOROUTE 10 AUTOROUTEAUTOROUTE10 Portfolio 37
Braisa Gurreonero Jean-Christophe Thériault et Braisa GurreoneroARC2012-H-H22Atelier d’architectureSession Hiver E.H. N N Plan RDC, échelle 1:500 Plan RUE DE LA COMMUNE OUEST A A RUEANN et Braisa GurreoneroARC2012-H-H22Atelier d’architectureSession Hiver 2022
Portfolio Jean-Christophe Thériault et Braisa GurreoneroARC2012-H-H22Atelier d’architecture Jean-Christophe Thériault et Braisa GurreoneroARC2012-H-H22Atelier d’architectureSession hiver 2022 N N Plan 2e étage, échelle 1:500 A RUE DE LA COMMUNE OUEST
RUEANN

d’aménagement paysager, échelle 1:500

Braisa Gurreonero 40
Portfolio 41
Vous remercie pour votre temps braisa gurreonero rojas Téléphone: 514-358-5050 Email: braisagr@gmail.com Domicile: Laval, QC

Turn static files into dynamic content formats.

Create a flipbook
Issuu converts static files into: digital portfolios, online yearbooks, online catalogs, digital photo albums and more. Sign up and create your flipbook.