Portfolio Braisa Gurreonero

Page 1


braisa gurreonero rojas

Portfolio académique 2025 .

Université de Montréal

SYMBIOSE

Logement collectif

Page 4

GYRATIONS

Bibliothèque

Page 10

99% GÉNÉRIQUE, STOCKAGE D’ARTS

Bâtiment industriel

Page 18

MINASHKUAU

Centre multifonction

Page 28

REFLETS ANGRIGNON

Agrandissement bâtiment patrimonial

Page 34

ANNEXE

TP3 - Pensée constructive

Page 38

SYMBIOSE

Session: ARC2011, Thomas Balaban Durée du projet: 8 semaines

Travail: En équipe avec Nathascha Phung

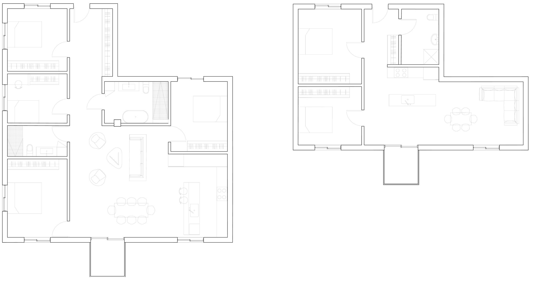
Le projet naît du contraste entre les deux quartiers adjacents du site, le Nouvel-Outremont ainsi que le Vieux-Outremont. Nous avions été grandement inspirés par le premier exercice, qui était d’analyser le paysage urbain : cela inclut la végétation, la matérialité et les ambiances. Le Nouvel-Outremont se caractérise par la présence d’imposants bâtiments institutionnels. L’ambiance froide de ce secteur est justifiée par les couleurs et les matériaux choisis. En effet, on remarque une palette de couleurs assez claires, tournant autour du blanc, du bleu et du gris. Le Vieux-Outremont, qui regroupe plusieurs secteurs, possède une ambiance tout à fait contraire. Ses couleurs sont beaucoup plus chaudes en raison de la grande présence de la brique rouge. Une allure plus accueillante y est alors émise.

Le concept de base était de créer une vue à travers le projet qui donnerait sur le campus MIL, une figure iconique du quartier en développement et une vue sur le secteur Ducharme. Nous avons créé une diagonale, un passage qui relie les deux secteurs ensemble. Ce passage vient donc diviser le terrain en deux, créant ainsi deux volumes. Ces derniers sont lisses à l’extérieur et dénivelé à l’intérieur de la diagonale. Cette dénivellation est dictée par une trame qui vient diviser le site en cinq parties égales. Il y a donc la présence de cinq cours. Les formes des volumes suivent aussi des ellipses qui modifient la profon-

Élévation sur Avenue Thérèse-Lavoix-Roux

GIRATIONS

Session: ARC2012, Sébastien St-Laurent

Durée: 10 semaines

Travail: En équipe de 2, avec Jean-Christophe Thériault

Le projet de cette bibliothèque s’implante sur un site que nous appelons le « bassin Peel », situé entre l’écluse no.2 et le Pont Wellington. L’emplacement est particulier, car il se situe à la couture de trois quartiers tout à fait différents. Griffintown, à l’ouest, est un ancien quartier ouvrier fortement empreint de l’architecture industrielle et plus récemment de l’architecture contemporaine. Le Vieux-Montréal, au nord, centre historique de la ville regorgeant de bâtiments patrimoniaux. Finalement, Pointe-Saint-Charles, au sud-est, deuxième plus ancien quartier de Montréal, où l’on retrouve notamment le Canal Lachine et des installations portuaires d’autrefois.

En visitant le site, nous avons été frappés par les trois principales vues qui s’offraient à nous. L’usine des farines Five Roses, l’étendue d’eau du bassin Peel et finalement le Silo #5. C’est en gardant en tête ces vues que nous avons commencé à plancher sur des idées de volumétries, qui offraient à la fois une vision sur ces repères visuels et un rappel métaphorique à la fonction première du site : l’industrie. La volumétrie résultante permet à la fois de créer des extrusions agissant comme des miradors d’observation sur les vues identifiées et de rappeler les volumétries des grands silos que l’on retrouve au Vieux-Port de Montréal.

Légende

1.1

Légende

1.1

Jean-Christophe
Jean-Christophe

Légende

1.1

5.1

Jean-Christophe Thériault et Braisa Gurreonero

Dessous plafond 2e niveau 22210

Avis: Puisque notre espace cylindrique possède ne possède pas de mur alliant à la fois une composition vitrée et une composition opaque, nous avons décidé d'illustrer les deux types de mur en une seule coupe. La partie supérieure représente une partie vitrée du mur, et la partie inférieure représente une partie opaque du mur.

Composition TO01

- Membrane pare air et pare vapeur

- Revêtement de bois 20mm

- Isolant rigide, polystyrène extrudé 120mm, R15

- Lamellé collé 150mm

- Poutre d’acier 100x234mm

Composition VI01

-Vitrage isolant haute performance Prelco (Voirde 6mm, avec intercalaire de 13mm. Gaz de remplissage argon. (Voir Annexe 4)

Composition MR01

-Brique couleur ocre 102x65mm

-Ancrage de briques réglable en acier galvanisé Senneco BL-316 (S) et (D) (Voir Annexe 3)

-Lame d’air 38mm

-Membrane pare-pluie

-Membrane pare-air

-Isolant rigide de polystyrène extrudé 102mm

Dessous plafond RDC

Dessus plafond RDC 15970 10000 15200

Owens Corning Foamular NGX C-200 (Voir Annexe 1)

-Panneaux de revêtement extérieur en gypse 20mm

-Membrane pare-vapeur

-Montant d’acier 41x152 mm avec espacement de 406mm

-Laine minérale Owens Corning Rose Next gen Fiberglas (Voir Annexe 2)

-Plaque de plâtre 12mm

Composition FO01

- Terre

- Tapis de drainage (19mm)

- Membrane imperméable

- Mur de fondation en béton

- Espace dédié à la mécanique

VI01
TO01
MR02
Dessus dalle niveau bas

99% GÉNÉRIQUE, STOCKAGE D’ARTS

Session: ARC3017B, Ewan Branda

Durée: 14 semaines

Travail: En équipe de 2, avec Maggie Kanj

L’atelier a pour mandat de concevoir un bâtiment industriel de taille moyenne sur un terrain urbain, en explorant deux thèmes : adapter l’architecture anonyme suburbaine aux environnements urbains denses et exploiter le potentiel expressif des formes architecturales minimales avec des outils paramétriques et l’intelligence artificielle. Notre bâtiment a comme fonction principale de stocker des œuvres d’arts. Les principes du projet furent inspirés par les cahiers des bonnes pratiques de la ville de Montréal; nous voulions maximiser les liens et les connexions (avec l’animation du rez-de-chaussée qui anime la voie piétonne), l’aménagement de nouveau liens piétonniers et une conception paysagère misant sur le verdissement. La volumétrie s’explique par le désir d’utiliser une empreinte minimale, s’ouvrir vers le parc adjacent et le geste de la pente au toit est un reflet du contexte dans le secteur Point StCharles; on remarque une gradation au niveau des hauteurs partant du canal Lachine, suivant les bâtiments industriels assez horizontales, finissant par le REM, une superstructure allant jusqu’à 20 mètres. Partant de la volumétrie, la seconde étape fut d’ajouter des pavillons grâce au logiciel Grass Hopper. Notre stratégie d’implantation des pavillons est la suivante; placer les pavillons du côté de la rue Wellington, de sorte à avoir l’image de pavillons venant s’aggriper sur la façade.

Braisa Gurreonero et Maggie Kanj
ARC3017-B-A23 - Projet d’architecture 1
Circulation véhiculaire
Pôles socials
Parc à proximité
ARC3017-B-A23 - Projet d’architecture 1
Sortie IA, avec logiciel Night Cafe

MINASHKUAU

Session: ARC3018, Eric Moutquin et Alain Fournier

Durée: 14 semaines

Travail: En équipe de 3, avec Maria Moreno et Karen Berbari

MINASHKUAU qui signifie « c’est la forêt » en innu-aimun, est un projet de centre multifonctions situé dans le nouveau secteur Ka uatshinakanashkasht de la communauté innue de Uashat mak Mani-utenam. Le bâtiment comporte divers programmes communautaires offrant des services afin d’améliorer la qualité de vie des Innus qui habitent le secteur. Le projet aspire à honorer les valeurs, les traditions et la culture innue. Il était donc nécessaire de porter une grande sensibilité aux besoins et souhaits de la communauté innue afin de concevoir un projet qui serait en accord avec leurs traditions.

Le centre multifonctions est implanté de manière à enlacer un grand cercle qui deviendrait le cœur du secteur Ka uatshinakanashkasht. Ce rapport vise à rendre hommage au cercle, une figure importante pour le peuple innu. D’autre part, l’intérieur du bâtiment se déploie en quatre secteurs, chacun représenté par une essence d’arbres retrouvée dans le Nitassinan : l’épinette noire, le bouleau, le mélèze et le sapin. Chaque secteur comporte une atmosphère différente, en accordance avec le programme des espaces. MINASHKUAU est une représentation architecturale de la forêt, du territoire, du premier habitat innu : le Nutshimit. Recréer le sentiment d’être dans forêt a été la ligne directrice du développement du projet, autant au sein du bâtiment que dans l’aménagement paysager. Il était important d’instaurer des repères reconnaissables auprès de la communauté innue afin de créer des espaces qui mettent en valeur leur précieuse culture. Le centre MINASHKUAU vise un retour aux sources, dans un environnement familier à la communauté innue. MINASHKUAU, c’est la forêt.

CONCEPT

Plan d’implantation, secteur Georges-Ernest

enlacer le cercle ouverture vers la communauté produire des connexions retrouver la forêt

Plan du RDC

Plan du 2e niveau

LE CONCEPT

REFLETS ANGRIGNON

Session: ARC6701, Cyril Charron

Durée du projet: 16 semaines

Travail: Individuel

Échos Angrignon est un lieu de rassemblement qui prolonge l’expérience du parc à l’intérieur du bâtiment. Dans une métropole animée du côté du métro et des infrastructures, ce projet invite les visiteurs à ralentir, à se déconnecter et à retrouver le vécu de l’extérieur, ce vécu tant apprécié par les usagers du parc, à l’intérieur. Échos Angrignon explore comment la lumière naturelle et les jeux de transparence peuvent évoquer l’extérieur au sein même de ses murs.

L’axe métro-étang est unifié par l’intégration d’un immense jardin de la biodiversité. Ce jardin est un concentré du Parc Angrignon; on y retrouve des plantes indigènes du parc et de la flore sauvage retrouvé dans les parcs montréalais, dans le but de sensibiliser les jeunes et les étudiants de tout âge à la biodiversité retrouvé dans la ville. Ce jardin est social, programmatique et éducationnel. Ce jardin est caractérisé par ses formes organiques et sous formes de pastilles qui permettent de guider les usagers vers l’étang.

L’agrandissement principale consiste en un percement de la dalle structurelle pour créer une cour intérieure baignée de lumière naturelle. La cour sert à trois usages distincts; l’accueil, la salle d’exposition ouverte et une salle polyvalente.

Un volume vertical vient transpercer la dalle existante, introduisant un espace inondé de lumière naturelle qui évoque la sensation d’être en plein air. Cet espace, à la fois apaisant et chaleureux, s’inspire directement de la nature grâce à sa structure visible en bois lamellé-collé. La structure contribue à un langage architectural qui célèbre la verticalité : la légèreté et la finesse de la structure rappellent la présence élancée des troncs d’arbres

LE CONCEPT

LES

COUPE BIOCLIMATIQUE

TP3 - PENSÉE CONSTRUCTIVE COUPE AXONOMÉTRIQUE 1:50

TOITURE COMPOSITION

Revêtement de bois 20mm

Pare-pluie (Ondutiss par ONDULINE)

Pare-air (Sopraseal par SOPREMA)

Isolant de pente SOPRA-ISO PENTE 2% 50mm, R11,4

Isolant rigide, polystyrène extrudé 120mm, R15

Pare-vapeur polythylène (Aquabarrier par IKO INDUSTRIES)

Panneau CLT, Nordic X-Lam 150mm

Poutre lamellé-collé 184x803mm, Nordic Lam+ (Grandes dimensions)

MUR EXTÉRIEUR COMPOSITION

Brique Terca Con Mosso 215 x 102,5 x 65mm

Espace d'air 25mm

Pare-pluie (Ondutiss par ONDULINE)

Pare-air (Sopraseal par SOPREMA)

Entremise en bois 38mm x 76mm @ 610mm c/c

Montants en bois 38mm x 76mm @ 610 mm c/c

Isolant laine de roche ROCKWOOL COMFORTBATT 152mm

Ancrage de briques en acier galvanisé

PARAPET COMPOSITION

Couvertine métallique

Taule d’acier galvanisé

Pare-pluie (Ondutiss par ONDULINE)

Pare-air (Sopraseal par SOPREMA)

Panneau isolant de polyisocyanurate SOPRA-ISO 100mm

Pare-vapeur polythylène (Aquabarrier par IKO INDUSTRIES)

Connexion mur-rideau

PLANCHER COMPOSITION

Finition béton ciré 20mm

Dalle en béton armé 200mm

Diffuseurs d'air au sol types LDU-W et LDU-W/H

Système de de suspension métalliques pour les plénums

Pare-vapeur polythylène (Aquabarrier par IKO INDUSTRIES)

Panneau CLT Nordic X-Lam 105mm

MUR RIDEAU COMPOSITION

Murs rideaux légers Prévost

Meneaux 3603 (40x90mm)

Vitrage double 25mm

Cale à vitrage 6mm

PARAPET COMPOSITION

Couvertine métallique

Taule d’acier galvanisé

Pare-pluie (Ondutiss par ONDULINE)

Pare-air (Sopraseal par SOPREMA) Panneau isolant de polyisocyanurate SOPRA-ISO 100mm

Pare-vapeur polythylène (Aquabarrier par IKO INDUSTRIES)

Connexion mur-rideau

TOITURE COMPOSITION

Revêtement de bois 20mm

Pare-pluie (Ondutiss par ONDULINE)

Pare-air (Sopraseal par SOPREMA)

Isolant de pente SOPRA-ISO PENTE 2% 50mm, R11,4

Isolant rigide, polystyrène extrudé 120mm, R15

Pare-vapeur polythylène (Aquabarrier par IKO INDUSTRIES)

Panneau CLT, Nordic X-Lam 150mm

Poutre lamellé-collé 184x803mm, Nordic Lam+ (Grandes dimensions)

Pour l'entretien du vitrage du mur-rideau, un espacement de 400mm a été créé

Manchon intérieur qui permet le mouvement de dilatation

PLAN DU DÉTAIL

Échelle 1:20

MUR-RIDEAU COMPOSITION

Murs rideaux légers Prévost

Meneaux 3603 (40x90mm)

Vitrage double 25mm

Cale à vitrage 6mm

Poutre de solive en lamellé-collé 183x803mm

Poutre principale en lamellé-collé 183x803x12000mm

Ancrage mobile en acier relié à la structure principal pour venir supporter le poids du mur-rideau. Chaque ancrage est aligné à un meneau vertical (espacement de 1500mm) (FIGURE 21)

Colonne en lamellé-collé 183x483x6400mm

COUPE DU DÉTAIL

Échelle 1:20

ÉLÉVATION DU DÉTAIL

Échelle 1:20

Turn static files into dynamic content formats.

Create a flipbook
Issuu converts static files into: digital portfolios, online yearbooks, online catalogs, digital photo albums and more. Sign up and create your flipbook.