Borys Oleński - portfolio

Page 1


Borys Oleński

10/2020 - 11/2024

02/2023 - 06/2023

Education

Faculty of Architecture at Wrocław Univerity of Science and Technology

Department of Architecture and Design at Polytechnic University of Turin

10/2023 - 02/2024

10/2022 - 01/2023

08/2022

Work experience

Heinle, Wischer und Partner Architekci, Wrocław, Poland

Intern

ADAMICZKA.BROMA, Wrocław, Poland

Assistant architect

PROLOG, Wrocław, Poland Intern

08/2024 - 09/2024

2021 - 2023

07/2022 - 08/2022

2021 – 2022

2021 – 2022

02/2021 - 09/2021

11/2021 - 12/2021

03/2021 - 04/2021

Language

Mother tongue C1

Workshops and extra activities

Organisation and participation in OSSA 2024 Sanatorium workshops Civic Workshop Green Grunwaldzki Square RENEWED

Organisation and participation in ProtoLAB design and build workshops 2022

Member of the HŚM Scientific Club ant WUST

Member of the Student Self-Government Council of the DA at WUST

BWA – Bureau of Worthwhile Activities, Naked Nerve exhibition at BWA Wrocław Główny gallery

University of Universities / 1s 2021-22 ARCH

University of Universities / 2s 2020-21 ARCH + ARTS

Digital skills

Autodesk AutoCAD / Autodesk Revit / Graphisoft ARCHICAD / Rhinoceros 3D / SketchUp / Blender / Adobe Creative Cloud / Microsoft Office / DaVinci Resolve / TouchDesigner / Marvelous Designer

Interests

painting

Hostel + community kitchen

The proposed building is a hostel combined with a catering function in the form of a community kitchen, dining room and common area. The area is bound to the east by a street, to the west by a water canal, to the south by municipal infrastructure buildings and to the north by allotment gardens. The project makes use of the leisure potential of the location, with an emphasis on cycling and tourist traffic.

2024 Supervisor: dr hab. inż. arch. Łukasz Wojciechowski

Massing diagrams

The basic idea of the hostel is to divide it into a publicly accessible ground floor and a floor with a strictly residential function. The shape of the building responds directly to the requirements of the site - it allows a seamless transition from ground level to the top of an embankment along the canal to form an integral part of the building.

Natural air exchange Sunlight comes in through the transparent roof element, heats up the air in the space between the roof covering and the insulation, promoting air flow

Light mounted on the main construction frame

Sunlight Sunlight reflected by the white surface of the wall is diffused at an angle

ducts Cooker hoods and cupboards

mounted on an additional structure

Skylight along the entire length of the building
Rainwater collection
Rainwater collection
drained into retention basins

Torre + Extension

Inseparable from the landscape, the tower stands alone slowly eroding into the rising sea. Now given a new life through an extension created with regular scaffolding system, that treats it with respect not as a historical object meant only to be displayed and observed. The alien structure allows the tower to become an active participant in the life of Lecce and the surrounding areas. It’s new closeness to ordinary elements - tubes, timber boards, sand bags, sunbeds - makes it more approachable, less intimidating as a piece of history. The tower is pulled out of stagnation, isn’t allowed to passively wither, especially in the face of climate change, through which vast amounts of coastal heritage is going to be lost.

Scaffoldings are encountered every day, but, being as ubiquitous as plaster, brick facades or asphalt, are not taken into account as part of architecture to the same extent. Temporary, but never gone, moving from one place to the other, wherever and whenever the need arises. The idea is to embrace them, for their availability, low price, extreme versatility and possibility of further reuse - all those aspects allow for adaptation of this idea in other towers along the coast.

ReUse Italy, Reuse the Tower competition

The basic principle of scaffolding lends itself to playful arrangements, and the new lightweight structure takes inspiration from all manner of informal, ad hoc objects and elements seen in small towns, gardens or beaches and serves as support for a platform with an enveloping shading system. Additional platform encircles the tower, following the shape of the surrounding stones and brings everything to one level, underlining the connection of the town to the sea. External, industrial lift leads directly to an additional platform extending the second floor.

3. Storage for sunbeds and sandbags used for holding down towels, blankets and other lightweight entities
2. Children’s playing area
4. Connection between the old and the extension
1. Fireplace area
Fireplace area
Children’s playing area

The aim was to design a habitat tackling two main issues, both local and global. First is the problem of low quality housing developments porpping up in the suburban areas of polish cities, and the second was the peoblem of food waste at a consumer level. It takes its name from the layout of the masterplan, where biodiverse beds covered with native plants have been aranged in a pattern resembling rectangular tiles.

We began work on the project with a research phase which consisted of gathering information about given problems, and a survey with which we reached out on the internet, to a group of 130 people that we thought fit best the potential inhabitants of the habitat. Some of the results can be seen on the next page. The entire project was carried out within the framework of sustainable development with an emphasis on creating and strenghtening bonds between habitat users and local residents, responsible use of natural resources such as rainwater and solar energy.

Tiles

2021
Studio Habitat: Supportive Housing Structures Supervisor: arch. Anna Bać, prof. PWr
Team: Borys Oleński, Kacper Szewczyk

Over 50% of people in the age range 31 45 and over 60% people in the age range 22 30 don't plan on living in their current place of residence for longer than 5 years.

83% of people living in new developments own their apartments. Out of these 43% plan of moving in the next 5 years and only 20% plan on living in thei current place of residence longer than 15 years.

More than half of the responders don't feel a part of their community. Main causes of this are: lack of interest, lack of opportunities to socialize, actions undertaken by developers limiting neighbour contact and age differences.

Overwhelming majority of responders are in favour of foodsharing, but half of them don't want to participate in it and 38.5% want to participate only partially. Uncertain source of food is the main barier in using communal fridges

Sensory garden

Place designed for rest and relaxation, a calm spot filled with various plants, with various textures, smells and visual characteristics.

Playground + Gym

Outdoor gym, combined with a playground placed in the middle of the habitat, next to the open common square.

MasterPlan

Dominated Long strip of land inserted between new housing developments characterized by continuous, redundant fences, lack of recreation spaces - playgrounds, gyms, meeting spots, lack of green spaces. With our proposal we're going against all the above factors, by opening up as much as possible to outside visitors, filling the space withgreenery, providing places for social interaction and integration.

Entrance pavilions

Serve as an invitation to the habitat, provide a seating and host the two community fridges.

Dominated by evergreen plants, multiple pavilions surround a fireplace intended to provide a cozy space for the community.

Enclosed dog park providing open space for different pets, open for everyone outside the habitat.

Winter garden
Central unit
Indoor and semi-outdoor spaces serving the needs of the community during different atmospheric conditions.
Dog park
Ground floor - unit relationship
Ground floor
Top floor
Hydroponic farming
Common kitchen

2022

Studio Habitat: Social Infrastructure

Supervisor: dr inż. arch. Tomasz Głowacki, mgr inż. Robert Witczak, dr inż. arch. Grażyna Hryncewicz-Lamber

Team: Borys Oleński, Julia Kutera

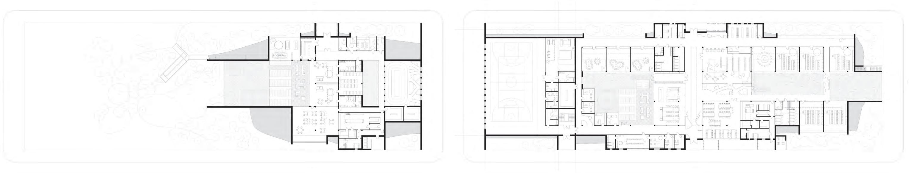
A primary school and kindergarten located on (and under) a long strip inside a still developing, model neighbourhood, called Nowe Żerniki in the outskirts of Wrocław.

We began work on the project with a research phase which consisted of gathering information about given problems, and a survey with which we reached out on the internet, to a group of 130 people that we thought fit best the potential inhabitants of the habitat. Some of the results can be seen on the next page. The entire project was carried out within the framework of sustainable development with an emphasis on creating and strenghtening bonds between habitat users and local residents, responsible use of natural resources such as

The complex is made up of two buildings divided by a road, and what ties them together is the idea of covering both with soil dug up during the construction, overgrown with a wild meadow. Inclusivity permeates the projects both in terms of accessibility as well as accomodating students of various needs and including horticultural therapy into the curriculum and daily activities.

Mound

Horticultural therapy is a form of therapy based on physically working with plants aimed at aiding in recovery for people with paralysis, mental illnesses after accidents, etc. is sometimes utilised in Special Educational Centers for children with disabilities, helps with eye-hand coordination, supports emotional and social development and stimulates senses and cognitive processes.

In the central parts of both buildings, located are outside gardens (labeled 1 and 3� and interior "muddy" classrooms (labeled 2 and 4� allowing students to learn through interaction with plants both edible and not.

Ground floor
Kindergarten

Kindergarten entrance

Ramp Recreation Park

Lelenfant pavilion

The pavilion was created during a summer workshop, to be exhibited as a part of an international children’s festival - Lelenfant - organized in Wrocław, Poland.

At the beginning, we organized small design workshops for the children taking part in a summer camp preceeding the festival, during which they experimented with paper straws, stings, plasticine and glue, creating small models in response to a prompt: What is a home. Then based on those works we designed a tunnel pavilion made primarily of paperr - tubes and honeycomb sandwich boards. The design stage lasted for a week during which we prepared athe concept, construction drawing and a list of materials, however the building stage required us to revisit the design as unexpected challeneges appeared.

Pavilion assembled on site
Pavilion during the festival
2022
Team: Martyna Apczyńska, Julia Kutera, Julia Myślińska, Borys Oleński, Kiryl Furmanchuk, Kinga Wasilewska

After the event the pavilion was left in place and a couple of weeks later we had to come back and add changes and repairs, due to human as well as environmental damage. The pavilion survived summer, autumn, winter and spring.

Damage after a period of time
Repaired pavilion
Plywood - 18 mm
OSB - 12 mm
Drawings by Kiryl Furmanchuk

Civic studio - Green Grunwaldzki Square RENEWED

2021-2023

Project funded by Iceland, Liechtenstein and Norway through the EEA and Norway Grants under the Active Citizens Fund - Regional Programme

A two year, four stage project run by Nice Stories Foundation, aimed at rejuvenation of, and creating a stronger community in, the Grunwaldzki Square District in Wrocław, Poland. Over the course of the project, as an interdisciplinary group consisting mostly of students, we’ve participated in various activities including working sessions, meetings, lectures and educational guided tours through which we gained knowledge about ecology and sustainable urban design. As a result of research, one of the intersections in the district has been identified as an area of intervention for our proposal which will in turn be submitted to the Wrocławski Budżet Obywatelski (Wroclaw Participatory Budget) and possible realisation.

The intersection is very disorganised, is used by both locals as well as transit from one part of the city to another. The idea behind our proposal lies in recovering the neighbourhood’s identity and improvement of the quality of life of the users, starting with accessibility (reworking the ground surfaces) and ending on a possible community garden.

around

whole Grunwaldzki Square District and the chosen intersection aimed at learning about about the native vegetation, Odra river, functioning of the pedestrian and bike infrastructures and best practices relating to climate resilience, led by city officials, academics and various foundations members.

Walks
the
Photos by: Marcin Szczygieł, Anna Pazdej, Marta Sobala

Series of public consultations during which we interviewed local residents and outside users of all ages, on the streets and a neighbourhood picnic, meetings with representatives of housing associations and city officials, during which we gathered opinions about the intersection, our ideas and suggestions for further development using our previous experience from different workshops.

Interdisciplinary workshops during which we learned about more complex methods of group work, classification of gathered data, participatory design, sustainability and farming in cities, led by academics from local university, foundations members and others.

Interdisciplinary working sessions and group meetings

Photos by: Marcin Szczygieł, Anna Pazdej, Marta Sobala

Design stage consisting of workshopping sessions led by Menthol Architects and then later studio PROLOG, during which our working group started putting all the gathered knowledge into an architectural form creating a proposal tying all of the chaotic elements of the intercetion into a playful and accessible whole. The result was a model that was later revised and passed on as a base for further development for the final proposal.

Workshops with architecture studios
Photos by: Marcin Szczygieł, Anna Pazdej, Marta Sobala
Photos by: Marcin Szczygieł, Anna Pazdej, Marta Sobala

Art and personal projects

Blender add-ons Human Generator
V4 + NENGHUO’s Hair Nodes V2
Learning Marvelous Designer clothing simulation
Experiments with baking light and Color Attributes in Blender

Two short animated films meant as experiments in using the inherent artifact-producing aspects of 3D software as a point of departure in exploring a sort of vernacular visual language indigenous to low processing power devices, based on many previous experiments.

Both take place in vaguely post- or currently-happening-apocalypse, in the future, maybe even in an alternative reality.

No. 1 is a monologue by a member of a succeeding civilisation discussing a preceeding one. The landscape bears physical evidence of the forces governing the previous social order. The character tries to show the

perilous effects of accepting the destructive status quo. No. 2 touches on similar themes, adding the feeling of derpair caused by inevitable loss and the necessity for hope, coming from understanding the current situation.

I think back then, they haven’t realised

how it was all clever tricks, really.

It seemed something beyond comprehension

but, at any point it would’ve been see as something formed by a perA person, or people, with agency, mindful of their deci-

You know how we’ve been shown the Earth stop in it’s tracks,

while we know its still going

just outside the reach of your senses.

But we’ll see something new through. Since you’re close to the ground, you can feel the dirt, the rocks.

Now, its not for us to see the black and brown birds.

sandpaper like sand grains spread on your palms.

Just like those walls and spires, wires and roads which some say „grew” straight from the grassfields.

The birds with red beaks and bees.

I may have never seen those birds, and yet I can remeber them flying over my head.

So now, finally we can play and dance for them to no one’s music and no one’s entertainment.

Learning the EXR workflow and compositing in DaVinci Resolve

A series of paintings in which I use my daily activities and objects as subject matter, and transform that subject matter with digital tools. The distortions created, are taken at face value, as a real part of the world to be processed.

Turn static files into dynamic content formats.

Create a flipbook
Issuu converts static files into: digital portfolios, online yearbooks, online catalogs, digital photo albums and more. Sign up and create your flipbook.
Borys Oleński - portfolio by borysolenski - Issuu