P O R T F Ó L I Ó

![]()

SZÉCHENYI ISTVÁN EGYETEM, GYŐR
erasmus félév, Arnhem, Hollandia
Mood for Wood, Poznan, Lengyelország
Várostervezési Napok 2. helyezés, Budapest, Magyarország
Builder Method, Nantes, Franciaország
Építész grafikai kiállítás, Győr, Magyarország
Várostervezési Napok 1. helyezés, Budapest, Magyarország
Winkler Gábor Mérnöki szakkollégium tagja
Építészmérnöki Kar, osztatlan
SZENT MARGIT GIMNÁZIUM, BUDAPEST
2015 - 2020
PALONAI MAGYAR BÁLINT ÁLTALÁNOS ISKOLA, FONYÓD
2007 - 2015
NYELVISMERET
angol német
KÉSZSÉGEK
MS Office
Adobe CC
Rendering
CAD
angol nyelvi előkészítő
általános iskola
B2 komplex - Euroexam alapfok
Word | PowerPoint
Photoshop | InDesign
Twinmotion
ArchiCad | Revit | Sketchup
VÁROSTERVEZÉSI NAPOK ÉPÍTÉSZETI WORKSHOPOK
FÉLÉV - anyagismeret
FÉLÉV - város
Egy kisméretű tömör téglának a méreteivel kellett dolgoznunk az első félévben, különböző anyagokat használva.
A második félévben Le Corbusier munkásságával foglalkoztunk.






A harmadik félév fő feladata egy foghíj telek beépítése volt, a győri Kisfaludy utcában. A történelmi belvárosba kellet elhelyezni egy üzleti- és lakófunkcióval ellátott több emeletes modern épületet. Az én üzleti funkcióm egy csomagolásmentes bolt volt, mely saját raktárral rendelkezett. A lakó funkciómat pedig egy egy gyermekes család modellre terveztem. Két szoba, dolgozó szoba, fürdőszoba, külön mosdó helyiség és az amerikai konyhás nappali, amelynek közvetlen kapcsolata van a terasszal.











A negyedik félév feladata egy Győr környéki kis falu elhagyatott területének újra gondolása volt. Egy régi olajtárolóba kellet funkciót helyeznünk, a koncepció alapján egy leendő művésztelepet kellett terveznünk. A mi fő funkciónk a műterem volt. A rendhagyó forma az olajtároló miatt adott volt. A műtermet északra tájoltuk, illetve egybekötöttük egy lakórésszel is, melyben két szoba, egy fürdő és egy étkező+konyha+nappali kapott helyet.
A műterem mellé került egy kiállító tér/raktár is, mely külön megközelíthető a vendégek és az alapanyag szállítás miatt is.
A központi útról könnyen megközelíthető, mégis eldugott, mivel a műterem ablaka nem az útra néz, így aki igénybe veszi a műtermet teljesen elvonulhat és alkothat ebben az izgalmas formával rendelkező épületben.

Ebben a projektben egy közösségi parkot terveztünk Gönyű községre, melyben részt vett a község vezetősége is. A koncepcióban törekedtem a hajótörténeti múltat figyelembe venni, mivel a parkkal szemben folyik a Duna. Fontos szerepet játszott, hogy az összes korosztálynak kedvezzek a parkban elhelyezett elemekkel. Kialakításra került egy vendéglátóegység, rendezvény helyszín, bográcsozásra és sütögetésre alkalmas terület, sport zóna futó körrel, mely kikanyarodik a Duna partra. Természetesen van játszótér is, mely több korosztálynak is megfelelő elemekkel rendelkezik. A tervezés után egy új utca került kialakításra, melynek kapcsolata van a parkkal, itt a zártsorú beépítést választottam.
















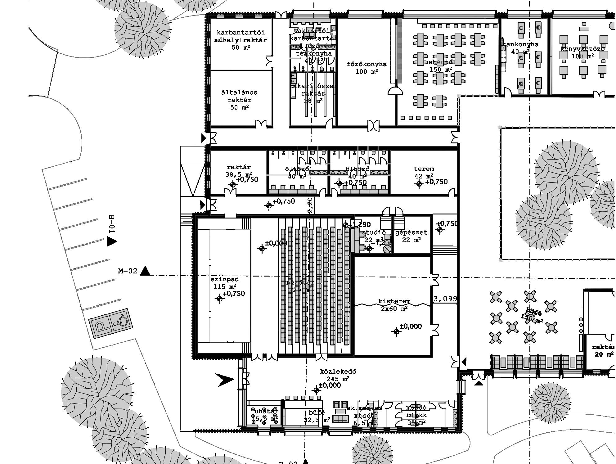
Az ötödik szemeszterben iskolát kellett terveznünk csapatban, mely óriási lépték váltás volt az előzményekhez képest.
A koncepciónk egy olyan Waldorf iskola volt, ahol a tanulóknak saját életterük van, így alakultak ki a főépületből kinővő csápok. Az iskolához tartozik egy hatalmas tornacsarnok és egy saját színház is.
A főbejáraton belépve egy aulába jutunk, mely körbejárható és mellette két oldalt belső udvarok helyezkednek el, ezzel is megnyitva a teret és beengedve a tanuló térbe a természetet és értelemszerűen a természetes fényt is.
A főbejárat környékén találhatóak a gazdasági funkciójú irodák, így is erősítve, hogy a szülőknek csak odáig kelljen besétálni és a gyerekek teljesen magukénak érezhessék az iskolát.
A színház és a tornacsarnok keretes szerkezetet ad a homlokzatnak, illetve mindegyik lezárható az iskola felől és megközelíthető az utcáról külsős események esetén.
Az osztálytermek alsó-, felsőosztályokra és a gimnáziumra vannak szétbontva, így elkülönülnek a korosztályok.
A színház burkolata követi a főépület burkolatát a fa-beton kombinációval.
A főbejárat a város irányába lett tájolva, ezzel is megnyitva a nagyközönség előtt is a funkciót.
A színház fedése shed tető, mivel úgy terveztem, hogy lehetőség legyen átalakítani a belső teret, helyet adhat színházi előadásoknak, de a lesülylyeszthető színpadnak és az összetolható lelátónak köszönhetően akár szalagavatóra is berendezhető. Így a shed tetőn elhelyezett bevilágítók fénymennyisége szabályozható automatizált redőnyőkkel.
A színházban helyet kap egy apró büfé a közönség számára, illetve kapott saját öltözőket és próba termeket is, ezek egy művész bejáróval könnyedén elérhetőek.

A hatodik szemeszter első felének a feladata egy parkolóház tervezése volt, párban.
A fő szempontunk volt, hogy kertvárosias környezetben ne hasson egy brutális beton téglatestnek a parkolóház és ne zavraja a környező épületek kilátását, illetve az emberek komfort érzetét. Ebből kifolyólag lépcsőzetesen visszahúztuk a fő útra néző homlokzatot, növény befutattatást kapott, ezzel megoldva a természetes átszellőztetését. Kiegészítő funkcióként az oktatási egységet kaptuk, illetve egy 80-100 férőhelyes, zárható bicikli tárolót. Az oktatási egységnek egy több szintes, a már meglévő Építész Műteremházra reflektáló, kocka épületet terveztünk, melynek homlokzata egy izgalmas, négyzethálós acél burkolatot kapott. A bicikli tároló helyiséget besüllyesztettük a földfelszín alá.









A tervezési helyszín a győri szigeten található, az egykori Olajgyár területén, az Erkel Ferenc utca, a Bercsényi liget és a Knézich utca lehatárolásában.
A terület adottságaiból kiindulva szerettem volna az Erkel utca és a liget sarkán egy nagyobb tömeget elhelyezni, ezzel is hangsúlyozzva a vásárcsarnokot. Az alapkiosztást egy raszter háló segítségével terveztem meg, így egy nagyon letisztult térstrúkturát kaptam, melyre reflektál a tömeg, a homlokzatképzés és a nyílászárók kiosztása. Három traktusra lehet osztani a raszter hálót ÉK és DNy-i irányba, ahol az elsőben található a fedett, központi vásárcsarnok, a másodikban a fedett-nyitott tér, míg a harmadik, kisebb traktusba egy üzlet kapott helyet. ÉNy és DK irányba pedig 2 egységre lehet bontani az épületet, melyet akár nevezhetünk bazilikális elrendezésűnek is.
Itt a csarnoktér belmagassága egy kiugró tömeget képez, mely illeszke-

dik a Bercsényi liget túl oldalán már meglévő indusztriális gazda bolttal, míg az oldalhajóban egy galéria kapott helyet.
Az oldalhajóban kerültek elhelyezésre a bérelhető üzlethelyiségek, raktár, gépház és az illemhelyiségek, illetve a függőleges közlekedés, mely akadálymentesített is. A fedett-nyitott térben ez a galéria szint fut tovább, ezzel is megnövelve a piac kapacitását, itt a földszinti részen mobilis asztalok kerültek elhelyezésre, melyeket az adott rendezvény alapján lehet kihelyezni.
Szerkezetileg az épület maghőszigetelt monolit vasbeton. A homlokzata fehér cementtel színezett látszó beton, míg az épület belső falai, tartószerkezete, 30 cm méretezett vasbeton, szintén fehér cementtel. A tető fedése repedésáthidaló képességgel rendelkező betonvédelemmel ellátott fehér monolit vasbeton burkolat, míg belülről gerendarácsozattal van ellátva, ezzel is egy raszter szerű, letisztult izgalmat kapva.
A mester képzés megkezdésével a tervezési feladatok is összetettebbé váltak.
A 7. félévben egy Tét nevű településre terveztünk, Győr-Moson-Sopron megyében. Tét egy 5000 fős kisváros, a féléves fealadtunk volt, hogy tövire-hegyire bejárjuk és megismerjük a települést, melyben a város vezetése is segítette munkánkat. Ahhoz, hogy a területet egy új fajta szemlélettel vizsgáljuk szubjektív helyszínrajzokat kellett rajzolnunk, mely néha sajátmagunknak is meglepetést okozott, hogy valójában mit is dolgoztunk fel a látottakból.
Ezek után választottunk egy-egy részletet a városból, melyben fantáziát és revitalizációs lehetőséget láttunk. Az én választásom a Helytörténeti Múzeumra esett, melyben sok lehetőség lakozik, viszont sajnos nem kap elég figyelmet.
Első sorban felállítottam egy akció tervet, melyet leginkább anyagi és munkaigény alapján állítottam sorrendbe.
Az első a múzeum körüli kerítés elbontása, így teljes egészében közösségi térré válhat a múzeum udvar.
A második az udvar rendbe hozatala és egy flexibilis beton színpad tervezése, melyet több féle képpen is használhatnak az ott lévők, színpadként vagy asztalként attól függően mit kíván az aktuális program. Ezzel a lépéssel népszerűsítenénk a múzeum kertet.
A harmadik akcióterület maga a múzeum épülete volt, melyet átterveztem falak mozgatásával és bontásával. Létrehoztam nagyobb, rendezettebb, élhetőbb tereket, ahol kényelmesen lehet városi eseményeket, rendezvényeket tartani.
A 3.2. lépés pedig a déli homlokzat megnyitása a kert felé, így közvetlenebb kapcsolat nyílik a kert és az épület között. Itt a meglévő téli kert elbontásával és teraszként való megnyitásával terveztem. Az eredeti téli kert nyomai felfedezhetőek mardnának a terasz burkolatában.
A terasszal egy nagyobb, fedett-nyitott teret kapunk, mely nem csak öszszeköttetést jelent a kert és az épület között, de egy izgalmas kortárs hozzáépítést is ad a barokk épülethez.
Az egész terv legutolsó lépése, mely leginkább csak koncepció szinten létezik, hogy a Helytörténeti Múzeum hátsó udvarát, a patakig, teljesen megnyissuk és ezt a vadnövényes, szövevényes, természetes közeget rejtélyessé, de biztonságossá és látogathatóvá varázsoljuk minden korosztály számára.




kiállító tér
rendezvény tér kiszolgáló részek
terasz hozzáépítés
































A nyolcadik szemeszteremet Erasmuson töltöttem Hollandiában, Arnhemben. A Dutch Architecture meets Dutch Landscape Architecture című kurzust vettem fel, így az építészet mellett beleshettem a tájépítészetbe is. Nagyon tanulságos volt, mind szakmailag, mind az angolt tekintve, mind pedig szociálisan.
A féléves feladatom Meinerswijk-re készült, mely a város déli részén fekszik, a Nederrijn folyó déli partján, egy árterületen. Évente 2-3 hónapra önti el a duzzadó folyó, ezt az időszakot leszámítva népszerű terület, melyet gyakran látogatnak futók,biciklisek, sétáló, kikapcsolódásra vágyó emberek. Magukban, társaságban, családok vagy kutyát sétáltatók. Szóval igen népszerű hely, emelett pedig híres történelméről és vad élővilágáról. A különböző madaraktól, hüllőkön át a vadlovakig, sok minden megtalálható itt.
A tervem célja, hogy a területet bármilyen évszakban és az év 365 napján elérhessék az emberek, oda látogatók. Ezért egy két szintes ösvény rendszert hoztam létre, melynek a földszinti része csak a száraz időszakban használható, ez inkább a víz-ember kapcsolatra erősít rá, a vízzel való tapasztalásra. Míg a magasabbik ösvényrendszer az éves megközelíthetőségért felelős, a terület szélén fekvő gátrendszerről indulnak a hídszerű ösvények, így ennek magasságával is osztozik.
A rendszer logikája, hogy mit látunk az ösvényen haladva, vagy egy-egy kilátóponthoz érve. Többségében híresebb vagy figyelem felkeltő épületeket vettem célul, mint a pályaudvar, a gótikus katedrális vagy a tipikus vasúti híd. A magasösvénynek több ponton van kapcsolata a talajjal, így a száraz időszakban a földfelszínen is folytathatják a kirándulást az ide látogatók. Ezek a pontok akadálymentesítettek, illetve az ösvények is 3 méter szélesek, hogy ne csak a gyalogosoknak, de a bicikliseknek is el-
érhető legyen.
Az ösvényrendszer végén egy kávézó-kiállító tér található, melynek hivatása, hogy betérhessenek a területen sétálók, ugyanis semmilyen kiszolgáló egység nincsen jelenleg Meinerswijk-en, mely feltehetőleg a rendszeres árvíz miatt van így.
Ezért az épületemben van egy kávézó és mellette egy kiállító tér is, mely interaktívan mutatja be a terület történelmét és élővilágát. Az épület sajátossága, hogy kétéltű, vagyis az árvíz vízmagasságával együtt tud emelkedik. Az épület tetejének van kapcsolata a magasösvénnyel, így megközelíthető az épület is az év bármely napján.
Összeségében egy idilli, bármely évszakban hasznosítható épület volt a cél, ahol megpihenhetnek a Meinerswijk-re látogatók.

problémákat azonosította és tett kísérletet mindezek feloldására. Tervezési folyamat során arra törekedtünk, hogy egy olyan progresszív jövőképet és víziót alkossunk, melynek fókuszpontjában hosszú évtizedek után újra az emberi lépték és humánközpontú szemlélet legyen középpontban, figyelemmel kísérve jelen korunk elvárásait. Eszközként egy hosszútávú stratégiai szempontrendszert jelöltünk ki, keretrendszerbe foglalva elképzeléseinket és biztos alapokat teremtve következő évtizedek fejlesztési irányvonalainak. Az elmúlt évtizedek során Óbuda településképi szerkezetében és arculatában jelentős változás nem történt, a területen a XX. század végén felerősödő motorizációs szemlélet maradt az uralkodó irányelv. A 10. és 11.es út, illetve az 5-ös HÉV vonala,továbbá a rakparti gyorsforgalmi autóút alapvetően determinálta a településfejlődési lehetőségeit. Mindezek szerves részét képezik a főváros és agglomerációsút- és tömegközlekedési hálózatának így a lokális beavatkozások tágabb térségekforgalmára és településképi arculatára is hatással lehetnek. A vizsgált területencélunk a tagoltság oldása, egykoron egy egész, szerves települést alkotó, máraövezetekre szakadt térségek újbóli összekapcsolása. Mindennek egy fontos eszközeaz egyéni és közösségi közlekedés újra definiálása és területek újraosztása.

Jövőkép megvalósulásának peremfeltételei: - Aquincum-híd és kiszolgáló úthálózat - 5 metró - M0 körgyűrű - BAVS (P+R parkolók) - kötöttpályás nyomvonalak bővítése
A tervezett beavatkozások 2 ütemben valósulhatnak meg. 12 fejlesztést határoztunk meg, melyből 10 projekt már egy 2030-ig ütemezett időtávban kivitelezhető, egyes elemei hosszú távon fejleszthetőek, bővíthetőek.

1 2 3 4 5 6 7 8 9 10 11 12 Felüljáró elbontása, szintbeli gyalogosforgalom H5 HÉV - Budai fonodó villamoshálózat Gr. Esterházy János rkp. forgalomcsökkentése hídfő térség humanizálása, vízparti kapcsolat
Duna-part sétány + mikromobilitási sztráda Flórián-tér közpark + beépítés Flórián Shopmark metró, autóbusz állomás Óbudai sziget revitalizáció + Hajógyári híd Serfőző utcai zöldfolyosó és sétány Római-birodalom örökségvédelem Mikromobilitási hálózat lokális pontok kontextusa - hálózata
További 2 projekt elem a peremfeltételek megléte mellett valósulhat meg a következő évtizedekben. Tágabb értelemben mindezek a beruházások kölcsönhatásban állnak egymással, a vizsgált célterület rehabilitációja csak teljes kontextusában hozhatja el a várt eredményeket.

második felében az infrastrukturális beavatkozások következtében egymástól elkülönülő, nehezen átjárható övezetekre szakadt. A motorizációs folyamatok előretörése, közúthálózatok bővítése negatív hatással volt az egykoron


2022 tavaszán előszőr hallottam a Budapesten megrendezésre kerülő Várostervezési Napokról.
Lényegében egy műhelyversenyről van szó, ahol építészek, tájépítészek, településmérnökök, építő- és közlekedésmérnökök dolgoznak együtt 4 napon keresztül.




bővítése, fejlesztése.
Ebben az évben a Flórián tér és a Szentlélek tér kapcsolatát kellett újra gondolnunk és a felmerülő problémákat megoldanunk.
Kis csapatunk nagyon jól dolgozott együtt, ennek köszönhetően sikerült elhoznunk az első helyet.
Csapatunk a műhelymunka során az évtizedek folyamán kialakult és létrejött problémákat azonosította és tett kísérletet mindezek feloldására. Tervezési folyamat során arra törekedtünk, hogy egy olyan progresszív jövőképet és víziót alkossunk, melynek fókuszpontjában hosszú évtizedek után újra az emberi lépték és humánközpontú szemlélet legyen középpontban, figyelemmel kísérve jelen korunk elvárásait. Eszközként egy hosszútávú stratégiai szempontrendszert jelöltünk ki, keretrendszerbe foglalva elképzeléseinket és biztos alapokat teremtve következő évtizedek fejlesztési irányvonalainak.
A vizsgált területencélunk a tagoltság oldása, egykoron egy egész, szerves települést alkotó, mára övezetekre szakadt térségek újbóli összekapcsolása. Mindennek egy fontos eszköze az egyéni és közösségi közlekedés újra definiálása és területek újraosztása.
A tervezett beavatkozások 2 ütemben valósulhatnak meg. 12 fejlesztést határoztunk meg, melyből 10 projekt már egy 2030-ig ütemezett időtávban kivitelezhető, egyes elemei hosszú távon fejleszthetőek, bővíthetőek bizonyos peremfeltételek megvalósulásával

A következő év tavaszán újra kedved kaptam a műhelyversenyehez. Szerencsémre, ismét egy csodás csapat tagja lehettem és nem csak jó szakembereket, de nagyszerű személyiségeket ismertem meg.
A terület történelmére reflektálva a Népszigeten az indusztriális gyárépületek új funkciót kapnak. A szigeten lévő zöldfelületek a sport és rekreációs tevékenységek végtelen lehetőségét biztosítják. A tervezési terület szomszédos a Váci út irodasorával, ennek megfelelően főként iroda funkciót adtunk az újbeépítésnek. Ezen irodaépületek aljában üzlethelyiségek kerültnek kialakításra. Figyelembe vettük az örökségvédelem szempontjait az indóház és a kocsiszín épületeiben co-working funkciót alakítottunk ki.

A terü et fe lesztését koncepciónk szerint úgy kiviteleztük, hogy az kiszolgál a a nagymennyiségű átmenő forga mat, ugyanakkor a hely lakosoknak megteremtse az élhető környezetet, a kikapcsolódási- és p henési lehetőségeket
A terület történelmére reflektálva a Népszigeten az ndusztriális gyárépületek ú funkc ót kapnak A sz geten évő zö dfe ü etek a sport és rekreációs tevékenységek végtelen lehetőségét biztosít ák. A tervezés terület szomszédos a Váci út irodasorával ennek megfe elően főként roda funkciót adunk az ú beép tésnek Ezen irodaépületek al ában üzlethe y ségek kerü nek kialak tásra Figyelembe vettük az örökségvédelem szempont ait az indóház és a kocs szín épü eteiben co-working funkciót alak tunk ki
Peremfeltételek
- Aquincumi-híd és a kiszolgáló úthá ózat - M0 körgyűrű - BAVS - Újpesti vasúti h d két vágányosítása - M3-as metró Káposztásmegyerig



A terület kard nális pontja a vasútfejlesztés Óbuda és Észak-Pest között jelenleg az összeköttetés csak vasúti h don megoldott, ennek a szakasznak a kétvágányúsítása elengedhetet en Az aquincum híd megépülése tovább erősítené a Duna két partja közti kapcsolatot Ez autóbusz forgalmat generá a tervezési területen A megnövekedett terhelést a tömegközlekedési csomóponttal együtt kiép tett, nagyobb teherb rású infrastruktúra étrehozása szükséges.

Probléma térkép
Nagyátszál ási távo ságok az állomások nehezen megköze íthetőek A Vác út gép árműforga ma elvágó hatást za - és porszennyezést jelent. A nagyvárosi közlekedés központ egy k svárosias környezetbe ött létre A elen egi épületek nem tükröz k az intermodál s csomópont jelentőségét.



Jelentős lakóterülettel határolt zöldfe ületek funkció nélkül ek. Ide sporto ás és rekreác ós lehetőségeket helyezünk e


Jelenleg a kerékpáros közlekedés csak a Váci út mel ett mego dott. Az új csomópont k ép tése mellett kerékpáros és rol eres m kromob l tás pontokat ke l létesítünk. Az Árpád úton b c k isávot jelö ünk k
Váci út elvágó hatása és a Népsziget k használatlanságának csökkentségének érdekében zöld


2022 nyarán résztvehettem egy építészeti workshopon, Franciaországban, Nantes-ban. A Hello Wood és több ország egyeteminek szervezésében került megrendezésre a Builder Method, ahol vegyes csapatokban terveztünk és építettük meg tervünket modulok alapján. A mi csoportunk feladata egy üvegház készítése volt a nantes-i egyetem számára.
A tervezés és építés alatt több problémánk volt a statikai erőkkel, mivel csak a modulok, nem voltak elég stabilak, de úgy gondolom, hogy esztétikusan sikerült megoldanunk a tartószerkezet kivitelezését. Nagy lehetőség volt, hogy résztvehettem és megismerhettem ennyi új embert. Véleményem szerint itt szerettem bele a workshopok világába.








A francia workshopon fellelkesülve jelentkeztem a Mood for Wood által szervezett poznan-i workshopra, ahol a V4-ek országából voltak jelen résztvevők.
Itt is a tervezési folyamattól a kivitelezésig zajlott a munka. Viszont ez alkalommal megtapasztaltuk, hogy a különböző engedélyeknek és hivatalos személyeknek milyen ráhatása van egy projektre.
Ezek hatására végül „csak” egy pad párost terveztünk, melyek kommunikálnak egymással a forrás és az erdőre reflektálva. A legyel Dialog nevet kapta a projektünk.
Minden változtatással és újrakezdéssel egyre jobban imsertük meg egymást a csapatban és életre szóló barátságok kötöttek a megpróbáltatásoknak köszönhetően.
