

Landscape Architecture Portfolio
![]()


Landscape Architecture Portfolio
Firm: SvN Architects + Planners
Client: Metrolinx, Infrastructure Ontario City: Toronto
Years Involved: 2021 - 2024
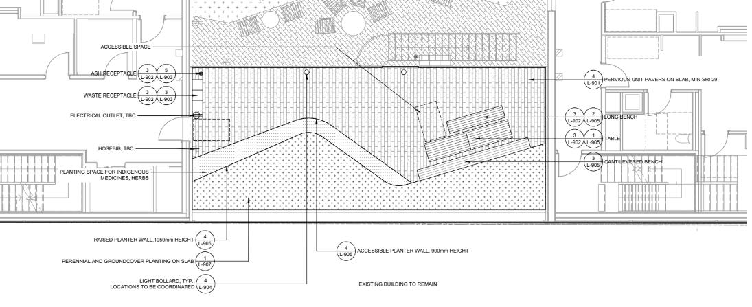
The Ontario Line is a 15.6km rapid transit line that will connect the Ontario Science Centre to Exhibition/Ontario Place. The line brings 15 new stations and connectivity between existing lines. Each station has a unique landscape design responding to the context while sharing a uniform design language with the entire line.
I lead and coordinated the design of Flemingdon Park’s reference concept designs, Thorncliffe Transit Oriented (TOC) Community, and Beth Nealson Underpass. The following graphics are a sample of works I have contributed to in design but not inclusive of current works in progress due to non-disclosure agreements.
Thorncliffe Park TOC


Rendering of planters and public space done in collaboration with architecture and visualization teams
Firm: SvN Architects + Planners
Client: Metrolinx, Infrastructure Ontario
City: Toronto
Years Involved: 2023 - 2024
The Scarborough Subway Extension brings the TTC’s line 2 subway service 8km into Scarborough. It extends from Kennedy Station to Sheppard and McCowan Road and replaces Line 3, the Scarborough RT. The project is currently under construction.
As the landscape lead for Kennedy Station, Don Montgomery Community Recreation Centre South Parking Lot, and Ancillary Buildings, I coordinated and collaborated with designing the landscape to align with project guidelines. The following graphics are a sample of works I have contributed to in the design but not inclusive of current works in progress due to non-disclosure agreements.


Garden

Firm: The Planning Partnership
Client: Markee Developments
City: North York, Ontario
Years Involved: 2021
My work at the Planning Partnership has mainly focused on large to small scale public and commercial projects in Southern Ontario. I have a strong understanding of site reviews, project phasing, urban design, detail design and coordination from having worked on projects in all levels of completion.











