2024 Brooke Mehney Architectural Portfolio

Page 1

PORTFOLIO Brooke Mehney

CONTENTS

Regenerating the Range: A Framework for Livestock Management

NASEM Gulf Studio

The Commons: A New Orleans Hostel

Integrated Studio

Tchula, MS: Safety and Domesticity

Town.House. Advanced Research Studio

Muskegon River Residence: A Net-Zero Home

DOE Solar Decathlon Design Challenge

Mixed Media

Selected Works

02 03 01 04 05

Regenerating the Range: A Framework for Livestock Management in the Gulf South

NASEM Gulf Studio Research for Design, Design as Research

Phase 1 of this design as research project primarily looked at the agricultural practices of the Gulf South region. To highlight the land use for cultivation, I generated a series of maps, with main crops detailed, along with a graphic representation of their growing seasons. Additionally, upon identifying pastureland as a significant human centric, single-use land scape, I conducted additional research into regional historical practices and current technological advancements in the cattle industry of southern Louisiana. This led to my proposal of reinstating the cattle drive as a means for regional grazing utilizing existing and emerging technologies in agriculture.

ArcGIS Pro. Rhino 3D, Adobe Illustrator, Adobe Photoshop
01

Along with research into the spatial dynamics of crops in the Region, I developed drawings to educate and illustrate regional cattle characteristics that make these animals resilient to the climate and landscape of Southern Louisiana. Further, land requirements for cattle and emerging agricultural technologies are detailed.

100

Hereford
Heat Resistance Insect Resistance
lbs CH4/head/year CH4 NO
tons manure/head/year NH3 N P2O5 K2O S ZN
Strong Maternal Instinct
SF of grass per cow/day
165
12
Brahman Braford

CH4/head/year

Stocking Rates

CH4 manure/head/year

Salinity Tolerance

6-11 hours a day of grazing

<5000 ppm <900 ppm
Cal f
2Acres neededperCow

Using virtual fencing, cattle are grazed within the region grid defined by solar powered towers that send signals to collars placed on cattle, which then guide the livestock via audio cues. Due to cattle having higher salinity tolerance and other resiliency adaptations, Louisiana bred cattle can inhabit areas humans cannot, specifically when sea level rise and subsidence begins to shape a new coastal boundary.

Within this framework, I selected three sites along the path of the new cattle drive, each representative of a current or future condition that affects agriculture: monocultures, sea level rise, and suburban sprawl.

Regional Application

1. Monoculture Farm 3. Suburbia and Agriculture Intersection 2. New Coast

Southern Louisiana Land and the agriculture it supports is increasingly threatened by climate change and as a result, sea level rise. Imagining the creation of a new landscape when sea water intrudes significantly inland, this proposal develops a new way for crop cultivation and cattle to inhabit the fringe. The site acts as testing ground for the creation of artificial chenier ridges, cultivation of meat alternatives in a brackish ecosystem, and finally a stilted barn prototype for both cattle care and technology storage.

New Coast due to Sea Level Rise Creation of an Artificial Chenier Cow Excrement Dredged Material Stilted Barn
Human + Cattle Interface Preserved Greenspace Animal/Forestry Product Acess
Suburbia + Cattle

The locations where agriculture and suburban sprawl meet continue to be spatial points of conflict. This site and the resulting proposal offer a new methods for cattle raising that plays into the suburban grid and decreases the distance between the consumer and the agricultural process. By extending the grid, suburban residents can steward a “plot” of the pasture, and claim ownership of both the cattle and agroforestry products that reside upon it. This system preserves greenspace for suburban residents, prevents additional sprawl, and allows for a direct human + animal interface that can serve as an educational tool.

Ownership of Pasture Lots via Extension of Suburban Grid
Agroforestry + Silvopasture

02

NEW ORLEANS HOSTEL

INDIVIDUAL GRADUATE ACADEMIC PROJECT RHINO, ADOBE ILLUSTRATOR

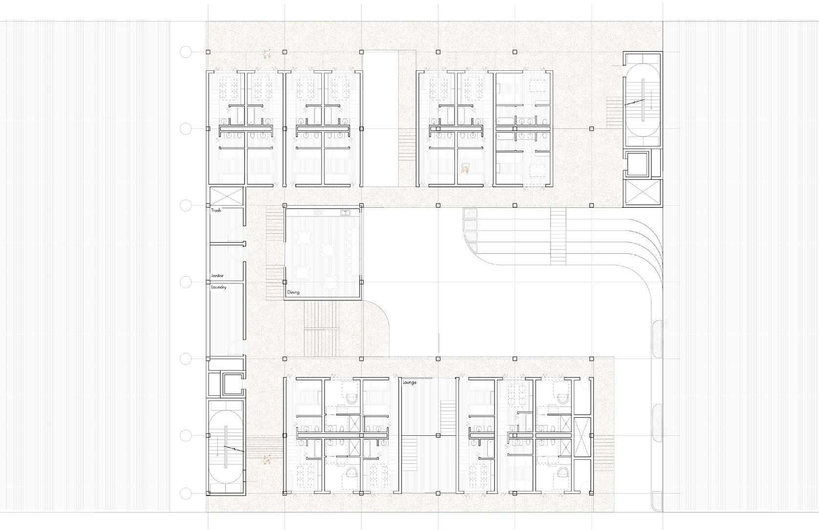
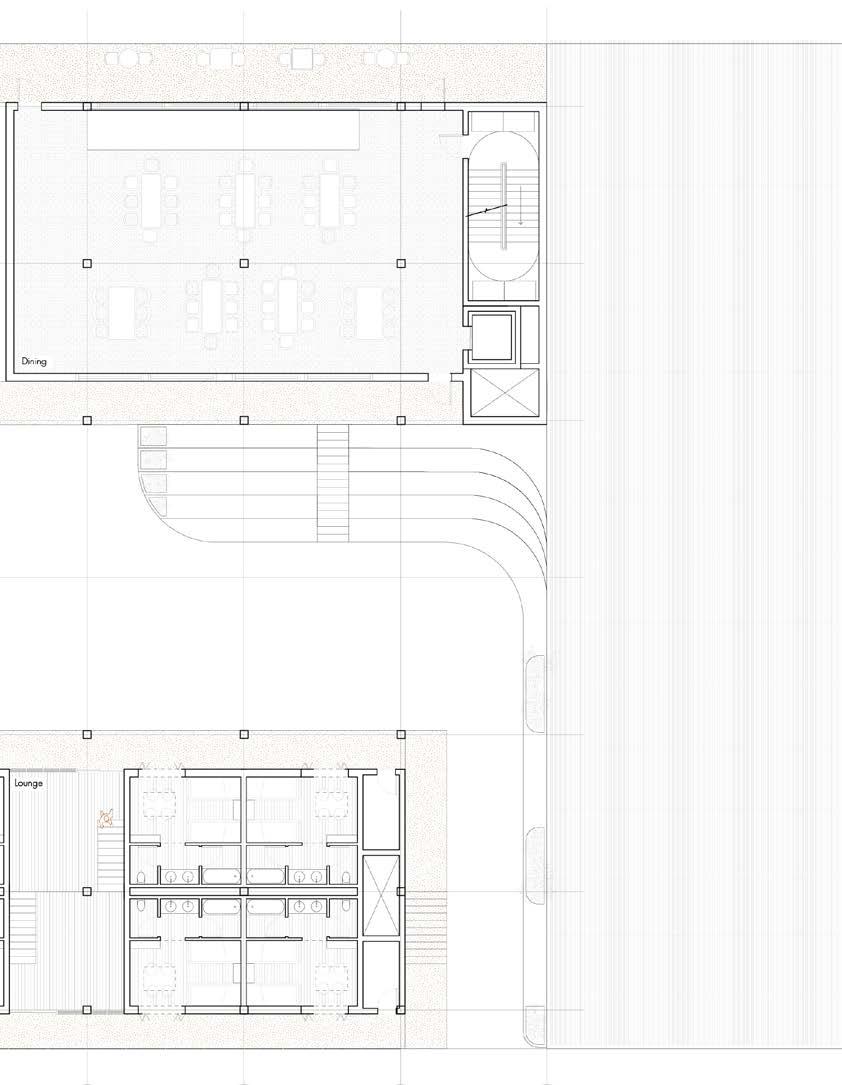
The Commons: A New Orleans Hostel

Integrated Studio Research for Design

A proposed hostel for Integrated Studio, this building engages the sectional relationship between the public and private hostel sphere. To show the project in its totality, this section perspective was generated to highlight the project relationships between the entry, courtyard, dining spaces, and guest rooms.

A proposed hostel for Integrated Studio, this building engages the sectional relationship between the public cityscape and private hostel sphere. The existing site served as a pedestrian thoroughfare between Rampart St and Basin St as the only break in the street facade. To retain this function, the building features a public plaza with intentional seating and programmed functions

Rhino 3D, Adobe Illustrator, Adobe Photoshop, Enscape, Physical Modeling

01
Section Perspective

To connect the concept of the building within the hostel rooms, these spaces are comprised of unique modules that connect to outdoor galleries which serve as both circulation and public gathering space. Each room module is reflected in the operable panel facade, allows for a dynamic facade controlled by hostel guests. These panels reflect the language of the French Quarter, where window shutters are common and a means for ornament, Offset floor plates allow for varying ceiling height and a unique sectional experience that ties into views of the city.

First Floor Plan

Second Floor Plan Site Plan
Third Floor Plan

Single Bed Module

NEW ORLEANS HOSTEL

GRADUATE ACADEMIC PROJECT ADOBE ILLUSTRATOR, ADOBE PHOTOSHOP for Integrated Studio, this building engages the sectional between the public and private hostel sphere. To address this hostel rooms, these spaces are comprised of unique connect to outdoor galleries which serve as both circulation gatherings spaces.

Four Bed Module

Six Bed Module

Gallery Perspective
Gallery Courtyard Perspective
Basin St Facade
Sectional Model
Module + Slab Connection Modules + Structure
Storefront + Slab Connection Gallery Planter Detail Parapet Wall
Structural Grid Structural Bays Post-Tensioned Concrete Structure
Sectional Building Detail

Tchula, MS: Safety and Domesticity

Town.House. Advanced Research Studio

Research for Design, Design as Research

The town of Tchula, MS contains Tchula Lake, a body of water that runs directly through the town. This lake experiences frequent flooding, putting lakeside homes, often mobile units, at risk. This housing proposal lifts vulnerable individuals above the flood plain, while exploring the boundaries of private and public space and the typologies of apartment buildings versus single-family homes. Additionally, the proposal looks to link the town with the two wildlife refuges to the north and south via a lake trail through the region that is reconnected to the site by reorganizing of the existing road system.

ArcGIS Pro. Rhino 3D, Adobe Illustrator

Building Section

03
Wildlife Refuges + Tchula Tchula, MS + Tchula Lake Tchula, MS + Site

In addition to moving vulnerable residents out of the flood plain, a city street was reworked into the development to allow occupants a direct connection to the lake front and the wildlife trail. In generating the form of the buildings, I explored a lifted lawn condition, along with the intersection of private+ public space, for a community accustomed with small and compact lots. The modularity of the units allows for later expansion across the city.

Existing Site Conditions

Redirection of Road

Site + Lake Section
Completed Site Intervention

Process Diagrams

Front Elevation
1. Typical “House and Yard” 2. Rotation of Plinths 3. Setback of Structures

Final Massing

4. Stratify Height of Plinths 5. Connection of Forms 6. Slicing of Structures

Muskegon River Residence: A Net-Zero Home

DOE Solar Decathlon, Group Project Research for Design, Design for Research

The Muskegon River Residence was the Suburban Single-Family Home Division Winner at the 2021 Solar Decathlon competition. The project submittal comprised of a 60 page technical document detailing all aspects of the project, from construction details and material selections to energy consumption. This project was designed to be a net-zero home for the suburban family, within the cold Michigan climate. The integration of technical research and design allows for a high performance home in all aspects. I specifically managed the energy rating of the home, by modeling consumption and developing generation systems, including solar and an in-stream turbine, to guarantee net-positive energy use.

SINGLE FAMILY SUBURBAN HOME DIVISION WINNER

Autodesk Revit, Adobe Illustrator, Adobe Photoshop, Enscape, Ekotrope RATER, Velux Daylight Visualizer,

04 First Floor Plan
Site Plan
Second Floor Plan
Light Study
Thermal Gain Study
Foundation Wall Detail
Roof Detail Wall Detail
30 -3 HERS w/ RENEWABLES HERS w/o RENEWABLES HERS RENEWABLES 19 EUI w/o EV (kBTU/SF/yr.) 36 EUI w/ EV (kBTU/SF/yr.)
Calculations
Energy
LOAD METER
5000 4000 3000 2000 1000 0 2.2 3.1 3.6 4.0 4.5 1200 Watts 4.9 5.4 5.0 5.6. 6.7 7.2 2.7 P ( W ) V (mph)
Hydroelectric Generation
AC Inverter Electrical Panel GRID Rectifier + Dumpload
Output Curve of Turbine

Mixed Media

Individual Works

Rhino 3D, Adobe Illustrator, Adobe Photoshop, Hand Drawing, Watercolor Painting

Where’s Waldo? (In the Piazza)

05
Plaza Tower St. Vincent de Paul Cemetery Sectional Collage Sectional Collage

BROOKE MEHNEY

4609 S. CLAIBORNE AVE

NEW ORLEANS, LA 70125

BMEHNEY@TULANE.EDU

517-862-6117

Turn static files into dynamic content formats.

Create a flipbook
Issuu converts static files into: digital portfolios, online yearbooks, online catalogs, digital photo albums and more. Sign up and create your flipbook.