Skip to main content

Bill Feng_Portfolio 2026

Page 1


PORTFOLIO

BILL FENG

2021 - 2025

SELECTED WORKS

URBAN THRESHOLD CO-HOUSING FOR UNCERTAINTY THE THIRD PLACE X TOD GREEN DESIGN ON RURAL 03 01 02 CO-LAB 25’

NIA CENTER OF THE ARTS 04 NET-ZERO ENERGY RESORT XIZHIMEN SUPER-COMPLEX

SEGEZIA RE-CONNECT

A RETREAT OF THERMAL SERENITY ENERGY

HISTORICAL SITE REHABITATION HIDDEN BATHHOUSE BY THE SEA RURAL SITE

PROFESSIONAL WORKS

NIA CENTER OF THE ARTS

LOCATION: Toronto, Canada

PROJECT TYPE: Cultural Art Center

DESIGN TIME: 2022

SOFTWARE: Revit, Enscape, Adobe Photoshop, Adobe Illustrator

WORK TYPE: Academic Individual Project

INSTRUCTOR: Carlo Parente

[URBAN THRESHOLD: A PLACE TO RECONNECT ]

The project is conceived as a complex of spaces embracing the intersection of various systems, demographics, programs, and activities. Programs and activities are exposed to weave intricate network of public spaces that every journey between levels becomes a spectacle on its own. The open outdoor public space is integrated into the main body of structure and served as platforms for users to perceive the atmosphere of arts and culture.

In order to avoid the mistakes in planning that “city blocks serve no purpose other than as space to pass is the eponymous character of urban corridor.” The building will be a threshold as well as monument to connect and reactivate the adjacent neighborhood.

SITE
Subway Line [Public Transportation]
Nodes of Community Gathering Primary Streets
Began in 2011, the iconic neighbourhoodundergones gentrification, causing displacement to its original residents
Little Jamaica at Eglington West is well known for its murals, which became a small tourist attraction
At its peak, Little Jamaica became the social hub for Artists of Jaimaican Origin
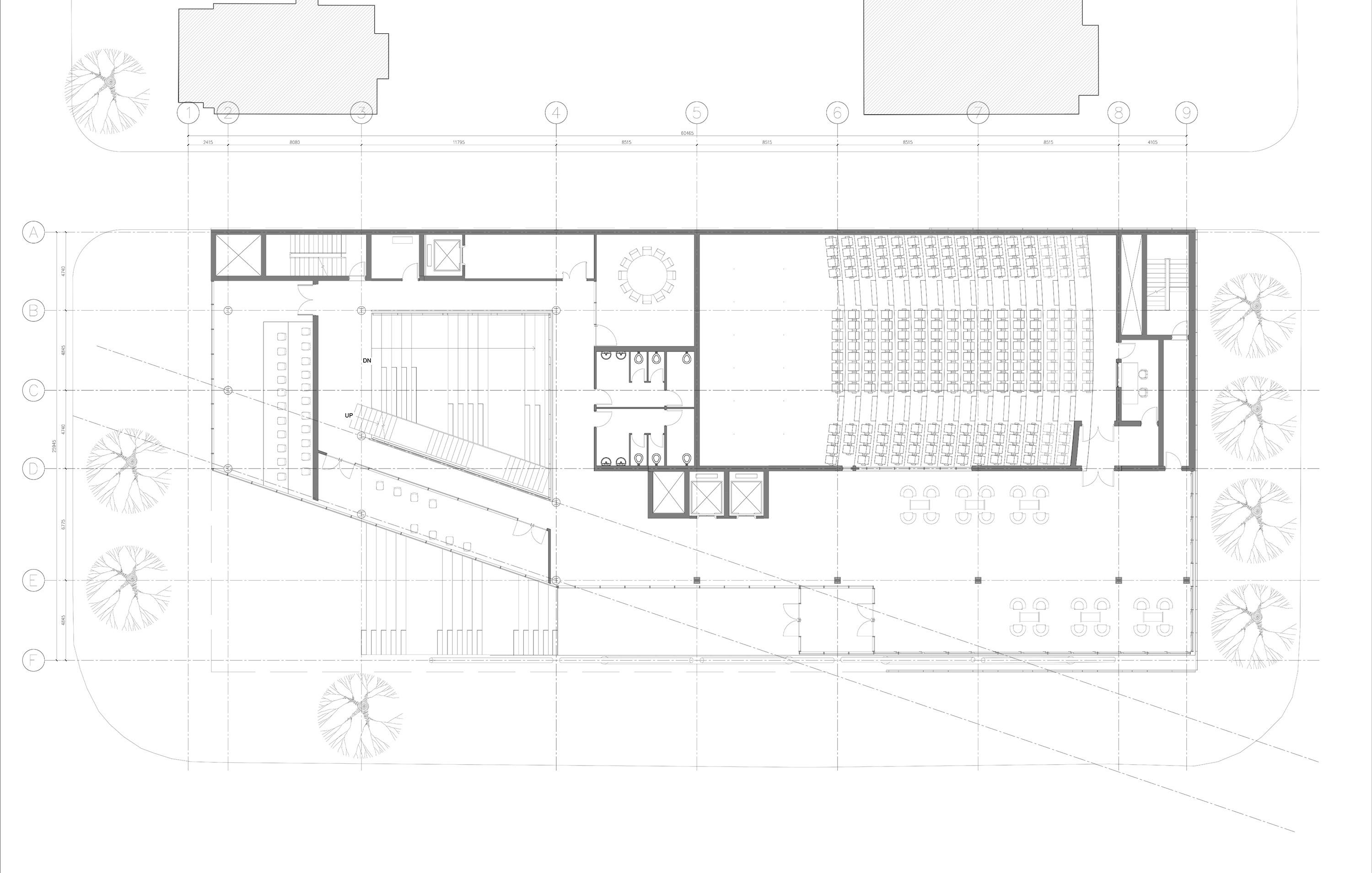
Theater
BOH Storage
Art Gallery
Reception
Civic Space
Open Event Space
Cafe/Bar
Loading Space

11. Small Event Space

12. Janitor Storage

13. Equipment Storage

14. Public Meeting Room (L)

15. Public Meeting Room (S)

16. Pre-Event Lounge

17. Theater Control Room

18. Janitor Storage

19. Catering Kitchen

20. Rentable Event Space

21. Student Kitchen

22. Guest Artist Studio

23. Reception Office

24. Equipment Storage

25. Student Lounge

26. Co-working Space

27. Co-working Space

28. Learning/Creative Lab

29. Student Locker

30. Rehearsal Room

31. Recording Studio

32. Recording Booth

33. Janitor Storage

34. Meeting Room

35. Media Tech Workshop

36. Staff Lounge

37. Staff Meeting Room (S)

38. Staff Meeting Room (L)

39. Open Office

40. Closed Office

41. Office Storage

Second Floor Plan
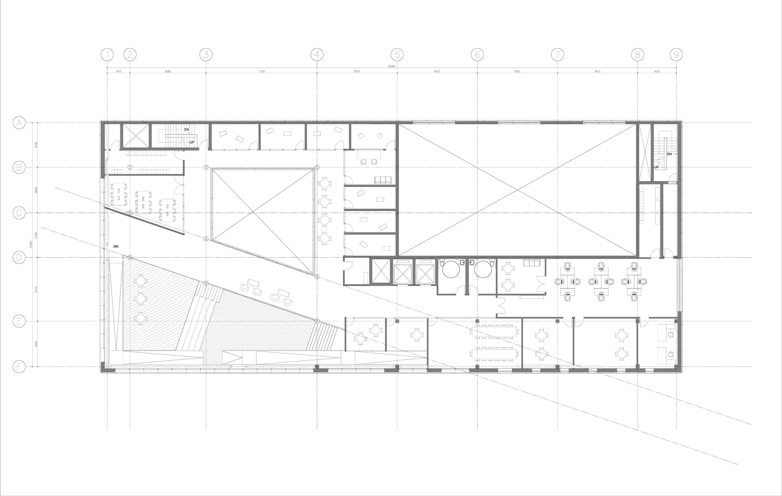
Third Floor Plan
Passive System: Central Atrium Ventilation
Active System: HVAC Design Proposal
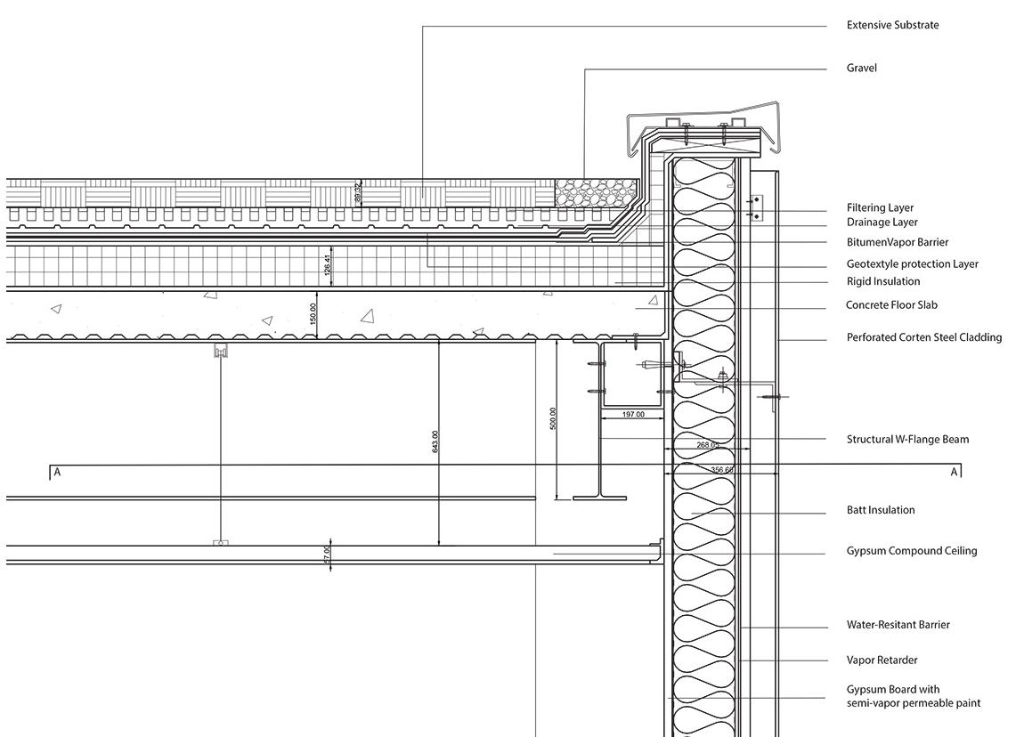
Detail: Wall Connection with Roof + Extensive Green Roof
Detail: Wall Connection at Sofit
Detail: Skylight Opening Base Connection with Roof
South Elevation / Street View

CO-LAB

LOCATION: Toronto, Canada

PROJECT TYPE: Residential

DESIGN TIME: 2025

SOFTWARE: Rhino, AutoCad, Enscape, Adobe Illustrator

WORK TYPE: Academic Individual Project

INSTRUCTOR: David Verbeek

[CO-HOUSING FOR A TIME OF UNCERTAINTY]

The proposed co-housing design is centered on flexibility, offering residents the ability to expand or reduce their living space as their needs change over time. Residential units are positioned on both sides of the building, while a shared central zone functions as a buffer and potential extension area. When residents require additional space, they can temporarily take over portions of this shared zone, enabling units to grow or contract without altering the building’s overall structure. This approach introduces a new housing typology for the region—one that is affordable, customizable, and capable of adapting to evolving household structures and lifestyles.

Structurally, the building employs a hybrid wood–steel system, using steel bracing to provide lateral stability while supporting a primary wood-frame structure. This combination offers both construction efficiency and adaptability.

Typical Floor Plan

As a response to Toronto’s housing crisis, the proposed design is positioned within the ‘Missing Middle’ housing category, introducing an alternative living options on a single urban lot. By bridging the scale between single-family homes and high-rise developments, the project increases density in a context-sensitive manner while maintaining a human-scaled, community-oriented form of housing.

1. Commercial Space LEGEND

Bicycle Storage

Waste Storage

Mechanical Room

Outdoor Seating

XIZHIMEN SUPER COMPLEX

LOCATION: Beijing, China

PROJECT TYPE: Commercial Mixed-Use

DESIGN TIME: 2022

SOFTWARE: Sketchup, AutoCad, Enscape, Adobe Photoshop, Adobe Illustrator

WORK TYPE: Academic Individual Project

INSTRUCTOR: Yew-Thong Leong

[THE THIRD PLACE X TOD]

The Xizhimen Super Complex is a multifunctional, multi-system urban supercenter .By creating interation between the different systems, the space becomes a social hub where people heading for different destinations cross paths, and serves as a place that reconnects the surounding neighbourhood.

The Xizhimen Super Complex acts as a “third place” that redefines the urban commuting space, creating an informal social space that is distinct from home (first place) and work (second place), where people can gather, socialize, and build community.

TRAIN TERMINAL + SUBWAY STATION + BUS TERMINAL [TRANSPORT SYSTEM]

COMMUNITY GATHERING & EVENT SPACES [PUBLIC SPACE SYSTEM]

SCATTERED COMMERCIAL + SUNKEN PLAZA [COMMERCIAL SYSTEM]

EXHIBITION HALL AND BANQUET HALL [SERVICE SYSTEM] + [LEISURE SYSTEM]

CONCENTRATED COMMERCIAL SPACE [COMMERCIAL SYSTEM]

CONNECTION TO OFFICE TOWERS AND HOTEL [COMMERCIAL SYSTEM] + [SERVICE SYSTEM]

Sunken Plaza
Subway Station
Bus Terminal Boarding Platform 03. Train Terminal Hall
Xizhimen Interchange
04. Sunken Plaza/Subway Arrival 13. River
05. Bus Terminal 14. Train Platform Floor 15. Underground Passageway Entrance
06. Station Sevice + BOH
Station Control Room
Exterior Perspective
Sunken Plaza: Subway Arrival

By reshaping the original commuting space and commercial space, all functional spaces are now connected, creating a small urban hub within a larger urban context. The large variety of functional spaces attracts people from the surrounding as well as people with different needs into a single setting, creating more opportunities for informal social interactions.

Train Terminal Main Entrance
Shopping Mall
Hotel
Underground Passage Entrance
Subway Station Entrance
Railway Terminal Platform
Office Tower

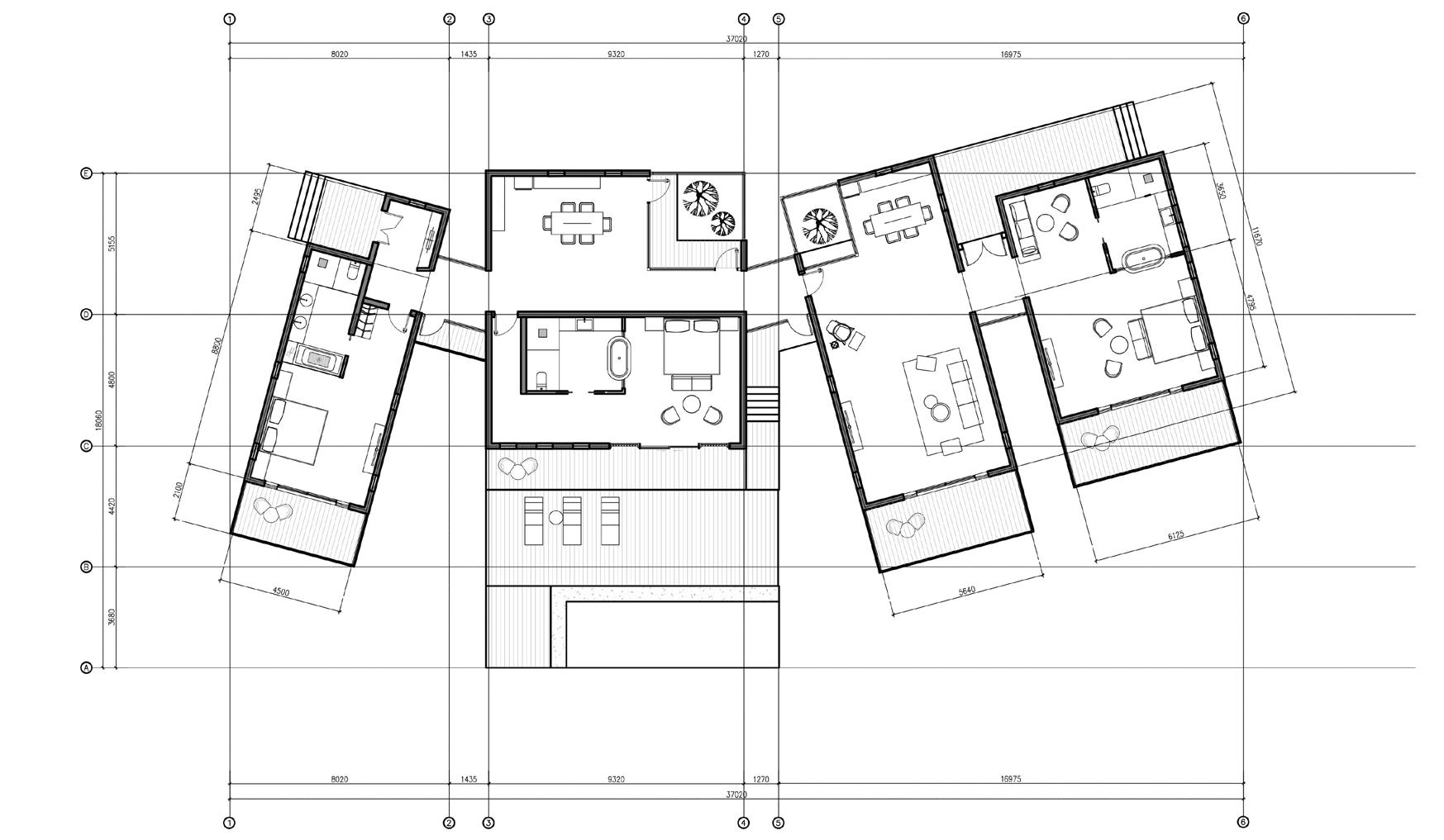
NET-ZERO ENERGY RESORT

LOCATION: Anshun, China

BUILDING TYPE: Resort, Net-Zero Energy Building

DESIGN TIME: 2021

SOFTWARE: Sketchup, AutoCad, Enscape, Adobe Photoshop, Adobe Illustrator

INSTRUCTOR: Zaiyi Liao

DESIGN SCOPE: Architectural Design + Site Masterplanning

[SUSTAINABLE DEVELOPEMENT ON A RURAL SITE]

This project consists of a series of net-zero-energy dwelling units being situated in the mountains of Anshun, Guizhou. Together, these dwellings forms a resort on the Hillside to invite guests to stay in. The goal of “Net Zero Energy Resort Anshun” is to not only provide visitors with the best scenery and experience of the site, but also to keep building energy consumption to the minimum to reduce operating cost of the resort by applying both passive and active design strategies, as well as modular construction.

The project is aimed to improve local exonomy through bringing commercial activities and to promote a self-sufficeint lifestyle.

Corresponding to the policy of rural revitalization and achieving the goal of realizing low-carbon lifestyle, through the scientific research project of “Near-Zero Energy Rural Homestays Building Development”, where design products and standards will be developed in order to realize a self-sufficient lifestyle which conform to rural homestays in various places.

Natural

Natural

SEGEZIA RE-CONNECT

LOCATION: Foggia, Italy

PROJECT TYPE: Residential Mixed-Use Masterplan / Urban Renewal

DESIGN TIME: 2023

SOFTWARE: Sketchup, AutoCad, Enscape, Adobe Photoshop, Adobe Illustrator

WORK TYPE: Academic Individual Project

INSTRUCTOR: June Komisar, Umberto Berardi

[REVIVAL + RE-HABITATION OF A FORGOTTEN HISTORICAL TOWN]

The concept of the masterplan is conceived based on the history of Segezia during the Fascism 1938 agrarian reform. As part of the plan of the Tavoliere, it was designed for rehabilitation of the rural context, however it was never completed and still in the state of abandonment.

As one of the abandoned place that was proposed for clear purpose without any natural transformation of place itself, Segezia remained as a “dream-like” states without time and life which composes the space, the idea of the master plan is to awakening the soul of Segezia by creating a new tattoo on the past scar, by proposing a ribbon-like connective skybridge follows the original greek cross and going up and down on site and connecting major public nodes, the goal is to activate the vacant space and creating a lively community which intertwined with its past.

“Squares

Architectural Style Inspiration

The administrative building, old bell tower, empty square and place for worship remained as the long forgotten landmarks on site, highly resembling the metaphysical painting by Giorgio de Chirico. the architecture style of the newly proposed masterplan takes reference of the design elements shown in the paintings.

Pre-1937
Before 1937, the Borgo Segezia Site is covered with large areas of farm land with scattering farm houses. The site is located approximately 12 km from Foggia, the largest town in the area at the time.
Italy experiences an Agarian Fascism Reform movement in 1938, and the Borgo Segezia area is selected to be designed as part of the rural expansion plan. The original masterplan of the site is designed by Concezio Petrucci, and the target occupants of the site are family member of those that have military background.
Most of the construction of public buildings in the area surounding the central plaza completed in around 1941. Borgo Segezia experienced its most flourished moment at the time.
The Borgo Segezia project was abandoned along with the fall of the Fascist Rigime. The large areas of residential zone that were originally propose ended up never being constructed.
Borgo Segezia today became a small run-down town with very few residents in the area due to its lack of communal facilities.
& Streets without Town”
Institutional Zone: School + Library + Community Center
Residential Zone: Garden + Pavillion + Outdoor Performance Space
Commercial Zone: Market Complex + Community Kitchen
Recreational Zone: Exhibition Gallery + Sports Field + Greenhouse

With new residential buildings continue to be built in and around the Segezia area, there will be an increase in the need for education.

As an extension of the school on-site, the new addition will be connected to the existing building and stretch outwards, providing more classroom and public gathering space to the community.

School Extension Exterior Perspective
Floor Plan

A market is proposed near the central plaza of the masterplan, and this is a place where residents could purchase their daily necessities.

Community functions such as a greenhouse and a kitchen is also proposed in the zone for people to grow and cook food. It also acts as a small social hub.

Market + Community Kitchen Section
Market District Overview
Greenhouse Elevation
Structural Axo
Market + Community Kitchen East Elevation
Market Exterior Perspective

A RETREAT OF THERMAL SERENITY

LOCATION: Phú Quoc, Vietnam

PROJECT TYPE: Thermal Bathhouse

DESIGN TIME: 2024

SOFTWARE: Rhino, AutoCad, Enscape, Adobe Photoshop, Adobe Illustrator

WORK TYPE: Competition (Third Prize Winner)

COLLABORATOR: Haoning Zhao

[HIDDEN BATHHOUSE BY THE SEA, INSPIRED BY MUSICAL RHYME]

Drawing inspiration from Michael Kobrin’s evocative composition, “The Introvert,” the architectural project unfolds as a coastal thermal bathhouse, seamlessly blending with the land-sea interface. This design translates the musical rhyme into tangible architectural elements like walls and openings, beckoning guests to immerse themselves in an ambiance reminiscent of the piece.

The design proposal intricately intertwines temperature, water depth, and light to amplify the spatial atmosphere, mirroring the nuanced interplay of emotions and the dramatic crescendos depicted in Kobrin’s musical narrative. Through meticulous exploration, we aim to evoke both the subtle contemplation and powerful emotions evoked by “The Introvert,” fostering a holistic sensory experience for our visitors.

PROFESSIONAL WORKS

LANZHOU WATERFRONT MASTERPLAN

LOCATION: Lanzhou, China

PROJECT TYPE: Open Air Commercial Street (Concept Design)

DESIGN TIME: 2021

DESIGN LEAD: Howard Tseng

RESPONSIBILITIES: Design of Individual Store Units, Masterplan Layout

SWISSOTEL HOTEL HAI-PHONG

LOCATION: Haiphong, Vietnam

PROJECT TYPE: Hotel + Commercial Mixed-use (Concept Design)

DESIGN TIME: 2022

DESIGN LEAD: Joe Lau

RESPONSIBILITIES: Design of Hotel Floor Plan, Analytical Diagrams

© Hirsch Bedner Associates
© Hirsch Bedner Associates

POLY XIANCUN RETAIL

LOCATION: Guangzhou, China

PROJECT TYPE: Commercial Retail

DESIGN TIME: 2025

DESIGN LEAD: Vicky Wang

RESPONSIBILITIES: Retail Podium Floor Plan Design, Circulation Design, Design of Individual components such as pop up shops, bridges

WEST BUND CENTRAL

LOCATION: Shanghai, China

PROJECT TYPE: Retail Podium Facade Design (Design Developement)

DESIGN TIME: 2024

DESIGN LEAD: Gerald Chu

RESPONSIBILITIES: Drafting + Modeling of Facade Wall Detail Sections + Elevation Drawings

Turn static files into dynamic content formats.

Create a flipbook