BILAL WAZIR
NAME
Bilal Wazir
ANSCHRIFT Gürtelstraße 38 10247 Berlin
E- MAIL bilalwazir88@gmail.com
MOBIL +49 15221300790
BILDUNG
Brandenburgische Technische Universität Cottbus, Master of Science
Abschluss im Oktober 2024 Cottbus, Deutschland
Hochschule Mainz: Wohnungsbau, Master of Science Abgeschlossen im September 2021 Mainz, Deutschland
Bahcesehir University International, Bachelor of Science Abgeschlossen im September 2018 Istanbul, Türkei
IAR International Academy Of Rome, Auslandssemester September 2016 - Juni 2017 Rom, Italien
BAU University Of Applied Sciences Auslandssemester Februar 2016 - Juni 2016 Berlin, Deutschland
ARBEITSERFAHRUNG
Baudenker- Krebs Ingenieurgesellschaft mbH & Co. KG Werkstudent
Januar 2024 - September 2024 Frankfurt (Oder) https://baudenker.de/
Praktikum im Architekturbüro, Aido Plus Praktikant
September 2018 - März 2019 Istanbul, Türkei https://www.aidoplus.com/
Praktikum im Architekturbüro, S.B.Arch. Bargone Associati
Praktikant
Juni 2017 - September 2017 Rom , Italien http://ec2.it/studiobargone
WETTBEWERB
Messeakademie: Architekturwettbewerbs für Studenten (Partizipiert)
Entwerfen im historischen Umfeld – Altbau.Umbau.Neubau. https://www.denkmal-leipzig.de/de/erleben/programm/messeakademie/
UN International Day Women & Girls In Science (erster Platz) http://womeninscienceday.org/Logo.html
UN -The Agora Sustainable development goals 17 (erster Platz) https://rasit.org/Programs.html
SKILLS UND INTERESSEN
SPRACHEN
Deutsch (Telc C1 Hochschule)
Englisch (Fließend)
Turkisch (Mittelstufe)
Italienisch (Mittelstufe)
Arabisch (Muttersprache)
SOFTWARES
INTERESSEN
Nachhaltigkeit
Grafikdesign
Zeichnen
Laufen
Vlogging und Reisen
Autodesk Autocad (Experte), Rhinoceros (Experte), Archicad (Experte), Lumion (Experte), Adobe Photoshop (Experte), Autodesk Revit (Mittelstufe), Adobe Premiere (Fortgeschritten), Adobe InDesign (Fortgeschritten), Mircrosoft Office (Fortgeschritten) und Rhino Grasshopper (Anfänger).
ON THE WALL
DIVERSES WOHNEN MASTERARBEIT Göttingen, Deutschland
THE PEAK OF SCHNADITZ
Hotel und Gastronomiemie MASTER - PROJEKT Bad Düben, Deutschland
LW Education Center
Bildungszentrum in Cottbus MASTER - PROJEKT Cottbus, Deutschland
ENSEMBLE ZWEI GENERATIONEN
ENSEMBLE ZWEI GENERATIONEN Wohnheim für Studenten & Senioren MASTER - PROJEKT Rummelsburg, Berlin
SPLIT APARTMENT - GOLDBECK
RESIDENZGEBÄUDE MASTER - PROJEKT Ummeln, Bielefeld
THE CURVATORA HOTEL
LEISURE HOTEL IN ISTANBUL BACHELOR Istanbul, Turkei
NORD STREAM 2
RÖHRENFLÜCHTLINGSLAGER MASTER - STEGREIF Konzeptionelles projeKt
SONSTIGES MASTER-PROJEKTE
Das Designkonzept zielt darauf ab, das Gebiet zu revitalisieren und ein modernes, integriertes Design zu schaffen, das sich harmonisch in die Umgebung einfügt und ein neues Wahrzeichen der Stadt etabliert. Das Projekt umfasst zwei Wohnbereiche und einen verbindenden Bau mit zusätzlichen Einrichtungen für die Öffentlichkeit und die Bewohner.
Ein zentrales Merkmal ist die Drehung des Eckgebäudes um 45 Grad, wodurch ein einladender Raum entsteht, der die Sichtbarkeit und Zugänglichkeit von der Düstere Straße verbessert. Der Entwurf basiert auf den Prinzipien der Differenzierung, Integration und Definition, die durch unterschiedliche Materialien, die Verbindung zum denkmalgeschützten Gebäude und die Balance zwischen öffentlichen und privaten Bereichen sichtbar werden.
Die Verwendung einer Holzfassade und eines Satteldachs schafft eine starke Harmonie mit der architektonischen Identität der Stadt, während moderne Akzente gesetzt werden. Das Grundstück liegt im Kunstquartier („KuQua“), das für kulturelle und künstlerische Nutzungen erschlossen wird. Die Integration des historischen Eckhauses und des Werkstatthauses, das rückgebaut werden kann, stellt eine besondere Herausforderung dar, um eine harmonische Gesamtlösung zu gewährleisten.
1. Scharfrichterhaus
2. Wohngebaude
3. Terrasse
4. Café
5. Mauer
6. Fluchttreppe
7. Kinderspielplatz
8. Öffentlicher Raum
9. Einfamilienhaus
10. Monro’s Park
11. Parkplatz
Das Baugrundstück im Herzen der Göttinger Altstadt umfasst etwa 1.150 Quadratmeter an der Düsteren Straße und ist von Turmstraße und Hospitalstraße umgeben. Es besteht aus einem asphaltierten Parkplatz und einem verwahrlosten Fachwerkgebäude, dem MeiningerHaus, sowie dem Hof eines ehemaligen Malerbetriebs. Das Grundstück liegt im Kunstquartier („KuQua“), einem kulturellen Bereich, der eine harmonische Integration von historischem Bestand und Neubauten erfordert. Das denkmalgeschützte Eckhaus wird zentral im Gesamtkonzept berücksichtigt. Das angrenzende Werkstatthaus kann für neue Bauprojekte rückgebaut werden. Ein Parkhaus bietet Besuchern bequemen Zugang, während Monro’s Park, ein beliebter Treffpunkt für Studenten, zusätzliche kulturelle Anziehungskraft hat.
KONZEPTENTWICKLUNG
Wie im Konzeptentwurf beschrieben, ist das neue Gebäude in drei Teile gegliedert. Gebäude A, das zur historischen Stadtmauer hin ausgerichtet ist, ist hauptsächlich für Apartments konzipiert, während Gebäude B, das zur Hospitalstraße hin ausgerichtet ist, speziell für Studenten entworfen wurde und Göttingens Status als Studentenstadt widerspiegelt. Gebäude B ist schmaler als Gebäude A, was zu kleineren Räumen und weniger Wohnfläche führt.
Das Erdgeschoss beherbergt die größten Apartments im gesamten Komplex und ist vollständig barrierefrei. Diese Apartments sind auf gemeinschaftliches Wohnen ausgerichtet und ideal für große Familien. Der erste Stock wird über einen Laubengang erschlossen, wobei jede Etage aus drei Apartments besteht. Gebäude A bietet 45 Quadratmeter große Apartments, die perfekt für junge Berufstätige und Paare geeignet sind, während Gebäude B Einzimmerwohnungen (Studios) enthält, die speziell auf Studenten ausgerichtet sind.
Die zweiten Stockwerke von Gebäude A und B bestehen aus Maisonette-Wohnungen, die atemberaubende Ausblicke auf die Stadt und viel natürliches Licht von den Dachgeschossen aus bieten. Gebäude C und das historische Scharfrichterhaus dienen sowohl öffentlichen als auch privaten Zwecken und bereichern die Gemeinschaft für Bewohner und Besucher. Diese Gebäude beherbergen verschiedene Aktivitäten, darunter ein Café, Co-Working-Spaces, Leseecken und eine Bar, und schaffen lebendige Räume, die Interaktion und Austausch fördern.
1.OG
15. Terrasse
16. Außensitzbereich
17. Gemeinschaftsgarten & Kinderspielplatz
18. Zwei-Zimmer-Wohnung
19. WC - Manner
20. kleine Werkstatt
21. Umkleideraum Frauen
22. Umkleideraum Männer
23. Ruheraum
24. Teeküche
25. Büro
26. Vortragsraum
2 OG
27 . Maisonette - Typ 1
28. Maisonette- Type 2
29. Laubengang
30. Leseplatz
31. Co-working- Space
auf die Verbindung zwischen dem Neubau und dem Bestandsgebäude in
Blick
Augenhöhe
Blick vom Balkon auf Augenhöhe, in Richtung Stadtinneres
Blick aus dem Coworking-Space im bestehenden Gebäude auf Augenhöhe
FASSADENSCHNITT
VERTIKAL M: 1:20
FASSADENSCHNITT HORIZONTAL./VERTIKAL
1
Betondachstein anthrazit, Lattung 50/30 mm Konterlattung, Unterspannbahn diffusionsoffen Sparren 80/220 mm dazwischen Dämmung Mineralwolle 220 mm, Dachmembran Lattung 50/30 mm dazwischen Dämmung
Mineralwolle 30 mm Gipskartonplatte 12,5 mm
2
Titanzinkblech 1,5 mm, Kantholz 80/80 mm
3 Schneefang
4 textiler Sonnenschutzdenten, zusätzliche kulturelle Anziehungskraft hat.
5
Isolierverglasung in Holzrahmen
6
Riffelbohlenbelag Lärche 27
Unterkonstruktion Kantholz
Lärche 40/60 mm, Abdichtung, Gefälledämmung EPS 100 –150 mm, Dampfsperre, Stahlbetondecke 200 mm, Putz
7
Stabparkett 10 mm, Zementestrich 60 mm
Trittschall extrudierte Polystyrol-Hartschaum-dämmung 30 mm extrudierte Polystyrol-Hartschaum- dämmung 50 mm Stahlbetondecke 200 mm, Putz
8
Keilstülpschalung Lärche 120 mm Lattung 30/50 mm, Fassadenbahn Pfosten Kantholz 160/60 mm dazwischen Dämmung Mineralwolle 160 mm Kalksandstein-Mauerwerk 200 mm Putz
9
Außenputz, Grundierung, Außendämmung, Mineralwolle 200 mm, 200 mm Kalksandstein-Mauerwerk, Innenputz 10
Ökopflaster sandbett 35mm
11
Sockelputz, Sockeldämmung (100 mm XPS), Abdichtung (kunststoffmodifizierte Bitumendickbeschichtung bis 30 cm über OKG), Kalksandstein (175 mm) und Innenputz
HOTEL & GASTRONOMIE
Das Baugrundstück befindet sich im Ortsteil Schnaditz der Stadt Bad Düben in unmittelbarer Nähe des Schlosses Schnaditz. Das Schloss steht unter Denkmalschutz, ist jedoch seit vielen Jahren vernachlässigt worden und dringend sanierungsbedürftig. Darüber hinaus soll an der Stelle eines alten Wirtschaftsgebäudes, das vor kurzem zerstört wurde, ein neues Gebäude errichtet werden. Das neue Gebäude ist in zwei Baukörper unterteilt, da es notwendig war, einen Zugang zur Wassergraben und zum Haupthof des Schlosses zu schaffen und auch die Umweltfaktoren wie Licht und Wind auf den Hof oder das Gebäude zu berücksichtigen. Diese Teilung hilft, mehr Zugang und mehr Klarheit für den vernachlässigten Vorhof zu schaffen, und es wird für den Verkehr bequemer sein, Besucher oder Bewohner können leichter vom Schlosshof zu den Wassergraben oder von der Fußgängerbrücke zum Hof gelangen. Die beiden getrennten Gebäude haben unterschiedliche Höhen, Funktionen und Formen. Das Gebäude, das sich zwischen dem Schloss und dem anderen Teil befindet, hat eine ähnliche Geometrie wie das Schloss und ist genauso groß wie das Schloss. Es ist nach hinten geneigt, um einerseits mehr natürliches Licht ins Innere des Schlosses zu lassen und andererseits, um die Sicht auf das Schloss. Das dreigeschossige Gebäude wird hauptsächlich für gastronomische Zwecke genutzt und verfügt über eine Loggia mit einem herrlichen Blick auf den Wassergraben und das Dorf. Das zweigeschossige Gebäude hat einen industriellen Charakter und wird hauptsächlich für Hotelzimmer genutzt. Trotz der Bewegung des Daches, die an das inspirierte Giebeldach eines Einfamilienhauses erinnert, hat es seine eigene dynamische Form, die die Aufmerksamkeit des Ortes erhöht.

LAGEPLAN
Die Positionierung des Gebäudes an der Längsseite des Wassergarbens war das Ziel, um von beiden Seiten eine klare Achse zu haben. Die Schaffung der Promenade hat nicht nur dem Schloss selbst, sondern auch der gesamten Umgebung einen magischen Wert verliehen. Die Besucher oder sogar die Bewohner konnten entlang des Wassergrabens spazieren gehen oder auf dem Holzpodest stehen, um das Dorf oder das historische Gebäude besser zu beobachten. Die Westachse wird durch die Grünanlage betont, die als Sitzgelegenheit genutzt wird oder die Haupteingänge des Gebäudes und die Bewegung definiert. An der Südseite des Neubaus befindet sich ein Parkplatz, auf dem 20 Stellplätze und 5 für Elektroautos zur Verfügung stehen.
LEGENDE KONZEPTENTWICKLUNG
Exonometrische Ansicht
Das Gebäude gegenüber dem Schloss besteht aus drei Geschossen. Im Erdgeschoss und im ersten Obergeschoss befinden sich die Restaurants, während im zweiten Obergeschoss eine Café-Bar untergebracht ist. Das Besondere an diesem Gebäude sind die langen Loggien und Terrassen.
Der andere Teil des neuen Gebäudes, der durch seine ungewöhnliche Dachkonstruktion leicht zu erkennen ist, besteht aus zwei Geschossen. Im Erdgeschoss befinden sich eine Hotellobby, ein Auditorium und Konferenzräume. Das Auditorium bietet Platz für 120 Personen.
Das zweite Stockwerk besteht aus 16 Hotelzimmern von 18 Quadratmetern und ist komplett barrierefrei. Die Fassade des Fittnissstudios ist transparent, so dass die Gäste die Aussicht genießen können, während sie ihre Sportübungen machen. Eine gläserne Brücke verbindet die beiden Gebäude miteinander, so dass die Gäste die Restaurants besuchen können, ohne die Lobby im Erdgeschoss aufsuchen zu müssen.
Der Plan zur Sanierung des Schlosses besteht darin, das Schloss wieder zum Leben zu erwecken und seine Räume sorgfältig zu nutzen. Der Ostflügel im Erdgeschoss und im 1. OG soll für Ausstellungen genutzt werden. Da das Schloss nicht barrierefrei ist, wird durch den Einbau eines Glaskastens im Innenhof des Schlosses die Erschließung des Erdgeschosses und des ersten Obergeschosses erleichtert. Der Ostflügel im 2. OG des Schlosses wurde in ein Hotel umgewandelt und beherbergt neun Gästezimmer mit einer gemeinsamen sanitären Einrichtung. Es eignet sich für Gruppenreisen, Ausflüge oder Hochzeitsfeiern.Der Westflügel des Schlosses im 1. und 2.OG ist für zukünftige Renovierungspläne vorgesehen.
SCHNITT & ANSICHT
Durch die Schnitte sieht man die Struktur des Gebäudes, wie es gebaut ist. 75 % des Gebäudes sind aus Holz gebaut. Der Beton wird im Keller und im Kern des Gebäudes verwendet, um die Stabilität des Gebäudes zu gewährleisten.
Das Besondere an diesem Gebäude ist sein einzigartiges Dach, das es den Besuchern ermöglicht, die Räume von innen zu erleben.
Das Gebäude hat einen industriellen Charakter, der technische Teil, wie z. B. die Belüftung, sollte offen und nicht versteckt sein. Das andere Gebäude hat eine schiefergedeckte Wand, um das Sonnenlicht und den Blick auf das Schloss von innen nicht zu blockieren.
Auf dem Dach wurde eine Photovoltaikanlage installiert, die im Jahresverlauf ein Drittel mehr Strom liefern soll, als die Nutzer für Heizung, Lüftung, Beleuchtung, Küchen- und andere Elektrogeräte verbrauchen.
FASSADENSCHNITT
BILDUNGSZENTRUM
Das Ausbildungszentrum des Lausitzer Wasserwerks befindet sich im Norden Cottbus und hat seinen Sitz auf dem Areal der Kläranlage - der größten kommunalen Kläranlage im Land Brandenburg. Der seit den 1970er Jahren als Ausbildungsstätte genutzte Gebäudekomplex soll erweitert werden, um die Ausbildungskapazitäten zu vergrößern. Die Gesamtanlage des Klärwerks umfasst etwa 18ha. Auf einer ca. 8.300 m2 großen Teilfläche im Südwesten befindet sich der Campus der LWG mit verschiedenen Lehrgebäuden. Neben erhaltenswerten Backsteingebäuden aus der Entstehungszeit 1888/89 finden sich hier verschiedene Funktionsbauten aus den 80er und 90er. Die bestehende Ausbildungsstätte ist für die Ausbildung von ca. 50 Personen konzipiert. Die Errichtung eines neuen Bildungszentrums als Ergänzung zur bestehenden Ausbildungsstätte ermöglicht die Betreuung von 100-120 Auszubildenden, Studierenden und Praktikant:innen parallel zur betrieblichen Fortbildung. Das Entwurfskonzept für die Erweiterung des Bildungszentrums stellte eine große Herausforderung dar, da das Ziel darin bestand, etwas Einzigartiges für den Campus zu schaffen, indem “(out of the box)” gedacht wurde. Angesichts der historischen Bedeutung einiger der bestehenden Gebäude, die erhalten werden sollten, wurde beschlossen, diese Gelegenheit zu nutzen, um eine Verbindung zwischen dem historischen und dem modernen, futuristischen Gebäude herzustellen. Unter futuristischen Gesichtspunkten wurde dabei angestrebt, dass das neue Gebäude einen nachhaltigen Charakter aufweist.Dieser futuristische Ansatz implizierte einen starken Fokus auf Nachhaltigkeit, durch die Integration von Elementen wie begrünten Dächern, Solaranlagen und der Verwendung von recycelten sowie umweltfreundlichen Baumaterialien..Aufstockung ermöglichten es, den Charakter und die Geschichte der älteren Gebäude zu bewahren und sie gleichzeitig an moderne Anforderungen anzupassen.

LEGENDE
1 bestehendes bildungszentrum
2 erweitertes Bildungszentrum
3 pausenbereichen
4 Behindertenparkplatz
5 Zu & Ausfahr
6 Tennisspielfeld
7 Springbrunnen
8 Fahrradabstellplatze
9 Parkpkatze
10 Haupteingang
KONZEPTENTWICKLUNG
ANSICH SÜD
ANSICH NORD
SPLIT APARTMENTGOLDBECK
Residenzgebäude
DREITAFELPROJEKTION
Exonometrische Ansicht
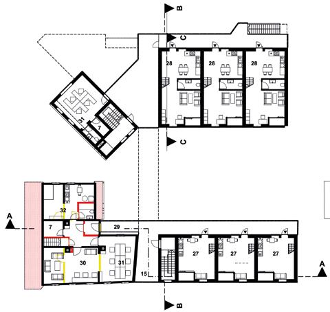
GENERATIONEN
WOHNHEIM FÜR
STUDENTEN & SENIOREN
Das Ziel dieser Masterarbeit ist es zu untersuchen, wie Architektur visualisiert werden kann, um die Lebensbedingungen von Senioren zu unterstützen. Das Projekt konzentriert sich auf die Rolle der Architektur bei der Bereitstellung alternativer Wohnmodelle für Menschen, die in Seniorenheimen leben.
In diesem Dokument wird ein Mischkonzept vorgestellt, das ein Zusammenleben zwischen Studenten und Senioren vorsieht. Das Zusammenleben wird durch die Gestaltung gemeinsamer Lebensräume, gemeinsamer Aktivitäten und eines vorläufigen Tagesplans dargestellt. Die Wohnräume sind so gestaltet, dass sie für beide Generationen altersgerecht sind. Hinzu kommen die pflegerische Betreuung und die Betonung eines unabhängigen und aktiven Lebens.
Diese Studie geht auf die Bedürfnisse der Bewohner ein und wendet sinnvolle Architektur an, um ein revitalisiertes Wohnkonzept für die ältere und die junge Generation zu präsentieren. Das Bauprojekt ist für Senioren sowie für Studenten gedacht. Die Senioren werden die Hauptnutzer der Räume und die ständigen Bewohner der Einrichtung sein.
Dieses Gebäude sieht eine neue Art des Wohnens vor, die eine Mischung von Altersgruppen einschließt und den fürsorglichen Charakter einer Familie wiederherstellen soll. Die Wohnsiedlung spiegelt den Vorrang der optimalen Pflege und der Wahrung der Würde der älteren Menschen wider. Die Symbiose zwischen der alten und der jungen Generation ist mit den sozialen Räumen, die das Projekt bietet, verflochten.
LAGEPLAN
1. Das Baugrundstück befindet sich in Rummelsburg und ist 7605 m².
2. Nördlich des Grundstücks so viel Lärm, dass das Gebäude erhöht werden muss, um ein ruhiges Gebiet zu schaffen.
3. Da das Grundstück direkt am See liegt, ist die klassische Form des Innenhofs nicht die ideale Lösung für das Grundstück, da sie die Sicht auf andere Gebäudeteile versperrt. Es muss eine andere Höhe geschaffen werden, um dies zu vermeiden und die Höhe der Gebäude der Nachtbar zu respektieren.
4. Die runde Form bietet in vielerlei Hinsicht einen besseren Überblick über das Gelände, da sie die Bewegung um das Gebäude erleichtert und für eine gute natürliche Beleuchtung und einen besseren Blick auf die Umgebung sorgt.
5. Durch die Erhöhung des Gebäudekerns wird es nicht nur leichter, das Gebäude selbst und seine Lage innerhalb des Gebäudes zu definieren, sondern auch das Dach als Dachterrasse zu nutzen und eine freundliche Umgebung zu schaffen, in der die Bewohner den Blick auf den See genießen können.
6. Das Gebäude hat fünf Eingänge und ist von beiden Seiten zugänglich, so dass sich die Bewohner problemlos im Gebäude bewegen können.
7. Die Analyse des Gebiets im Umkreis von 500 und 1000 Metern ergab, dass ein Bedarf an Bars, Cafés, Restaurants, Geschäften, Bibliotheken und anderen Nutzungen besteht. Das Gebäude bietet alles, was in kurzer Entfernung benötigt wird, nicht nur für die Bewohner, sondern auch für die Nachtgemeinschaft. Seine Form ermöglicht es, diese Nutzungen an verschiedenen Stellen zu platzieren, so dass sie gut sichtbar sind.
KONZEPTENTWICKLUNG
7. Umkleidkabin 8. Verwaltung 9. Drogerei 10. Apotheke
Fahrradabstellraum 12. Bäkerei
13. Cafe - Restaurant
INNENANSICHT DES LAUBENGANGS
RESIDENZGEBÄUDE
Das Baugrundstück befindet sich in Ummeln, einem Vorort von Bielefeld, in unmittelbarer Nähe des großen deutschen Systembauunternehmens Goldbeck und des Einfamilienhauses. Im Norden des Grundstücks befinden sich ein Wald und ein See. Dieser sollte in das Entwurfskonzept integriert werden, da er einen Mehrwert für das Projekt bietet.
Aus der Analyse der Windrose wird deutlich, dass die meisten Winde aus dem Süden kommen. Die Wohnhäuser sind so ausgerichtet, dass dieser Wind durchgelassen wird und eine Pufferzone im Gebiet entsteht. Die Reihenhäuser erhalten den meisten direkten Wind. Die Hecken auf der Rückseite der Reihenhäuser schaffen nicht nur Privatsphäre für die Bewohner, sondern wirken auch als Windschutz und reduzieren den Wind.
Die Wohngebäude (Zeile) ist so platziert und ausgerichtet, dass es als Promenade fungiert und den Bewohnern und Mitarbeitern von Goldbeck eine direkte Verbindung zwischen der unteren Straße im Süden und dem See im Norden bietet.
An der Ostseite des Grundstücks befindet sich ein Kinderspielplatz, der aus Sicherheits- und Privatheitgründen von der Straße abgesetzt ist.
Die durchgeführten Solaranalysen haben ergeben, dass die Ausrichtung und die Art der Gebäude (“Zeilen”) am besten geeignet sind, um die Sonneneinstrahlung auf die Ost- und Westseite der Gebäude zu gewährleisten.
STÄDTEBAULICHES KONZEPT
Masterplan & Grundrisse
Das Konzept unseres Entwurfs bestand darin, drei Zonen in der Wohnung zu schaffen, eine für den Gemeinschaftsbereich wie Wohnzimmer, Küche und Esszimmer, die andere für den individuellen Bereich, die Schlafzimmer und die vertikale Erschließung, die sich in der Mitte befindet, wo sie diese Räume miteinander verbindet. Diese Isolierung wird den Gemeinschaftsbereich aufwerten, da er mehr Höhe als die anderen Räume hat. Eine solche Gestaltung macht die Fassade interessanter und ablesbarer.
Das Konzept der SPLIT-Wohnungen basiert auf zwei Punkten Der erste besteht darin, eine zentrale vertikale Erschliessung zu schaffen, die mit den Haupteingängen der Wohnungen verbunden ist. Die zweite vertikale Erschliessung verbindet die verschiedenen Ebenender Wohnungen miteinande.
INNENPERSPEKTIVE
LEISURE HOTEL
Das Design dieses Hotels ist ein echtes Beispiel für organische Architektur. Die Form und die Materialien des Gebäudes wurden so gewählt, dass sie mit der natürlichen Umgebung harmonieren. Die einzigartigen fließenden, geschwungenen Linien des Gebäudes wurden sorgfältig entwickelt, um die natürlichen Konturen der umliegenden Landschaft zu imitieren und eine nahtlose Verbindung zwischen der bebauten Umgebung und der natürlichen Welt zu schaffen.
Dieser Gestaltungsansatz findet sich im gesamten Hotel wieder, wobei die üppige Vegetation in der Landschaft das Gefühl der Harmonie und Einheit mit der Umgebung verstärkt. Rampen und barrierefreie Zugänge sind im gesamten Außenbereich integriert, so dass Gäste mit unterschiedlichen Fähigkeiten leicht Zugang haben und in die ruhige und friedliche Umgebung eintauchen können.
Das Innere des Hotels wurde mit der gleichen Liebe zum Detail gestaltet, wobei der Schwerpunkt auf der Schaffung eines Gefühls der Ausgewogenheit und Kontinuität zwischen Innen- und Außenbereich liegt. Das Spa und der Schwimmbadbereich bieten einen luxuriösen Rückzugsort, während die Skybar auf dem Dach einen atemberaubenden Blick auf den Bosporus und die umliegende Landschaft bietet.
Die Lage des Hotels im Herzen des belebten Istinye-Parks in Istanbul bietet den Gästen einen einfachen Zugang zu einer Reihe von Einkaufs- und Speisemöglichkeiten sowie zu einer Reihe von Outdoor-Aktivitäten im Park. Sobald die Gäste jedoch das Hotel betreten, finden sie einen friedlichen Rückzugsort mit einem tiefen Gefühl der Verbundenheit mit der natürlichen Welt vor.
LAGEPLAN KONZEPT IM SCHNITT
1.Eingang Westpromenade
2.Behindertengerechte Rampe
3.Brunnen
4.Bushaltestelle
5.Ruhezone
6.Eingänge an der Südpromenade
7.Außenparken
8.Eingang zur Konferenz
9.Eingang zum Spa Center
10.Treffpunkt
11.Ansichtsanschluss
12.Amphitheater
13.Haupteingang -Hotel
14.Parkhaus - Einfahrt
15.Drop Off
KONZEPT
1. Das Verhalten der regelmäßigen Form mit der Steigung
2. Versenkt und Verlust der Verbindung
3. Die Steigung hat eine glatte Kurve
4. Krümmung des Gebäudes zur Sicherstellung der Integrität
5.Diese Integrität erzeugt die negative Form des Kreises
6. Durch Subtraktion vom Kreis entsteht eine direkte Verbindung zur Steigung.
7. Weiterführung der Bewegung zur Schaffung von öffentlichem Raum
3D SCHNITT
NORD STREAM 2
RÖHRENFLÜCHTLINGSLAGER
Millionen von Menschen aus der Ukraine mussten wegen des Krieges mit Russland ihre Heimat verlassen. Sie sind auf der Suche nach Frieden in andere Länder Europas gegangen, aber ihre Zahl steigt täglich. Nach Angaben von UNICEF haben 5 Millionen Ukrainer ihr Heimatland verlassen.
Die Lage ist instabil und wird immer schlimmer. Allein in Deutschland sind es etwa 350 Tausend. In Deutschland herrscht bereits Wohnungsnot, was es schwierig macht, eine Wohnung zu finden. Eine schnelle Lösung, um den ukrainischen Flüchtlingen zu helfen, besteht darin, die russische Gaspipeline wieder zuverwenden und sie in ein Flüchtlingslager zu verwandeln.
LÄNGE DER GASPIPELINE ZUSAMMENBAUENS
Die Gesamtlänge der Pipeline beträgt 1234 Kilometer. 38 Meter werden benötigt, um eine Unterkunft von 25 Quadratmetern zu bauen, d.h. auf 1234 Kilometern können 32 Unterkünfte für die Flüchtlinge errichtet werden.
Wir können verschiedene Pläne für mehrere Personen erstellen, je nachdem, ob es sich um eine kleine Familie handelt oder nicht, aber hier habe ich eseinfach für eine Person konzipiert.
Das architektonische Konzept des Rampenmuseums zielt darauf ab, einen funktionalen und visuell ansprechenden Raum zu schaffen, der das Besuchererlebnis steigert. Der Entwurf sieht eine Reihe von Rampen vor, die als dynamisches Erschließungssystem dienen und die Exponate auf eine einzigartige und ansprechende Weise miteinander verbinden.
Das Äußere des Gebäudes hat ein modernes und elegantes Aussehen mit einer minimalistischen Ästhetik, die ein Gefühl von Raffinesse vermittelt. Das Museum befindet sich in einem von Bäumen umgebenen Park, der eine friedliche und ruhige Atmosphäre schafft, die die organische Form und das kreisförmige Architekturdesign des Gebäudes ergänzt.
Im Inneren erwartet die Besucher ein multisensorischer Raum mit interaktiven Exponaten und Multimedia-Displays, die zum Erforschen und Entdecken anregen. Das Rampensystem schafft ein Gefühl der Bewegung und des Flusses und führt die Besucher auf eine Entdeckungsreise durch die Exponate.
Die Designphilosophie des Rampenmuseums basiert auf der Überzeugung, dass die Architektur eines Museums ein integraler Bestandteil des Besuchererlebnisses sein sollte. Durch die Einbeziehung der Rampen als verbindendes Element und die Verwischung der Grenzen zwischen Architektur und Ausstellungsdesign wird der Raum sowohl funktional als auch architektonisch bedeutsam. Die Verwendung organischer Formen und kreisförmiger architektonischer Entwürfe schafft ein Gefühl der Harmonie mit der Umgebung und lädt die Besucher ein, sich mit dem Raum auf eine neue und aufregende Weise auseinanderzusetzen.
Museu Oscar Niemeyer
Das Konzept des Museu Oscar Niemeyer berücksichtigt das tropische Klima in Curitiba sowie die große, nach Osten und Westen ausgerichtete Fassade des Gebäudes. Der Architekt wollte eine hervorragende Sicht für die Besucher gewährleisten und gleichzeitig ein effektives Beschattungssystem schaffen.
Da sich die Technologie jedoch weiterentwickelt hat, habe ich die Fassade geändert, um ein parametrisches Schattierungssystem zu integrieren. Dieses System reagiert auf die Bewegung der Sonne, um Sonneneinstrahlung und Blendung zu reduzieren. Die Flossen sind halb geöffnet, um Sonnenstrahlen hereinzulassen, und können vollständig geschlossen werden, um einen dunklen Raum für die Kunstgalerie oder spezielle Ausstellungen zu schaffen.
FIKTIONEN BAUEN
ATMOSPHÄREN
„The room was small and simple, except that it was on the top floor, and had French doors which opened onto a terrace as large as the room. And beyond the parapet of the terrace was the air space over Forty-fourth Street.“
Die Aufgabe bestand darin, die im Text beschriebenen atmosphärischen Elemente zu sammeln und in ein physisches Modell und eine Skizze zu übersetzen.
Beschreiben des Modells
Die Schlichtheit des Zimmers wird durch die Grundausstattung mit einem Bett, einem Tisch, einem Stuhl und einem Bücherregal unterstrichen. Der wahre Fokus liegt jedoch auf einem Moment, der vor dem Ausbruch des Zweiten Weltkriegs eingefangen wurde. Während eine Person an einem kalten, aber sonnigen Nachmittag liest, unterbricht das plötzliche Geräusch von Flugzeugtriebwerken die Ruhe. Die Bewegung des Stuhls und das versehentliche Verschütten der Kaffeetasse erzeugen ein Gefühl der Dringlichkeit, als die Person die Tür öffnet, um den Himmel und das Geschehen zu beobachten. Die Vorhänge wehen im Wind und tragen zur Atmosphäre bei.
MODELLBAU